Xây dựng mẫu nhà phố 7x12m chỉ 700 đến 800 triệu đồng sẽ như thế nào? Liệu có tin được con số đưa ra này không? Cùng theo dõi bài viết dưới đây để xem mẫu nhà ấy đã được gia chủ xây dựng như thế nào với chi phí chỉ 700 – 800 triệu đồng.
Mẫu nhà phố 1 tầng 7x12m – Top thiết kế nhà ở ngoại ô thành phố
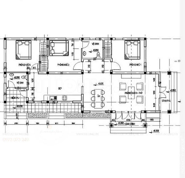
Với phương án thiết kế đầu tiên dành cho mẫu nhà phố 7x12m với quy mô xây dựng 1 tầng mức giá 700 đến 800 đồng, kiến trúc sư đưa ra gợi ý về mặt bằng thiết kế như sau:

Mặt sàn 7x12m được chia thành hai diện tích song song với nhau. Trước khi bước vào phòng khách sẽ phải đi qua bậc tam cấp, sảnh chính rồi mới đến không gian phòng khách, đối diện phòng khách sẽ là phòng ngủ đầu tiên của gia đình. Tại không gian phòng khách cần rất nhiều ánh sáng cũng như không khí nên bố trí thêm hệ thống cửa 2 cánh và phần sảnh phủ cùng hệ thống bậc tam cấp phía bên. Phòng khách của căn nhà này nối liền với khu vực phòng ăn, đối diện phòng ăn là nhà vệ sinh và khu vực cầu thang. Phòng khách và khu vực bàn ăn được nối thông để tạo ra không gian rộng rãi, thông thoáng cho gia chủ sử dụng. Tiếp theo là khu vực bếp, đối diện là phòng ngủ số 2. Ngay sau phòng ngủ số 2 là phòng ngủ số 3 của gia chủ. Phòng ngủ thứ nhất và thứ hai sẽ có chung nhau là nhà vệ sinh cạnh cầu thang. Từ bếp có lối dẫn ra sân sau nhà, tại đây gia chủ bố trí thêm một nhà vệ sinh thuận tiện kết hợp nơi giặt và phơi đồ.

Hình ảnh bố trí nội thất cụ thể cho mẫu nhà phố 7x12m để gia chủ hình dung rõ ràng hơn cách sắp xếp, bố trí và lựa chọn nội thất cho căn nhà.

Bản thiết kế ấy đã được ứng dụng và cho ra đời một mặt tiền cực kỳ đẹp mắt, nhận được cái gật đầu từ chính gia chủ và nằm trong top thiết kế tham khảo cho những gia chủ đang có ý định xây dựng tương tự. Có thể thấy ngôi nhà sử dụng thiết kế theo một phong cách hiện đại với tone trắng trang nhã kết hợp vùng thiết kế mái Thái cùng màu sắc cổ điển mang đến vẻ đẹp sự sang trọng cho ngôi nhà.
Trước khi bước vào không gian phòng khách là sảnh chính. Tại đây gia chủ để diện tích khá lớn với bàn ăn dài với 6 ghế bao quanh, các thành viên trong gia đình sẽ có những bữa ăn quây quần bên nhau bao quanh là không gian thoáng với cây cối và tiểu cảnh đẹp mắt. Kiến trúc sư bố trí thêm bếp sưởi được ốp gạch bên ngoài, là điểm nhấn cho tổng thể mặt tiền lại vừa cách nhiệt khá hiệu quả.
Với thiết kế này ngôi nhà hiện lên mang dấu ấn đậm nét của những ngôi nhà châu Âu. Cũng chính thiết kế này chia cửa chính phòng khách ra thành hai bên, mỗi bên là hai cánh cửa kính. Hệ thống mái sảnh chính bên trong được ốp gỗ cùng với ánh đèn vàng được lắp đặt, khi trời tối trong không gian này trở nên lung linh, mang sắc thái sự ấm áp, sang trọng. Mặt kế bên của ngôi nhà cũng được ốp gỗ hai bên cửa phụ tạo điểm nhấn. Xung quanh nhà được bố trí chậu cây cảnh mang đến không gian xanh bao quanh ngôi nhà.
Đặc biệt ngôi nhà này được thiết kế với sân vườn, cùng với bể bơi vô cùng hiện đại. Với mẫu thiết kế nhà phố 7x12m này phù hợp cho gia đình nghỉ ngơi vào cuối tuần hay là căn vila nhỏ và đặt tại khu vực ngoại ô thành phố.

Với mẫu nhà phố 7x12m quy mô xây dựng 1 tầng, gia chủ có thể bố trí 2 phòng ngủ như lát cắt bên trên để không gian khác có được diện tích lớn hơn cho gia chủ sử dụng.

Một mẫu thiết kế dành cho mẫu nhà phố 7x12m với quy mô 1 tầng được chú ý rất nhiều với thiết kế đơn giản so với mẫu nhà được đề cập đến bên trên. Mặt tiền hiện lên với mảng tường trắng cùng với lớp phớ đơn giản để tránh gây nhầm chán. Cửa kính với hai cột trụ vững chắc kết hợp với kiến trúc mái bên trên hiện lên kiến trúc nhà Pháp sang trọng. Hệ thống cửa chính và cửa sổ lựa chọn khung gỗ cửa kính sang trọng, phù hợp với tổng thể kiến trúc sang trọng cổ điển của căn nhà. Chậu cây xanh được thiết kế bên dưới khung cửa, ốp đá sang trọng tạo nên không gian xanh cho ngôi nhà.

Mẫu nhà phố 7x12m mái Thái cũng trở thành xu hướng thiết kế luôn được săn đón bởi vẻ đẹp trang nhã và tinh tế. Đặc biệt với kiến trúc mái Thái có độ dốc lớn vừa tránh nóng hiệu quả lại vừa tránh thấm nước khi mưa lớn, phù hợp với điều kiến thời tiết nhiệt đới gió mùa tại Việt Nam.

Mẫu nhà phố 7x12m sử dụng mái Thái truyền thống. Trước nhà bố trí chậu cây ốp đá thay cho hàng rào kín đáo thường thấy. Mặt tiền chia làm hai diện tích bới một bên cửa chính dẫn vào khu vực phòng khách với thiết kế hệ cột trụ mái sang trọng, chân cột được ốp đá nhấn mạnh thêm sự vững chắc cho ngôi nhà. Bên còn lại là cửa cho không gian bếp ngôi nhà. Mặt 12m được bố trí cửa sau, tiện cho gia chủ di chuyển từ khu vực để oto dẫn vào trong nhà mà không cần vòng về mặt trước.

Lựa chọn phần mái tương tự như thiết kế bên trên, mẫu thiết kế nhà phố 7x12m này mang dấu ấn đậm nét của căn nhà kiến trúc Pháp. Cửa chính là hệ thống cột trụ kép sóng đôi: cột trụ vuông vức, vững chãi bên ngoài, rồi bên trong là cột trụ tròn kết hợp cùng mái vòm cổ điển. Phần mái nhà được ốp đá vàng sang trọng. Hệ thống cửa gỗ sang trọng phù hợp với tổng thể thiết kế. Tiểu cảnh cây xanh tỉa đúng chuẩn được bố trí theo sự đúng kiến trúc nhà Pháp, đối xứng hai bên.

Hoặc lựa chọn một mái Thái sắc đỏ nổi bật ghi được điểm tuyệt đối về sự phá cách cùng dấu ấn khó phai trong lòng mỗi vị khách khi ghé qua mẫu thiết kế nhà phố 7x12m. Tất cả mẫu thiết kế nhà phố 7x12m quy mô xây dựng 1 tầng đều có mức chi phí chỉ 700 đến 800 triệu đồng – mức chi phí hoàn toàn phù hợp với thu nhập của gia đình Việt hiện nay.
Mẫu nhà phố 7x12m 2, 3 tầng tiện nghi chỉ 700 – 800 triệu đồng

Khi tiến hành xây dựng mẫu nhà phố 7x12m với quy mô xây dựng 2 tầng trở lên, gia chủ sẽ có mặt tiền thoải mái để sáng tạo, không o ép giống như những mẫu nhà sở hữu mặt tiền 3 hay 4m. Mẫu nhà phố 7x12m với quy mô như vậy rất phù hợp xây dựng trong nội thành cùng chi phí chỉ từ 700 – 800 triệu đồng.

Mẫu nhà phố 7x12m với quy mô xây dựng 3 tầng, lựa chọn phong cách thiết kế hiện đại với khối hộp được sử dụng để tối đa hết diện tích ở của gia chủ. Mẫu thiết kế này lựa chọn tone màu trắng nhã nhẵn, phù hợp với khu vực thành phố. Trên nền trắng ấy, gia chủ lựa chọn khung sơn màu gỗ vô cùng nổi bật, ấn tượng. Mặt tiền tầng 1 được bao bọc chắc chắn bởi hệ thống tường rào với khung được sơn giả màu gỗ vô cùng sang trọng. Lên đến tầng 2 ban công lựa chọn chất liệu bằng kính cường lực chắc chắn, bên ngoài là thiết kế để trồng cây xanh mang đến không gian thiên nhiên cho khu vực ban công nhà. Chú ý đến phần cửa sổ ở tầng 2 được thiết kế tràn hai mặt của ngôi nhà để gia chủ sử dụng diện tích bên trong có cảm giác về không gian mở, rộng hơn diện tích thực tế. Lên đến tầng 3, ban công thu hẹp lại, thay vì chất liệu kính thì sử dụng chất liệu bằng gạch xi măng chắc chắn, bố trí thêm tiểu cảnh cây để có không gian xanh trong ngôi nhà.

Mái bằng quá quen thuộc thì lựa chọn mẫu nhà phố 7x12m với kiến trúc mái xéo như trên sẽ khiến ngôi nhà của bạn trở nên nổi bật với không gian xung quanh.

Mái xéo lại kết hợp với gỗ lại mang đến ngôi nhà với phong cách hiện đại pha lẫn cổ điển cho mẫu nhà phố 7x12m.

Ở mặt tiền 7m gia chủ sở hữu ngay không gian gara oto cực kỳ tiện ích. Với mức thu nhập bình quân hiện nay, mỗi gia đình đều có thể sở hữu được một chiếc oto, vì thế nhu cầu xây dựng ngôi nhà có gara oto được quan tâm rất lớn, mẫu nhà phố 7x12m có gara oto sẽ là thiết kế nằm trong top đầu tìm kiếm hiện nay.
Mẫu thiết kế này được phân chia thành hai diện tích: Một bên là cổng rào bằng sắc kiên cố, che gần như hết mặt tiền tầng một của ngôi nhà, mang lại sự riêng tư cho gia chủ bên trong. Khu vực tầng hai của diện này bố trí hai cửa sổ ứng với hai không gian bên trong nhà để mang đến ánh sáng cũng như không khí lưu thông. Bên còn lại của mẫu thiết kế này bố trí cửa cuốn hiện đại được ốp đá xung quanh kết hợp cùng với ánh sáng đèn led bên trên để tạo độ sang trọng. Bên trên khu vực tầng hai được bố trí cửa sổ trượt thông minh, và phần bồn hoa bên dưới kết hợp kiến trúc mái kép ấn tượng. Ban công không được đặt mặt tiền mà chuyển qua mặt bên 12m.

Nếu không muốn để gara oto trong nhà thì đặt tại trước sân nhà cũng là ý tưởng không tồi, tránh ám mùi phương tiện vào không gian sinh hoạt áp dụng cho mẫu nhà phố 7x12m có phần sân trước rộng rãi như trên.































