Có thể thấy rằng hiện nay những mẫu thiết kế nhà ở kiến trúc kiểu Pháp đang được nhiều khách hàng lựa chọn. Những ngôi nhà kiến trúc Pháp thể hiện được sự sang trọng, mới mẻ qua các hình khối mềm mại và uyển chuyển. Để bạn đọc có thể hiểu rõ hơn về mẫu thiết kế này, chúng tôi xin gửi đến các bạn những thông tin chi tiết về những mẫu nhà 4 tầng kiến trúc Pháp. Hãy cùng theo dõi bài viết dưới đây của chúng tôi.
Phối cảnh mẫu nhà 4 tầng kiến trúc Pháp
Trước hết, chúng ta cần tìm hiểu xem mẫu nhà kiến trúc Pháp là như thế nào? Kiến trúc Pháp có thể coi là một phong cách mới mẻ với những yếu tố về tinh tế, kiểu dáng cầu kỳ đã phá vỡ quy luật cổ điển tự nhiên. Mẫu nhà thiết kế theo kiến trúc này sẽ gần giống với phong cách thiết kế tân cổ điển nhưng có nguồn gốc từ nước Pháp và áp dụng những tiến bộ theo phong cách Châu Âu.

Có lẽ chúng ta đã không còn quá xa lạ với mẫu nhà này, bởi trong thực tế trên những bộ phim truyền hình hoặc những nơi đặc biệt kiến trúc Pháp vẫn còn giữ nguyên, giúp ta có những cảm nhận riêng về mẫu nhà theo lối kiến trúc Pháp này. Với những nét đẹp độc đáo mẫu nhà này đang rất được thịnh hành.
Đặc trưng là những ngôi nhà kiểu Pháp là thiết kế ngoại thất tỉ mỉ, tinh tế; thiết kế nội thất thế hiện được sự tiện lợi và sang trọng; hoa văn hình dạng cột chắc chắn và đẹp mắt; kiến trúc mái đa dạng phù hợp với mọi điều kiện trong mọi thời tiết; hoa văn hoạ tiết cầu ky, rực rỡ.

Kiến trúc kiểu Pháp với những hình dạng cột dài và đồ sộ tạo nên tính vững chắc, kiên cố cho ngôi nhà. Toàn bộ hệ thống cột, tường đều được thiết kế các đường phào chỉ, hoa tiết hoa văn tinh tế, tỉ mỉ đã tạo nên đặc trưng của kiến trúc kiểu Pháp. Với những ngôi nhà mang đặc trưng kiến trúc Pháp chắc chắn phải có đại sảnh ngay trên bậc tam cấp và cột trụ hai bên tạo thành một cổng chào nguy nga, tráng lệ. Sự kết hợp đơn giản giữa các chi tiết hoa văn, màu sắc và hệ thống trụ cột của mẫu nhà mang kiến trúc này trở nên sang trọng, hấp dẫn và nổi bật hơn. Mẫu cột Ionic với các hoạ tiết hoa văn mềm mại và uyển chuyển vừa thể hiện sự vững chãi vừa tăng tính thẩm mỹ cho căn nhà. Trên đầu mỗi cột đều được thiết kế với hai vòng cuốn tròn xoắn gốc, trang trí thêm họa tiết uyển chuyển, khắc chìm mờ ảo.

Phần chân tường tầng 1 và lối lên sảnh có thể ốp đá màu vàng nâu để tạo điểm nhấn khiến cho toàn bộ công trình sang trọng và mới mẻ hơn. Bên cạnh đó, gam màu chủ đạo cho tổng thể kiến trúc ngoại thất có là những gam màu trung tính. Nếu như màu trắng là tông màu chủ đạo cho không gian ngoại thất thì nổi bật là hệ thống cửa gỗ khung kính làm tăng thêm sự đẳng cấp cho kiến trúc ngoài trời. Thêm vào đó, sẽ là hệ thống mái màu xanh than nổi bật trên nền trắng tôn lên vẻ sang trọng, cuốn hút cho căn nhà. Ngoài ra còn tạo cảm giác thoải mái, ưa nhìn qua mắt mọi người giúp cho căn nhà luôn thoáng mát, trong lành.

Về phần mái của mẫu nhà kiểu Pháp không cần quá cầu kỳ. Có thể thiết kế mái thái, mái vòm đều được miễn sao tạo nên sự hài hoà, đối xứng cho tổng thể không gian nội thất của căn nhà. Những các bạn vẫn nên ưu tiên các kiến trúc mái phù hợp với thời tiết của Việt Nam. Với khí hậu nhiệt đới ẩm gió mùa thì phần mái phải đảm bảo đón nắng, đón gió và chống ẩm ướt vào mùa mưa.

Để tạo nên một không gian sống gần gũi với thiên nhiên, trong lành, mát mẻ. Với thiết kế cổng rào màu vàng hoặc đen cũng góp phần tô điểm cho vẻ đẹp ngoại thất cho căn nhà. Có thể bố trí thêm một bức trướng lớn ở vị trí chính diện lối lên sảnh kết hợp với tường rào hoạ tiết hoa văn uốn lượn giúp cho căn nhà trở nên đẹp mắt và sinh động hơn.
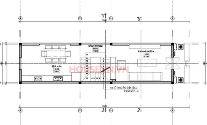
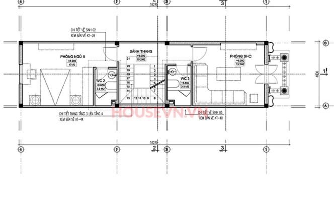
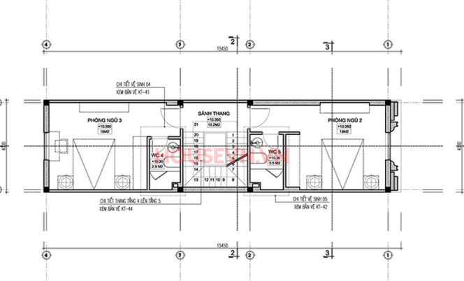
Bản vẽ mặt bằng công năng mẫu nhà 4 tầng kiến trúc kiểu Pháp

Bản vẽ thiết kế mặt bằng công năng của mẫu nhà cấp 4 kiến trúc Pháp đẹp và tiện nghi trên diện tích 80m2 (5mx16m). Công năng nhà ống được tổ chức sắp xếp khoa học hợp lý đảm bảo cuộc sống tiện nghi cho các thành viên trong gia đình như phòng khách, bếp ăn, 3 phòng ngủ có toilet, phòng tắm, phòng thờ, phòng làm việc.

Tầng 1 là không gian để xe và phòng làm việc yên tĩnh, lý tưởng cho gia chủ.

Trên tầng 2 nơi gia đình họp với phòng bếp + ăn và phòng khách là nơi tiếp những vị khách quý của gia đình.

Mặt bằng tầng 3 nhà ống kiểu Pháp diện tích 80m2 có phòng sinh hoạt chung, phòng ngủ có WC khép kín, có cả sảnh thang.

Cuối cùng là bản vẽ tầng 4 căn nhà kiến trúc Pháp diện tích 80m2 bao gồm 2 phòng ngủ có WC khép kín, sảnh thang.
Kiến trúc nội thất mẫu nhà 4 tầng kiểu Pháp
Phòng khách luôn là trung tâm của căn nhà bởi nó được coi là nơi sang trọng và lịch sự nhất để tiếp khách. Phòng khách mang kiến trúc Pháp thể hiện qua màu sắc được sử dụng là màu vàng nhạt, vàng nắng, nâu sô- cô- la, đỏ rực, xanh coban, màu gỉ sắt, … Những phụ kiện trang trí thêm màu xám xỉn và đen sáng sẽ làm nổi bật độ sáng cho những màu trên.

Một điều thường thấy của những phòng khách kiểu Pháp là sự tương phản về kết cấu. Nếu như trần nhà nhợt nhạt thì đối diện với nó sẽ là những chùm gỗ thô và tối màu.

Phần gạch lát sàn nên chọn những loại gạch đầy màu sắc với những hoạ tiết hoa văn. Hay một bộ sofa trắng được coi là tâm điểm giữa phòng khách làm căn phòng sáng bừng lên. Những vật liệu décor như tranh ảnh, đèn chùm trang trí, hoa được cắm trong lọ thuỷ tinh, những bức gỗ được chạm khắc tỉ mỉ, … đều phải mang nhiều màu sắc đi kèm với những hoa tiết hoa văn nổi bật.
Dưới sàn là những tấm thảm được thêu dệt với những hoa văn bắt mắt như hình hoa hương dương, ô liu, oải hương, … là những hoạ tiết truyền thống của Pháp. Để phòng khách thực sự mang kiến trúc kiểu Pháp thì không thể thiếu lò sưởi được bao phủ bởi lớp đá (gốm, gạch) đi kèm các cây thảo mộc và chậu đồng.
Phòng bếp được thiết kế qua kiến trúc kiểu Pháp được thể hiện qua mẫu tủ bếp chữ L hoặc chữ U được làm bằng chất liệu gỗ cao cấp phù hợp với không gian phòng bếp kiểu Pháp. Không gian phòng bếp sẽ vừa nấu ăn vừa làm phòng ăn được sơn màu trắng chủ đạo và bộ bàn ghế ăn, tủ bếp được chạm khắc tỉ mỉ. Điều này vừa tạo cho không gian nhà bếp vừa ấm cúng vừa sang trọng.

Phòng ngủ được thiết kế theo kiến trúc Pháp luôn mang đến không gian đầy tủ tiện nghi, thoải mái và sự riêng tư trong mỗi không gian. Việc phối hợp màu sắc giữa các nội thất với nhau là điều vô cùng quan trọng trong kiến trúc Pháp. Toàn bộ nội thất như giường ngủ, tủ quần áo, bàn trang điểm, … đều được làm bằng gỗ tự nhiên nổi bật trên nền trắng chủ đạo cho căn phòng. Mọi kiến trúc nội thất đều được thiết kế nhiều hoạ tiết hoa văn mang lại cảm giác ấm cúng cho phòng ngủ.

Trên đây là toàn bộ những thông tin về mẫu nhà 4 tầng kiến trúc Pháp mà chúng tôi gửi đến quý bạn đọc. Ngoài mẫu thiết kế nhà theo kiến trúc này các bạn có thể tham khảo những mẫu thiết kế khác qua trang web sàn Xây dựng số Việt Nam. Tại đây các bạn có thể trau dồi thêm kiến thức về những mẫu thiết kế nhà hoặc nhiều thông tin về lĩnh vực xây dựng. Hy vọng các bạn sớm thực hiện được ước mơ của chính mình trong một thời gian sớm nhất có thể. Chúc các bạn thành công và mong rằng các bạn sẽ tiếp tục ủng hộ chúng tôi trong những bài viết tiếp theo!
Xem thêm:


































