Hiện nay, nhu cầu về thiết kế nhà ở kết hợp kinh doanh rất phổ biến tại nước ta. Nhưng để có thể đảm bảo được sự hài hoà, cân đối, đảm bảo được tính thẩm mỹ và riêng tư giữa không gian sống và kinh cần đòi hỏi các kiến trúc sư, kĩ sư phải vô cùng tinh tế và khéo léo trong công đoạn thiết kế. Để hiểu rõ hơn về mẫu nhà này, mời các bạn theo dõi chủ đề mẫu nhà 4 tầng kết hợp kinh doanh dưới đây của chúng tôi.
Phối cảnh mẫu nhà 4 tầng kết hợp kinh doanh
Với những mẫu nhà vừa phục vụ cho công việc kinh doanh, buôn bán vừa để sinh hoạt hiện nay khá là phổ biến. Đây là sự kết hợp hai trong một, một nơi là không gian riêng tư, nghỉ ngơi của gia đình còn một nơi lại là không gian chung có nhiều người ra vào. Cho nên để cân bằng được giữa hai không gian đối lập này với nhau thì các kiến trúc sư, kĩ sư phải hết là người có kiến thức sâu rộng, kinh nghiệm trong thiết kế nhà ở mới làm được. Do đó việc lựa chọn các công ty thiết kế hay kiến trúc sư, kĩ sư tự do là điều rất quan trọng.

Những mẫu nhà 4 tầng kết hợp kinh doanh như hiện nay thường được thiết kế theo phong cách hiện đại. Tại sao nên thiết kế theo phong cách hiện đại cho những mẫu nhà như thế này? Bởi khi thiết kế theo phong cách này căn nhà của bạn sẽ thoáng mát, rộng rãi hơn so với diện tích thật sự của nó. Nếu là người có nhiều kinh nghiệm về lĩnh vực xây dựng chỉ cần nhìn qua kết cấu đơn giản, màu sắc trung hoà giữa màu đậm và trung tính là có thể nhận ra ngay đặc điểm nổi bật của kiến trúc hiện đại.
Con người ngày càng hài lòng với sự bố trí khoa kọc, tiện nghi, sự cân đối giữa các không gian không có quá nhiều chi tiết, thanh lịch mà phong cách hiện đại mang lại. Màu sắc thường được sử dụng cho tổng thể căn nhà là màu trung tính. Các bạn có thể sử dụng màu chủ đạo là màu trắng và sơn thêm một mảng màu đậm trên tường để tạo điểm nhấn cho căn nhà.

Với không gian mở kết hợp thêm những màu sắc trung tính khiến cho căn nhà như “ăn gian” được về diện tích thật sự của nó. Do đây là mẫu nhà kết hợp kinh doanh nên các kiến trúc sư và chủ nhà cần lưu ý về yếu tố phong thuỷ. Vì điều này sẽ ảnh hưởng quan trọng đến công việc kinh doanh buôn bán của gia đình. Xây nhà theo đúng phong thuỷ hợp mệnh với tuổi của gia chủ sẽ hấp thu được những nguồn năng lượng tốt, đem lại vận khí, may mắn về sức khoẻ, tiền tài, công việc, tiền bạc, … cho tất cả các thành viên trong gia đình.
Vì là mẫu nhà kết hợp kinh doanh nên ít khi làm sân và tường rào bao quanh nhà mà sẽ làm mặt tiền đối diện ra đường luôn. Tầng 1 sẽ là nơi được trưng dụng làm mặt bằng kinh doanh nên sẽ là một không gian mở chỉ có 1 phòng lớn và 1 nhà vệ sinh chung. Để cho không gian tầng 1 không bị trống trải có thể thiết kế thêm 2 cột tròn to với phần chân đế vuông vắn, chắc chắn để tạo thế vững trãi, uy nghi cho ngôi nhà. Cửa chính nên thiết kế của kính cường lực để người đi đường có thể nhìn thấy các sản phẩm được bày bán. Bên ngoài sẽ là một lớp cửa cuốn để đề phòng trộm cắp.

Còn từ tầng 2 trở lên đến tầng 4 sẽ là không gian sinh hoạt của gia đình bạn. Tại các không gian này cũng được thiết kế đơn giản nhưng vẫn có những điểm nhấn cho không gian như các hoạ tiết hoa văn sang trọng, các cột tròn được thiết kế chìm.
Hệ thống ban công được thiết kế vô cùng đơn giản với những thanh lan can được làm bằng inox. Treo thêm một vào giỏ dâu hoặc trưng một vài chậu hoa, cây cảnh nhỏ đã tô điểm thêm cho mặt tiền của căn nhà.

Có thể thấy để có thể kết hợp được với kinh doanh ngôi nhà thường sẽ được bố trí nhiều tầng, tầng 1 và tầng 2 dành để kinh doanh tầng cao hơn để sinh sống, đây là mô hình quen thuộc ở Hà Nội, thành phố Hồ Chí Minh. Còn đối với nông thôn chỉ cần 2 tầng, tầng 1 dành hoàn toàn kinh doanh và tầng 2 để sinh hoạt gia đình. Trong tương lai mẫu nhà này sẽ còn để lại nhiều lợi ích lớn giúp ích cho gia chủ.
Bản vẽ mặt bằng công năng mẫu nhà 4 tầng kết hợp kinh doanh:
Tầng 1 sẽ được chia làm 3 không gian. Không gian lớn nhất ngay cạnh cửa ra vào sẽ được bố trí làm nơi kinh doanh, buôn bán. Tiếp đó sẽ là 1 phòng vệ sinh chung cho khách đến mua hàng. Bên cạnh sẽ là không gian bếp ăn. Nên chừa lại một khoảng nhỏ để làm sân giếng nhỏ và cũng là nơi hút gió cho căn nhà.
Tầng 2 sẽ bao gồm phòng khách và 2 phòng ngủ khép kín. Nên thiết kế phòng khách rộng rãi một chủ với hệ thống ban công thông thoáng để đảm bảo đối lưu không khí tốt nhất.

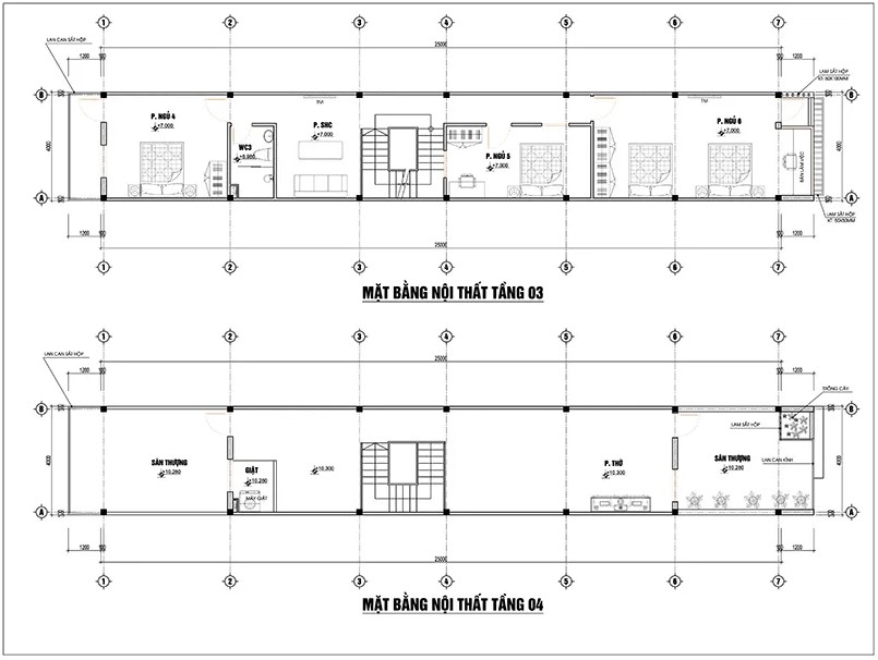
Bố trí tầng 3 gồm 3 phòng ngủ có phòng vệ sinh khép kín. Hoặc nếu bạn cảm thấy chi phí xây 3 phòng vệ sinh khép kín quá lớn thì có thể xây 1 phòng vệ sinh chung ở cuối tầng để tiết kiệm chi phí hơn. Phòng ngủ là nơi yêu thích của mỗi người sau những giờ làm việc vất vả cho nên có thể trang trí, bài trí nội thất tuỳ theo sở thích của từng mỗi thành viên trong gia đình.

Tầng 4 là nơi cao nhất của căn nhà nên sẽ thiết kế phòng thờ, 1 phòng ngủ, 1 phòng làm việc, 1 phòng vệ sinh chung và nơi giặt giũ, phơi quần áo.
Thiết kế nội thất mẫu nhà 4 tầng kết hợp kinh doanh
Vì tầng 1 được sử dụng vào mục đích kinh doanh nên phần trần của tầng 1 sẽ được thiết kế cao hơn so với các tầng khác để tạo không gian rộng rãi, mát mẻ. Đã là nơi kinh doanh thì cần đảm bảo nguyên tắc tinh tế và sang trọng nên có thể trang trí thêm các hệ thống đèn chùm, một vài chậu hoa để nổi bật trên nền trắng chủ đạo của không gian tầng 1.

Nếu là buôn bán hàng hoá thì nên bài trí thêm 1 vài chiếc tủ kính để mọi người có thể nhìn rõ hơn được các mặt hàng. Còn nếu được sử dụng làm văn phòng thì nên sắp xếp bàn làm việc, kệ sách, … sao cho hợp lý nhất có thể.
Phòng khách là trung tâm của căn nhà dùng để tiếp khách và mọi người quây quần bên nhau nên rất quan trong trong vấn đề thẩm mỹ. Các bạn có thể sử dụng gỗ với tone màu nâu tạo nên sự ấm cúng cho không gian này. Đồ nội thất sẽ được lựa chọn tuỳ theo sở thích của chủ nhà từ nhẹ nhàng, tinh tế cùng hệ thống hoa văn hoặc được thiết kế đơn giản nhưng vẫn tôn lên được vẻ sang trọng, lịch sự cho phòng khách.

Tại không gian phòng khách nên thiết kế một hệ thống cửa sổ lớn để đảm bảo rằng căn phòng luôn tràn ngập ánh sáng kết hợp thêm rèm cửa mỏng, màu sắc nhẹ nhàng để tránh nắng nóng khi nhiệt độ lên cao. Những vật liệu decor như đèn chùm, cây cảnh nhỏ, chậu hoa nhỏ hay tủ trưng bày rượu, đồng hồ, … khiến cho không gian được tô điểm thêm.
Phòng bếp là nơi sáng tạo ra những món ăn ngon, nơi gia đình sum họp với những bữa ăn đầy ắp tiếng cười nên có thể thiết kế đem lại cảm giác đầm ấm, êm đềm. Được bao phủ chủ đạo bởi màu trắng kết hợp với hệ thống tủ bếp gỗ treo tường mang đến sự hài hoà về mặt không gian. Có thể ốp thêm những viên gạch sinh động về màu sắc để tạo điểm nhấn cho căn bếp nhà bạn. Giữa phòng bếp là một bộ bàn ăn đơn giản nhưng vẫn thể hiện sự sang trọng.

Phòng ngủ được thiết kế đơn giản nhưng vẫn đầy đủ tiện nghi. Do là phòng để nghỉ ngơi, giải toả stess nên thiên về yếu tố thiên nhiên như ánh sáng, thoáng mát. Cho nên trong phòng ngủ có thể là một cửa mở ra ban công hoặc cửa sổ lớn được làm bằng kính để đảm bảo căn phòng luôn tràn ngập ánh nắng. Tại phòng ngủ nên lắp rèm cửa tối màu để dễ ngủ hơn khi ánh mặt trời chiếu vào.
Hy vọng những thông tin về mẫu nhà 4 tầng kết hợp kinh doanh mà chúng tôi gửi đến các bạn sẽ đem lại cho các bạn những nguồn cảm hứng cho ngôi nhà của chính mình. Các bạn có thể tham khảo thêm các mẫu thiết kế khác tại sàn Xây dựng số Việt Nam. Tại đây có đầy đủ các thông tin trong lĩnh vực xây dựng. Chúc các bạn sẽ sớm thực hiện được ước mơ về một mái ấm trong tương lai gần. Xin chân thành và cảm ơn các bạn đã theo dõi bài viết của chúng tôi. Xin chào và hẹn gặp lại ở những bài viết tiếp theo!
Xem thêm:


































