Xuất phát từ nhu cầu về cuộc sống hiện nay của những gia đình đông thành viên thì mẫu nhà phố 4 tầng là sự lựa chọn hoàn hảo. Những mẫu nhà phố 4 tầng 5x15m được thiết kế hiện đại, phong cách mang đến sự riêng biệt, không trùng lặp và nhàm chán. Các bạn có thể tham khảo những mẫu nhà phố 4 tầng đẹp dưới đây từ Xây dựng số để có thêm nhiều ý tưởng thiết kế cho căn nhà tương lai của mình.
Tham khảo bản vẽ mặt bằng thiết kế nhà 4 tầng 5x15m
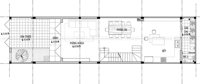
Mẫu nhà phố 4 tầng diện tích 5x15m có nhược điểm là hẹp ngang nên cách bày trí nội thất đều tuân thủ theo chiều dọc của ngôi nhà nhằm mang lại sự thông thoáng cũng như tiết kiệm diện tích tối đa. Với quy mô 4 tầng, ngang 5m, dài 15m các kiến trúc sư sẽ đưa ra bản vẽ gợi ý mặt bằng như sau:

Tầng trệt được thiết kế gồm sân trước, phòng khách, phòng ăn, bếp và sân sau
Thiết kế với khoản sân trước rộng rãi với mục đích cung cấp chỗ đỗ xe cho gia chủ cũng như tận dụng để trồng thêm nhiều cây xanh mang lại sự thoáng mát. Phòng khách được bố trí gần cửa chính với bộ bàn ghế chữ L mang lại lối đi rộng rãi.
Bếp và phòng ăn được thiết kế liền kề tạo ra một không gian sinh hoạt mở kết nối với nhau vừa tối ưu được diện tích, vừa thuận tiện cho việc sum họp gia đình. Việc chừa ra khoảng sân sau của ngôi nhà phố giúp gia chủ tận dụng trồng cây, không gian nhà vệ sinh thoáng đãng hơn và đảm bảo sự riêng tư nhất định.
Tầng 2 và tầng 3: Mỗi tầng đều thiết kế với 2 phòng ngủ rộng rãi có nhà vệ sinh khép kín. Các phòng đều sắp xếp nội thất khoa học đảm bảo tính thẩm mỹ cũng như phong thủy giúp cho việc nghỉ ngơi, thư giãn của gia chủ được tốt nhất.

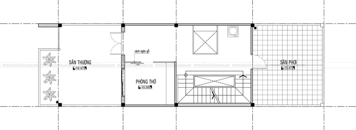
Tầng 4 là không gian của sân thượng, phòng thờ và sân phơi. Việc thiết kế sân thượng trên lầu nhằm mang lại không gian thư giãn thoải mái, hơn nữa gia chủ có thể tận dụng trồng thêm cây xanh để mang lại sự trong lành, sắp xếp những chiếc ghế nhỏ... Phòng thờ được thiết kế khép kín nhằm đảm bảo sự yên tĩnh, cửa hướng ra bên ngoài phía trước. Khu vực sân phơi thông thoáng.
2. Những mẫu nhà 4 tầng 5x15m đẹp

Phối cảnh của mẫu nhà phố 4 tầng này cho người nhìn thấy được một nét đẹp tổng thể bắt mắt và lung linh. Sở hữu chiều cao 4 tầng được thiết kế với mái thái giúp ngôi nhà có được cảm giác rộng rãi. Ngôi nhà không sử dụng màu sắc chủ đạo tổng thể mà thay vào đó là mỗi tầng 1 màu khác nhau, khiến ngôi nhà khác lạ và nổi bật hơn trên phố. Mặt tiền tầng 1 được thiết kế ấn tượng với cổng, hàng tào và lam chắn. Bên cạnh đó, ngôi nhà được thiết kế với không gian xanh nhờ việc bố trí tiểu cảnh hợp lý.

Điểm nhấn của mẫu nhà phố 4 tầng diện tích 5x15m này được thể hiện qua mái thái và hệ thống không gian thông thoáng nhờ việc thiết kế nhiều ô cửa sổ và hệ kính cao cấp. Điều này giúp ngôi nhà dễ dàng đón sáng và gió tự nhiên, đồng thời loại cửa nhựa lõi thép còn cách âm cách nhiệt tốt giúp gia chủ luôn được yên tĩnh.

Với tông màu trắng chủ đạo, mẫu nhà phố 4 tầng 5x10m trở nên nổ bật và thu hút mọi ánh nhìn. Lấy ý tưởng từ thời bao cấp với các tấm bê tông lỗ chắn, các kiến trúc sư đã cách điệu và biến ngôi nhà thành một thiết kế đương đại đẹp mắt. Nhắm hạn chế những ảnh hưởng của thời tiết tại Việt Nam cũng như mang lại sự thông thoáng, gió và ánh sáng cần thiết cho ngôi nhà, các kiến trúc sư đã sử dụng tấm bê tông như một màn che được thiết kế với nhiều khoảng hở ô vuông có trang trí hoa văn tinh tế, sang trọng.
Mái được thiết kế kiểu giả mái thái độc đáo. Ban công các tầng được thiết kế sáng tạo với những ô vuông trồng cây để mang lại sự tươi mát, thoải mái cho căn nhà. Các tầng đều được thiết kế cửa kính sát trần và sàn làm cho không gian trong phòng rộng rãi hơn.

Mẫu nhà phố 4 tầng này được thiết kế với kiểu dáng sang trọng cùng việc bố trí hình khối hợp lý. Với mặt tiền 5m, các kiến trúc sư vẫn thể hiện sự tinh tế qua các họa tiết, hoa văn trang trí theo phong cách tân cổ điển nhưng được giản lược một cách hợp lý nhất. Có thể thấy, kiến trúc tân cổ điển không chỉ được áp dụng cho những căn biệt thự, lâu đài mà còn được ứng dụng trong mẫu nhà phố để mang lại sự thanh lịch đầy cuốn hút. Và, mẫu nhà này là ví dụ điển hình. Tại đây, các kiến trúc sư đã thể hiện sự khéo léo bằng cách lược bỏ những chi tiết rườm rà mà chỉ giữ lại nét tinh tế giúp ngôi nhà thêm sang trọng hơn.
Không chỉ vậy, ngôi nhà này còn ghi ấn tượng bởi sự bố trí công năng hợp lý để tạo dấu ấn khó quên với người xem. Lược bỏ các chi tiết diêm dúa, nặng nề, chú trọng vào các hệ cột với đường gờ nhẹ nhàng giúp ngôi nhà thanh lịch và phù hợp với kiểu kiến trúc tân cổ điển.

Nhà phố 4 tầng 5x10m này hiện đang được rất nhiều gia đình lựa chọn bởi các ưu điểm nổi bật từ tính thẩm mỹ cho đến việc đáp ứng các công năng như khả năng mở rộng tầm nhìn vừa tạo sự thông thoáng vừa tinh tế, sáng tạo trong kiến trúc. Cùng với phong cách hiện đại qua những đường nét gọn gàng, tinh tế dù diện tích hạn chế nhưng ngôi nhà vẫn được yêu thích nhất hiện nay. Phần mặt tiền được thiết kế ấn tượng và thông minh, kết hợp chặt chẽ với tổng thể mang đến sự sáng tạo cho công trình. Mang ý tưởng ngôi nhà phố gần gũi với thiên nhiên qua hệ ban công rộng đón gió kết hợp cùng cây xanh hiệu quả đã giúp mẫu nhà 4 tầng này được hoàn thiện theo một nét ấn tượng đầy cuốn hút.

Ngôi nhà phố 4 tầng này đã được các kiến trúc sư không ngừng sáng tạo và đổi mới để đưa đến nét đẹp ấn tượng, tạo nên tổng thể nổi bật. Việc sử dụng gạch bông thông gió không chủ giúp tăng cường sự thông thoáng mà còn mang lại hiệu ứng trang trí khác biệt đầy mới lạ.

Mẫu nhà phố 4 tầng 5x15m được thiết kế với mái bằng quen thuộc mang đến kiến trúc hiện đại nhất từ trước đến nay. Điểm nổi bật của mẫu nhà này là ban công tầng 2 có khoảng sân nhỏ với cây xanh, nền được ốp từ đá mang lại cảm giác thiên nhiên, thoáng mát. Bên cạnh đó, hệ lan can kính kết hợp với cửa nhôm Xingfa càng tô đậm cho mẫu thiết kế nhà phố 4 tầng diện tích 5x15m này. Đây cũng là giải pháp được sử dụng nhiều trong thiết kế nhà phố hiện đại ngày nay bởi nó mang lại diện mạo mới mẻ cho ngôi nhà.
Điểm ấn tượng của mẫu nhà này là việc sử dụng các khối hình học với đường nét rõ ràng. Nếu lạm dụng điều này quá sẽ khiến ngôi nhà khô cứng, vì thế các kiến trúc sư đã khéo léo kết hợp với cửa kính trong suốt để ngôi nhà trở nên mềm mại hơn.

Ngôi nhà phố 4 tầng trên được thiết kế với ý tưởng nối liền thiên nhiên trong sự hiện đại của phương Tây. Những mảng xanh được bố trí phủ từ tầng 1 lên tầng 4, giúp thanh lọc không khí cũng như mang lại sự thoáng mát, xua tan cảm giác bức bối. Mẫu nhà với thiết kế hiện đại và sang trọng nên những vật liệu được sử dụng trong công trình này có chất lượng cao như gồm kính cường lực, gỗ gỗ conwood, sơn dùng cho ngoại thất ngoại nhập
Bên cạnh đó, điểm nhấn ở đây chính là sự phân bố khối nhà độc đáo, những thanh gỗ ốp được hoàn thiện với những khối lùi vào trong, giúp bảo vệ nét đẹp của ngôi nhà theo thời gian.

Những thanh lam gỗ chính là điểm nhấn ấn tượng của ngôi nhà đã được thay bằng những thanh sắt sơn màu, giúp gia chủ tiết kiếm được một khoản chi phí. Sự thoải mái khi mở rộng không gian, thêm vào nhiều cây xanh trang trí ở ban công chính là điểm cộng tăng sự hài lòng với những gia chủ có kinh phí hạn chế và thích đơn giản.

Ngôi nhà phố 4 tầng được thiết kế hiện đại, xen lẫn chút cổ điển này chính là mẫu thiết kế mới lạ với nhiều gia chủ. Ngôi nhà được thiết kế với yêu cầu cao về tính đơn giản nhưng sang trọng, bạn có thể nhận ra điều đó qua sự xuyên suốt từ dưới lên trên, mặt tiền ngôi nhà đều được ốp đá sáng bóng, thêm điểm nhấn của những thanh lam sắt và sê no ở mái. Có thể thấy, đẳng cấp đã được thể hiện qua việc lựa chọn vật liệu hấp dấn ánh mắt người nhìn đặc biệt vào lúc trời nắng, đồng thời nét đẹp này sẽ được bền vững theo thời gian mà không hề bị lỗi thời.

Trên đây là một số mẫu nhà phố 4 tầng 5x15m mà Xây dựng số muốn gửi đến các bạn. Hi vọng những thông tin này sẽ giúp ích cho việc lựa chọn thiết kế ngôi nhà tương lai của bạn. Nếu như bạn đang muốn tìm nhà thầu thực hiện điều đó, hãy liên hệ với chúng tôi. Xây dựng số là sàn giao dịch thương mại điện tử với hàng ngàn nhà thầu, công ty ty xây dựng có hồ sơ minh bạch, uy tín sẽ giúp bạn nhanh chóng tìm được đối tác thiết kế, thi công và quản lý xây dựng chuyên nghiệp.
Xem thêm


































