Chỉ có 4m mặt tiền, làm thế nào để sở hữu một ngôi nhà ấn tượng là câu hỏi mà rất nhiều gia chủ quan tâm hiện nay. Hãy cùng theo dõi bài viết để chiêm ngưỡng mẫu nhà đẹp 2 tầng 4m với thiết kế đơn giản nhưng vô cùng ấn tượng, chi phí thấp và khiến bất cứ gia chủ nào cũng muốn sở hữu ngay.
Mặt bằng thiết kế thông minh, lựa chọn nội thất nhỏ gọn
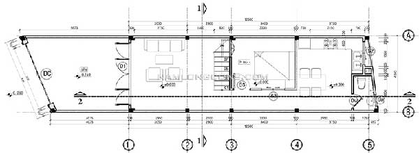
Một mẫu nhà 2 tầng 4m nhận được nhiều sự quan tâm và chú ý của gia chủ bắt đầu từ việc sở hữu một bản thiết kế mặt bằng ấn tượng như sau:

Mặt bằng thiết kế tầng 1 sẽ bao gồm: 1 phòng khách, 1 phòng ngủ, 1 bếp + ăn, sân trước. Kiến trúc sư bố trí phần sân trước khá rộng rãi với nhiều tiện ích như: là khoảng sân nhỏ trước nhà để con trẻ trong gia đình có sân chơi, là diện tích vừa đủ để gia đình bố trí cây xanh trước nhà và để được phương tiện giao thông của thành viên ngay trong chính ngôi nhà của mình. Bao quanh sân sẽ được được bao bọc bởi hệ thống cổng rào chắc chắn. Sau khoảng sân phía trước sẽ đến khu vực phòng khách bên trong nhà, có phối cảnh 3D bên dưới đây.

Có thể nhận ra thiết kế quen thuộc sử dụng trong mẫu nhà hiện nay đó là hệ thống cửa kính khung nhôm, bên trong bố trí hệ thống rèm cửa với lớp voan mỏng rồi mới đến lớp vải dày bên trong. Với thiết kế này giúp cho không gian trong nhà đón nhận được ánh sáng vào ban ngày với lượng nhiệt vừa đủ cũng như đảm bảo độ riêng tư cho gia chủ bên trong nhà. Bộ bàn ghế sofa với thiết kế nhỏ, gọn tối giản với tone trắng, điểm nhấn bàn đen, gối vàng ấn tượng. Khu vực tường được dán giấy cùng tranh, và thảm trải sàn, thêm một chiếc bàn nhỏ với bình hoa nhỏ xinh là góc nhỏ xinh ấn tượng cho không gian phòng khách. Mang trong mình phong cách hiện đại kiến trúc sư sử dụng đèn chùm với thiết kế lạ mắt, độc đáo với độ dài ngắn khác nhau thu hút ánh nhìn của bị khách đến thăm nhà.
Khu vực cầu thang được bố trí kế tiếp giống như sự ngăn cách không gian phòng khách với không gian phía sau nhà. Cầu thang sử dụng lan can bằng kính cường lực vô cùng chắc chắn cùng với sự thông thoáng cho căn nhà. Ngay sau khu vực cầu thang theo bố trí mặt bằng phía trên là khu vực phòng ngủ. Cuối cùng là không gian bếp + ăn và phòng vệ sinh, tránh ám mùi lên không gian phía trên.

Phối cảnh 3D cho khu vực bếp + ăn của mẫu nhà 2 tầng lựa chọn nội thất nhỏ gọn, đủ dùng cho gia chủ sử dụng. Mặt bàn bếp ốp gạch tối màu chắc chắn, dễ dàng vệ sinh. Khu vực bàn ăn với thiết kế nhỏ gọn, phần chân ghế, chân bàn nhỏ không chiếm nhiều diện tích của căn nhà. Tại đây kiến trúc sư đặt một ô cửa sổ nhỏ để lấy sáng vừa để thông mùi không ảnh hưởng đến khu vực bên trên nhà.

Không gian ngủ ở mặt bằng tầng 1 được phối cảnh 3D với tone màu trắng chủ đạo. Nhìn diện tích không gian này khá nhỏ nên kiến trúc sư lựa chọn đồ nội thất nhỏ gọn, đủ dùng cho gia chủ sử dụng bao gồm: giường, tủ đầu giường, bàn trang điểm. Điểm nhấn cho cả căn phòng là tường sử dụng giấy dán tường, bức tranh trắng đen hoa hồng, thảm lông trải dưới sàn nhà, bức tranh phong cảnh treo tường. Để tránh không gian bí bách, kiến trúc sư đặt cửa sổ để mang đến tráo đổi không khí cho phòng.

Mặt bằng thiết kế khu vực tầng 2 của mẫu nhà 2 tầng 4m bao gồm: 1 phòng thờ, 1 phòng ngủ, 1 nhà vệ sinh, 1 khu vực sân phơi đồ. Phòng thờ được đặt ở vị trí mặt tiền của ngôi nhà để đảm bảo phong thủy theo quan niệm của người Á Đông. Tiếp đến là khu vực cầu thang, sân phơi đồ và phòng ngủ cùng với nhà vệ sinh được bố trí bên trong để đảm bảo độ riêng tư cho cá nhân người sử dụng.

Không gian phòng thờ được phối cảnh 3D với thiết kế đơn giản, không cầu kỳ. Sử dụng chất liệu gỗ kết hợp sơn be mang đến không gian sang trọng cho tổng thể thiết kế.

Không gian ngủ trên tầng 2 được phối cảnh 3D với tone màu trắng chủ đạo. Phần tường với nét hoa văn làm điểm nhấn, đầu giường bằng da gấn tượng. Cũng giống như phòng ngủ dưới tầng 1, kiến truc sư lựa chọn đồ nội thất nhỏ gọn, thông minh với giường, tủ để đầu giường, bàn trang điểm, tủ quần áo. Điểm nhấn là thảm trải lông dưới, cùng chậu cây cảnh mang đến không gian xanh. Bố trí thêm ô cửa lấy sáng, lưu thông không khí phía trong nhà.
Top mẫu nhà 2 tầng 4m cực đơn giản, chi phí thấp nhưng vô cùng ấn tượng

Một trong top thiết kế dành cho mẫu nhà 2 tầng 4m sở hữu mặt tiền tối giản nhưng đạt độ thẩm mỹ cao. Mặt tiền tầng 1 được ốp gạch trắng hoa cao cấp kết hợp ô cửa kính khung nhôm sơn trắng mang đậm dấu ấn hiện đại. Hai bên cửa là bố trí hai chậu cây nhỏ được ốp đá vô cùng chắc chắn. Ở đây kiến trúc sư sử dụng hệ thống bậc tam cấp giúp cho ngôi nền ngôi nhà trở nên cao hơn.
Khu vực mặt tiền tầng 2 được thiết kế nhô ra so với khu vực tầng 1 của ngôi nhà, phần dư ra này được bố trí thành khu vực ban công với lan can bằng sắt với thiết kế đơn giản. Tại đây đặt thêm chậu cây cảnh nhỏ tại không gian. Mặt tiền tầng 2 cũng được chia làm hai phần với một bên là cửa sổ khung nhôm trắng, sơn xanh bên ngoài nhấn mạnh vào cửa, phần chân tường ốp đá nhám. Phần còn lại gia chủ bố trí cửa chính dẫn ra ban công.

Có một thiết kế khá giống mẫu nhà 2 tầng 4m phía trên nhưng mẫu thiết kế tiếp theo mang đến sự sang trọng cho tổng thể. Mặt tiền tầng 1 được ốp đá granit vàng bóng, kết hợp với đèn vàng đánh điểm hắt xuống càng nổi bật hơn, mang vẻ đẹp sự sang trọng, vô cùng nổi bật so với căn nhà xung quanh. Điểm nhấn của mặt tiền tầng 1 nằm ở khung cửa kính bốn cánh với phần khung đen cực kỳ ấn tượng, nổi bật. Lên đến khu vực tầng 2, với phần diện tích nhô ra đằng trước chính là ban công. Lan can ban công sử dụng chất liệu bằng kính cường lực chắn chắn, dễ dàng vệ sinh. Vị trí này đặt thêm cây cảnh để tạo không gian xanh cho ngôi nhà. Ngoài chậu cây cảnh rời, kiến trúc sư bố trí thêm chậu cây gắn liền với tường tăng thêm không gian xanh cho mặt tiền.

Với thiết kế hiện nay thì mẫu nhà 2 tầng 4m có tầng tum được rất nhiều gia chủ quan tâm hiện nay bởi lẽ đây là thiết kế đáp ứng được không gian xanh trong ngôi nhà hiện nay, đồng thời mang đến phần diện tích cực kỳ tiện ích cho gia chủ sử dụng như một không gian để tự thư giãn, hay tụ tập bạn bè mỗi dịp cuối tuần. Thiết kế có tum hiện nay được xem là top thiết kế mà bất cứ gia chủ nào cũng muốn sở hữu hiện nay.

Điển hình dành mẫu nhà 2 tầng 4m có tầng tum bên trên đây là top thiết kế được rất nhiều gia chủ lựa chọn cho ngôi nhà tương lai của mình. Mặt tiền tầng 1 được ốp đá sang trọng, nổi bật lên là khung cửa kính khung sắt sơn đen ấn tượng. Lên trên mặt tiền tầng 2 kiến trúc sư ốp giả gỗ kết hợp với tăng tính sang trọng cho ngôi nhà. Đặc biệt phần cửa sổ với kính tràn hai bề mặt mang đến không gian thông thoáng, rộng rãi ở bên trong. Bên ngoài kiến trúc sư bố trí ban công gắn liền sơn trắng, thêm cây xanh tạo không gian. Ban công lan can tầng 2 nhỏ bao trọng phần cửa kính, bố trí thêm cây xanh nhỏ. Lên đến khu vực tầng 3 là tầng tum với mặt tiền được bố trí khá giống tầng 2. Khu vực tầng tum sử dụng mái che giống như lam che nắng để hạn chế lượng nhiệt vào căn nhà.

Thêm mẫu nhà 2 tầng 4m với tầng tum để gia chủ tham khảo cho ngôi nhà tương lai của mình. Với thiết kế này mẫu nhà trở nên sang trọng nhờ vào việc sơn giả gỗ ở khu vực trần nhà. Tại đây sử dụng hiệu ứng ánh sáng để mang đến cảm giác ấm áp, nổi bật. Ngôi nhà này còn được chuyên gia đánh gia là thân thiện bởi lẽ cây xanh gần như bao phủ tới từng góc ngách trong không gian nhà. Cùng với việc sử dụng chất liệu kính mang đến ngôi nhà tràn ngập ánh sáng không gian bên trong.

Ngoài phong cách kiến trúc hiện đại thì mẫu nhà 2 tầng 4m hoàn toàn sử dụng phong cách kiến trúc tân cổ điển như trên. Với phong cách này ngôi nhà trở nên đồ sộ hơn so với diện tích thực tế cùng nét kiến trúc vượt trời gian. Đây cũng là một trong thiết kế luôn lọt top thiết kế được quan tâm và yêu thích nhất hiện nay.

Tân cổ điển thể hiện trong mẫu nhà 2 tầng 4m này là cột trụ tròng kết hợp mái vòm ở tầng 2. Ô cửa kính tại mặt tiền tầng hai tiêu biểu cho thiết kế theo phong cách này. Phần mái Thái giật cấp được ốp đá nhám kết hợp đường chỉ phào mang lại điểm nhấn cho không gian nhà. Lan can với nét hoa văn cầu kỳ thu hút, mang đậm dấu ấn cổ điển cho ngôi nhà. Cuối cùng, chậu cây nhỏ, ốp giả gạch ven theo khu vực cửa sổ là điểm nhấn thiên nhiên.

Hoặc với thiết kế tiếp theo vẫn là tân cổ điển nhưng mang lại cảm nhận sự trang nhã, hiện đại. Ban công tầng 2 sử dụng chất liệu kính cường lực chắc chắn thay cho phần khung sắt cầu kỳ. Không sử dụng hệ thống cột trụ với mái vòm mà chỉ sử dụng mái Thái giật cấp kết hợp kiến trúc mái đơn giản với nét chỉ phào thu hút. Thêm phần điểm nhấn cho phần tường làm nhám bao quanh khung cửa sổ tầng 2 và ốp đá granit khu vực tầng 1.





























