Với các cặp vợ chồng trẻ, gia đình ít người thì việc lựa chọn mẫu nhà phố 2 tầng là rất phù hợp. So với những nhà 1 tầng thì mẫu nhà phố 2 tầng vẫn đảm bảo được mức chi phí tiết kiệm, đồng thời mở rộng diện tích thêm 1 tầng sẽ mang đến nhiều không gian với công năng hữu ích hơn. Dưới đây, Xây Dựng Số xin gửi đến các bạn những mẫu nhà phố 2 tầng 8x10m đẹp, hiện đại lại có chi phí tiết kiệm.
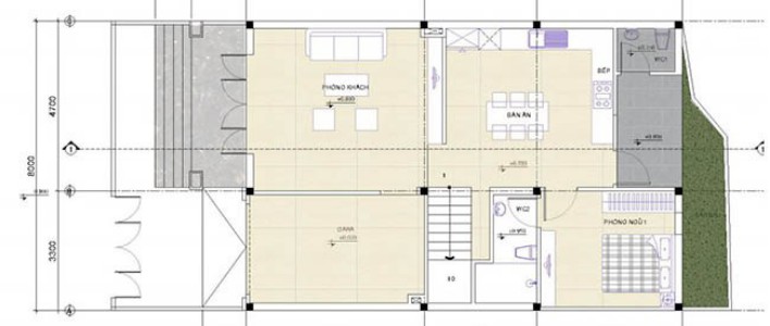
1. Mặt bằng công năng sử dụng nhà phố 2 tầng hiện đại 8×10 đẹp

Tổng thể, mặt bằng ngôi nhà và không gian sân chơi thì thiết kế còn được bố trí một hồ nước điều hòa, đây là không gian mang đến sự thoải mái, thư thái dành cho gia chủ. Mặt bằng tầng 1 bao gồm gara, phòng khách, tiền sảnh, phòng ngủ, nhà vệ sinh, bếp và bàn ăn. Bước vào ngôi nhà là không gian phòng khách, đối diện là không gian bếp và bên cạnh là phòng ngủ với đầy đủ tiện nghi.

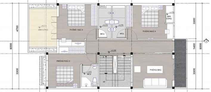
Tầng 2 bao gồm 3 phòng ngủ, mỗi phòng ngủ đều có nhà vệ sinh riêng khép kín để phục vụ nhu cầu sinh hoạt của từng thành viên, ban công thoáng mát hướng ra ngoài. Bên cạnh đó, còn có phòng sinh hoạt chung dành cho gia đình. Phòng thờ được đặt phía ngoài ban công tầng 2, quay ra mặt tiền hợp hướng với phong thủ. Tiếp đến là không gian riêng tư của phòng ngủ, toàn bộ không gian phòng ngủ đều được bố trí giường đôi, màu sắc tùy theo sở thích của từng người, bàn học, bàn làm việc được bố trí gọn gàng.
2. Gợi ý thiết kế nội thất cho mẫu nhà phố 2 tầng 8x10m

Nhìn vào phối cảnh chung được thiết kế, bố trí hài hòa và ăn ý. Phòng khách hiện đại cùng với bộ bàn ghế sofa kết hợp khung kim loại mang lại cảm giác sang trọng và thông thoáng. Ngoài ra, phòng khách còn được trang trí thêm những chậu cây xanh nhỏ xinh. Cầu thang được thiết kế thanh mảnh cùng với lan can tay vịn được cách điệu độc đáo giúp cầu thang mềm mại.

Phòng ăn được thiết kế trẻ trung, năng động với gam màu vàng nổi bật cùng màu xanh dịu nhẹ. Bộ bàn ghế ăn được làm từ sắt chắc chắn kết hợp màu sắc tinh tế, độc đáo. Bên cạnh đó, việc bố trí hợp lý cùng hệ thống bếp nấu hiện đại còn làm tăng thêm không gian mỹ quan cho nhà bếp, trông gọn gàng, đẹp mắt hơn.

Phòng ngủ của bố mẹ được thiết kế rộng rãi với màu sắc ấm áp. Phần nội thất cũng được sắp xếp gọn gàng, mang đến sự thông thoáng cho gia chủ.

Phòng ngủ cả các con được thiết kế vời màu sắc sinh động, phù hợp với sở thích và lứa tuổi của từng bé. Nội thất cũng được bố trí gọn gàng, ngăn nắp giúp bé có không gian nghỉ ngơi cũng như học tập, vui chơi thoải mái. Có thể thấy, các kiến trúc sư đã chăm chút tỉ mỉ chi tiết nội thất cũng như màu sắc tổng thể của căn nhà, để mỗi phòng mang phong cách riêng nhưng vẫn giữ được sự đồng nhất với tổng thể căn nhà.
3. Cách tính chi phí xây nhà 2 tầng diện tích 8x10m
Khi xây dựng nhà ở, bên cạnh việc lựa chọn mẫu thiết kế phù hợp thì chi phí luôn là vấn đề được chủ đầu tư quan tâm hàng đầu. Hiểu được lo lắng và băn khoăn đó, Xây Dựng Số sẽ đưa ra chi phí dự trù cho mẫu nhà phố 2 tầng 8x10m để chủ đầu tư có thể tham khảo và lựa chọn. Qua đó, sẽ giúp chủ đầu tư có thể dự toán được chi phí hợp lý khi xây dựng nhà cho mình.

3.1 Cách tính diện tích xây nhà phố 2 tầng
Để có thể tính được đơn giá xây nhà 2 tầng một cách chính xác, trước hết bạn phải tính được diện tích xây nhà là bao nhiêu?
Theo đó, tổng diện tích xây nhà 2 tầng = tổng diện tích sàn tầng 1 + tổng diện tích sàn tầng 2. Trong trường hợp nhà 2 tầng bạn muốn xây yêu cầu mái thái, mái chéo thì sẽ có cách tính diện tích cụ thể mái cho từng loại.
3.2 Đơn giá thi công nhà 2 tầng khoảng bao nhiêu?
Với đơn giá thi công trọn gói nhân công, không bao gồm nguyên vật liệu xây dựng (chủ nhà lo toàn bộ nguyên vật liệu) tính theo m2:
+ Đơn giá xây dựng thường có mức trung bình từ 1.100.000 – 1.500.000đ/m2
+ Đơn giá xây dựng thi công này chưa bao gồm phí VAT
+ Đơn giá xây dựng càng giảm khi diện tích xây dựng càng lớn
+ Đơn giá thi công cụ thể sẽ được báo giá chính xác khi có đầy đủ thông tin về diện tích, bản vẽ thiết kế, chất lượng vật tư xây dựng, ví trí xây dựng...

Với đơn giá thi công trọn gói hoàn thiện bao gồm nhân công và nguyên vật liệu (nhà thầu sẽ lo trọn gói từ A-Z) tính theo m2:
+ Đơn giá xây dựng nhà trọn gói sẽ dao động từ từ 4.500.000 – 6.500.000đ/m2
+ Đơn giá xây dựng này chưa bao gồm phí VAT
+ Đơn giá xây dựng càng giảm nếu diện tích xây dựng càng lớn
+ Mức giá thi công trọộngí sẽ được báo giá phù hợp với từng mẫu nhà 2 tầng khi có số đo về diện tích, bản vẽ thiết kế, chất lượng vật liệu xây dựng, ví trí xây dựng...
Lưu ý: Cách tính diện tích xây dựng trên đây chưa bao gồm phần tường rào, cổng ngõ. Đây chỉ là phần xây dựng nhà 2 tầng cơ bản.
3.3 Tư vấn cách tính giá xây nhà 2 tầng
Hiện nay, giá xây nhà 2 tầng sẽ được tính như sau: Giá xây nhà 2 tầng = tổng diện tích xây dựng x đơn giá hoàn thiện. Trong trường hợp, nhà 2 tầng yêu cầu đổ mái thái, mái chéo thì diện tích mái x đơn giá thi công x1,5 (hệ số đơn giá thi công phần mái).
4. Một số mẫu nhà phố 2 tầng 8x10m đẹp mê hồn

Điểm thu hút của mẫu nhà phố 2 tầng kích thước 8x10m này chính là tông màu trắng chủ đạo. Ngôi nhà mang đến không gian sống nhẹ nhàng, bao quang là hàng rào vững chắc, đảm bảo an ninh hiệu quả. Cửa sắt được sơn không gỉ, giúp làm tăng tuổi thọ của căn nhà.
Tại tầng 2, các kiến trúc sư đã sử dụng gạch bông nhằm mang lại khoảng thở, giúp không khí được luân chuyển. Lan can ban công sử dụng vật liệu kính trong suốt, vừa đảm bảo an toàn, vừa mang tinh thẩm mỹ cao cho ngôi nhà, giúp gia chủ có thể bao quát toàn bộ căn nhà một cách dễ dàng.

Với thiết kế hệ mái thái xanh dương, phân bổ trước và sau giúp phân tán ánh sáng nên ngôi nhà phố 2 tầng này không bị hắt nắng. Mẫu nhà sử dụng hầu hết toàn bộ diện tích cho kiến trúc khuôn viên nên không có khoảng sân phía trước. Mặt tiền là bậc tam cấp dẫn vào cửa kính sang trọng, với kết cấu 2 tầng gồm các khối hộp trước và sau tạo thành 2 gian.
Phần bên chính diện được tận dùng thành nhà xe với mảng gạch nung pha chất mộc ốp tường nổi bật trong tổng thể hiện đại. Tầng 2 có ban công rộng vừa phải để bố trí cây xanh giúp đem lại không khí trong lành cho không gian này.

Đây là mẫu nhà phố 2 tầng được thiết kế với đầy đủ công năng, hài hòa giữa các không gian sử dụng. Khi nhìn chính diện, ngôi nhà toát lên sự nhẹ nhàng và thanh thoát nhờ thiết kế mái dốc. Bên cạnh đó là sự hài hòa giữa màu sắc và hình khối. Phía trước là bậc tam cấp giúp tăng chiều cao cho ngôi nhà cộng với khối chân đế chắc chắn được ốp bằng đá rối. Điều này không những mang lại sự chắc chắn mà còn tạo cảm giác thoải mái, nhẹ nhàng cho ngôi nhà. Cửa kính khung gỗ mang lại sự sang tọng cho không gian cũng như sự thông thoáng, tận dụng tối đa ánh sáng tự nhiên. Phần tường chính sử dụng tông màu ghi pha chút hồng tạo ra sự liên kết màu sắc hài hòa.

Mẫu nhà phố 2 tầng 8x10m mái vuông trên đây cũng là gợi ý hoàn hảo cho nhiều gia chủ. Các đường nét khỏe khoắn kết hợp với những mảng tường giật cấp, thụt lùi tạo nên sự độc đáo cho ngôi nhà. Cửa kính rộng được thiết kế đan xen hợp lý nhằm tăng cường ánh sáng hiệu quả. Tầng 2 được thiết kế bởi những đường kẻ sọc bê tông che nắng tốt. Mái bằng các gia chủ có thể tận dụng làm sân thượng, bố trí thêm những chậu cây xanh giúp ngôi nhà thoáng mát hơn.

Nhìn vào mặt tiền, mẫu nhà phố 2 tầng trên với phong cách tân cổ điển, khỏe khoắn, tinh tế nhờ vào những đường chủ phào đơn giản tông màu trắng nhẹ nhàng. Các hệ trục cột vững chãi làm cho ngôi nhà trở nên chắc chắn hơn. Hệ cửa kính cường lực cao cấp kết hợp với khung cửa gỗ giúp ngôi nhà đón được lượng ánh sáng tự nhiên tốt nhất. Cổng chính được thiết kế bằng gỗ nhẹ nhàng với tay nắm kim loại chắc chắn, bền bỉ, chống gỉ sét được trang trí những họa tiết đơn giản nhưng vẫn giữ được sự hài hòa với màu sắc bên ngoài mặt tiền. Hai chiếc đèn được bố trí cùng mái che phía trên giúp cho ngôi nhà kín đáo, an toàn và ấm áp hơn.

Với những gia đình ưa thích nét đẹp truyền thống thì có thể tham khảo mẫu nhà phố 2 tầng đẹp này. Ngôi nhà sử dụng mái Nhật cùng với cách trang trí truyền thống tạo nên hình ảnh quen thuộc, đáp ứng hu thẩm mỹ của những gia chủ thích sự truyền thống và sang trọng. Toàn bộ ngôi nhà sử dụng sơn màu trắng, thể hiện rõ các chi tiết trang trí nổi trên tường, tương phản với màu lan can và mái nhà. Bên cạnh đó, việc bố trí lam trên sân thượng cũng là hình thức trang trí quen thuộc. Ngoài công trình chính, phần tường rào cũng được đầu tư với hình thức bê tông kết hợp khung sắt trang trí. Điều này tạo nên nét đẹp hài hòa, sang trọng.

Có thể khẳng định rằng, nhà phố 2 tầng 8x10m là sự lựa chọn phổ biến của nhiều gia chủ hiện nay. Để có được ngôi nhà đẹp, đầy đủ tiện nghi không phải là điều dễ dàng. Do đó, bạn cần phải lựa chọn đơn vị thi công, xây dựng uy tín và chuyên nghiệp để mang đến không gian sống đùng với mức chi phí bạn bỏ ra. Xây Dựng Số, hi vọng rằng với những mẫu nhà phố 2 tầng 8x10m trên đây sẽ giúp bạn có thêm ý tưởng và phương án thiết kế phù hợp cho ngôi nhà tương lai của mình.
Xem thêm


































