Một loại hình xây dựng nhà ở được thừa hưởng và cộng hưởng bởi 2 vẻ đẹp sang trọng và cổ kính mang đến giá trị cũng như vẻ đẹp hiện đại mới mẻ cho những ông chủ đầu tư khó tính nhất trên cả nước. Đó chính là mẫu nhà 3 tầng mái thái tân cổ điển đẹp nhất năm 2021. Mời các bạn cùng chúng tôi thăm quan về những hình ảnh đẹp của mẫu nhà này trên màn hình nhỏ tại nhà nhé.
Tổng hợp những mẫu nhà 3 tầng mái thái tân cổ điển
Kiến trúc nhà 3 tầng mái thái tân cổ điển này thể hiện sự đơn giản trong hình khối không gian và tổ chức mặt tiền với những nét khỏe khoắn, phóng thoáng và không đề cao hình thức trang trí. Ngoài ra hình thức xây dựng này còn lấy nghệ thuật phối trí màu sắc làm điểm nhấn và diễn đạt cho ý tưởng công trình nhà ở 3 tầng mái thái tân cổ điển. Mời các bạn cùng chiêm ngưỡng vẻ đẹp tuyệt vời của mẫu nhà tân cổ điển mái thái đỏ sang trọng.

Hình ảnh mẫu nhà 3 tầng mái thái đỏ với phong cách thiết kế tân cổ điển là sự kết hợp của phong cách hiện đại kết hợp cùng cổ điển mang đến vẻ đẹp sang trọng và độc đáo cho mẫu nhà 3 tầng này. Nét đẹp kết hợp này tạo nên vẻ đẹp mới mẻ cho kiến trúc nhà Việt Nam. Bên cạnh đạt giá trị thẩm mỹ cao và làm tăng nét duyên dáng, trẻ trung cho mặt tiền, nhà 3 tầng mái thái tân cổ điển còn thể hiện vẻ đẹp hiện đại bởi sự bố trí khéo léo các hệ lam và phân tán cân bằng lưu thông nhẹ nhàng các dòng khí tốt hướng vào mặt tiền ở các tầng, đón trọn những cơn gió tự nhiên và ánh nắng tự nhiên của trời đến với không gian nhà, giúp cho không gian nhà thêm sáng và trong lành hơn.

Nghệ thuật phối trí màu sắc trang nhã, mạnh mẽ và nồng ấm cũng góp phần làm cho mẫu nhà 3 tầng mái thái tân cổ điển thân thiện hơn trong thị giác của người qua đường, đón nhận sự ưu nhìn và làm tăng thêm giá trị hiện đại cao sang theo thời gian.

Tại không gian mặt tiền nhà kiến trúc sư tăng cường hệ thống cây xanh bao quanh, ngoài chức năng cản gió thì cây xanh còn giúp thanh lọc không khí và vận chuyển các dòng khí tự nhiên trong lành tươi mới hàng ngày vào các tầng lầu và căn phòng theo lối cầu thang. Khoảng cây xanh trước mặt tiền mang đến cho con người ta cảm giác mát mẻ nhẹ nhàng, tinh thần sảng khoái và phấn đấu trong công việc trước khung cảnh tươi đẹp.

Lựa chọn tông màu phù hợp cho mẫu thiết kế kiến trúc nhà là việc vô cùng quan trọng và cần có sự tìm hiểu kĩ càng. Chọn màu cho ngôi nhà được ví như việc bạn khoác lên mình một bộ quần áo mới nó làm bạn khác hẳn nếu mầu và mẫu quần áo đó phù hợp với dáng vóc và thân hình của bạn. Còn nếu như mầu quần áo đó không phù hợp thì quả là một điều tồi tệ với bạn và thị giác của người ngắm nhìn nó. Ở đây ngôi nhà cũng vậy. Việc chọn màu sơn phù hợp như đang tôn nên vẻ đẹp cho ngôi nhà và làm nó toát hết những giá trị đích thực của ngôi nhà, giúp cho người nhìn không khỏi trầm trồ và ấn tượng hơn trong mắt mọi người.
Phối cảnh bản vẽ nhà 3 tầng mái thái tân cổ điển
Một ngôi nhà được coi là đẹp và sang trọng không chỉ thể hiện hình tượng của ngôi nhà không mà còn thể hiện phối cảnh của ngôi nhà về các hiện tượng vật xung quanh. Mang đến nét đẹp khái quát tự nhiên nhất cho ngôi nhà.

Hơn thế nữa là mẫu nhà 3 tầng mái thái tân cổ điển ngày nay rất chú trọng việc thiết kế mở rộng không gian sống và tạo không gian thoáng mát cho căn nhà là điều mà các chủ đầu tư luôn hướng tới trong mỗi công trình. Với mẫu nhà tân cổ điển này rất phù hợp với những tiêu chí trên và đáp ứng đủ nhu cầu về công năng cũng như tính thẩm mỹ của nhà ở dành cho chủ đầu tư.

Bản vẽ mặt bằng tầng 1.
Với hình ảnh phối cảnh bản vẽ về mẫu nhà 3 tầng tân cổ điển mái thái trên, chúng ta thấy sự kết hợp giữa gam màu mang đến cho ngôi nhà một diện mạo mới mẻ, hiện đại nhưng vô cùng truyền thống cổ điển cũng không kém phần sang trọng. Bởi lẽ bản thân màu trắng đã mang đến nét đẹp tự nhiên cho ngôi nhà và vẻ đẹp thanh lịch tươi trẻ lại dễ dàng kết hợp với các gam màu khác. Màu xanh dương của mái thái tạo nên vẻ nhẹ nhàng mát mắt, màu nâu tự nhiên của cửa gỗ mang đến vẻ đẹp gần gũi mộc mạc cho tổng thể ngôi nhà tân cổ điển mái thái. Ngoài ra, các mảng tường ốp gạch thẻ màu ghi và màu nâu đỏ giúp bức tường thành của biệt thự thêm tinh tế và sinh động không bị nhàm chán.

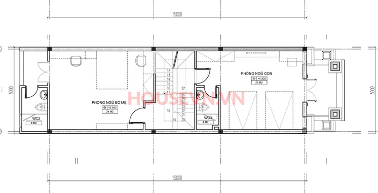
Bản vẽ mặt bằng tầng 2.
Việc phối màu cho bản vẽ là điều rất đặc biệt bởi nếu phối màu đẹp thì đây được coi là một tác phẩm nghệ thuật còn nếu phối màu không phù hợp không đẹp thì được coi là một phế phẩm. Vậy bạn muốn ngôi nhà của mình được gọi là gì? Tất nhiên với ai cũng vậy đều mong muốn có một ngôi nhà đẹp hoàn hảo về thẩm mỹ cùng chức năng phù hợp cho các căn phòng.

Bản vẽ mặt bằng tầng 3.
Ngôi nhà có diện tích rộng đucợ thiết kế lắp đặt hai cánh cổng ra vào để tiện dụng cho việc di chuyển. Màu sắc cổng mang đến vẻ đẹp cổ điển cùng màu vàng đồng thêm giá trị bản sắc dân tộc hơn. Hệ thống cửa của căn nhà đều được thiết kế vừ lắp đặt trên khung gỗ kính pano tạo độ thoáng cho căn phòng và mang đến ánh sáng tự nhiên cho ngôi nhà.
Mặt bằng nội thất nhà 3 tầng mái thái tân cổ điển
Khi xây dựng ngôi nhà 3 tầng mái thái tân cổ điển một trong những vấn đề được quan tâm nhiều nhất đó là bản vẽ mặt bằng nội thất, đây là mốc rất quan trọng để khách hàng có thể nhìn thấy được sơ bộ về ngôi nhà tương lai của mình.
Trên đây là hình ảnh về mặt bằng tổng thể nội thất 3 tầng của ngôi nhà mái thái tân cổ điển. Sự bố trí công năng của các phòng theo khoa học mang đến hài hòa cho không gian nhà và thể hiện được trình độ thấu nhìn của chủ đầu tư. Mặt bằng tầng đều có kí hiệu và hình ảnh rõ nét chân thực con số chi tiết giúp cho bạn có thể tự nhìn nhận và thiết kế theo cho ngôi nhà của mình. Diện tích căn phòng không nhỏ cũng không lớn nhưng nhà thiết kế kiến trúc đã khéo léo tận dụng hết khoảng không để thiết kế căn phòng với diện tích sử dụng phù hợp cho ngôi nhà.

Vẻ đẹp ngoại thất tân cổ điển cổ kính đi cùng với nội thất tân cổ điển sang trọng bởi tông màu trầm. Một tông màu mang đến nét đẹp hoàn hảo cho căn phòng và co gia chủ. Nét đẹp cổ kính, điêu luyện cùng kĩ xảo trong thiết kế từng đường nét hoa văn của bộ ghế. Đây là mẫu thiết kế cho những chủ đầu tư đi tìm sự hoàn hảo và yếu thích vẻ đẹp cổ điển này. Mẫu đèn chùm trần nhà thêm ánh sáng lung linh cho căn phòng, chắc hẳn thời gian buổi tối bạn không khỏi ngạc nhiên bởi ánh sáng từ đèm chùm mang đến cho bạn và không gian ngôi nhà.
Phòng khách của mẫu nhà 3 tầng tân cổ điển mái thái tạo nên cảm giác rộng rãi, thoải mái nồng ấm nhờ vào nghệ thuật phối trí màu sắc tương đồng giữa màu sơn tường và màu gạch men cao cấp cùng màu rèm cửa, tại không gian phòng khách màu trắng sữa là gam màu được nhiều chủ đầu tư yêu thích bởi nó tạo cho thị giác một cảm giác rộng rãi, thoáng đãng sang trọng. Mẫu nội thất phòng khách khiến cho bạn hoàn toàn tự tin khi có khách đến chơi nhà và khẳng định đẳng cấp của mình trong căn nhà.

Giúp các bạn tìm được những nhà thầu uy tín và chất lượng hay những mẫu nhà hiện đại mang vẻ đẹp sang trọng cùng kiểu thiết kế độc đáo, mời các bạn cùng đến tham quan sàn xây dựng số của chúng tôi. Để được tư vấn và hỗ trợ miễn phí cho các công trình xây dựng. Tại trang web https://xaydungso.vn/ đã đăng tải những thông tin liên quan đến xây dựng cùng hình ảnh rõ nét nhất về các công trình xây dựng có mặt trên khắp 54 tỉnh thành của nước Việt Nam.
Qua những thông tin chúng tôi vừa chia sẻ về mẫu nhà 3 tầng mái thái tân cổ điển trên bài. Hi vọng những kiến thức đó đã giúp phần nào cho các bạn trong lĩnh vực xây dựng tổ ấm cho gia đình mình. Chúc các bạn luôn có niềm vui trong cuộc sống và trong tương lai sẽ sở hữu một ngôi nhà như mơ ước.
Xem thêm tin:


































