Với diện tích đất ngày càng bị thu hẹp như hiện nay thì những mẫu nhà phố cao đang trở thành lựa chọn hàng đầu cho các gia chủ. Tuy diện tích căn nhà nhỏ nhưng vẫn đảm bảo được tính thẩm mỹ cao và công năng sử dụng tối đa cho gia đình chủ nhà. Hãy cùng tìm hiểu về mẫu nhà 4 tầng 30m2 dưới đây cùng chúng tôi.
Phối cảnh những mẫu nhà 4 tầng 30m2 dành cho diện tích đất khiêm tốn
Theo kinh nghiệm quý báu của các kiến trúc sư, kĩ sư hoạt động lâu trong nghề thì với những ngôi nhà 4 tầng mà diện tích nhỏ như này có thể thiết kế tầng lệch để giúp căn nhà lấy được nhiều ánh sáng nhất. Ngoài ra cũng tạo nên sự độc đáo cho căn nhà. Với một diện tích khá khiêm tốn căn nhà được bố trí sử dụng khéo léo các hình khối đơn giản giữa các tầng, sự phân chia tỷ lệ các không gian đồng đều tạo nên một không gian đa chiều nhưng mộc mạc.

Về hình khối, các hoạ tiết hoa văn hay các đường phào chỉ, hệ thống kiến trúc mái, … sẽ được thiết kế theo phong cách kiến trúc của ngôi nhà. Ví dụ với một ngôi nhà 4 tầng mặt 30m2 được thiết kế theo phong cách hiện đại sẽ được thiết kế kiến trúc ngoại thất như sau:

Các hình khối được thiết kế vuông vắn, khoẻ khoắn ở hai bên thân nhà tạo nên một cổng chào đơn giản nhưng sang trọng. Ở giữa là đại sảnh và bậc tam cấp được ốp đá hoa cương tự nhiên nhưng vô cùng đẳng cấp. Trong phong thuỷ, số bậc tam cấp thường được xây với số bậc lẻ, có chiều cao và chiều rồng lần lượt là 15cm và 30 cm. Bởi trong suy nghĩ của người Việt, Việc xây dựng theo phong thuỷ sẽ mang đến may mắn cho cả gia đình.

Hệ thống cửa sổ và cửa ra vào được làm bằng chất liệu gỗ hoặc kính cường lực tuỳ theo nhu cầu của gia đình chủ nhà. Việc thiết kế cửa bằng kính sẽ giúp cho căn nhà luôn tràn ngập ánh sáng. Còn cửa gỗ tạo nên sự sang trọng cho người nhìn từ ngoài vào nhưng lại khiến căn nhà không đủ ấy sáng. Vì vậy, nếu chủ nhà lựa chọn cửa được làm bằng gỗ thì nên thiết kế thêm giếng trời để đón nắng, đón gió cho căn nhà của mình.

Với những căn nhà mang phong cách hiện đại thường sử dụng mái bằng hoặc mái thái. Bởi những kiến trúc mái này không cầu kỳ với hợp với kiến trúc hiện đại. Điểm nhấn của những ngôi nhà hiện địa không phải là các hoạ tiết hoa văn cầu kỳ, bắt mắt mà là những mảng tường được sơn màu đối lập với màu sắc tổng thể của ngôi nhà. Nếu như toàn bộ căn nhà được sơn màu trắng thì một số mảng tường có thể được sơn màu ghi, màu rêu, màu đỏ đô...
Hệ thống lan can, cổng rào hay cổng chính đều được thiết kế đơn giản bằng những thanhh inox, hoặc lan can kính.
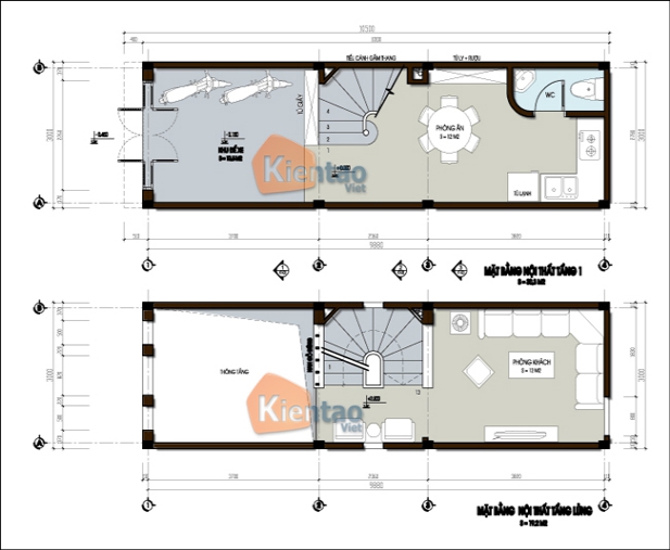
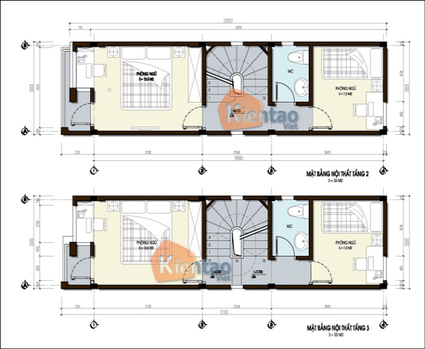
Bản vẽ mặt bằng công năng mẫu nhà 4 tầng 30m2
Với một căn nhà 4 tầng khiêm tốn về diện tích như thế nào làm sao để đảm bảo được tính thẩm mỹ, công năng sử dụng, đón nắng đón gió, … là một điều không hề dễ. Sau đây sẽ là bản vẽ chi tiết về kiến trúc cho mẫu nhà 4 tầng 30m2 như sau:

Tầng 1: Một khoảng sân nhỏ trước nhà vừa để trồng cây vừa tạo độ thông thoáng cho căn nhà. Tại mặt bằng tầng 1 chủ yếu dành cho không gian nhà bếp và nấu ăn. Một sân giếng nhỏ ở sau nhà và một phòng vệ sinh ở cuối góc của căn nhà. Do khi nấu ăn sẽ có nhiều mùi nên cần có hệ thống máy khử mùi và ô gió để đảm bảo căn phòng không bị ám mùi. Chỗ để xe và nhà bếp được ngăn cách với nhau bằng lối cầu thang dẫn lên tầng. Tại hốc cầu thang có thể “biến hoá” thành 1 kệ để giày, dép cho cả gia đình vừa đẹp mắt lại vừa tiết kiệm diện tích.

Tầng 2: Ngay thẳng lối lên tầng hai là phòng khách được đặt ở vị trí trung tâm. Bên cạnh phòng khách là 1 phòng ngủ được thiết kế vệ sinh khép kín và 1 ban công rộng dẫn lối từ phòng khách ra. Do diện tích của căn nhà nhỏ nên tầng 2 chỉ chia làm 3 không gian chính, phòng khách sẽ được ưu tiên diện tích lớn hơn so với phòng ngủ. Do phòng ngủ được trang bị đầy đủ tiện nghi nên cũng chiếm khá nhiều diện tích. Còn một khoảng không nhỏ không đủ thiết kế thêm 1 phòng ngủ vậy thì chúng ta sẽ thiết kế nó làm một ban công.
Tầng 3: Đây sẽ là không gian sinh hoạt chính của gia đình với 3 phòng ngủ và 1 phòng vệ sinh chung được thiết kế ngay ngắn cạnh ban công. Do diện tích nhỏ nên để bố trí đủ 3 phòng ngủ nên không thể thiết kế các phòng đều thiết kế vệ sinh khép kín được vì nó chiếm kha khá diện tích.

Tầng 4: Được thiết kế gồm phòng thờ chiếm diện tích lớn nhất, phòng giặt đồ và sân thượng để phơi đồ. Thêm 1 phòng ngủ dự trù những lúc nhà có khách. Để tiết kiệm diện tích thì nơi giặt đồ sẽ là nhà vệ sinh luôn. Hiếm khi nhà có khách nên có thể cũng không cần dùng đến.
Với những căn nhà diện tích nhỏ như này tại các tầng có thể thiết kế các hốc cầu thang nhỏ để chứa đồ, điều này rất là tiện dụng và tận dụng được tối đa công năng sử dụng của ngôi nhà.
Kiến trúc nội thất dành cho mẫu nhà 4 tầng 30m2
Có thể thấy với diện tích của ngôi nhà không được rộng rãi thì việc bố trí nội thất đóng một vai trò rất quan trọng trong việc làm ngôi nhà thêm rộng rãi và tạo ra những không gian hòa hợp, gần gũi với thiên nhiên. Vậy kiến trúc nội thất cho mẫu nhà 4 tầng 30m2 cần chú ý những điều gì?
Toàn bộ phần sàn của căn nhà có thể lát gạch, lát sàn gỗ hay gạch giả gỗ. Nếu làm sàn gỗ thịt các bạn cần lưu ý rằng những trường hợp xấu nhất có thẻ xảy ra là gỗ bị cong, vênh khi thời tiết nồm ẩm như ngoài Bắc. Do vậy khi làm sàn gỗ các bạn nên cân nhắc kỹ bởi chi phí làm nếu là gỗ tự nhiên khá đắt đỏ. Còn nếu toàn bộ sàn được lát gạch thì đơn giản không có vấn đề gì phải lo. Tuy nhiên sàn ốp gạch sẽ hơi đơn sơ nên để tạo điểm nhấn các bạn có thể trải thêm những tấm thảm với màu sắc phù hợp để tạo điểm nhấn cho căn nhà.

Phần trần nhà hiện nay được trang trí theo nhiều cách khách nhau từ trần gỗ, trần thạch cao, trần 3D, … Mỗi loại sẽ có những ưu và nhược điểm riêng của nó nên các bạn nên suy nghĩ kỹ khi lựa chọn. Do không gian căn nhà hơi khiêm tốn nên việc thiết kế theo không gian mở là vô cùng hợp lý. Điều này giúp các khoảng không gian qua mắt thường trở nên rộng rãi hơn diện tích vốn có của nó.
Đầu tiên chúng ta sẽ thiết kế nội thất cho phòng khách. Để không gian phòng khách được sáng sủa và rộng rãi với những mẫu nhà như thế này thì phòng khách không nên bố trí quá nhiều đồ. Chỉ nên đặt 1 bộ sofa hay 1 bộ bàn nước nhiều, ti vi thì nên treo tường để tiết kiệm diện tích không phải bố trí kệ đặt ti vi. Cạnh bộ bàn nước đặt 1 chậu cây xanh nhỏ vừa tạo điểm nhấn cho căn nhà vừa khiến cho căn phòng tăng thêm sức sống. Do không gian nhỏ nên chỉ lắp thêm 1 lớp cửa kính ngăn cách với lối cầu thang khi sử dụng điều hoà để không gian phòng khách không bị eo hẹp.

Thứ hai là phòng bếp vừa để nấu nướng vừa làm phòng ăn được thiết kế đơn giản, không cầu kỳ. Tủ lạnh được đặt ngay ngăn tại 1 góc của căn bếp. Tủ bếp hình chữ L treo tường để tiết kiệm diện tích. 1 bộ bàn ghế ăn được kê chính giữa căn bếp.

Thứ ba là không gian phòng ngủ được thiết kế đơn giản hay cầu kỳ tuỳ theo sở thích của mỗi thành viên trong gia đình. Chỉ cần đầy đủ tiện nghi từ giường, tủ quần áo, bàn trang điểm hoặc bàn làm việc là ổn. Rèm cửa ở phòng ngủ sẽ khác với phòng khách, rèm sử dụng màu tối giúp mọi người ngủ ngon hơn.
Với kinh nghiệm và năng lực đã được khẳng định, sàn Xây dựng số Việt Nam tự hào khẳng định là trang website về xây dựng uy tín tại Việt Nam được rất nhiều người tin tưởng với hàng trăm nghìn lượt truy cập mỗi ngày.
Như vậy các yếu tố cơ bản để thi công và xây dựng ngôi nhà 4 tầng với diện tích chỉ vỏn vẹn 30m2 đã được hoàn thành. Mong rằng với những thông tin mà chúng tôi gửi đến quý bạn đọc sẽ trở thành nguồn cảm hứng cho các bạn về mẫu nhà các bạn đang tìm kiếm. Nếu bạn đang có dự định xây mẫu nhà này cho gia đình hãy liên hệ ngay với chúng tôi để được tư vấn giải đáp ngay nhé.
Xem thêm:


































