Sự phát triển nhanh chóng xã hội đi cùng với đó là nguồn lực kinh tế của gia đình ngày càng nâng lên dẫn đến nhu cầu xây dựng nhà ở theo đó mà phát triển. Trong số mẫu nhà phố đang có được sự quan tâm của gia chủ thì mẫu nhà phố 8x11m được đánh giá là mẫu thiết kế phù hợp với không gian phố, mang đến cho gia chủ không gian sống tiện nghi, phù hợp kinh tế. Vậy mẫu nhà phố 8x11m đẹp sẽ sở hữu những bí quyết riêng gì hay không? Cùng theo dõi bài viết dưới đây để cùng sở hữu những bí quyết ấy.
Bí quyết để sở hữu mẫu nhà phố 8x11m đẹp
Để sở hữu mẫu nhà phố 8x11m được xem là đẹp thì cần phải đẹp từ trong ra ngoài, từ những nguyên vật liệu lựa chọn để cấu thành nên căn nhà hay đến những đồ derco trang trí nhà cửa....Và đặc biệt có cả yếu tố phong thủy, bố trí không gian nhà, độ thông thoáng không khí, ánh sáng,… cũng sẽ được đưa lên bàn để cân đo đong đếm.

Bắt đầu với bí quyết đầu tiên để sở hữu một mẫu nhà phố 8x11m đẹp hãy xét kỹ càng đến yếu tố phong thủy bởi nhà ở quyết định một phần đến tiền tài, sức khỏe của chính gia chủ sinh sống tại căn nhà.
Hãy bắt đầu xem hướng nhà, hướng cửa để đón được tài lộc, công danh, sức khỏe, mọi việc hanh thông. Hướng nhà đã có rất nhiều bài viết đề cập một cách chi tiết về cách chọn hướng hợp tuổi gia chủ nên bài viết không đề cập đến quá nhiều, hãy chú ý đến hướng cửa của ngôi nhà. Lưu ý cho việc đặt hướng cửa như sau: Tránh đặt hướng cửa chính đối diện với cửa sau hay sắp xếp hướng cửa để đóng mở cửa dễ dàng, không ảnh hưởng để không gian khác hay đến việc di chuyển của các thành viên trong gia đình.

Khi tiến hành xây dựng nhà ở nên xem xét yếu tố ngày giờ khởi công cẩn thẩn chu đáo bởi dân gian ta có câu: “Có thờ có thiêng, có kiêng có lành”, để ngôi nhà có được vượng khí tốt, gia chủ có được cuộc sống hạnh phú, bình an. Nếu như không được tuổi để xây nhà thì có thể tiến hành mượn tuổi để việc cây dựng diễn ra thuận lợi.

Bí quyết thứ hai để sở hữu mẫu nhà phố 8x11m đẹp là việc sắp xếp không gian trong nhà. Không gian ấy có dễ dàng lưu thông không khí hay không, ánh sáng có đi được hết các không gian đặc biệt là không gian cuối nhà hay không phụ thuộc bản vẽ thiết kế nhà đã được lên từ trước. Dù nhà diện tích lớn hay nhỏ, quy mô 1 tầng hay 2, 3 tầng trở lên thì gia chủ nên có bản vẽ thiết kế nhà hoàn chỉnh trước khi tiến hành khởi công xây dựng.
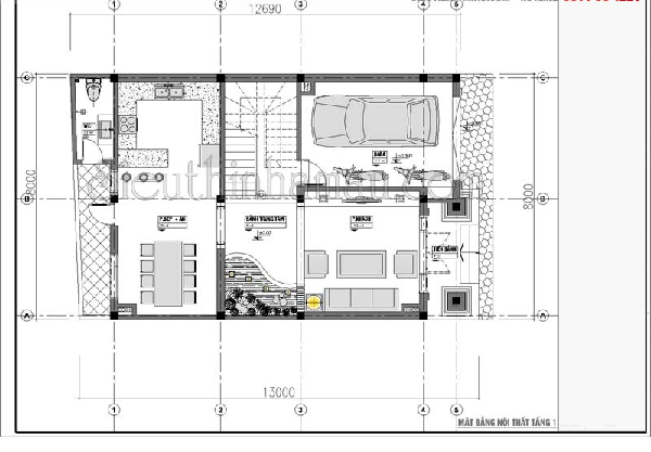
Ví dụ về một bản thiết kế mặt bằng nhà phố 8x11m với quy mô 3 tầng để có thể hình dung cách sắp xếp không gian được đánh giá đẹp, đẹp ở đây là hợp lý, tiện nghi và khoa học.

Mặt bằng tầng 1 được chia thành hai không gian song song với nhau như sau: Trước khi bước vào không gian phòng khách là sảnh chính với hai cột trụ vững chắc bên ngoài, tùy thuộc vào phối cảnh mặt tiền mà lựa chọn thiết kế cột cho phù hợp. Song song với không gian phòng khách là gara oto, có cửa dẫn vào trong nhà thuận tiện. Kế sau gara oto chính là khu vực bố trí cầu thang thông tầng, đối diện là khu vực tiểu cảnh cây xanh – rất phù hợp với thiết kế nhà phố hiện nay. Kế bên là khu vực đặt bàn ăn và song song là khu vực bếp được nối thông. Nhà vệ sinh được đặt cuối cùng trong nhà cùng với khu vực sân nhỏ.

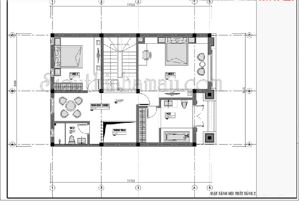
Với mặt bằng tầng 2 cũng với cách bố trí không gian ứng với bên dưới tầng 1. Một khoảng ban công nhỏ phía trước nhà rồi là không gian phòng ngủ master cùng với thiết kế nhà vệ sinh bên trong nhà. Tiếp kế sau là khu vực cầu thang thông tầng, đối diện là không gian thông tầng để mang lại ánh sáng cho tiểu cảnh cây đặt dưới tầng 1. Sau cùng là một phòng ngủ nhỏ, 1 không gian sinh hoạt chung và nhà vệ sinh nhỏ.

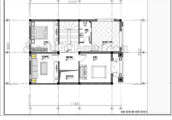
Không gian tầng 3 có cách bố trí giống với hai tầng bên dưới nhà. Ban công sau đó đến phòng thờ của gia chủ. Đặt ban thờ cần đặt ở vị trí cao nhất, thông thoáng nhất, hướng ra mặt tiền. Song song là sân phơi và nhà vệ sinh tương ứng. Khu vực cầu thang, song song khu vực thông tầng. Cuối cùng là không gian ngủ và phòng sinh hoạt chung.
Để hoàn chỉnh mẫu nhà phố 8x11m thì cần đến phối cảnh mặt tiền ấn tượng. Vậy cùng theo dõi mục tiếp theo của bài viết để có cho mình câu trả lời về mẫu nhà phố 8x11m đẹp mà ai cũng muốn sở hữu.
Top phối cảnh cho mẫu nhà phố 8x11m đẹp nhất hiện nay mà ai cũng muốn sở hữu

Bắt đầu với một mẫu thiết kế nhà phố 8x11m theo phong cách hiện đại cực kỳ thu hút, chi phí phù hợp chắc chắn lọt mắt xanh của rất nhiều gia chủ ở đây.
Ngôi nhà được bao bọc bằng hệ thống cổng rào kiên cố, chắc chắn với phần tường được bê tông với lớp vân giống như viên gạch xếp lại với nhay, cùng với hệ thống cửa sắt sơn đen hiện đại. Nếu chỉ bấy nhiêu thôi thì ngôi nhà trở nên khô cứng vì thế mà kiến trúc sư thiết kế thêm một khung sắt giống ô cửa sổ để lọt cây xanh và vài cành hoa rực rỡ. Tầng hai với bố trí cửa chính lùi bên trong để tạo nên khoảng trống làm nên ban công lan can kính kết hợp cùng ô cửa kính với giả gỗ cạnh bên và chậu cây ốp theo mặt tiền tạo không gian. Lên tầng ba với phần sân trước rộng cộng với ban công kính để làm nên sân thượng thoáng mát.

Tiếp tục gia nhập mẫu thiết kế đơn giản nhưng cực kỳ thu hút. Mặt tiền của mẫu nhà phố 8x11 với hai sắc màu trắng và xám, hai sắc màu không lòe loẹt rực rỡ nhưng vô cùng cuốn hút, mang đến một phần nét cá tính của gia chủ.
Mẫu thiết kế này thu hút bởi phần không gian tầng thượng được thiết kế là không gian tum với cây xanh bao quanh không gian. Với một diện tích lớn như vậy gia chủ đặt bàn nướng tại gia để mời bạn bè, người thân đến tham gia tụ tập.

Tối giản và sang trọng là những từ để biểu đạt về mẫu nhà phố 8x11m này. Giữa một không gian phố với biết bao là sắc màu rực rỡ khác, với biết bao là mẫu nhà hiện đại với quy mô lớn thì mẫu thiết kế này vẫn giữ được đặc quyền nổi bật. Toàn bộ căn nhà được sơn trắng trang nhã, trên nền ấy nổi bật lên màu sơn giả gỗ tại viền và khu vực cổng nhà, khung cửa sơn đen cá tính. Và rồi kết hợp với ánh đèn hắt ra từ trong nhà cùng với hệ thống đèn được bố trí bên ngoài đã tạo nên một không gian thu hút ánh nhìn.

Tối giản, nền trắng chủ đạo tiếp tục thống trị thiết kế cho mẫu nhà phố 8x11m nhưng mỗi mẫu nhà sẽ mang đến cảm nhận khác nhau. Phối cảnh với những lớp kính cường lực với khả năng cách nhiệt, cách âm hiệu quả mang đến mặt tiền hiện đại, lung linh với ánh đèn vàng bên trong nhà.

Nằm trong thiết kế tối giản, mẫu nhà phố 8x11m này sử dụng đa dang nguyên vật liệu xây dựng – Đây cũng là mẫu thiết kế mà gia chủ cần lưu tâm bởi tính ứng dụng rất cao.
Mặt tiền rộng, 8m, gia chủ bố trí thành hai cửa kính lớn, bên ngoài cửa cuốn để đảm bảo an ninh cho toàn ngôi nhà, phần viền xung quanh ốp đá granit đen sang trọng cùng với bậc thềm tam cấp để gây ấn tượng và đây chính là mẫu nhà kết hợp kinh doanh cho gia chủ sở hữu nhà mặt phố. Phía bên treen được bố trí tương ứng với thiết kế đối xứng. Hệ thống lam che nắng, cùng với sử dụng linh hoạt nguyên vật liệu mang đến hai chữ “ấn tượng” cho toàn bộ không gian.

Nếu bạn có rằng mái bằng sẽ không làm nổi bật được ngôi nhà của bạn thì thử kiến trúc mái xéo cho mẫu nhà phố 8x11m xem sao?
Mẫu thiết kế này là khối hộp được xếp cạnh nhau, lớp chồng lớp mang đến cho thị giác sự lạ mắt và độc đáo. Điểm nhấn là những phần tường được sơn giả gỗ, kết hợp với lớp phào đơn giản nhưng cực kỳ cuốn hút, thêm hiệu ứng ánh sáng từ những chiếc đèn vàng mang đến màu sắc sang trọng, hơi hướng cổ điển cho căn nhà. Với phần mái xéo ấn tượng lại mang đến hiệu quả về không khí, ánh sáng vào trong nhà đã giúp cho mẫu thiết kế này lọt vào top thiết kế có mặt tiền ấn tượng hiện nay.

Không kín đáo như cổng phía trên thì thiết kế cổng sắt nhưng để lộ ít nhiều không gian mặt tiền tầng một cũng sẽ là lựa chọn cho một phối cảnh mặt tiền đẹp mẫu nhà phố 8x11m.
Cổng nhà nổi bần bật với gạch ốp vàng ấn tượng, và chia thành hai không gian ứng với đó là không gian phía trong nhà, có thể gọi tên kiến trúc này là kiến trúc đối xứng, mang đến cảm nhận về thị giác vô cùng thú vị. Tương ứng với cổng là kiến trúc tầng hai, ba với ban công sắt đen nổi bật trên nền tường trắng, thêm chút xanh từ cây trồng ban công. Phần rào nổi bật là hàng cây trồng thì bên trên khu vực tầng hai ba cũng có cây xanh tương ứng, điểm cho cửa kính và ban công không gian trong lành, dễ chịu.

Với một mặt tiền lên đến 8m thì không có gì đáng trở ngại để gia chủ sở hữu cho mình mẫu thiết kế nhà phố 8x11m theo phong cách tân cổ điển sang trọng.
Mặt tiền của mẫu thiết kế nhà phố 8x11m này được chia làm hai không gian ứng với không gian phía trong nhà. Phía bên trái là lối vào cửa chính với cột trụ trắng được đặt nổi lên ghi dấu ấn với bất cứ ai đi ngang qua. Tầng hai và ba có kiến trúc tương tự nhau với phần cột trụ nổi kết hợp với lớp phào nhẹ nhàng, ban công đúng chuẩn cổ điển và hệ thống mái với phần vòm mang đậm dấu ấn của châu Âu thế kỷ 17. Nổi bật lên trên nền trắng vàng của ngôi nhà là hệ thống cửa gỗ kính chắc chắn, vô cùng cổ điển và sang trọng. Bên phải của căn nhà là bắt đầu là hệ thống cửa cuốn hiện đại để làm gara oto, tầng hai là cửa sổ với phần viền trắng cùng nét phào đơn giản. Lên đến tầng ba là ban công với mái vòm quyến rũ. Bên trên tầng thượng, kiến trúc sư để diện tích sân thượng nhỏ để gia chủ có khoảng không gian riêng cho bản thân tại gia.

Cũng là thiết kế tân cổ điển nhưng theo hướng tối giản hơn cho mẫu nhà 8x11m. Mặt tiền với tone trắng nổi bật là hệ thống cột trụ vững chắc với đường chỉ phào đơn giản kết hợp kiến trúc mái, một chiếc đèn pha lê với hơi hướng cổ điển. Ban công sử dụng chất liệu sắt sơn đen tĩnh điện, uốn cong tạo thành một vòng khung, thêm cây xanh để tạo không gian. Khu vực cổng rào sử dụng chất liệu tương tự ban công, đơn giản nhưng phù hợp với tổng thể.


































