Với chi phí đầu tư xây dựng thấp, các mẫu nhà cấp 4 có gác lửng 5x15 được xây dựng phổ biến trong năm 2024. Nếu bạn đang muốn có một không gian nhà đẹp, tiện nghi, chi phí thấp và công năng sử dụng thì chắc chắn những mẫu dưới đây sẽ là một gợi ý tuyệt vời. Chúng tôi tin rằng việc lựa chọn một giải pháp thiết kế xây dựng phù hợp là điều cần thiết. Từ đó Xây Dựng Số đã tổng hợp những mẫu nhà cấp 4 có gác lửng 5x15 dưới đây để bạn có thêm nhiều ý tưởng cho ngôi nhà của mình. Hãy cùng chúng tôi tham khảo qua bài viết dưới đây nhé!
Mẫu nhà cấp 4 có gác lửng 5x15 hiện đại sang trọng

Mẫu nhà cấp 4 gác lửng 5x15 này được các kiến trúc sư đưa ra 2 phương án thiết kế kiến trúc khác nhau. Vì vậy gia chủ có thể lựa chọn cho mình. Diện tích đất 5x15m và diện tích xây dựng thực tế là 5x14m. Nhà bố trí 1 phòng khách và 3 phòng ngủ diện tích 12m2 / phòng. 1 bếp và phòng ăn, trệt phía sau và sân trước để xe. Phần mái được thiết kế làm máng xối thu nước hai bên để lấy nước sinh hoạt cho gia đình. Mẫu thiết kế nhà đẹp cấp 4 có ngoại thất khá đơn giản. Nhưng làm thế nào để kết hợp màu trắng của sơn nhà với mái chéo màu đỏ. Đã phần nào tạo được ấn tượng ngay khi chúng ta nhìn vào. Đây sẽ là một gợi ý tuyệt vời cho những gia chủ đang có ý định xây nhà cấp 4 cho mình.
Mẫu nhà cấp 4 gác lửng 5x15 có 2 phòng ngủ

Mẫu nhà cấp 4 gác lửng 5x15 được thiết kế mái bằng chất liệu tôn. Không chỉ tiết kiệm chi phí mà còn tạo nên vẻ đẹp sang trọng. Phần sảnh lễ tân còn lại cũng được làm bằng tôn có cột chống. Một bên là cửa chính và một bên là cửa gara ô tô. Tổng diện tích 5x15m2, thiết kế 1 phòng khách, 2 phòng ngủ, 1 bếp và 1 gara. Trong nhà để xe, cũng có cầu thang đi lên. Thiết kế gác lửng với 1 phòng ngủ nhỏ và cách bố trí trên.

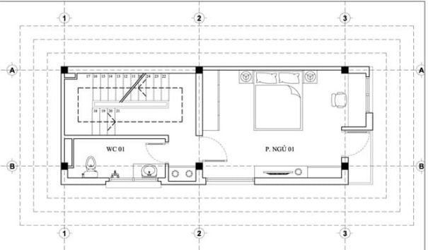
Bản vẽ nhà cấp 4 có gác lửng
Đây cũng là mẫu nhà cấp 4 gác lửng 5x15 cực đẹp gia chủ có thể áp dụng cho mình. Trong bản vẽ nhà cấp 4 đẹp có thiết kế gác lửng này. Mặt bằng có phòng khách, phòng ăn, bếp, 3 phòng ngủ, 2 vệ sinh. Ngoài ra, gara ô tô cũng được thiết kế trong nhà bên cạnh phòng khách. Gác xép được thiết kế gồm 1 phòng ngủ nhỏ và 1 phòng thờ.
Mẫu nhà cấp 4 gác lửng 5x15 đẹp

Có hai phương án thiết kế cho mẫu nhà cấp 4 này đó là mái thả xuống che sân để ô tô. Phương án 2 là để trống phần hiên cạnh nhà và phần này sẽ làm giàn bê tông giả gỗ. Sau đó nó có thể được sử dụng để trồng cây nho.
Mẫu nhà cấp 4 gác lửng 5x15 có 3 phòng ngủ đơn giản

Mẫu thiết kế nhà cấp 4 5x15 này được thiết kế rất trang nhã và đơn giản. Chiều cao móng được nâng lên 5 bậc giúp ngôi nhà không bị thấm nước vào mùa mưa, mưa bão. DTXD 5x17m chưa kể sảnh trước 1,2m. Phần mái có thể làm 3 lớp: mái tiền sảnh, mái che phòng khách riêng và cuối cùng là mái thân.
Mẫu nhà cấp 4 gác lửng 5x15 có gác lửng chi phí thấp

Phối cảnh mặt tiền là bộ mặt chung của ngôi nhà. Kiến trúc sư thật tinh tế và khéo léo khi giảm 5m chiều dài để thiết kế sân trước. Tạo không gian vui chơi, sân phơi sinh hoạt chung cho ngôi nhà. Đồng thời với thiết kế sân trước khá rộng. Hình dáng ngôi nhà sẽ trở nên cân đối hơn, chiều dài bớt sâu hơn. Từ đó, việc bố trí mặt bằng sẽ đơn giản và thuận tiện hơn.
Mẫu nhà cấp 4 gác lửng 5x15 tiện nghi cho vợ chồng trẻ

Mẫu nhà cấp 4 3 phòng ngủ 5 × 15 có gác lửng này đều là giải pháp hữu hiệu giúp bạn nới rộng không gian. Giúp gia chủ bố trí công năng một cách hiệu quả, không những thế nó còn mang đến tính thẩm mỹ cho cả không gian ngôi nhà. Ngày nay có khá nhiều gia đình Việt đặc biệt là những cặp vợ chồng trẻ có con nhỏ thường lựa chọn những mẫu nhà cấp 4 5 × 15 có gác lửng để tận dụng không gian sống thoải mái.
Mẫu nhà cấp 4 gác lửng 5x15 mái bằng

Những mẫu nhà cấp 4 mái bằng luôn toát lên sự hiện đại, đơn giản nhưng không kém phần tinh tế. Mẫu nhà đầu tiên này được thiết kế từ những đường nét cơ bản và gam màu ghi sáng phổ biến. Phần cửa chính sử dụng chất liệu chính là sắt. Điều này tạo nên một ngôi nhà vững chắc, kiên cố.

Tầng 1 của ngôi nhà là không gian sinh hoạt chung của các thành viên trong gia đình. Phòng khách là nơi tiếp đón gia chủ và những vị khách đầu tiên với diện tích vừa đủ, tiếp đến là tủ kệ, tivi và cầu thang. Phòng ăn được bố trí ở phía sau nhà bao gồm khu vực nấu nướng gọn gàng và kín đáo, thêm vào đó là bộ bàn ăn có kích thước vừa phải, đủ cho gia đình 3 người. Thiết kế này mang đến không gian rộng rãi, đồng thời cũng rất gọn gàng khi che khuyết điểm cầu thang dẫn lên gác lửng một cách hiệu quả. Với cách bố trí từng phần hài hòa và tinh tế, tầng trệt mang đến cảm giác thoải mái và tiện nghi cho gia chủ.

Phần tầng lửng của mẫu thiết kế nhà cấp 4 có gác lửng 5x15 (m) được chia thành 4 khu vực chính: Phía trong là phòng ngủ thư giãn rộng rãi; Phía trước là phòng thờ hướng ra cổng nhà và khu làm việc; Phòng vệ sinh được đặt ở vị trí chính giữa để tránh đặt trong phòng ngủ và tránh khu vực bếp nấu ở tầng dưới.
Mẫu nhà cấp 4 gác lửng 5x15 mái thái.

Mẫu nhà cấp 4 có gác lửng này được ưa chuộng ở các vùng nông thôn vì kiểu mái thái không có nghĩa là đã lỗi thời. Mái nhà có độ dốc cao giúp nước mưa không thấm vào tường mà chảy xuống nhanh. Ngoài ra, mái thái cao giúp ngôi nhà mát mẻ và thông thoáng hơn trong mùa hè nóng nực. Phối cảnh mặt tiền mẫu nhà cấp 4 có gác lửng 5x15 mái thái được thiết kế theo phong cách đơn giản nhưng sang trọng với tông màu xám và gỗ. Cửa ra vào và cửa sổ phía trước được làm bằng gỗ, làm tăng thêm cảm giác của một ngôi nhà làng. Căn nhà này có 3 phòng ngủ thích hợp cho một gia đình 4 người. Ngoài ra còn có phòng khách, phòng bếp với bàn ăn, phòng thờ, hai toilet, sân phơi.

Mặt bằng tầng 1 của mẫu nhà này trông khá sặc sỡ khi bố trí phòng khách ở chính giữa sảnh vào. Trong khi đó, phòng bếp với không gian mở được bố trí phía trước, ngay cạnh cửa ra vào. Ngoài ra, phòng ngủ rộng rãi ở phía sau nhà thể hiện hoàn hảo các chức năng thiết yếu của tầng một. Tuy nhiên, tất cả các nhà vệ sinh trong nhà đều nằm ở tầng dưới nên có một chút bất tiện. Có một nhà nguyện ở phía trước của gác mái. Phía sau có thêm hai phòng ngủ nhỏ có sân phơi và vườn sau. Điều này cho phép các thành viên trong gia đình có không gian riêng tư nhất có thể.
Mẫu nhà cấp 4 gác lửng 5x15 ấn tượng

Ngôi nhà lung linh này được thiết kế theo dạng không gian mở tràn ngập ánh sáng. Hầu hết các không gian và nội thất đều được làm bằng gỗ. Mẫu nhà đẹp này không chỉ có gác lửng mà còn có thêm ban công trên mái. Khoảng sân này tổ chức tiệc nướng lãng mạn hay khu vườn nhỏ xinh xắn. ngôi nhà được thiết kế hợp lý tận dụng tối đa diện tích nhà ở. Phòng khách chào đón bạn ngay từ cửa ra vào, bên phải là nhà bếp được sắp xếp ngăn nắp. Thiết kế này tận dụng không gian thoáng trước nhà. Bên trong, có 3 phòng ngủ ấm cúng và 2 phòng tắm trên hai tầng, phòng thờ ở ngay phía trên phòng ngủ thứ nhất. Một đặc điểm khác của thiết kế này là nó có một giếng trời nhỏ ở trung tâm của ngôi nhà giúp gia chủ tận dụng tối đa ánh nắng ban mai và thông gió vào ban đêm. Bạn có thể trồng thêm một vài cây xanh để tăng thêm vẻ tự nhiên cho nơi đây.
Trên đây là một số mẫu nhà cấp 4 gác lửng 5x15 đẹp nhà mà Xây Dựng Số gửi đến bạn. Hy vọng bạn tìm được ý tưởng mới cho ngôi nhà trong mơ của mình!

























