Một phần không thể thiếu bên trong một ngôi nhà 1 trệt 3 lầu diện tích 5x15m chính là một kết cấu hoàn thiện giúp chúng được nâng tầm giá trị và không gian sử dụng cho các thành viên. Tuy các bài viết nói về công trình nhà ở này khá nhiều từ các trang xây dựng nhà đẹp, nhưng xaydungso.vn sẽ tiếp tục giới thiệu đến với mọi người một thiết kế cũng mang vẻ đẹp không kém. Kèm theo là bộ hồ sơ giúp giai đoạn hoàn thiện ý tưởng xây dựng của gia đình bạn được hoàn hiện hơn.

Từ những ngày đầu hình thành cho đến thời gian phát triển hiện nay, nhiều người vẫn rất hoài nghi về các kiến trúc nhà phố với diện tích khá hạn hẹp từ chiều ngang và có cho mình một chiều dài khá lớn. Nhưng nếu, bạn biết cách sắp xếp hay sáng tạo trong phong cách xây dựng nhà ở thì chắc rằng chúng sẽ trở nên hoàn hảo hơn rất nhiều. Vừa giải quyết nhu cầu sinh sống của gia đình mà còn thể hiện một giá trị riêng từ chủ đầu tư.
Phương án thiết kế thi công nhà phố 1 trệt 3 lầu tiện diện tích 5x15m cho cuộc sống thêm trọn vẹn :
Tham khảo qua hồ sơ thiết kế từ bản vẽ thiết kế nhà 1 trệt 3 lầu 5×15m sẽ giúp bạn định hình được phần công năng, bố trí các gian phòng chức năng bên trong trong nhà như thế nào cho hợp lý. Thiết kế được cho rằng khá thoải mái trong việc phân chia mặt bằng tuy nhiên làm thế nào để tối ưu diện tích mang lại không gian sống thư giãn cho toàn bộ thành viên trong gia đình. Hãy cùng chúng tôi xem qua thiết kế ngay phía bên dưới !
1. Thông tin về mẫu nhà ống 1 trệt 3 lầu diện tích 5x15m
- Dự án thiết kế : mẫu nhà 1 trệt 3 lầu 5x15m
- Chủ đầu tư: Vũ Văn Thanh sinh năm 1977
- Phong cách xây dựng : “Phong cách xây dựng cần có sự đổi mới từ phía ngoài mặt tiền ngôi nhà từ những điểm nhấn giúp công trình được đánh bật lên dãy nhà liền kề, từ đó mà có thể triển khai các chức năng bên trong nhằm bám sát theo một phong cách chủ đạo. Đó là yêu cầu tư gia đình tôi, mong rằng thiết kế từ mẫu nhà 1 trệt 3 lầu sẽ đáp ứng được các tiêu chí phía trên.” yêu cầu từ chủ đầu tư.
- Địa chỉ : Lê Quang Định, P7, Bình Thạnh. Tp. Hồ Chí Minh
- Thời gian thi công: ~ 3 tháng.
A. Phối cảnh ngôi nhà ống 1 trệt 3 lầu diện tích 5x15m :
Thực sự từ những chia sẻ từ phía chủ đầu tư thì việc kiến tạo nên một công trình bám sát theo yêu cầu đó hoàn toàn khả thi. Chúng tôi luôn có cho mình một đội ngũ thiết kế lành nghề, sáng tạo và đổi mới tư duy làm việc để thích ứng cho nhu cầu hiện đại ngày nay. Hãy đến với các phối cảnh được chúng tôi cung cấp và bạn sẽ có cho mình với một cách nhìn nhận đúng nhất về ngôi nhà 1 trệt 3 lầu với diện tích 5x15m được thiết kế trong năm mới 2024 này.

Từ mặt tiền của ngôi nhà dạng ống có diện tích 5x15m với kết cấu từ 1 trệt 3 lầu chắc rằng bạn sẽ phải thay đổi cách nhìn nhận từ kiến trúc này. Cho thấy một không gian hoàn toàn được sáng tạo dựa trên một hình học được cố định lại với nhau từ các điểm chấm phá tọa nên điểm nhấn từ phía mặt tiền để hoàn thành nhiệm vụ trang trí mà kiến trúc sư đã ấn định dành cho chúng. Với nhiều chủ đầu tư khó tính, có thể chúng sẽ làm mọi người phải hài lòng từ nét đẹp của chúng mang đến.
Điểm nhấn mang dấu ấn mạnh mẽ có thể là kết cấu từ tầng 2 và 3 khi chúng có thêm cho mình với kết cấu từ ban công và được cộng hưởng từ phần kết cấu tường nhà được kết hợp với kính cường lực như thể hiện lên sự độc đáo mà người làm kiến trúc đã thêm vào cho công trình. Cảnh quan xung quanh cũng thực sự tạo nên một dấu ấn riêng từ nét hài hòa vốn là tiêu chí để nhận định một công trình từ hướng mặt tiền.

Đối với góc nhìn tổng thể kiến trúc hình khối của ngôi nhà kết cấu 1 trệt 3 lầu, không ít người sẽ bị thu hút bởi không gian ngoại thất với kiến trúc từ nét hiện đại, thanh lịch nhưng không kém phần sang trọng. Ưu điểm của kiến đó chính là sự mềm mại của các chi tiết hoa văn được điểm tô xung quanh căn nhà. Mà mọi gia đình, mọi chủ đầu tư vẫn luôn mong muốn có thể kết hợp chúng theo một tổ chức có chủ đích và tính toán của mình.

Ngôi nhà được chia thành 4 kết cấu từ 4 tầng một cách rõ rệt bởi gam màu chủ đạo của các tầng ở các vị trí có sự trùng lặp và có hình thức khá giống nhau nhưng cũng là một nét riêng mà chúng có thể mang đến cho ngôi nhà. Nếu như tầng 1 là sự kết hợp của các cánh cửa từ gỗ với màu nâu sẫm mang đến mới cảm giác mới mẻ thì ngoại thất tầng 2,3 và 4 được sơn màu trắng nhẹ nhàng tinh khôi. Hệ thống cửa từ kính cường lực cũng được sử dụng khá nhiều từ phía mặt tiền để chúng có thể lấy sáng, tạo độ thông thoáng cho kiến trúc được trọn vẹn theo mọi hướng, mọi hình thức đã được thể hiện
B. Bản vẽ thiết kế nhà 1 trệt 3 lầu với diện tích 5x15m :
Có rất nhiều các phương án mà kiến trúc nhà ống có thể thể hiện được sự toàn diện, bằng một hình thức sắp xếp cân đối các chức năng từ bản vẽ thiết kế từ kiến trúc sư cung cấp. Đó cũng là một phần thiết yếu để bạn có thể hoàn thiện công trình của mình dựa trên bản vẽ mà các người thợ cũng có thể nhận diện chúng nhằm giúp cho công trình thi công theo các bước chuẩn xác nhất.

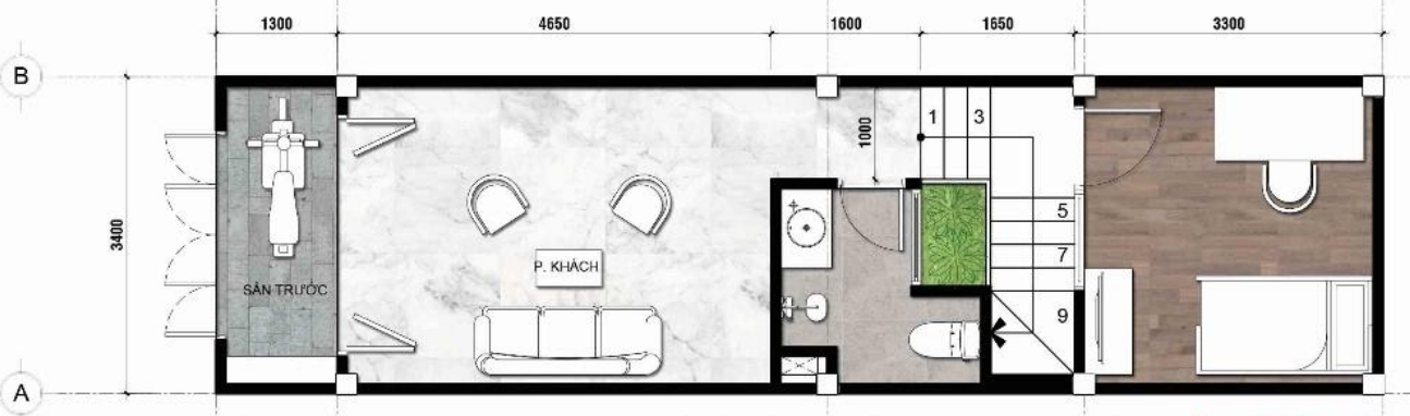
Mặt bằng tầng trệt : Được tổ chức khá khoa học khi không gian có thêm cho mình với một phòng làm việc kết hợp với phòng ngủ. Kèm theo là 1 phòng khách, 1 nhà vệ sinh với sân trước khá rộng và cầu thang dẫn lên các tầng tiếp theo của ngôi nhà.

Mặt bằng tầng 1 : Khi chức năng của gian phòng được đổi mới để đưa nhà bếp lên phía trên tầng 2 và được kết hợp thêm là 1 phòng ngủ để chúng có thể khái quát được nhu cầu với số lượng lớn phòng ngủ mà chủ đầu tư yêu cầu cho ngôi nhà của mình.

Mặt bằng tầng 2 : Chia không gian ra làm 3 với các chức năng được bố trí thêm với 2 phòng ngủ nằm ở phía trước và sau. Khi chính giữa là 1 sản rộng 1 nhà vệ sinh và kết cấu từ cầu thang.

Mặt bằng tầng 3 : Tiếp tục là 1 chức năng từ phòng ngủ để đưa số lượng của chúng lên con số 5 mà các thành viên có thể lựa chọn không gian riêng của mình theo kết cấu từ tường mặt bằng xây dựng thông qua bản vẽ. Ta có thể thấy được một sự tiện nghi từ phong cách tạo hình lẫn việc sắp xếp giữa các vị trí để chúng có thể diễn đạt trọn vẹn các mong muốn từ phía chủ đầu tư.
C. Các phối cảnh bên trong nội thất ngôi nhà 1 trệt 3 lầu diện tích 5x15m :
Việc thiết kế nội thất luôn chú trọng đến không gian, sự thuận lợi cho lối sinh hoạt và kèm theo là phong cách mang dấu ấn riêng được người làm thiết kế hướng đến cho ngôi nhà. Ngoài ra, thì việc tự thiết kế nội thất cũng là phương án được rất nhiều gia đình lựa chọn mà chúng cũng có cho mình với các lưu ý riêng nhằm mang đến một kết quả tốt.


Nội thất của ngôi nhà được dựa theo một gam màu chủ đạo từ sự tinh khôi bởi gam màu trắng được xuyên suốt mọi không gian, mọi chức năng. Đó cũng là một phần để tạo nên một phong cách của ngôi nhà, vật dụng cũng sử dụng theo chu vi khá nhỏ nhằm tiết kiệm cho diện tích mà chúng được trãi dài để bám sát theo diện tích xây dựng của ngôi nhà sẵn có.


Hiện nay, thì nhiều chủ đầu tư hạn chế sử dụng những chi tiết thiết kế hoặc đồ nội thất trang trí quá cầu kỳ, rườm rà...Mà sự phức tạp của từng chi tiết hay vật dụng sẽ làm giảm độ thông thoáng của không gian nội thất. Cũng vì thế mà những thiết kế càng đơn giản nhưng vẫn mang đến sự tinh tế sang trọng đang là ưu tiên hàng đầu. Đèn chiếu sáng, cửa sổ ở mọi chức năng theo từng gian phòng sẽ giúp bạn có thêm nguồn năng lượng tích cực, ánh sáng tự nhiên nhằm giảm thiểu tối đa nguồn điện năng của mình.

Dây quả thật là một góc khá đẹp của ngôi nhà chúng có thể sử dụng như một không gian thư giãn của các gia đình. Từ thảm thực vật leo tường mà khi kết hợp với các màu sắc từ đèn chiếu sáng càng làm tôn lên một giá trị cho không gian sử dụng chung của ngôi nhà. Khi thiết kế nhà phố, đừng quên tìm kiếm cho mình một không gian như vậy nhé, vì chúng sẽ giúp ngôi nhà của bạn sẽ trở nên trọn vẹn hơn đấy.
Đừng quên theo dõi các bài viết tiếp theo của chúng tôi trong hạng mục nhà 1 trệt 3 lầu, chúng sẽ giúp bạn củng cố lại phong cách mà bạn có thể đang tìm kiếm cho công trình tương lai của mình. Xin chào và hẹn gặp lại !
Xem thêm :



























