Để có thể đáp ứng được về nhà ở ngày một cao tại Quận 7, rất nhiều chủ đầu tư đã cho tiến hành xây chung cư tại quận 7. Xây chung cư tại quận 7 như thế nào? Chí phí bao nhiêu cũng như cách phối cảnh như thế nào? Tất cả sẽ có trong bài viết dưới đây.
Chung cư tại quận 7 sử dụng phong cách kiến trúc như thế nào?
Phong cách kiến trúc sử dụng cho chung cư tại quận 7 vô cùng quan trọng bởi phong cách quyết định thẩm mỹ của cả căn chung cư, thẩm mỹ thu hút thì nhanh chóng bán hết, thu hồi vốn danh cũng như nâng được giá trị của căn chung cư chp chủ đầu tư. Cùng xem một vài kiến trúc tham khảo như sau:

Căn chung cư đầu tiên xây dựng tại quận 7 được giới thiệu trong bài viết này mang trong mình kiến trúc theo đuổi phong cách hiện đại.
Phong cách hiện đại trở thành một trong những phong cách được áp dụng phổ biến hiện nay, nhất là xây dựng những công trình có quy mô lớn như căn chung cư, những công trình mang mục đích kinh doanh. Nhìn chung cư quận 7 được áp dụng phong cách kiến trúc này có bề ngoài gọn gàng, hiện đại, phù hợp với một nhịp sống hiện đại, từng bước chuyển mình như ngày nay.
Nhiều người hẳn nghĩ những căn chung cư kiểu này thường thô cứng bởi những khối bê tông, hay nhưng tấm kính được gắn lên cửa mỗi căn chung cư bên trong, và thực sự như vậy sẽ không hài hòa với thiên nhiên và với cái nắng nóng tại Sài Gòn thì khi nhìn vào những căn chung cư như vậy gây ra cảm giác khó chịu cho ánh nhìn của mọi người. Tuy nhiên với kiến trúc xanh với việc xen kẽ cây xanh vào trong chính không gian sống đã mang đến một màu xanh của thiên nhiên cho không gian giữa lòng thành phố. Với việc bố trí thiên nhiên như thế này tạo cũng giúp những tòa nhà như thế này hạn chế được tối đa nắng nóng, lượng nhiệt mà khối bê tông nhận được vào ban ngày.

Trong không gian của chung cư tại quận 7 này có tích hợp cả trung tâm thương mại, giải trí, mua sắm để phục vụ cư dân sinh sống tại đây. Bể bơi được phối cảnh với hệ sinh thái bắt mắt, tạo không gian phù hợp với việc nghỉ dưỡng, nạp lại năng lượng cho ngày mới.

Một thiết kế khác được gợi ý xây chung cư tại quận 7 được gợi ý để chủ đầu tư tham khảo cho chung cư tương lai của mình. Về không gian mặt tiền thì không có quá nhiều sự thay đổi, có nét kiến trúc tương tự giống nhay với khối bê tông, mặt kính cường lực chắc chắn nhưng điểm đáng chú ý trong không gian này chính là khu vực tầng 3 của xây chung cư tại quận 7 này.Không gian tầng 3 được nối thông với nhau giữa 3 tòa nhà tạo nên một mặt phẳng dài. Tại không gian này được kiến trúc sư bố trí hệ thống sân vườn với tiểu cảnh cây xanh bao phủ xanh mát choa toàn bộ cư dân sinh sống. Trong không gian này mọi hoạt động tập thể diễn ra, là sân chơi cho trẻ con thoải sức vui đùa mà không lo ánh nắng hay nền nhiệt cao từ bê tông mang đến. Không gian này cũng được xem là điểm cộng hoàn hảo cho không gian xanh giữa lòng thành phố.

Nếu như kiến trúc bên trên đã quá quen mắt thì thử nhìn kiến trúc chữ U dành cho xây dựng chung cư tại quận 7 này xem như thế nào. Tất cả khuôn viên của căn chung cư đều gói gọn trong kiến trúc chữ U này, bao gồm: tòa nhà cư dân sinh sống, khu vực vui chơi giải trí, bể bơi dành cho cư dân. 3 tầng đầu tiên là tổ hợp mua sắm thương mại sầm xuất nhất với đại snahr cực lớn, cùng với hệ thống ánh sáng thu hút ánh nhìn của bất cứ ai đi ngang qua. Khu vực tầng 3 được để khoảng trống để bố trí khu vực bể bơi phục vụ nhu cầu của cư dân sinh sống tạo nên một không gian sống tiện nghi, hiện đại.

Nếu như chủ đầu tư chỉ sở hữu một diện tích hạn chế như trên thì xây chung cư tại quận 7 có gợi ý thiết kế như trên để tham khảo. Công trình được xây dựng với một trụ đứng vuông vức như bên trên. Ngoài tone màu trắng thường thấy, công trình chung cư này có thêm màu nâu, hoặc màu giả gỗ vừa tạo điểm nhấ lại vừa mang lại sự sang trọng cho tổng thể mặt tiền. Bao xung quang mặt tiền tầng 1 là hồ nước, tiểu cảnh cây xnah mang đến cảnh quan đẹp mắt, hài hòa, dễ chịu. Với một diện tích hạn chế, kiến trúc sư vẫn bố trí bể bơi ở tầng thượng của tòa nhà. Người dân khi sử dụng bể bơi nay hoàn toàn có thể nhìn ngắm ra toàn cảnh thành phố trong không gian yên tĩnh, thích hợp nghỉ ngơi, nạp lại năng lượng cho ngày làm việc mới.
Bố trí mặt bằng không gian bên trong chung cư tại quận 7

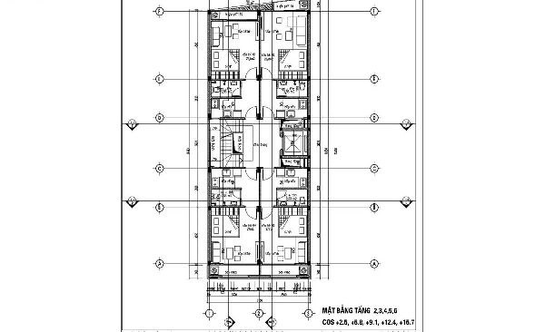
Mặt bằng thiết kế không gian của chung cư quận 7 này dành cho chung cư mini tham khảo như sau: mặt bằng mỗi tầng được bố trí 4 căn hộ với diện tích đủ để gia chủ có thể bố trí được: 1 phòng khách, 1 phòng ngủ, nhà vệ sinh. Với không gian này đủ đáp ứng cho những gia đình là cặp vợ chồng mới cưới, cặp vợ chồng già hay những người độc thân.

Ứng với không gian nhỏ hẹp như vậy thì gia chủ có thể tham khảo cách bố trí nội thất như trên. Không gian phòng khách theo phong cách hiện đại với nội thất đáp ứng tiện nghi của gia chủ: ghế sofa để gia chủ tiếp đón vị khách đến nhà mình, tivi gắn tường giúp tiết kiệm diện tích, và kệ tivi bên dưới để gia chủ có thể bày biện đồ trang trí theo sở thích của mình. Một bức tranh với màu xanh chủ đạo cùng với chiếc thảm tạo điểm nhấn vừa đủ cho không gian nhà. Kế tiếp là bộ bàn ăn 4 ghế nhỏ gọn, đáp ứng được nhu cầu cần thiết của gia chủ và nối liền là không gian bếp nhỏ gọn. Đối diện với bếp là tủ giầy của gia chủ, đi vào bên trong là nhà vệ sinh và phòng ngủ. Không gian sử dụng tone màu trắng hiện đại, những chiếc đèn led ánh sáng trắng, kiến trúc mở đã mang đến không gian rộng thoáng cho chính gia chủ sở hữu.

Với xây chung cư tại quận 7 cao cấp lại có nhưng cách bố trí khác như bên trên, công trình này xây dựng với hình chữ L. Mặt bằng mỗi tầng sẽ bao gồm 11 căn hộ cao cấp, trong mỗi căn hộ cao cấp sẽ bố trí: phòng khách, nhà vệ sinh, phòng ngủ. Tùy theo diện tích của mỗi căn hộ mà sẽ có từ 2 đến 3 phòng ngủ đáp ứng nhu cầu của gia chủ sở hữu.

Còn với căn hộ cao cấp nằm trong chung cư tại quận 7 sẽ có cách bố trí, sắp xếp để phù hợp với diện tích khá rộng. Không gian phòng khách tham khảo được bố trí một bộ bàn ghế sofa khá lớn, chiếc bàn có thiết kế cách tân, tạo điểm nhấn khá ấn tượng cho không gian bên trong nhà. Chiếc đèn được làm theo phong cách hiện đại làm điểm nhấn cho không gian. Tone màu trầm ấm thế này giúp cho không gian ấy trở nên ấm cúng hơn.
Chi phí xây chung cư tại quận 7
Chi phí xây chung cư tại quận 7 có mức giá tham khảo như sau:

Giá trị gói xây dựng cơ bản và cung cấp thiết bị = Gói này dao động từ 200.000.000 – 400.000.000 đồng tùy thuộc vào chủng loại vật tư và thiết bị chủ nhà yêu cầu.
Giá trị gói trang trí nội thất = Gói này dao động từ 100.000.000 – 200.000.000 tùy thuộc vào chất liệu gỗ cũng như thiết bị, phụ kiện đi kèm.
Chi phí xây chung cư tại quận 7 hiện nay chi tiết nhất, gia chủ có thể tham khảo tại website: xaydungso.vn. Xây dựng số được biết đến là sàn giao dịch và thương mại điện tử liên quan đến xây dựng lớn nhất hiện nay tại Việt Nam. Khi đến với Xây dựng số mọi thắc mắc về vấn đề xây dựng đều được đội ngũ tư vấn viên giải đáp một cách nhanh chóng, chính xác và hiệu quả bởi chúng tôi cam kết mang đến cho khách hàng những sản phẩm tốt nhất nhưng giá thành chi phí phải hợp lý nhất. Được tích hợp công nghệ 4.0 trong công cụ tìm kiếm, gia chủ hoàn toàn có thể tìm kiếm thông tin nhanh chóng chỉ qua một cú click chuột.
Xem thêm:

































