Có rất nhiều mẫu thiết kế nhà đẹp trên thị trường xây dựng ngày nay, tuy nhiên mẫu thiết kế nhà 3 tầng 1 tum mái thái vẫn chiếm được nhiều lòng yêu mến của mọi người. Mẫu thiết kế nhà 3 tầng 1 tum mái thái rất phù hợp với không gian của các thành viên trong gia đình. Vậy bạn đã biết các thiết kế mẫu nhà 3 tầng 1 tum mái thái đẹp nào chưa? Sau đây chúng tôi chia sẻ các mẫu nhà 3 tầng 1 tum mái thái đẹp cho bạn lựa chọn nhé.
Kho chứa kiến thức bổ ích nhất cho bạn – Xaydungso.vn

Tại sao trong từ điển Việt Nam có vô vàn vốn từ phong phú và nhiều nghĩa, trong đó chúng tôi lại chọn một từ đó chính là “kho”. Từ ngữ này chứa một ý nghĩa vô cùng lớn đối với trang web https://xaydungso.vn/. Bởi trang web này có vô vàn các lĩnh vực về xây dựng từ các công ty thiết kế đến thi công hay các nhà đầu tư nổi tiếng các nhà thầu xây dựng uy tín trên các tỉnh thành. Hay đơn giản là các mẫu nhà đẹp trên thực tế đều được trang web cập nhật thường xuyên. Vậy chúng ta không cần phải di chuyển đi tìm kiếm những thông tin đó ở đâu mà chúng ta có thể tìm thấy ngay trên trang web và tại nhà của chúng ta luôn. Vậy quá là tiện lợi cho chúng ta đúng không các bạn, vừa tiết kiệm chi phí và tiết kiệm thời gian.
Như vậy chúng tôi giới thiệu tới các bạn trang web https://xaydungso.vn/ với một kho kiến thức khổng lồ để có thể phục vụ các bạn thường xuyên. Chúc các bạn tìm kiếm được nhưng thông tin hay bổ ích cho mình trên trang web.

Hình ảnh 3D mẫu nhà xây 3 tầng 1 tum mái thái được nhiều người ưa thích nhất.
Để phục vụ các bạn và hỗ trợ các bạn một cách nhiệt tình cũng như hiệu quả nhất hôm nay chúng tôi chia sẻ đến các bạn những hình ảnh về mẫu nhà 3 tầng 1 tum mái thái đẹp nhất trên thị trường xây dựng năm nay. Từ các hình mẫu của chúng tôi các bạn có thể lựa chọn làm mẫu nhà cho mình hay giới thiệu tới bạn bè và người thân. Sau đây là các mẫu nhà 3 tầng 1 tum mái thái đẹp.

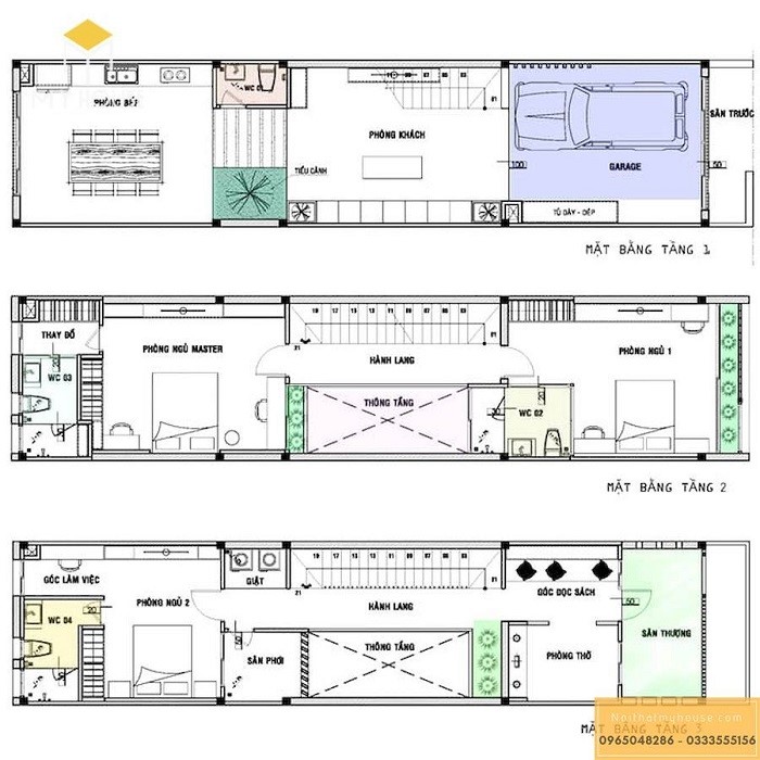
Mẫu số 1 chúng tôi đưa ra cho các bạn tham khảo chính là mẫu nhà 3 tầng 1 tum mái thái được nhiều doanh nhân trẻ yêu thích và sử dụng làm tổ ấm cho gia đình mình. Với mẫu nhà trên có diện tích là 60m2 có chi phí thi công là 1 tỷ 200 triệu, đây là mức chi phí cho toàn bộ ngôi nhà 3 tầng 1 tum mái thái này. Khi chúng ta có ý định xây dựng nhà cho mình thì bạn hãy tìm hiểu những mẫu nhà 3 tầng đẹp nhất có ảnh hưởng quan trọng đến chiến lược thi công xây dựng công trình của chủ đầu tư, cho dù mục đích thi công vì bất cứ lý do gì đi chẳng nữa thì yêu cầu thiết kế kiến trúc trước khi thi công là yếu tố tất yếu bắt buộc nếu như bạn mong muốn sở hữu một ngôi nhà với không gian sang trọng và tiện nghi.

Nếu bạn thiết kế mẫu nhà 3 tầng 1 tum mái thái trước thì không những bạn sẽ dự toán được chi phí thi công mà quan trọng là bạn còn có thể biết được các hạng mục kỹ thuật thi công có đảm bảo như hồ sơ thiết kế thi công công trình hay không? Đây chính là vấn đề mà bạn cần quan tâm nhất để có căn hộ đẹp như ý nhất, tránh các trường hợp xấu nhất có thể xảy ra đối với các công trình xây dựng. Đây chính là mẫu nhà 3 tầng 1 tum mái thái thiết kế theo phong cách hiện đại với kiến trúc tinh tế và công năng sử dụng khoa học và phối cảnh mặt tiền ấn tượng. Diện tích xây dựng công trình nhà 3 tầng 1 tum mái thái này là 180m2 và chi phí xây dựng đầu tư trọn gói từ thiết kế đến thi công là 2 tỷ đồng.

Phối cảnh bản vẽ mẫu nhà 3 tầng 1 tum mái thái đẹp.
Để các bạn dễ dàng hình dung về ngôi nhà mà mình định xây dựng nên sẽ như thế nào thì sau đây chúng tôi cung cấp cho các bạn về hình ảnh phối cảnh mẫu nhà 3 tầng 1 tum mái thái đẹp nhất cho các bạn. Mẫu nhà 3 tầng 1 tum mái thái đẹp với thiết kế có tính thẩm mỹ cao cũng như có nhiều ưu điểm như cao ráo và thoáng mát hiện đại hợp phong thủy cho nên đây luôn là mẫu dẫn đầu thi công thiết kế mẫu nhà hiện đại nhất năm 2021.

Mẫu bản vẽ nhà phù hợp luôn mang lại vận may cho bạn. Vậy nên trước khi xây dựng nhà bạn cần chú ý đến các vấn đề duy tâm và thực tế để luôn được may mắn nhất trong cuộc sống. Có vậy công việc làm ăn của bạn mới may mắn và thành công trên con đường sự nghiệp cũng như các lĩnh vực khác trong cuộc sống.
Đối với mẫu nhà 3 tầng 1 tum mái thái này chúng ta có thể thao hồ trang trí nội thất theo ý thích như các mẫu nhà khác tuy nhiên mẫu này có chi phí thấp dẫn đến nhiều hộ gia đình lựa chọn làm mẫu nhà cho gia đình mình. Chỉ với mức chi phí vừa phải không cao quá cũng không thấp quá mà bạn có ngay một không gian ngôi nhà với diện tích sinh hoạt cho nhiều thành viên trong gia đình. Vậy tai sao bạn không lựa chọn mẫu nhà này nhỉ? Đây chính là mẫu nhà hợp nhất với không gian cho gia đình bạn.
Với diện tích sinh hoạt trong gia đình luôn được thoải mái mà còn có cả không gian hay gara cho ô tô, đây chính là mẫu thiết kế tiện lợi nhất cho bạn rồi.

Hình ảnh bản vẽ nhà 3 tầng 1 tum mái thái mà chúng tôi vừa chia sẻ trên bài là một hình ảnh rất đẹp với một thiết kế hiện đại đáp ứng đầy đủ cả về chất lượng cũng như thẩm mỹ của ngôi nhà. Đến với thiết kế nhà 3 tầng 1 tum mái thái này chúng ta không khỏi ngỡ ngàng bởi vẻ đẹp sang trọng cũng như tinh tế của mẫu nhà này. Thiết kế nhà cho không gian rộng mở và tiện lợi cho các thành viên trong gia đình. Mặt tiền ngôi nhà được trang trí rất khoa học và độc đáo, bởi các đường nét họa tiết trang trí sang trọng làm nổi bật nên vẻ đẹp của ngôi nhà.
Ngôi nhà được thiết kế và bố trí cửa kính khung gỗ, loại kính mà nhà thiết kế sử dụng cho ngôi nhà đó chính là kính cường lực chịu lực và có thể cách âm tốt cho ngôi nhà luôn bình yên. Trang trí nổi bật của ngôi nhà không chỉ có các họa tiết trang trí và còn được trang trí bởi các cây cảnh xanh được đặt ở lan can nhà. Ban công được thiết kế ô vuông trống để trang trí chậu hoa đồng tiền đẹp cho không gian nhà thêm ngát hương và lãng mạn.

Khi chúng ta quan sát về phối cảnh bản vẻ của mặt bằng ngôi nhà 3 tầng 1 tum mái thái này chúng ta thấy màu chủ đạo đó chính là màu trắng nhưng được nổi bật và tô điểm cùng màu xanh ngọc. Chính sự kết hợp linh hoạt về màu sắc đó càng tôn nên vẻ đẹp cho ngôi nhà. Bên cạnh đó vẻ đẹp sang trọng của ngôi nhà còn có sự đóng góp không nhỏ của vai trò cây xanh trong ngôi nhà.

Phối cảnh nội thất hoàn mỹ của nhà 3 tầng 1 tum mái thái.
Riêng về nội thất của mẫu nhà 3 tầng 1 tum cũng sẽ giống như những mẫu nhà khác, ngoài việc cập nhật những xu hướng mới nhất bạn phải có những tư duy trong phối đồ nội thất để tạo cho ngôi nhà của mình những dấu ấn riêng về gu thẩm mỹ. Phải nói rằng nội thất bao gồm: gạch ốp lát, bàn ghế, giường tủ,…và nhiều những nội thất khác góp phần quan trọng tạo nên vẻ đẹp chung cho ngôi nhà.
Một thiết kế mẫu nhà 3 tầng 1 tum đẹp các trang trí rất đơn điệu và hiện đại tạo nên vẻ đẹp sang trọng cho ngôi nhà. Không phải là các thiết kế rườm rà hay các hoa văn đường chỉ phào cẩn thận nhưng ngôi nhà vẫn toát lên hết vẻ đẹp ngất ngây đó. Đến với mẫu thiết kế nhà này diện tích sử dụng phù hợp cho 5 thành viên trong gia đình và không gian sinh hoạt thoáng đãng sạch sẽ trong lành bởi các cây xanh xung quanh nhà tạo nên. Các nội thất trong nhà luôn được gia chủ cẩn thận chọn lọc và đều là các sản phẩm từ gỗ tự nhiên.
Các thiết bị phục vụ gia đình nhu gường tủ kệ tivi hay các vật dựng trong bếp đều được gia công từ gỗ hương – loại gỗ có chất lượng tốt và luôn có mùi hương thơm.

Những thông tin về mẫu nhà 3 tầng 1 tum mái thái đẹp được chúng tôi cập nhật trên bài. Các thông tin này sẽ giúp ích cho bạn nhiều trong công tác chuẩn bị tìm mẫu nhà cho ngôi nhà mình định xây dựng. Chúc các bạn tìm được thông tin và mẫu nhà ưng ý nhất hợp nhất với gia đình mình.
Xem thêm


































