Hiện nay, thiết kế quán cafe phong cách Châu Âu ngày càng phổ biến bởi sự thanh lịch và sang trọng. Vậy làm sao để có được mẫu thiết kế quán cafe đẹp? Hãy cùng Xây Dựng Số tìm hiểu một số thông tin qua bài viết dưới đây.
1. Mặt bằng thiết kế quán cafe phong cách Châu Âu có chi phí 180 triệu

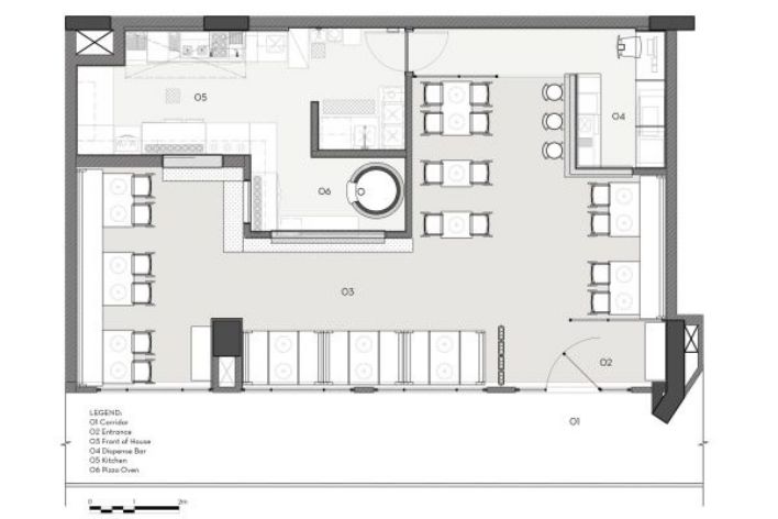
Theo yêu cầu của chủ kinh doanh, với diện tích 100m2 sẽ có công năng bao gồm khu vực bếp, khu vực quầy phục vụ, khu vực danh cho khách hàng. Trong mặt bằng thiết kế quán cafe này, các kiến trúc sư đã có sự tính toán không gian của từng khu vực sau khi khảo sát thự tế. Quán được thiết kế dọc theo sảnh để khách hàng dễ dàng đi lại và quan sát được không gian bên trong quán. Từ sảnh chính đi vào là cửa chính với phần lối đi được thiết kế rộng và thoải mái dành cho khách hàng.
Khu vực dành cho khách hàng được đặt dọc hành lang đi lại với thiết kế bàn dài kết hợp ghế sofa. Tại vị trí này các khách hàng có thể vừa thưởng thức đồ uống, vừa ngắm cảnh bên ngoài qua khung cửa kính. Sâu vào bên trong quán, là những bộ bàn ghế được đặt sát tường với hướng nhìn ra bên ngoài. Thế kế kiểu bàn đôi và tạo khoảng cách thoải mái cho khách hàng đi lại. Hơn nữa, khách hàng có thể chọn lựa nhiều góc, vị trí ngồi khác nhau để quan ngắm cảnh.
Bên cạnh quầy bar cũng là khu vực nữa dành cho khách hàng. Tại đây khách có thể chọn loại ghế ngồi sát tường hướng nhìn ra ngoài hoặc ngồi tại quầy bar. Khu vực bếp, pha chế được thiết kế với diện tích rộng, cách bố trí khoa học.Trong mẫu thiết kế quán cafe phong cách Châu Âu này, các kiến trúc sư đã có phương pháp phân bố không gian đi lại tạo sự thông thoáng và tiện lợi khi di chuyển. Hành lang giữa các bàn ăn được bài trí rộng rãi, khu vực quầy bar không chiếm quá nhiều diện tích nhưng vẫn đảm bảo đủ ghế ngồi cho khách hàng.
Mỗi khu vực dành cho khách hàng đều có hướng nhìn khác nhau, vì thế có thể dễ dàng chọn chôc ngồi để thức đồ uống cũng như trò chuyện cùng bạn bè.

2. Chi phí thiết kế thi công quán cafe hiện nay là bao nhiêu?
Việc tính toán chi phí thiết kế thi công là điều mà chủ đầu tư nào cũng nên thực hiện ngay từ khi có ý định kinh doanh mở quán cafe. Đâu là mức chi phí cần thiết khi thi công, thiết kế quán cafe, hãy cùng Xây dựng số nhẩm tính một vài chi phí sau đây.
2.1 Chi phí thuê mặt bằng
Nhiều chủ đầu tư rất nôn nóng khi muốn sở hữu ngay một quán cafe nên thường đẩy nhanh việc chọn mặt bằng nhưng không suy tính tới hiệu quả sử dụng. Nhiều lúc, chỉ vì muốn chi ra ít tiền mà họ lựa chọn những mặt bằng khó, địa điểm mở quán không thuận lợi. Ngoài ra, vị trí kinh doanh, đối tượng khách hàng mục tiêu… cũng là những yếu tố mà bạn nên xét đến.

Chủ kinh doanh không nên chọn đường 1 chiều vì gây ra sự bất lợi khi đến quán. Với giá thành đắt đỏ hiện nay ở một số thành phố lớn, để có một mặt bằng kinh doanh rộng rãi có chỗ để xe thì bạn cần bỏ ra khoản chi phí từ 20-25 triệu đồng/tháng. Còn với vị trí mặt đường thì giá thuê có thể gấp đôi mức này.
2.2 Chi phí cho việc thiết kế và thi công quán cà phê
Việc thiết kế thi công là điều cần thiết đối với mọi công trình, không riêng gì quán cà phê. Vậy nên, bạn không thể bỏ qua khoản chi phí này khi đầu tư kinh doanh quán cafe. Mức đầu tư của bạn là bao nhiêu thì sẽ mang tới không gian chất lượng bấy nhiêu. Để có được mức giá tối ưu với nhiều khuyến mãi thì bạn nên chọn những đơn vị thi công thiết kế trọn gói.
2.3 Chi phí đầu tư bàn ghế và vật dụng nội thất cho quán
Hiện nay, các mẫu bàn ghế dành cho quán cafe rất đa dạng và có nhiều mức giá khác nhau. Có những mẫu bàn chỉ có giá khoảng 200.000-300.000 đồng. Tất nhiên sẽ có những mẫu bàn ghế có mức giá cao hơn, với giá thành lên tới cả triệu đồng. Thế nên, các chủ đầu tư không cần quá lo lắng khi lựa chọn bàn ghế cho quán.

2.4 Chi phí mua các vật dụng cần thiết cho quán cà phê
Chi phí này bao gồm hệ thống đện, đồ dùng cho khu vực chế biến, bồn rửa, toilet… có chi phí khoảng 20-30 triệu. Ngoài ra, bạn cũng phải tính toán đến các chi phí mua các loại máy móc dành cho việc kinh doanh như máy pha cà phê, máy ép hoa quả, máy xay sinh tố,.. Việc đầu tư các loại máy móc tốt để có đồ uống chất lượng tốt là điều mà chủ kinh doanh nào cũng nên biết. Mức chi phí bạn sẽ phải bỏ ra cho các vật dụng này thường khoảng 40 triệu.
Ngoài những chi phí này, bạn cũng nên dự trù phí thuê nhân viên, cũng như khoản chi phí hàng tháng tiêu tốn. Mức kinh phí cho khoản này thường khoảng 10-15 triệu
3. Gợi ý một số mẫu thiết kế quán cafe đẹp chuẩn phong cách châu Âu

Mẫu thiết kế quán cafe mang phong cách Châu Âu số 1
Ngắm nhìn mặt tiền mẫu thiết kế quán cafe Châu Âu này, điều đầu tiên mà chúng ta cảm nhận được đó chính là toàn bộ khung cảnh lịch thiệp, sang trọng. Cách bài trí bàn ghế của mẫu thiết kế này khá hợp lý. Những khách hàng nào muốn vừa thưởng thức cà phê, vừa tận thưởng sự mát mẻ, trong lành của thiên nhiên thì phong cách thiết kế này sẽ đáp ứng được nhu cầu đó.

Cũng giống như những mẫu thiết kế quán cà phê khác, yếu tố ánh sáng luôn được chú trọng hàng đầu. Nguồn ánh sáng tự nhiên là nhân tố không thể thiếu bởi nó sẽ cung cấp chiếu sáng cho cả không gian bên trong lẫn bên ngoài qua những khung cửa sổ rộng được làm từ kính. Điều này khiến ngồi bên trong những vẫn ngắm được khung cảnh bên ngoài và đón nhận ánh sáng mặt trời cùng những làn gió mát nhè nhẹ.

Mẫu thiết kế quán cafe Châu Âu sân vườn
Không gian quán được nằm trên mảnh đất có diện tích hơn 400m2 với yêu cầu của chủ quán cần khoảng 80m2 làm cafe trong nhà, còn lại là sân vườn. Do có lợi thế tốt nằm ngay góc ngã tư đường trong khu đô thị nên đội ngũ kiến trúc sư đã tận dụng để thiết kế quán thành 2 lối đi chính và phụ nhằm giảm lượng người trên mỗi lối đi. Điểm ấn tượng của mẫu thiết kế này là lối đi chính, sau khi đi qua cổng được thiết kế giản dị đẹp mắt thì chúng ta sẽ bắt gặp lối đi từng bậc đá trên hồ nước cực cuốn hút.

Mẫu thiết kế quán cafe đẹp phong cách Châu Âu số 3
Ngay khi bước vào không gian quán, chúng ta có thể nhìn thấy được hệ thống quầy bar, pha chế được trang trí lộng lẫy với hai bên là kệ trang trí có kích thước cao tới trần giúp tiết kiệm không gian. Phía bên trái là kệ sắt với những chậu cây nhỏ được đặt bên trong mang lại không gian xanh cho quán. Còn phía bên trái là tủ rượu sang chảnh với hệ thống đèn ánh vàng càng làm tôn thêm vẻ đẹp cho quán cafe.
Thiết kế nội thất của mẫu quán cafe Châu Âu đẹp với hệ thống bàn ghế độc đáo, ghế bọc vải khung gỗ mang lại sự mới lạ cho không gian. Những chiếc gối tựa lưng nhỏ màu xanh cũng là điểm nhân nổi bật của quán. Trong phương án thiết kế nội thất, các kiến trúc sư sử dụng những cây tre được xếp thẳng tạo thành vách ngăn giữa, đèn treo được cách điệu, mô phỏng lồng chim tạo ấn tượng, thu hút với mỗi khách hàng khi đến đây.

Mẫu thiết kế số 4 quán cafe phong cách Châu Âu hiện đại
Trong mẫu thiết kế quán cafe hiện đại, ánh sáng được sử dụng là ánh sáng trắng giúp không gian trang nhã và khách hàng cảm thấy thoải mái, nhẹ nhàng hơn. Hơn nữa, với những quán có diện tích khiêm tốn thì việc sử dụng ánh sáng trắng càng quan trọng bởi nó giúp cho không gian trở nên rộng rãi hơn. Vậy nên, không chỉ riêng thiết kế quán cafe Châu Âu mà hầu hết các quán cafe phong cách hiện đại cũng đều sử dụng gam màu trắng để tạo nên không gian thoải mái, cũng như mắt nhìn của thực khách về các loại đồ uống sẽ đẹp hơn.

Cuối cùng, Xây dựng số xin được nhắc lại, việc thiết kế quán cafe là một vấn đề rất cần thiết nếu bạn muốn kinh doanh cafe. Đừng để đến khi bạn nhân ra tầm quan trọng của bước thiết kế thi công thì quán cafe đã rơi vào giai đoạn bế tắc. Vậy nên, bạn hãy tìm đến những đơn vị, công ty thiết kế chuyên nghiệp và uy tín. Họ sẽ giúp bạn chi tiết hóa những ý tưởng cũng như dự trù được mức chi phí cần thiết và tránh được những phát sinh không mong muốn.
Nếu bạn đang phân vân chưa biết lựa chọn nhà thầu, đơn vị thi công nào hãy liên hệ với Xây Dựng Số. Là sàn giao dịch thương mại điện tử với hàng ngàn nhà thầu, công ty xây dựng với hồ sơ năng lực minh bạch, chúng tôi sẽ giúp bạn tìm được đối tác với mức giá tối ưu nhất, cũng như tiết kiệm chi phí hiệu quả.
Xem thêm


































