Trong thời gian gần đây, những mẫu thiết kế nhà 2 tầng luôn nhận được nhiều sự quan tâm hơn cả. Trong phạm vi bài viết này, công ty chúng tôi trân trọng gửi đến quý bạn đọc cũng như quý khách hàng một bản thiết kế nhà 2 tầng kiến trúc mái độc đáo vô cùng hiện đại và đẹp mắt. Công trình được công ty Wedo thiết kế và thi công trọn gói vào đầu năm 2018 cho chủ đầu tư anh Thông tại Hải Phòng.

Mặt tiền mẫu nhà 2 tầng 10x15m
Thiết kế nhà 2 tầng với những ưu điểm nổi trội về mẫu thiết kế, hình khối kiến trúc đơn giản, chi phí đầu tư hợp lý cùng với công năng được tối ưu và sắp xếp khoa học, đó cũng là lý do mà anh Thông muốn sở hữu cho mình một ngôi nhà 2 tầng như ý. Chúng tôi rất vui mừng khi nhận được cuộc gọi của anh Thông chia sẻ về nguyện vọng của mình. Anh biết đến công ty qua người bạn giới thiệu. Anh có lô đất mặt tiền 10m, chiều sâu ô đất là 15m. Gia đình hiện tại có 4 thành viên và 3 thế hệ cùng sinh sống. Năm 2018 anh được tuổi xây nhà, do đó cuối năm 2017 anh đã hoàn thiện mọi thủ tục xin cấp phép xây dựng cho công trình nhà 2 tầng của mình.
Vào đầu năm 2018 anh muốn bắt tay vào xây dựng luôn, do đó sau tết Dương lịch anh đã tìm đến công ty chúng tôi nhờ kiến trúc sư tư vấn thiết kế cho anh một mẫu nhà 2 tầng hiện đại, với công năng khoa học và tối ưu nhất. Phong cách mà anh yêu thích là đơn giản, sang trọng và ấm cúng. Chúng tôi có thời gian là 1 tuần để hoàn thiện phương án bản thiết kế nhà 2 tầng cũng như hồ sơ thiết kế thi công nhà 2 tầng cho anh. Cũng như các khách hàng khác, chúng tôi đã tiếp nhận yêu cầu tư vấn của khách hàng, kiến trúc sư và cán bộ kỹ thuật đã nhanh chóng xuống Hải Phòng để khảo sát hiện trạng ô đất xây dựng và lên phương án thiết kế sơ bộ mẫu nhà cho gia đình anh Thông để lên phương án thiết kế cho ngôi nhà.
Tổng quan phương án thực thi bản thiết kế nhà 2 tầng 10x15m hiện đại
Về đến đất Hải Phòng mới thấy cuộc sống của con người nơi đây phát triển đến nhường nào. Địa thế đất nhà anh mới đẹp làm sao. Ô đất tọa lạc ngay tại trục đường chính, hình khối khá vuông vức và đẹp mắt. Xung quanh có nhiều cây cối cảnh quan thiên nhiên, kiến trúc nhà dân ở đây đa số là mẫu nhà mái bằng và mái tôn. Nền đất ô đất của anh Thông cứng, bền chắc, rất thuận tiện cho việc thiết kế kết cấu móng để chịu lực tải trọng của toàn bộ công trình mà không gặp phải vướng mắc hay khó khăn gì. Vì thế, chúng tôi đã hình dung ra một ngôi nhà vô cùng khang trang sẽ tọa lạc trên mảnh đất này.

Mẫu thiết kế nhà 2 tầng với kiến trúc mái độc đáo
Sau buổi thực tế đo đạc và phân tích đất nơi đây. Chúng tôi đưa ra phương án thiết kế nhà 2 tầng mái bằng nhưng được cách điệu bằng cách sẽ thiết kế mái giật cấp theo lớp, vừa tạo sự bền chắc, vừa tạo sự cân đối hình khối, đồng thời tăng tính thẩm mỹ và độc đáo hơn so với những bản thiết kế nhà 2 tầng trước đó. Hứa hẹn sẽ là một ngôi nhà độc đáo nhất trong mảnh đất này.
Để có một ngôi nhà đẹp đó là sự kết hợp khéo léo giữa kiến trúc tầng 1 và tầng 2. Sự hài hòa giữa hình khối kiến trúc hiện đại và một sự tối ưu công năng khoa học nhất giúp cho cuộc sống sinh hoạt của các thành viên có sự thoải mái nhất khi sống trong ngôi nhà. Chúng tôi đã thiết kế công năng 2 tầng khá phù hợp.

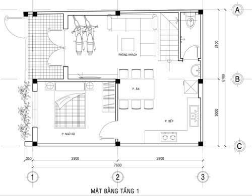
Đối với không gian tầng 1 bản thiết kế nhà 2 tầng khá hoàn hảo. Phía trước là sảnh chính của ngôi nhà, đi vào trong là gara để xe ô tô và xe máy cho các thành viên trong gia đình. Tiếp sau đó là không gian phòng khách, với thiết kế đơn giản nhưng khá hiện đại và sang trọng. Đây là nơi anh Thông tiếp đón những người bạn và những vị khách quý đến chơi nhà thường xuyên. Ngay cạnh phòng khách là thiết kế cầu thang bộ thông tầng, bên cạnh đó là nhà vệ sinh chung được thiết kế ngay tại cầu thang để che đi phần trống và tăng tính thẩm mỹ hơn cho không gian phòng khách. Phòng thờ được thiết kế tích hợp với phòng khách ngay tại tầng 1, đây là lối thiết kế phổ biến tại các làng quê Việt Nam hiện nay.
Chúng tôi đã để đối diện phòng khách là phòng ăn và bếp được thiết kế riêng biệt một góc khá khoa học. Từ phòng bếp đi sâu vào phía trong bên trái là phòng ngủ ông bà, được chúng tôi thiết kế cho bố mẹ anh Thông. Phòng ngủ người già được thiết kế ngay tại tầng 1 để hạn chế sự di chuyển đi lại của ông bà với cầu thang, sẽ không tốt cho sức khỏe của người già cao tuổi. Từ phòng của ông bà có hướng view nhìn ra mặt tiền cảnh quan phía trước khá đẹp mắt. Mọi người sẽ có cảm giác thư thái khi ở trong ngôi nhà của mình.

Đối với tầng 2 được thiết kế 2 phòng ngủ là phòng ngủ của bố mẹ và phòng ngủ của con. Phòng ngủ của bố mẹ được thiết kế có hướng cửa ra ban công mặt tiền trước, đồ nội thất đơn giản nhưng được lựa chọn theo sở thích của vợ anh Thông. Để tận dụng không gian sinh hoạt tối đa, chúng tôi chỉ thiết kế một nhà vệ sinh chung duy nhất tại tầng 2, bên cạnh là phòng giặt phơi quần áo của cả gia đình. Như vậy tầng 2 khá rộng rãi và thoải mái đúng không nào?
Từ khi bắt đầu đến khi hoàn thiện ngôi nhà của anh Thông chỉ trong vòng 5 tháng, sau khi hoàn công cả gia đình đã làm lễ tân gia và đang đưa vào sử dụng. Với thiết kế đẹp, lạ, cùng với công năng được sắp xếp hợp lý đã giúp gia chủ có những phút giây thư thái nhất trong cuộc sống hiện đại. Niềm vui và hạnh phúc của gia đình khi được chuyển đến ngôi nhà mới cũng là niềm hạnh phúc của chúng tôi. Với tâm thế làm việc với sự tận tâm nhất. Nếu bạn muốn sở hữu mẫu nhà 2 tầng hiện đại như thế, quý khách hàng vui lòng liên hệ với công ty xây dựng kiến trúc Wedo, chúng tôi luôn sẵn lòng để phục vụ mọi yêu cầu của quý khách với phương châm: sự hài lòng của khách hàng là nguyên lý hoạt động sống còn của công ty. Rất hy vọng được đồng hành cùng các bạn xây dựng ngôi nhà như mong ước.
Nguồn tin: https://wedo.vn/
Có thể bạn muốn xem:
Xây nhà 2 tầng 80m2 hết bao nhiêu tiền
Xây dựng nhà 2 tầng 100m2 bao nhiêu tiền


































