Chúng tôi tiếp tục giới thiệu đến quý khách hàng mẫu thiết kế biệt thự 3 tầng mái thái với cấu trúc hình chữ L đặc biệt. Công trình này được hình thành trên diện tích đất rộng rãi 10x16m, theo đó mang đến không gian thuận tiện, kiến tạo mái ấm bình yên, đẳng cấp cho gia đình. Nhằm gia tăng tính thẩm mỹ và thoáng mát cho toàn căn biệt thự, phần mái của thiết kế này sẽ được đổ bê tông 1 sàn và lợp ngói bằng hệ khung thép mạ kém.

Phối cảnh biệt thự 10x16m góc 1
Nhìn trực diện căn biệt thự, từ góc nhìn này khách hàng dễ thấy được sự đồ sộ và nguy nga tráng lệ của mẫu thiết kế. Các chi tiết được bố trí và sắp xếp một cách hợp lý mà không rối mắt. Hệ thống cửa sử dụng vật liệu gỗ đẳng cấp, phần lan can lại xây dựng bằng kính cường lực trong suốt tăng thêm sự tinh tế cho mẫu biệt thự. Không gì khác, phần mái thái chính là yếu tố quyết định tạo sự thu hút và hấp dẫn cho công trình này. Đây cũng là khu vực đòi hỏi sự tỉ mỉ và chăm chút cẩn thận.

Phối cảnh biệt thự 10x16m góc 2
Từ góc nhìn này, khách hàng dễ quan sát được cấu trúc hình chữ L và các không gian bố trí theo mẫu thiết kế một cách thông minh và đầy sáng tạo. Các hệ thống cửa ngoài mang lại ánh sáng cho toàn căn mà còn góp phần điểm tô cho kiến trúc của dự án này, tạo điểm nhấn, tránh sự trống trải.

Phối cảnh biệt thự 10x16m góc 3
Góc nhìn này sẽ hướng khách hàng nhìn thấy trọn vẹn không gian mặt bên, tại đây có công đi ra từ gara xe.

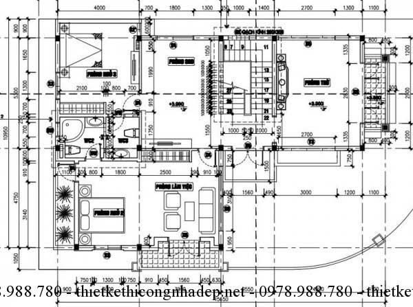
Mặt bằng tầng 1
Giống như những dự án khác, tại tầng 1 sẽ bao gồm 1 phòng khách, phòng bếp, phòng ăn diện tích rộng rãi, thông thoáng. 1 phòng ngủ nhỏ dành cho gia nhân hay tùy vào nhu cầu của gia chủ sẽ được bố trí hợp lý tại khu vực này.

Mặt bằng tầng 2
Không gian riêng tư của thành viên trong gia đình sẽ được sắp xếp thông minh và thuận tiện tại mặt bằng tầng 2 biệt thự. Theo đó sẽ có 2 phòng ngủ được xây dựng, trong đó có 1 phòng ngủ trang bị phòng vệ sinh riêng. Tại đây còn bao gồm 1 phòng thờ, 1 phòng vệ sinh chung cho cả tầng, 1 phòng sinh hoạt chung để cả gia đình nghỉ ngơi, sum họp.

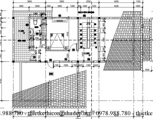
Mặt bằng tầng 3
1 phòng ngủ dành cho khách sẽ được xây dựng tại mặt bằng tầng 3, kèm 2 khu vực dành làm nhà kho. Vì là mẫu thi công bắt mắt và ấn tượng đòi hỏi thi công phức tạp và độ khó cao do vậy mẫu thiết kế này khá tốn kém chi phí. Tuy nhiên không gian lại cực kỳ thoáng mát và rộng rãi.
Đây là mẫu biệt thự 3 tầng được xây dựng kiểu kiến trúc mái thái với cấu trúc không gian hình chữ L hiện đại, vừa khớp với diện tích. Tổng diện tích sàn của biệt thự là 320m2, dự kiến chi phí hoàn thiện công trình là 1,4 tỷ đồng, xây dựng trên diện tích 10.5×16.5m.
Tại đây, đáp ứng yêu cầu của gia chủ, căn biệt thự sẽ bao gồm 4 phòng ngủ rải đều ở các tầng, 1 phòng dành cho gia nhân hoặc ông bà lớn tuổi ( tùy vào nhu cầu của gia đình), 2 phòng ngủ dành cho gia đình ở tầng 2 có diện tích rộng rãi, phòng còn lại dành cho khách được đặt ở tầng 3. Khu vực gara cũng được bố trí hợp lý. Phần diện tích chưa sử dụng sẽ dùng làm khu vườn, nơi chưng bày tiểu cảnh, trồng hoa hay sắp đặt bàn trà để gia đình thư giản nghỉ ngơi uống trà, đàm đạo.
Nguồn tin: https://thietkethicongnhadep.net/
Có thể bạn muốn xem thêm:


































