Biệt thự mái thái là chủ đề gây sự thu hút số đông các gia chủ đang có dự định xây dựng nhà đẹp, nhưng không phải ai cũng đủ tài chính để sở hữu căn nhà bề thế này. Đáp ứng đầy đủ các nhu cầu sinh sống, kiến trúc nắm bắt xu hướng thời thượng, thể hiện cá tính nổi bật là những gì bạn nhận được khi sở hữu ngôi nhà sang trọng này. Phương án thiết kế biệt thự 3 tầng dưới đây được chủ đầu tư tại Thanh Hóa lựa chọn phong cách hiện đại làm điểm nhấn, kết hợp mái thái khá bắt mắt. Ngoài nét đẹp thẫm mỹ cao, biệt thự mái thái được xây dựng phù hợp với phong thủy và vận mệnh của chủ đầu tư, đem lại tài vận may mắn. Là mẫu nhà đẹp hiện đại nắm bắt xu hướng mới nhất, kiến trúc biệt thự 3 tầng mái thái tại đây khiến nhiều hộ gia đình phải mơ ước sở hữu. Cùng website xem ngay phương án bản vẽ thiết kế nhà biệt thự 3 tầng hiện đại kết hợp mái thái đẹp thịnh hành, được nhiều kiến trúc sư nổi tiếng tại Việt Nam đánh giá cao.
Thông tin phương án thiết kế nhà:
- Tổng diện tích: 12 x 12 = 144m2.
- Địa điểm xây dựng: Thanh Hóa.
- Thời gian hoàn thiện: Khoảng 4 tháng.
- Kiến trúc: Biệt thự 3 tầng hiện đại kết hợp mái thái.
Phối cảnh bản vẽ thiết kế nhà biệt thự 3 tầng mái thái đẹp

Mẫu biệt thự 3 tầng mang phong cách hiện đại
Kiến trúc sang trọng, không gian tiện nghi, kiểu dáng nắm bắt xu hướng, công năng bố trí hợp lý là những lợi thế được thể hiện qua phương án nhà biệt thự 3 tầng hiện đại này. Không riêng gì kiến trúc biệt thự sang trọng, mà nhiều kiến trúc nhà đẹp hiện nay cũng khá ưu tiên mái thái làm điểm nhấn cho ngôi nhà. Mái thái được biết đến là kiểu mái thông dụng, có nhiều ưu điểm nổi bật không thể bỏ qua như: Giảm nhiệt độ nóng đáng kể, chống ứ đọng nước, có thời gian tuổi thọ lâu năm, dễ dàng thi công, đa dạng mẫu mã,…

Thiết kế biệt thự 3 tầng mái thái trên diện tích 12x12m
Kết cấu công năng trong nhà biệt thự mái thái này do kiến trúc sư có nhiều năm kinh nghiệm thiết kế, tận dụng tối đa các không gian trong nhà. Tổng quan mặt tiền phía trước bố trí khuôn viên sân vườn cây xanh tiểu cảnh đẹp mắt, góp phần tăng nét đẹp sinh động cho mặt tiền phía trước. Đặc biệt khuôn viên sân vườn biệt thự còn đem lại nguồn không khí mát mẻ và trong lành. Vì gia đình có nhiều thành viên sinh sống nên kts đã bố trí có đến 5 phòng ngủ rộng rãi, khu vực này thi công tường cách âm tốt giúp mang đến không gian riêng tư và thoải mái nhất khi nghỉ ngơi.
Toàn bộ các cửa sổ và lan can biệt thự 3 tầng mái thái sử dụng kính cường lực cao cấp góp phần tăng tinh thẩm mỹ. Sử dụng kính cường lực cho các căn phòng còn là giải pháp đưa ánh sáng tự nhiên vào không gian ngôi nhà hoàn toàn miễn phí, giảm chi phí đèn điện vào ban ngày. Toàn bộ nội thất trong nhà sử dụng mặt hàng cao cấp, tăng giá trị cho ngôi nhà cũng như thể hiện giá trị của chủ đầu tư.

Bản vẽ mặt bằng công năng tầng 1
Tầng 1 thiết kế: Sân vườn, sân để xe hơi, phòng khách, 2 phòng ngủ, phòng bếp ăn, phòng vệ sinh.

Bản vẽ mặt bằng công năng tầng 2
Tầng 2 thiết kế: 3 Phòng ngủ, phòng sinh hoạt chung, 1 phòng vệ sinh chung, ban công rộng rãi.

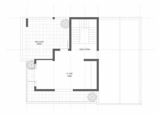
Bản vẽ mặt bằng công năng tầng 3
Tầng 3 thiết kế: phòng thờ bố trí khu vực riêng khá yên tĩnh, sân phơi đồ cho cả gia đình.
Mẫu biệt thự đẹp phong cách hiện đại có diện tích sử dụng là 144m2 (12×12), là khoản diện tích khá rộng rãi và dễ dàng trong việc bố trí không gian tiện nghi. Vì là chủ đề hiện đại, nên biệt thự sang trọng này sử dụng tone màu trắng sáng phối hợp tinh tế cùng tone màu trung tính từ mái thái khá nổi bật. Các chi tiết trang trí có kiểu dáng đơn giản, nhưng cũng khiến những ai bước ngang qua phải hết lời khen ngợi bởi sự bề thế của nó.
Nguồn: https://wedo.vn/

































