Hiện nay nhu cầu xây dựng biệt thự đang trở thành xu hướng lựa chọn của rất nhiều chủ đầu tư trên cả nước. Với lối thiết sang trọng, hiện đại bề thế các gia chủ có thể tận hưởng cuộc sống tiện nghi, thoải mái sau những giờ làm việc căng thẳng, mệt nhọc ở bên ngoài. Nhưng trước khi xây nhà chắc hẳn các chủ đầu tư sẽ có rất nhiều sự lo lắng, băn khoăn như về chi phí, mẫu nhà, lựa chọn nhà thầu uy tín, lựa chọn kiến trúc sư... Bài viết của chúng tôi hôm nay sẽ giúp bạn tháo gỡ mọi khó khăn ấy qua nội dung tất tần tật về mẫu biệt thự 100m2.
Hình ảnh 3D, bản vẽ những mẫu nhà biệt thự 100m2 đẹp nhất năm 2021
Thiết kế kiểu dáng biệt thự mini 2 tầng mang phong cách hiện đại đẹp mang lại một không gian sống tuyệt vời. Với diện tích 100m2 việc lựa chọn thiết kế mẫu biệt thự mini 2 tầng vừa gọn gàng, dễ bố trí đang là giải pháp tối ưu nhất. Mẫu biệt thự 2 tầng 100m2 này không quá đồ sộ, cầu kì như những mẫu biệt thự này đã và đang làm siêu lòng các chủ đầu tư. Ở mẫu thiết kế này đủ để phô diễn được những nét tinh tế, sang trọng của căn biệt thự.

Từ hạn chế về diện tích nếu chỉ với 100m2 nhưng bạn lại muốn sở hữu một căn biệt thự nhưng điều này lại trở thành ưu điểm khi bạn lựa chọn mẫu biệt thự mini 2 tầng trên đây của chúng tôi. Diện tích vừa phải, công năng sử dụng không quá lớn nhưng đầy đủ tiện nghi và cũng không phải là quá hẹp. Ưu thế về diện tích còn mang lại lợi thế khi thiết kế theo lối kiến trúc biệt thự cho 2 tầng. Chi phí cho kiểu biệt thự này cũng không hề quá cao so với những căn biệt thự xa hoa, đồ sộ. Diện tích 100m2 còn giúp các kiến trúc sư dễ dàng thể hiện được những ý tưởng của chủ nhà. Từ đó, việc làm độc đáo, ấn tượng căn biệt thự 2 tầng 100m2 cùng các nét phá cách về kiến trúc cho chủ nhà sẽ thuận lợi hơn rất nhiều. Mọi chi tiết thể hiện trên căn biệt thự đều được thể hiện một cách gọn gàng, vừa mức tạo nên sự dễ chịu không chỉ ở phương diện thẩm mỹ mà còn cho cả không gian sống.

Diện tích 100m2 tuy không quá lớn nhưng cũng không phải quá nhỏ là diện tích vừa phải đủ để bạn thể hiện một lối kiến trúc hợp lý với không gian sống không thừa, không thiếu đủ không gian sinh hoạt tiện nghi cho gia đình có từ 4 đến 5 thành viên vẫn rất thoải mái mà hơn hết theo thiết kế biệt thự ở diện tích 100m2 sẽ giúp các chủ đầu tư tiết kiệm được một khoản chi phí khá lớn. Đây cũng là một trong những ưu điểm lớn của thiết kế biệt thự 100m2 đang được các gia chủ rất quan tâm và lựa chọn rất nhiều.

Những chủ đầu tư khi lựa chọn phong cách biệt thự đã từng trực tiếp chia sẻ với chúng tôi rằng. Họ đã không thể tin với diện tích chỉ 100m2 mà họ lại có thể sở hữu một căn biệt thự mà ở đó có thể phô diễn được hết tất cả những ý tưởng, từng đường nét, màu sắc, hình khối được kết hợp hài hòa mang đến một tổng thể lý tưởng cho căn biệt thự. Đặc biệt là những đường nét tinh tế, sang trọng, hiện đại rất riêng ghi dấu ấn cá nhân mà họ yêu cầu trên diện tíchchỉ với 100m2.

Khi thiết kế căn biệt thự với diện tích 100m2 bạn còn có thể được hiện thực hóa bằng những công trình biệt thự xây dựng trên thực tế, chắc chắn các chủ đầu tư sẽ phải bất ngờ hơn với công năng sử dụng bên trong khuôn viên của các tầng trong khu biệt thự. Bạn sẽ khẳng định được đẳng cấp của gia đình mình khi sở hữu và ở trong căn biệt thự lộng lẫy, tiện nghi đầy sang trọng.
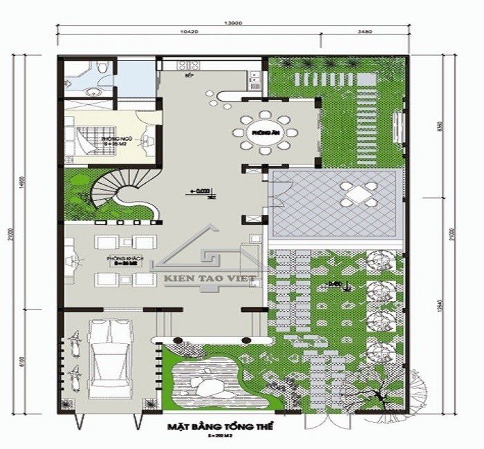
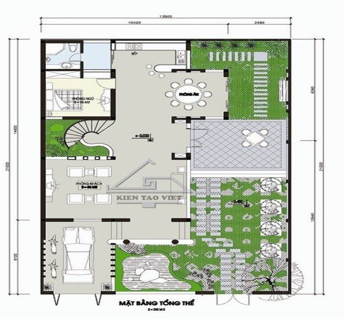
Mặt bằng tổng thể nội thất mẫu thiết kế biệt thự 100m2
Thiết kế biệt thự 100m2 đẹp theo phong cách cổ điển. Nói đến phong cách này chúng ta đã mường tượng ra một không gian sống bề thế, xa hoa với những món đồ nội thất đắt tiền. Mẫu thiết kế này có mức chi phí khá cao nó là niềm mơ ước của rất nhiều chủ đầu tư khi được sở hữu ngôi biệt thự này. Dù trên diện tích chỉ 100m2 nhưng mẫu thiết kế biệt thự này vẫn vô cùng nguy nga, tráng lệ đúng như tên gọi cổ điển. Với những nét trạm trổ tỉ mỉ ở không gian bên ngoài, những họa tiết hoa văn trên cột làm tinh tế, sắc sảo cho những chiếc cột vững chãi.

Hệ thống nội thất được trang hoàng bằng một phong cách rất riêng. Từ bộ bàn ghế salon đến những cây đèn chùm mang đậm dấu ấn của phong cách cổ điển... Tất cả chúng ta đều không thể phủ nhận một điều rằng tất cả những mẫu thiết kế biệt thự theo phong cách cổ điển này có một sức sống vô cùng trường tồn, không bị mai một theo thời gian.

Thiết kế biệt thự 100m2 theo phong cách tân cổ điển là một kết quả của sự kết hợp hài hòa, tinh tế giữa kiến trúc cổ điển và kiến trúc hiện đại. Mẫu thiết kế biệt thự này thích hợp cho những chủ đầu tư vừa yêu thích những giá trị truyền thống của nét đẹp xưa cũ vừa ngưỡng mộ những nét đẹp theo phong cách mới hiện đại ngày nay. Ở mẫu thiết kế biệt thự này thường sử dụng cột và tường lớn với đường nét bố cục tự do. Phần cửa thường được thiết kế lệch hoặc mở lớn so với phong cách cổ điển.

Biệt thự 100m2 phong cách tân cổ điển mang đến một lối kiến trúc nhẹ nhàng, tinh tế, sắc sảo. Đặc biệt, nhờ có sự xuất hiện của hệ thống kính cường lực cùng tường lớn và mái dốc đã góp phần tạo nên sự hết hợp hài hòa, bắt mắt mang lại sự ấn tượng khó phai trong lòng không ít các chủ đầu tư.

Thiết kế biệt thự 100m2 theo phong cách hiện đại được xem là lối thiết kế đang được nhiều chủ đầu tư lựa chọn nhiều nhất. Phong cách này được lựa chọn nhiều là bởi những ứng dụng cao, vẻ đẹp thanh thoát nhẹ nhàng và chi phí hợp lý. Hơn nữa mẫu biệt thự 100m2 theo phong cách này còn được lựa chọn với bố cục tự do, chúng không bị gò theo khuôn mẫu cố định nào điều này đã khiến cho những mẫu biệt thự hiện đại được lòng rất nhiều chủ đầu tư thuộc nhiều tầng lớp và đối tượng khác nhau trong xã hội. Phong cách hiện đại phù hợp với nhiều diện tích khác nhau. Biệt thự này có thể thiết kế kết hợp dạng sân vườn, nhà phố,… đều phù hợp và luôn nổi bật trong mắt các chủ đầu tư.

Thiết kế biệt thự mini 2 tầng đẹp phong cách nhà vườn đang là lối thiết kế biệt thự 100m2 đẹp theo xu hướng tiết kiệm diện tích xây nhà và dành không gian chủ yếu cho sân vườn . Chỉ cần các chủ đầu tư nói lên ý tưởng của mình, các kiến trúc sư giàu chuyên môn và kinh nghiệm sẽ giúp bạn tư vấn phương án tối ưu nhất.

Thiết kế biệt thự 100m2 theo phong cách mái thái đang là sự lựa chọn của rất nhiều chủ đầu tư trên cả nước. Chúng ta không thể phủ nhận một điều rằng, phần mái thái của biệt thự sẽ mang đến một nét đẹp vô cùng quan trọng. Về hình thức bên ngoài của căn biệt thự mái thái chúng quyết định đến 1/3 sự thành công của ngôi biệt thự. Những căn biệt thự 100m2 thường được sử dụng mái thái, bởi hệ mái này mang đến ưu thế về vẻ đẹp và cả công năng sử dụng mái thái giúp cho căn nhà trở lên ấm áp vào mùa hè và mát mẻ vào mùa đông.

Bạn đã có được ý tưởng, bạn muốn tìm kiếm một đơn vị nhà thầu uy tín, một kiến trúc sư tài năng bạn hoàn toàn có thể thực hiện được khi đến với sàn giao dịch xây dựng số, đây là sàn giao dịch thương mại điện tử là cầu nối trung gian giới thiệu những nhà thầu chuyên nghiệp uy tín trên cả nước đến với các chủ đầu tư. Tất cả các nhà thầu tại sàn được kiểm định, có hồ sơ năng lực công ty rõ ràng nên bạn hoàn toàn có thể đặt niềm tin ở chúng tôi. Chắc chắn chúng tôi sẽ mang đến được sự hài lòng cho bạn cũng giống như rất nhiều chủ đầu tư trên cả nước trong những năm vừa qua khi đến với sàn giao dịch của chúng tôi.



































