Trong những năm gần đây xu hướng thiết kế biệt thự với kiểu dáng mini đang ngày càng phổ biến ở thị trường xây dựng Việt Nam. Bạn đang muốn tìm hiểu một mẫu biệt thự nhỏ đẹp để xây dựng trên lô đất 8x20m. Bạn chỉ cần dành chút thời gian để tham khảo bài viết của chúng tôi. Chắc chắn những mẫu biệt thự 8x20m của chúng tôi dưới đây sẽ giúp các chủ đầu tư có được những ý tưởng ban đầu cho căn biệt thự của gia đình mình.
Hình ảnh 3D mẫu biệt thự 8x20m cuốn hút từ cái nhìn đầu tiên

Mở đầu cho bộ sưu tập những căn biệt thự 8x20m siêu đẹp. Chúng ta cùng đến với một công trình đầy tính nghệ thuật của căn biệt thự được xem là cao cấp nhất trong hệ thống các công trình biệt thự 8x20m đó là mẫu thiết kế đến từ phong cách cổ điển Pháp. Tại sao chúng tôi có thể khẳng định đây là mẫu thiết kế đẳng cấp nhất. Bởi lẽ chi phí m2 xây dựng của căn biệt thự này khác hẳn với những mẫu biệt thự theo phong cách hiện đại đơn giản.
Bỏ ra chi phí lên đến 10.000.000 VNĐ/m2 bạn sẽ nhận lại được những gì? Mẫu biệt thự 8x20 trên đây sẽ là minh chứng cho tất cả. Sự chăm chút, tỉ mỉ trên từng đường phào chỉ đã tạo ra nét đẹp rất riêng cho phong cách này. Không chỉ ở bề ngoài hoành tráng, bắt mắt mà khuôn viên bên trong các chủ đầu tư chũng phải choáng ngợp bởi sự nguy nga, lộng lẫy đặc biệt là ở khu vực phòng khách. Tất cả để mang đến cho bạn và gia đình một không gian sống không những sung túc, tiện nghi và còn khẳng định sự bề thế của gia đình bạn.

Vẫn là căn biệt thự mang phong cách mái bằng nhưng mẫu thiết kế này lại dành cho những lô đất 8x20m ở trục chính nằm giữa các công trình xây dựng khác nên chú trọng toàn bộ vào mặt tiền phía trước. Căn biệt thự này được thiết kế với 2 tầng 1 tum và có sân thượng. Khu vực tầng 1 được thiết kế kín đáo, an toàn bằng bộ cửa sắt màu nâu trầm bền đẹp, khu vực tầng 2 để tạo ra sự thoáng đãng thì các kiến trúc sư đã mang đến đó là bộ cửa kính, bộ lan can kính cường lực trong suốt, hiện đại.
Đến khu vực tầng tum cùng sân thượng, đây có lẽ là những căn nhà được ưa chuộng đặc biệt ở những khu vực thành phố lớn đất chật người đông, không gian khói bụi bao trùm cả ngày khi ở ngoài đường thì khi trở về với một không gian thoáng đang ngập tràn màu xanh từ chính căn nhà của mình thì đó là một điều tuyệt vời nhất.

Mang hơi hướng của phong cách cổ điển nhưng lại vẫn có màu sắc hiện đại pha lẫn đó là những gì mà phong cách tân cổ điển muốn gửi đến các chủ đầu tư. Màu trắng màu vàng đồng hòa quyện giống với phong cách của những căn biệt thự cổ điển cùng với những đường nét hoa văn, sắc sảo của bộ cửa cổng chính với lan can của tầng 2 và tầng 3 đậm chất cổ điển. Tuy nhiên chúng ta lại không thể phủ nhận một điều rằng căn biệt thự này mang cả màu sắc hiện đại đặc biệt là hệ mái thái trẻ trung, những đường nét phào chỉ không quá cầu kì... đậm chất hiện đại.

Có thể thấy ngôi nhà bên trên được thiết kế với 3 tầng đậm chất hiện đại nhưng cũng pha trộn yếu tố cổ điển theo lối thiết kế lộng lẫy, bề thế, chỉ nhìn qua thôi là chúng ta đã thấy một không gian quyền, ngôi nhà nổi bật với gam màu trắng nhẹ nhàng không quá bề thế nhưng cũng rất ấn tượng, điều đó khiến căn biệt thự nổi bật với bất cứ ai khi đặt chân đến căn biệt thự này đều yêu thích.
Chúng ta vừa điểm qua tất cả các phong cách thiết kế biệt thự 8x20m với đầy đủ các hình thức nhưng có lẽ chúng ta cũng không thể bỏ qua được phong cách biệt thự mái thái đang rất được ưa chuộng này. Chi phí không quá cao như mẫu biệt thự cổ điển, tân cổ điển, nhưng cao hơn chi phí xây dựng theo phong cách mái bằng. Ưu điểm của mẫu biệt thự mái thái mang đến là rất lớn ngoài công năng sử dụng thì ngôi biệt thự còn mang đến giá trị thẩm mĩ rất cao, mái thái chính là điểm nhấn nổi bật nhất của căn biệt thự này. Màu sắc trắng sáng còn giúp cho căn biệt thự được mở rộng hơn về không gian.
Phối cảnh bản vẽ mẫu biệt thự 8x20 đẹp nhất hiện nay.

Bất cứ một công trình xây dựng nào từ nhà ở thường, biệt thự, chung cư, dự án xây dựng... Đều cần đến những bản vẽ thiết kế và căn biệt thự mini 8x20m cũng không là ngoại lệ. Bởi lẽ bản vẽ thiết kế dành cho các công trình xây dựng nói chung và bản vẽ dành cho căn biệt thự mini 8x20m nói riêng có vai trò vô cùng quan trọng cho quá trình thi công xây dựng căn biệt thự.

Nếu không có sự góp mặt của một bản vẽ chi tiết trên đây thì có lẽ khó có thể xây dựng được một căn biệt thự 8x20m. Ngay từ đầu bạn đã có ý định cho việc xây dựng một căn biệt thự, ở đó có bao nhiêu phòng? Mỗi phòng có bao nhiêu diện tích? Mọi ý tưởng ấy khi được các kiến trúc sư góp ý, tư vấn nó sẽ trở thành một bản thiết kế hoàn chỉnh. Từ bản thiết kế này bạn giao cho phía nhà thầu lúc này mọi công đoạn nhà thầu sẽ thực hiện giống với bản thiết kế bạn đã chuẩn bị sẵn, nếu phía nhà thầu thi công sai với bản thiết kế đó thì buộc họ sẽ phải bồi thường và chỉnh sửa theo đúng bản hợp đồng.

Như vậy nếu không có bản thiết kế này thì bạn sẽ hoàn toàn bị mơ hồ không có một định hướng nào, không có ý tưởng thì khi nhà thầu xây dựng như thế nào bạn hoàn toàn không có cơ sở để đưa ra đối chiếu. Nên lựa chọn một bản vẽ thiết kế chi tiết tỉ mỉ cũng là một trong những việc làm cần thiết và quan trọng.
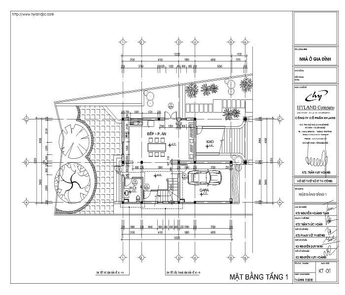
Mặt bằng tổng thể nội thất căn biệt thự 8x20m đẹp

Cấu tạo của bản vẽ mặt bằng tổng thể biệt thự 8x20m thông thường bao gồm có 2 phần chính là công trình của căn biệt thự và phần cảnh quan sân vườn. Trong đó công trình trong căn biệt thự chính là biểu hiện hướng nhà của căn biệt thự cũng như vị trí của căn biệt thự trong tổng thể ô đất so với các thành phần khuôn viên khác. Thứ 2 là công trình sân vườn thì gồm các yếu tố trước sau, sân vườn, cây cối, hồ bơi, hòn non bộ,...

Như mặt bằng tổng thể trên đây giúp các chủ đầu tư có được một cái nhìn trọn vẹn về căn biệt thự 8x20m được xây dựng theo phong cách hiện đại với 3 tầng. Trong đó ở khu vực tầng 1 như chúng ta nhận thấy đó là toàn bộ diện tích dành cho không gian sinh hoạt chung, gồm có phòng khách và phòng bếp được bố trí rộng rãi, phía trước mặt tiền được thiết kế thêm phần tiền sảnh và gara ô tô. Trên tầng 2 được thiết kế với 2 phòng ngủ và 1 phòng sinh hoạt chung thì tại phòng sinh hoạt chung bạn có thể thư giãn, đọc sách, uống cafe trong thời gian rảnh rỗi... Cuối cùng là mặt bằng tầng 3 được thiết kế với 1 phòng ngủ, nhà vệ sinh... và một khoảng không rộng rãi để bạn có thể làm sân phơi đồ tiện ích...
Sàn giao dịch thương mại điện tử Xây Dựng Số

Chắc hẳn khi chuẩn bị tiến hành thi công một công việc hệ trọng nhất của cuộc đời mỗi con người đó là xây dựng biệt thự. Cha ông ta xưa nay đã có câu rằng “ Tậu trâu, lấy vợ, làm nhà” 3 công việc lớn trong cuộc đời mỗi con người ắt hẳn chúng ta sẽ rất lo lắng về những công việc chuẩn bị tiến hành trong tương lai. Bạn đang tìm hiểu về một sàn giao dịch kết nối giữa chủ đầu tư với nhà thầu. Khi tìm đến Xây Dựng Số và bạn đang băn khoăn liệu lựa chọn Xây Dựng Số có an toàn và thực sự tin cậy hay không? Chúng ta cùng đi tìm hiểu những lợi ích có được khi đến với sàn giao dịch tiếng tăm này.

Đến với sàn giao dịch Xây Dựng Số các chủ đầu tư trước tiên sẽ nhận được sự tư vấn nhiệt tình, miễn phí của các tư vấn viên. Qua sự tư vấn này các chủ đầu tư sẽ biết đến những nhà thầu chuyên nghiệp, uy tín ngay tại tỉnh thành mà các chủ đầu tư đang có ý định xây dựng biệt thự. Toàn bộ hệ thống nhà thầu của xây dựng số đều có hồ sơ năng lực minh bạch đã và đang làm hài lòng rất nhiều chủ đầu tư từ Bắc vào Nam.
Trên đây là toàn bộ những chia sẻ của chúng tôi về mẫu biệt thự 8x20m cuốn hút từ cái nhìn đầu tiên. Hi vọng sẽ giúp được quý khách phần nào trong việc chuẩn bị xây dựng căn biệt thự của gia đình mình.
Xem thêm
Mẫu biệt thự 2 tầng phong cách cổ điển
Mẫu biệt thự nhà vườn 2 tầng đẹp


































