Thiết kế quán cafe diện tích 70m2 vừa đẹp vừa đảm bảo đầy đủ công năng là điều mà nhiều chủ đầu tư kinh doanh dịch vụ quán cafe đang tìm kiế. Tuy nhiên, để làm được điều đó, bạn cần phải tìm được đơn vị thi công công thiết kế uy tín và chuyên nghiệp nhất. Để từ đó, tìm được cho mình một phong cách phù hợp với không gian diện tích. Hiểu được những thắc mắc đó, Xây Dựng Số đã tổng hợp lại những thông tin và mẫu thiết kế quán cà phê đẹp bạn có thể tham khảo sau đây.
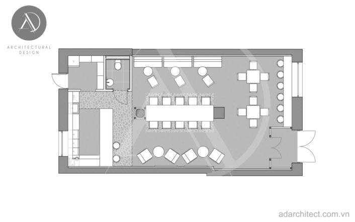
1. Bản vẽ mặt bằng tổ chức không gian quán cafe diện tích 70m2

Quán cà phê này nằm ở tầng trệt của toàn nhà cũ tại một con đường sầm uất giữa trung tâm thành phố. Với mục đích không chỉ mang lại địa điểm thưởng thức cafe đơn thuần, mà còn là không gian trải nghiệm văn hóa, là nơi giải tỏa sự mệt mỏi sau ngày làm việc căng thẳng. Với diện tích 70m2, đơn vị thiết kế đã thể hiện sự khéo léo bằng việc bố trí khu vực quầy bar nhỏ đặt tại sảnh quán. Đây không chỉ là không quầy pha bar mà còn là nơi trình diễn khả năng pha chế và phục vụ khách hàng. Phòng kho và nhà vệ sinh được bố trí riêng biệt trong góc khuất để tạo sự riêng tư và thoải mái cho mỗi vị khách khi đến đây.

Bản vẽ phối cảnh tổng thể quán cafe với diện tích 70m2 nhưng vẫn mang không gian rộng rãi, thoáng đãng. Quán cung cấp chõ ngồi cho khoảng 36 người ở nhiều khu vực khác nhau. Về thiết kế nội thất, do phong cách thiết kế là Industrial, đề cao các chất liệu nội thất thô ráp chưa hoàn thiện nhưng vẫn lịch làm, hiện đại và cá tính. Chính vị vậy, mẫu thiết kế này sở hữu các bức tường xi măng không xây tráp, lớp sàn bê tông cá tính, bội nội thất gỗ thô mộc, không gian mở với những khung cửa thép hiện đại mạnh mẽ.

Không có lớp sơn cầu kỳ sang trọng, những mảng tường xi măng thô sơ của quán vẫn nổi bật và gây hiệu ứng thẩm mỹ đầy cá tính. Thiết kế cửa cảo đến trần giúp không gian quán thoáng đãng. Hệ thống bàn ghế được bố trí khoa học và hợp lý cũng như đảm bảo cung cấp tối đa chỗ ngồi nhưng vẫn mang lại không gian trải nghiệm cà phê vừa đủ. Bước qua cánh cửa chính là quầy pah chế được đặt ngay tại mặt tiền trung tâm. Quán được chia thành nhiều khu vực với đầy đủ chức năng, phụ vụ được nhiều đối tượng khách hàng khác nhau.

Có thể nói chi tiết nổi bật nhất chính là bộ bàn ghế gỗ được đặt ngay tại trung tâm. Với kiểu dáng nhẹ nhàng, bộ bàn ghế được làm từ gỗ công nghiệp MDF đã ghi điểm với khách hàng nhờ bảng gỗ màu nâu ấm. Thiết kế đèn hình khối cách điệu cũng khiến không gian quán nổi bật và cá tính hơn. Không dừng ở đó, điều làm nên sự nổi bật của quán cafe 70m2 này còn thể hiện ở việc bố trí không gian đa chiều.
2. Những lưu ý khi thiết kế quán cafe diện tích 70m2
Để sở hữu được quán cafe có diện tích 70m2 như ý bạn cần tìm được một phong cách thiết kế phù hợp để thu hút sự quan tâm của khách hàng. Như một thiết kế quán cafe dưới lòng đất với trần và tường là gạch không qua sơn vữa, được sử dụng các loài mùa như nguyên trạng ban đầu, nội thất thiết kế nhỏ gọn được bố trí sát tường tạo lối đi thông thoáng cho khách hàng cũng như không gian đi lại phục vụ của nhân viên.

Do diện tích không quá rộng nên nội thất quán cafe 70m2 nên được thiết kế nhỏ gọn, phù hợp với không gian. Khu vực sát tường sẽ sử dụng ghế sofa nhỉ dài để tạo cảm giác thoải mái cho khách hàng và tiết kiệm diện tích quán. Khu vực giữa được thiết kế bàn nhỏ dài và ứng dụng hệ thống chân cao. Để tạo điểm nhấn, bạn có thể sử dụng những vật dụng trang trí mới lạ. Quầy pha chế nhỏ gọn đầy đủ công năng, menu nên được gắn trên tường để tạo sự thuận tiện khi khách hàng gọi món. Ngoài ra, muốn không gian quán rộng hơn, bạn nên dùng ánh sáng trắng khi thiết kế. Ngược lại, nếu sử dụng ánh sáng vàng dễ kheién không gian bị tối và cảm giác bí bách.
3. Một số mẫu thiết kế quán cafe diện tích 70m2 bạn có thể tham khảo

Mẫu tham khảo thiết kế quán cafe diện tích 70m2 số 1
Ấn tượng đầu tiên khi nhìn vào mẫu thiết kế này chính là phần mái bằng được phủ đầy cây xanh. Phần trụ đỡ được chọn lọc với tạo hình như những gân lá cây độc đáo, gân lan tỏa rộng chuyển động hướng trên trần. Thiết kế này mang yếu tố vừa trang trí, vừa tạo dấu ấn riêng cho vẻ ngoài của quán. Lồng ghép vào tổng thể đó không thể thiếu được sự mộc mạc, đơn giản của trần nhà với các tấm gỗ pallet. Chính đường nét thiết kế đơn giản kết hợp với những mảng xanh này đã mang lại sự dễ chịu cho vẻ ngoài của quán. Ngoài ra, chính sự hài hòa giữa ánh sáng tự nhiên và nhân tạo đã mang đến cảm giác dễ chịu, thoải mái.

Bước vào trong quán bạn sẽ dễ dàng nhận thấy ý tưởng thiết kế chủ đạo được lấy cảm hứng từ hình dạng của tổ ong, đặc boeẹt là trần nhà, hệ thống đèn trần và khu vực quầy pha chế. Chính điều này đã tạo ra sự khác biệt của quán so với những quán cafe khác. Trong mẫu quán cà phê đẹp này, các kiến trúc sư đã thiết kế lối đi rộng rãi, khoảng cách giữa các bàn được đặt hợp lý để đảm bảo việc đi lại của khách hàng và nhân viên thuận tiện. Về phần màu sắc, không quan quán có sự tương phản sáng tối rõ ràng. Sàn, trần nhà và dãy ghế bao quanh quầy pha chế sử dụng màu đen cá tính, kết hợp cùng nội thất gỗ sáng màu mang lại sự trẻ trung, năng động.

Mẫu thiết kế quán cafe 70m2 số 2
Lấy cảm hứng từ bộ phim 2046 nổi tiếng của Vương Gia Vệ kể về chuyến tàu quay về quá khứ từ năm 2046. Mẫu thiết kế quán cafe với tông màu đỏ từ các bề mặt đá mài như một đoàn tàu thời gian. Hơn nữa, phần mặt tiền được thiết kế như những khung cửa sổ của đoàn tàu, cùng với những thanh sắt làm điểm nhấn. Thêm vào đó, phần trần được xây tạo nên những khối cong như đoàn tàu. Điểm nhấn đặc biệt trong mẫu thiết kế này là khung trong khung được trang trí dựa trên ý tưởng thu hút nhiều ánh sáng tự nhiên từ các khung cửa sổ, trần,… chiếu thẳng xuống nền đất. Việc sử dụng các vật liệu truyền thống như gạch cũ và các vật liệu tương tự khiến không gian quán trở nên ấm áp, gần gũi hơn. Các kiến trúc sư muốn lồng gheps vào đó những loại vật liệu hiện đại hơn như sơn hiệu ứng, trang trí trần Poly.

Ngoài ra, mẫu thiết kế này còn được tập trung vào các chi tiết đèn LED HUE được đặt tại góc của quầy bar. Màu sắc của đèn sẽ thay đổi vào các khung giờ khá nhau. Hệ thống đèn cũng giúp làm nổi bật không gian quán. Vào ban ngày, bán trở nên nổi bật nhờ ánh sáng tự nhiên chiếu vào và chạy dọc theo các lỗ trên trần. Còn buổi tối, không quan quán trở nên ấm áp, lãng mạn.

Mẫu thiết kế quán cafe diện tích 70m2 vừa đẹp vừa rẻ số 3
Quán được bố trí tại tầng trệt của tòa nhà với không gian vuông vắn và ấm cúng. Phong cách thiết kế nội thất cũng đơn giản để tránh sự chật chội, gò bó tới khách hàng. Toàn bộ quán được thiết kế với gam màu trắng để tạo ra sự rộng rãi cho không gian. Khu vực quầy bar được bố trí ở vị trí sau cùng của quán để có thể dành toàn bộ không gian còn lại cho khách hàng. Quầy bar có diện tích, không gian khá thoải mái để các nhân viên thuận tiện trong việc di chuyển, pha chế.

Phần nội thất được thiết kế đơn giản nhưng vẫn có những điểm nhấn từ đồ trang trí và cây xanh. Những mảng xanh riêng lẻ của đồ nội thất đã khiến không gian thêm gần gũi, thân thiện với thiên nhiên hơn. Cũng chính các mảng xanh này mà không gian quán trở nên vô cùng dịu mắt khi nhìn vào. Mẫu thiết kế quán cafe trên đây phù hợp với đối tượng khách hàng là nhân viên công sử. Với thiết kế nội thất cafe hướng tới sự thoải mái, ấm cũng thì đây chính là không gian hoàn hảo để thư giãn vào giờ nghỉ trưa hoặc gặp gỡ khách hàng, đối tác.

Trên đây là những thông tin về một số mẫu thiết kế quán cafe đẹp giá rẻ mà Xây Dựng Số muốn gửi tới các bạn. Hi vọng, bài viết này có thể giúp bạn trong việc lựa chọn phong cách và nhà thầu xây dựng phù hợp với ngân sách, yêu cầu. Trong trường hợp bạn vẫn chưa biết chọn nhà thầu, công ty xây dựng nào thì hãy liên hệ với chúng tôi.
Xây Dựng Số là sàn thương mại điện tử xây dựng với hàng ngàn nhà thầu, công ty xây dựng uy tín và chuyên nghiệp. Khi liên hệ, bạn sẽ được các công ty báo giá với các giải pháp kết cấu khác nhau, giúp chủ đầu tư tiết kiệm hàng chục đến hàng trăm triệu đồng. Hơn thế, các nhà thầu này luôn được đội ngũ chuyên gia hàng đầu của chúng tôi đánh gia năng lực liên tục.
Xem thêm


































