Biệt thự được biết đến là kiểu kiến trúc được xây dựng trên một diện tích lớn và việc bố trí không gian bên trong công trình này đòi hỏi sự sắp xếp khoa học. Trong bài viết dưới đây giới thiệu mẫu biệt thự 4 tầng 4 phòng ngủ để gia chủ tham khảo cho công trình của mình.
Bản vẽ mặt bằng mẫu biệt thự 4 tầng 4 phòng ngủ

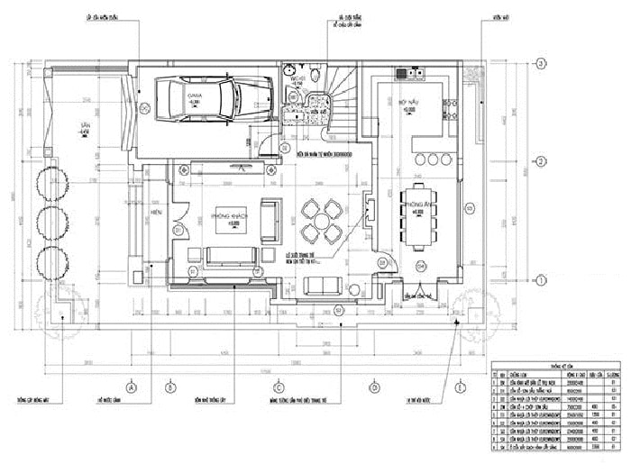
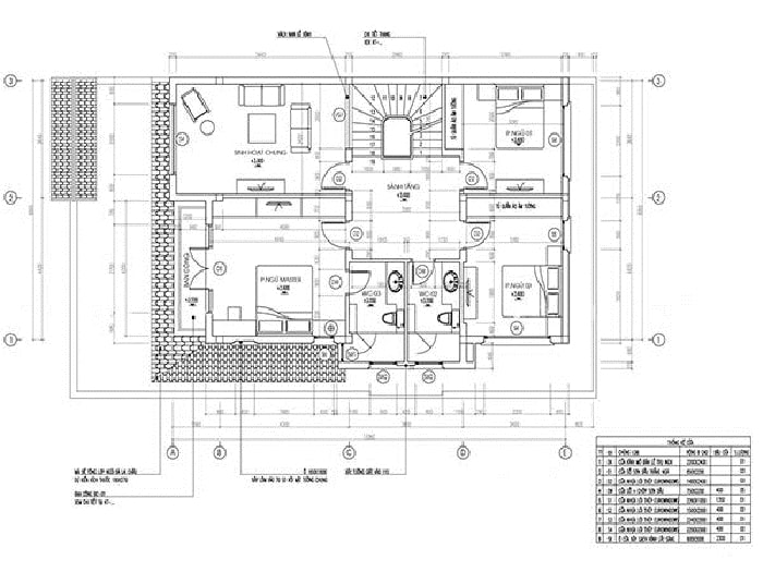
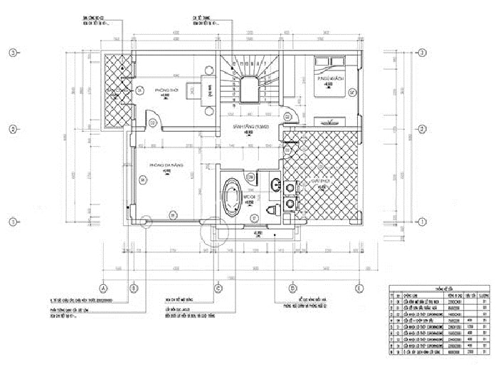
Bản vẽ mặt bằng tham khảo dành cho mẫu biệt thự 4 tầng 4 phòng ngủ như sau, thứ tự các tầng lần lượt từ trái qua phải, từ trên xuống dưới.
Bắt đầu từ mặt bằng tầng 1 bao gồm: gara để xe của gia chủ, phòng khách, bếp cùng với khu vực bàn ăn và nhà vệ sinh. Gara trong công trình này có thể giúp gia chủ để được 2 chiếc oto trong cùng một không gian, nên gia chủ yên tâm về việc việc đậu đỗ phương tiện của mình trong chính không gian nhà mình mà không phải lo tìm nơi đỗ xe xa nhà.
Sang đến mặt bằng tầng 2 của mẫu biệt thự 4 tầng 4 phòng ngủ sẽ là không gian 4 phòng ngủ, trong đó có 1 phòng ngủ master có nhà vệ sinh bên trong để tạo được cho gia chủ không gian riêng tư. 3 phòng ngủ còn lại sẽ sử dụng chung 1 nhà vệ sinh. Gia chủ của công trình này muốn bố trí 4 phòng ngủ trên cùng một không gian để phần nào đó có sự gắn kết giữa các thành viên và mỗi sáng thức dậy, các thành viên trong gia đình đều có thể nhìn thấy nhau trên cùng một không gian sinh hoạt.
Lên đến mặt bằng tầng 3 của mẫu biệt thự 4 tầng 4 phòng ngủ được kiến trúc sư bố không gian liên quan: giặt và phơi đồ, không gian tập luyện thể thao, giải trí. Đặc biệt tại không gian này, kiến trúc sư bố trí không gian sân vườn cực xịn, cực xin để gia chủ tương lai có được một không gian nhỏ gọn vừa đủ để thư giãn vào cuối ngày.
Cuối cùng tầng 4 – đây là không gian cao nhất trong mẫu biệt thự 4 tầng 4 phòng ngủ, kiến trúc sư bố trí không gian phòng thờ để gia chủ phục vụ tín ngưỡng của mình. Và phần còn lại của không gian bố trí tuỳ theo sở thích của gia chủ như tầng tum rộng lớn với tiểu cảnh cây xanh bố trí xung quanh.
Nội thất các không gian trong mẫu biệt thự 4 tầng 4 phòng ngủ như thế nào?

Đến với không gian đầu tiên trong mẫu biệt thứ 4 tầng 4 phòng ngủ tham khảo như sau: Có thể dễ dàng nhìn thấy đây là mẫu biệt thự được xây dựng trên diện tích nhỏ và được gọi với cái tên: Biệt thự mini. Chính vì sự hạn chế của diện tích mà kiến trúc sư lựa chọn nội thất có kích thước vừa phải nhưng vẫn toát lên được sự sang trọng, quyền lực của gia chủ. Phòng khách được nối thông với không gian bếp để tạo thành một không gian mở, có chiều sâu. Một bộ bàn ghế nhỏ gọn, màu nâu lại thêm bọc da là đã đủ để làm nổi bật cả không gian trong phong cách hiện đại. Tivi gắn tường cùng với tủ kệ nhỏ gọn bên dưới là đáp ứng tiện nghi cho gia chủ sử dụng. Không gian bếp hiển hiện với tủ kệ hiện đại và bộ bàn ghế ăn 6 ghế bằng gỗ có thiết kế khá bắt mắt. Ngăn cách hai không gian là chiếc đàn piano và tiểu cảnh hồ nước mini lấy sáng trực tiếp từ giếng trời bên trên.

Mang đến không gian phòng khách một chút cổ điển nhưng vẫn phảng phất hương vị của hiện đại, nhộn nhịp cuộc sống thường nhật chính là điểm nổi bật của phong cách thiết kế tân cổ điển được sử dụng trong không gian phòng khách này.
Bộ ghế sofa lớn bao trọn không gian phòng khách của mẫu biệt thự 4 tầng 4 phòng ngủ được bọc da vô cùng sang trọng. Bộ bàn ghế ấy càng trở nên lộng lẫy, kiêu sa khi đi cùng bàn đá, chân inox cùng với chi tiết lọ hoa, bình sứ, ly đặt trên mặt bàn. Điểm nhấn không thể bỏ qua là chiếc đèn chùm thả tạo sức hút, cái nhìn ngạc nhiên cho bất cứ ai bước vài không gian này, tấm thảm đặt trọng trong lòng bộ ghế. Không gian này đạt điểm tuyệt đối nhờ óc thẩm mỹ tuyệt vời của kiến trúc sư là sử dụng cửa kính to, cỡ lớn giúp không gian thêm rộng lớn hơn và lung linh hơn dù là ban ngày hay ban đêm.

Thêm một gợi ý nữa cho không gian phòng khách mẫu biệt thự 4 tầng 4 phòng ngủ sử dụng phong cách hiện đại. Trong không gian này chú ý đến việc sử dụng gạch ốp giả gỗ màu sáng để mang đến không gian hiện đại nhưng rất sang trọng. Màu đen được sử dụng để tạo điểm nhấn cực hút mắt, tạo được chiều sâu về không gian. Và một quầy bar mini, nơi gia chủ mời vị khách của mình thưởng thức, nhâm nhi ly rượu mà mình gắng sưu tập từ lâu.

Phòng ngủ được gợi ý cho gia chủ trong mẫu biệt thự 4 tầng 4 phòng ngủ với phong cách hiện đại. Không gian sử dụng tone màu kem mang đến sự dễ chịu cho ánh nhìn của người sử dụng. Màu sắc tối, đậm như xanh than, hay đen mang đến giấc ngủ ngon, nạp lại năng lượng cho ngày làm việc mới của gia chủ. Tone màu tối kết hợp cùng với cửa sổ trắng, thảm trải giường cũng màu trắng mang đến một sự đồng điệu nhất định, tạo nên tổng thể có thiết kế đơn giản, thêm một vài điểm nhấn như sàn lông. Để không làm trống cũng như mang đến không gian sang trọng, đầm ấm và nổi bật hơn, kiến trúc sư bố trí những nội thất rất quen thuộc mà lại hợp lý, logic với những tone màu ăn nhập với nhau tạo nên căn phòng độc đáo và là nơi thư giãn hoàn hảo nhất cho cả gia đình.

Không gian ngủ trong mẫu biệt thự 4 tầng 4 phòng ngủ theo phong cách tân cổ điển. Điểm chú ý đổ đồn vào chiếc giường bởi phần đầu giường có viền gỗ khá ấn tượng với những nét chạm khắc đầy cổ điển và bọc da bên dưới. Hai kệ tủ đầu giường được đặt hai bên với màu nâu đậm thể hiện rõ nét tính cổ điển. Và không thể không nhắc đến giấy dán tường với hoạ tiết vàng cực kỳ thu hút. Hoàn thiện không gian này là phần trần thạch cao gắn một chiếc đèn chùm nhỏ có ánh sáng vàng mang đến sự ấm áp cho không gian.
Ấn tượng, choáng ngợp là những từ dành cho vẻ bề ngoài của mẫu biệt thự 4 tầng 4 phòng ngủ

Một mẫu biệt thự 4 tầng 4 phòng ngủ có thiết kế hiện đại theo hướng sống xanh để gia chủ tham khảo cho công trình tương lai của mình. Mặt tiền tầng 1 sử dụng kính bao quanh mặt tiền để lấy được sáng tối đa vào không gian bên trong. Tầng 2, 3 có kiến trúc tương tự với nhau với việc tiếp tục sử dụng hệ cửa kính 4 cánh tương ứng với không gian phòng bên trong, dẫn ra ban công rộng lớn. Ban công tầng 2 được bao phủ bởi không gian xanh với loại cây rủ xuống vừa tạo được không gian xanh lại vừa chống nắng, nóng hiệu quả cho tầng 1. Ở hai tầng đều có phần diện tích nhô ra đăng trước ốp trần giả gỗ sang trọng. Và tầng 4 sử dụng 1 nửa diện tích, phần còn lại là không gian vườn mini với cây xanh.

Một mẫu biệt thự 4 tầng 4 phòng ngủ với kiến trúc tân cổ điển mang đến ấn tượng kích thước đồ sộ giữa nhịp sống phố thị tập nập hai bên. Mặt tiền tầng 1 là hệ thống cổng rào với hai cửa thuận tiện: 1 cửa để tiếp đón khách với cánh cổng nhỏ bên tay trái và cổng lớn với mái che ngói bên trên để gia chủ có thể dễ dàng đưa phương tiện của mình vào bên trong. Lên đến tầng 2 và 3 ấn tượng là cột trụ vuông vức, ô cửa vòm cùng với kiến trúc mái đơn giản nhưng đủ gây ấn tượng. Cột trụ tròn với đế vuông cũng mang đến điểm nhấn tiêng biệt. Đặc biệt mái chữ A vừa phải phù hợp với tổng thể thiết kế.

Mẫu biệt thự 4 tầng 4 phòng ngủ sử dụng kiến trúc hiện đại mái bằng chắc chắn sẽ có được sự quan tâm của gia chủ hiện đại. Đúng với tiêu chí hình khối hiện diện rõ nét trong kiến trúc này nhưng chúng không hề thô cứng mà ngược lại rất thu hút ánh nhìn bởi kết hợp với hệ lam che năng, hay hệ khung sắt kính, cùng với tiểu cảnh cây xanh bố trí xen kẽ mang đến sức hút đặc biệt.

Để tìm hiểu sâu hơn về mẫu biệt thự 4 tầng đặc biệt là 4 tầng 4 phòng ngủ, gia chủ tiếp tục truy cập website: xaydungso.vn. Tại đây chúng tôi với tích hợp công nghệ tiên tiến hiện đại nhất hiện nay cho phép gia chủ tìm kiếm mọi thông tin liên quan xây dựng, tìm kiếm nhà thầu, đơn vị thiết kế uy tín với mức giá hợp lý. Đặc biệt khi đến với chúng tôi, đội ngũ tư vấn viên trực 24/24 sẽ trả lời mọi thắc mắc giúp gia chủ có được công trình chất lượng nhất.
Xem thêm


































