Biệt thự 2 tầng có lẽ đang là dòng biệt thự được ưa chuộng nhất hiện nay. Với ưu điểm như dễ xây dựng ý tưởng thiết kế, chị phí thi công hợp lý, thời gian thi công nhanh chóng... Chính vì vậy trong suốt thời gian qua mẫu biệt thự 2 tầng có mặt ở khắp các tỉnh thành trên cả nước. Để giúp các chủ đầu tư có thêm ý tưởng cho căn biệt thự 2 tầng. Trong phạm vi bài viết này của chúng tôi xin được giới thiệu đến quý khách những mẫu biệt thự 2 tầng 120m2 đẹp nhất hiện nay.
Hình ảnh 3D những mẫu biệt thự 2 tầng 120m2 đẹp nhất hiện nay

Chắc chắn khi có ý định xây dựng biệt thự bạn và gia đình sẽ phải bàn bạc thật kĩ lưỡng về mẫu mã, chi phí xây dựng. Dưới đây là những mẫu thiết kế qua hình ảnh 3D chân thực các chủ đầu tư có thể lấy để lên ý tưởng cho chính căn biệt thự của gia đình mình.

Không phải ngẫu nhiên mẫu biệt thự 2 tầng lại được các chủ đầu tư yêu thích đến vậy. Chỉ cần chiêm ngưỡng mẫu thiết kế trên đây của chúng tôi là bạn đã phần nào có câu trả lời cho việc vì sao nên lựa chọn mẫu biệt thự 2 tầng cho gia đình mình trong tương lai. Mẫu thiết kế nhà 2 tầng sở hữu rất nhiều ưu điểm, ngoài tính năng thẩm mỹ ở lối thiết kế biệt thự 2 tầng còn đạt được cả những giá trị nổi bật về mặt công năng sử dụng bên trong. Dù chỉ 120m2 những bạn hoàn toàn có thể yên tâm rằng không gian này đủ để bạn và gia đình có một không gian sống rất thoải mái, tiện nghi. Ngay cả khi gia đình bạn có đến 3 thậm chí là 4 thế hệ cùng sinh sống vẫn không hề chật chội.

Có lẽ chúng ta cũng đặt câu hỏi rằng vì sao biệt thự 2 tầng lại được ưa chuộng nhiều đến vậy? Có lẽ một phần là công năng sử dụng phù hợp, mặt khác do chi phí xây dựng biệt thự 2 tầng 120m2 cũng không quá cao như các kiểu biệt thự rộng lớn, cao tầng đồ sộ sẽ có mức chi phí dành cho những chủ đầu tư thực sự có tiềm lực mạnh về kinh tế.

Khi nhắc đến 2 chữ “biệt thự” chắc hẳn chúng ta đã phần nào hình dung ra được vẻ đẹp của ngôi nhà mang đến cho cuộc sống của chúng ta. Căn biệt thự 2 tầng này sở hữu một vẻ đẹp vừa sang trọng, hiện đại vừa đơn giản nhẹ nhàng. Ở ngôi biệt thự 2 tầng 120m2 này đảm bảo đầy đủ các công năng sử dụng cho một gia đình 4 đến 6 thành viên. Các phòng chức năng được bố trí hài hòa, bắt mắt. Tại đây được thiết kế với phòng ngủ, phòng khách, phòng bếp, phòng ăn khu sân vườn, nhà vệ sinh và có cả gara ô tô tiện lợi.

Biệt thự 2 tầng 120m2 còn mang đến sự tối giản trong cả không gian nội thất và không gian bên ngoài ngoại thất. Tất cả đều hướng đến một không gian sống tối giản trong thiết kế để nhường chỗ cho không gian thoáng đãng và rộng rãi. Chính vì vậy nên chỉ 2 tầng 120m2 những bên trong căn biệt thự này được các kiến trúc sư tận dụng diện tích một cách tối ưu nhất có thể.
Khi lựa chọn căn biệt thự 2 tầng 120m2 còn có ưu điểm lớn đó là tiết kiệm không giankhông gian một cách tối đa đây cũng chính là một trong những ưu điểm nổi bật của căn biệt thự 2 tầng 120m2. Với những ý tưởng độc đáo như khu vực phụ thường thiết kế ngay dưới chân cầu thang lối lên tầng 2. Điều này không chỉ là ý tưởng để tiết kiệm diện tích mà đồng thời còn tạo ra sự thuận lợi trong sinh hoạt khi bạn và gia đình sinh sống trong căn biệt thự 2 tầng 120m2.

Sự hài hòa với thiên nhiên là ưu điểm mà chúng ta không thể bỏ qua đối với mẫu thiết kế biệt thự 2 tầng 120m2 này. Cho dù là phong cách thiết kế mái bằng hay mái thái thì khi thiết kế biệt thự 2 tầng đều muốn hướng đến mục đích là phải thiết kế sao cho có khả năng đón ánh sáng một cách hiệu quả nhất.

Ánh sáng có thể vào căn nhà thông quá các ô cửa, ánh sáng tự nhiên từ đó len lỏi vào không gian sống. Ngoài ánh sáng của thiên nhiên bạn nên lựa chọn một không gian sống xanh cho ngôi nhà. Đặc biệt là khu vực sân thượng đối với những chủ đầu tư sống ở thành phố. Nhưng để căn nhà thực sự hài hòa với thiên nhiên bạn cần lựa chọn màu sắc của biệt thự 2 tầng 120m2 với gam màu sáng để tạo cảm giác rộng rãi và thoải mái cho chúng ta sau mỗi lần trở về nhà.
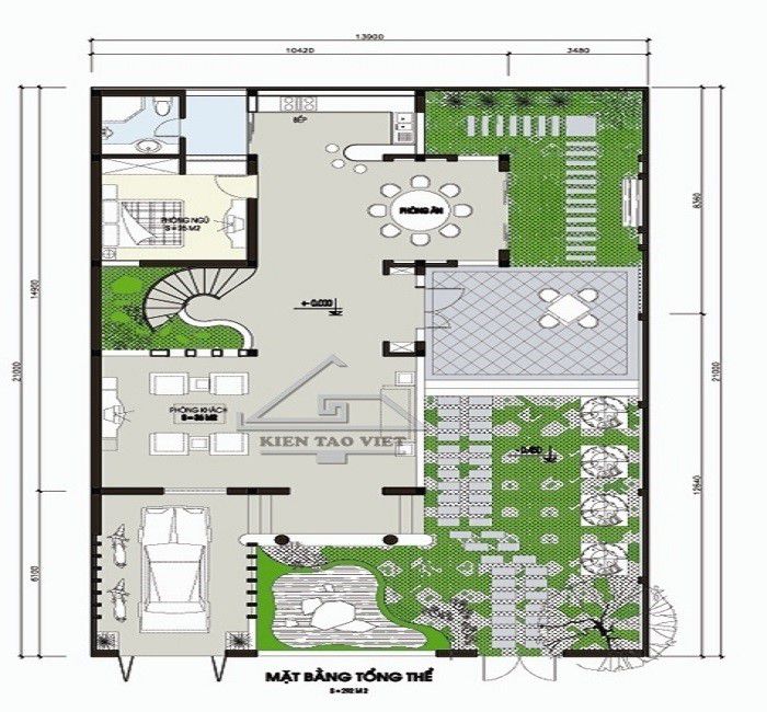
Phối cảnh bản vẽ, mặt bằng tổng thể nội thất mẫu thiết kế biệt thự 120m2
Phối cảnh bản vẽ, mặt bằng tổng thể nội thất của mẫu thiết kế biệt thự 2 tầng 120m2 hướng đến những căn biệt thự với đầy đủ phong cách, kiểu dáng. Với một nền kinh tế Việt Nam trên đà phát triển chúng ta có thể thấy một điều rằng ta dễ dàng bắt gặp các mẫu biệt thự 2 tầng ở bất cứ nơi đâu, từ thành phố cho tới nông thôn. Mỗi mẫu thiết kế đều có vẻ đẹpriêng, phong cách riêng và công năng sử dụng riêng do yêu cầu của gia chủ.

Trên đây là mặt bằng tổng thể chi tiết ở bên trong của căn biệt thự 2 tầng 120m2 mái thái. Chúng ta có thể dễ dàng thấy tại mặt bằng của tầng trệt được phát huy tối đa công năng sử dụng với khu vực sân vườn thoáng đãng, 1 gara ô tô, tại tầng 1 còn được thiết kế với 1 phòng ngủ dành cho ông bà hoặc nếu gia đình bạn ở riêng không có ông bà thì phòng ngủ là phòng ngủ của bố mẹ để trên lầu 2 sẽ là phòng ngủ của các con, tại đây các con sẽ có một không gian riêng tư thoải mái để học hành và nghỉ ngơi.

Chúng ta cùng khám phá bên trong căn biệt thự theo phong cách hiện đại chúng ta nhận thấy một sự kết hợp hài hòa trong tổng thể của căn nhà. Thật khéo léo khi các kiến trúc sư mang đến một phòng khách nhã nhặn nhưng vô cùng hiện đại. Không cần đến những món đồ nội thất đồ sộ mà chỉ bằng những món đồ nội thất đơn giản, tính tế với sự góp mặt của một bộ bàn ghế salon màu xám trẻ trung, một chiếc bàn trà bằng kính sáng bóng, một chiếc kệ ti vi gọn gàng cùng với một số vật dụng trang trí đã đủ làm nên sự ấn tượng cho không gian nội thất của căn biệt thự 120m2.

Gia đình bạn có đông thành viên, bạn cần tận dụng tối đa công năng để mang đến cho mỗi người có một không gian riêng tư thì bạn nên lựa chọn những mẫu thiết kế có 2 phòng ngủ ở khu vực tầng trệt. Trên đây là bản vẽ chi tiết cho mặt bằng lầu 1 của căn biệt thự 2 tầng 120m2. Tại lầu 1 các kiến trúc sư đã cân đối và có sự sắp xếp hài hòa với 1 phòng sinh hoạt chung, tại phòng này có sự nối liền giữa phòng khách và phòng bếp. Ngoài ra còn được thiết kế với 2 phòng ngủ để không gian gian tầng 2 thiết kế thêm 1 phòng thờ còn lại là không gian phòng ngủ. Tùy thuộc vào số lượng thành viên trong gia đình mà bạn cần có sự sắp xếp hợp lý.
Xây dựng số nơi bạn đặt niềm tin và ước mơ
Khi bạn đã có ý tưởng nhưng còn loay hoay chưa biết nên chọn đơn vị nhà thầu nào để có thể thực hiện hóa ước mơ của mình. Với xây dựng số là cầu nối trung gian giữa bạn với những nhà thầu uy tín, chuyên nghiệp hàng đầu của tất cả các tỉnh thành trên cả nước.

Tại đây bạn sẽ có cơ hội được làm việc cùng với những nhà thầu lớn ở các tỉnh thành từ Bắc vào Nam. Bạn hoàn toàn yên tâm rằng tất cả những nhà thầu mà xây dựng số giới thiệu đều có hồ sơ năng lực minh bạch, uy tín sẽ giúp các chủ đầu tư có thể nhanh chóng tìm được đối tác thiết kế, thi công, quản lý xây dựng một cách hiệu quả nhất. Ngoài ra khi lựa chọn các nhà thầu tại xây dựng số còn giúp bạn tiết kiệm tối đa chi phí xây dựng.
Nhà thầu của xây dựng số còn được đánh giá năng lực liên tục hàng năm với đội ngũ chuyên gia hàng đầu của Xây Dựng Số và còn được đánh giá trực tiếp bởi chính các chủ đầu tư đã được chúng tôi giới thiệu trong nhiều năm qua.


































