Phương án thiết kế biệt thự kiến trúc mái Thái chưa bao giờ lỗi thời. Do đó, nhiều chủ nhà đến với chúng tôi hầu hết đều muốn sử dụng kiến trúc đẹp và ấn tượng này. Bài viết dưới đây chúng tôi sẽ giới thiệu đến các bạn mô hình mẫu biệt thự nhà vườn mái thái 3 tầng đẹp 8x12m. Hy vọng sẽ là gợi ý thú vị cho các gia đình quan tâm đến kiến trúc hiện đại này.
Phối cảnh mẫu thiết kế biệt thự nhà vườn mái thái 3 tầng 8x12m

Hướng tới xây dựng không gian mở, mang đến một cuộc sống bình yên và thư giản. Các kiến trúc sư đã thiết kế mô hình biệt thự 3 tầng đẹp với sự kết hợp thông minh giữa không gian hiện đại và thiên nhiên hòa nhập với nhau.

Vì là nhà vườn nên thiết kế tập trung vào cảnh quan xanh, tạo ra một hệ sinh thái đa dạng. Ở các thành phố lớn, không dễ để sở hữu một quỹ đất lớn và việc tạo ra một biệt thự sân vườn tiêu chuẩn sẽ khó hơn. Tỉ lệ không gian sân vườn không đạt diện tích yêu cầu nhưng vẫn mang lại sự thoải mái, xanh mát, xứng đáng với danh hiệu biệt thự sân vườn.

Điểm nổi bật trong thiết kế của biệt thự đẹp này là mái thái độc đáo với kiến trúc độc đáo. Theo đó, mái nhà được chia thành 3 phần riêng biệt. 1 mái nhà để đặt trong khu vực bàn thờ và ra sân thượng; mái khác được thiết kế để chệch khỏi sân vườn ở giữa.

Dự án được quy hoạch với diện tích là 8x12m, trên lô đất 11x16m liền kề có một khu đất khác được sử dụng để xây phòng trọ. Do đó, để tạo điều kiện kết nối hai không gian và giúp chủ nhân nhanh chóng di chuyển, phần phía sau của biệt thự sẽ được bố trí thêm một cửa để vào nhà.

Một phần ban công trên tầng 3 sẽ được bố trí cửa nằm ngay bên phải bàn thờ. Bên cạnh đó, mặt trước của biệt thự sẽ được bố trí một cổng lớn nằm trực tiếp với khu vực đỗ xe, liền kề với cửa là lối vào phòng khách rất thuận tiện.
Chi tiết về bản vẽ các tầng của căn biệt thự sân vườn mái thái hiện đại

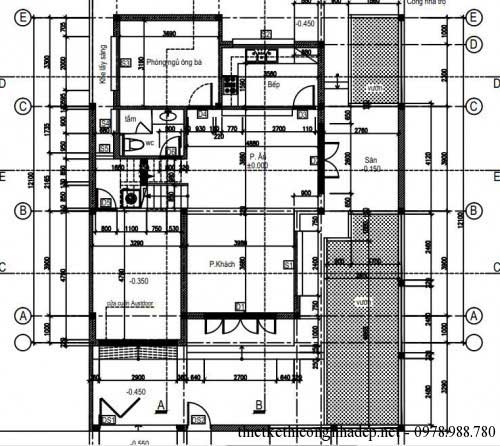
Bản vẽ mặt bằng tầng 1
Ở tầng trệt của biệt thự sẽ được xây dựng nhà để xe. Phòng khách có diện tích rộng rãi, không gian thoáng mát. 1 phòng ăn và bếp cho cả gia đình, 1 không gian nhỏ cho phòng ăn và phòng ngủ của ông bà.
Để tạo kết nối với khu vườn phía sau, ngay trong khu vực ăn uống sẽ bố trí thêm cửa để di chuyển ra ngoài. Nhà vệ sinh chung cho tầng một được thiết kế thông minh và sắp xếp hợp lý để tạo sự thuận tiện nhất. Nó được bố trí với nhà để xe, phòng khách, phòng ăn, khu vực bếp, phòng ăn và phòng ngủ của ông bà. Từ khu vực ăn uống có thêm cửa mở ra vườn, toàn bộ tầng có 1 phòng tắm.

Bản vẽ mặt bằng tầng 2

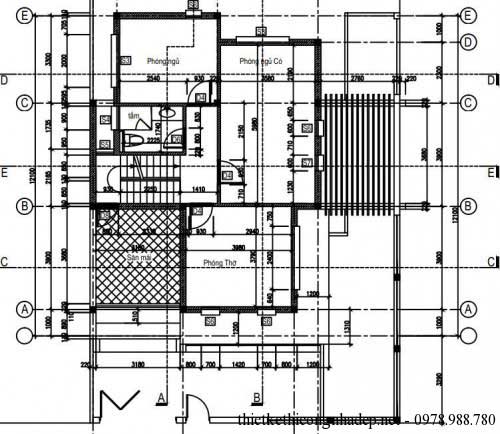
Bản vẽ mặt bằng tầng 3
Mặt bằng tầng 3 sẽ bao gồm 2 phòng ngủ cho các thành viên, 1 phòng thờ như một nơi thờ cúng trang trọng. Khu vực còn lại sẽ được sử dụng làm khu vực sân chơi được thiết kế mái che.

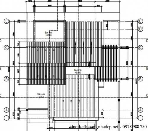
Bản vẽ mặt bằng tầng mái

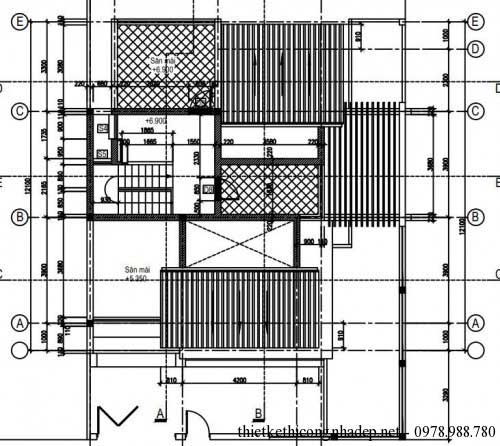
Bản vẽ mặt bằng tầng tum
Phương án thiết kế biệt thự sân vườn kiểi mái thái đẹp được đánh giá cao về tính thẩm mỹ và cách bố trí không gian hợp lý. Đây sẽ là lựa chọn tuyệt vời dành cho những gia đình có đông thành viên và yêu thích thiên nhiên.
Nguồn: thietkethicongnhadep.net
Xem thêm tin mới:
- Mẫu biệt thự 3 tầng mái thái 2 mặt tiền đẹp
- Mẫu biệt thự 3 tầng trên diện tích 10x18m
- Mẫu biệt thự tân cổ điển 3 tầng 9.7×9.7m


































