Được cho là một kết cấu phụ, nhưng thực sự công năng từ hệ thống gác lửng đã mang đến cho rất nhiều ngôi nhà sự thành công từ việc gia tăng không gian sinh hoạt, tạo nên một giá trị thẩm mỹ riêng biệt mà ảnh hưởng trực tiếp đến lối sinh hoạt của các gia đình. Gác lửng đã được nhắc đến khá nhiều trong các bài viết trước từ xaydungso.vn và bài viết này chúng ta sẽ quay lại với chúng thêm 1 lần nữa nhưng cái khác ở đây là kết cấu từ 1 trệt 3 lầu.

Mẫu nhà 1 trệt 3 lầu có gác lửng thực sự là một lựa chọn phù hợp cho các gia đình tại thành phố và cả vùng nông thôn. Chúng tuy không mang đến sự hiện diện ra ngoài mặt tiền nhưng khi bước vào không gian này, bạn sẽ thực sự cảm thấy chúng phù hợp như thế nào đến kiến trúc nhà ở. Đó là sự đổi mới từ kết cấu, giá trị riêng biệt mà chủ đầu tư muốn kết hợp vào không gian sống của gia đình.
Những lưu ý khi thiết kế gác lửng cho kết cấu 1 trệt 3 lầu :
Tùy theo kiến trúc, phong cách và mục đích sử dụng của chủ đầu tư mà kiến trúc sư có thể bám sát với những yêu cầu đó để tạo nên một mặt bằng hoàn thiện nhằm mang đến cho gia đình. Tuy vậy mọi người cần có cho mình những lưu ý để chúng có thể khai thác tốt nhất những lợi ích cho ngôi nhà của bạn :
- Điều đầu tiên cần lưu ý chính là chiều cao của tầng lửng, chúng cần có cho mình với độ cao từ 2.8 – 3m. Nếu như phần gác lửng được xây dựng thấp hơn so với chiều cao chúng sẽ là những bất lợi làm không gian này trở nên bí hơn. Ngoài ra thì phần hỗ trợ từ cầu thang cũng nên thiết kế nhỏ gọn để chúng không chiếm quá nhiều diện tích cho không gian phía bên trong ngôi nhà.
- Tầng lửng là không gian được sử dụng với nhiều mục đích khác nhau tùy theo nhu cầu của mỗi người và đặc điểm kết cấu mà chủ đầu tư mong muốn hướng đến. Với những căn nhà có diện tích nhỏ hẹp thì nhà gác lửng có thể sử, nhưng cần lưu ý về diện tích để chúng có thể đáp ứng được các chức năng khác nhau như phòng khách, phòng ngủ, nhà bếp hay đơn giản chỉ là gian phòng làm việc, học tập.
- Phần lan can che chắn cho việc sự dụng với kết cấu gác lửng thực sự rất quan trọng. Ngoài ra cần sử dụng các vật liệu hợp lý, chắc chắn, an toàn như các nguồn vật liệu từ gỗ, kính cường lực, sắt, thép và yêu cầu thẩm mỹ cao để chúng có thể phù hợp với kiến trúc của bạn.
- Cần chọn đồ nội thất cho tầng lửng một cách phù hợp và nên chọn những đồ nội thất có một kích thước vừa phải, với kiểu dáng đơn giản để tạo sự rộng rãi cho không gian này. Và nên hạn chế trọng lượng của chúng trên tầng lửng để đảm bảo sự an toàn khi sử dụng.
- Cần có một kết cấu phù hợp đảm bảo an cho các thành viên khi sử dụng và hơn hết là sự nhất quán trong nét tạo hình, phong cách mà gác lửng được đồng bộ với kết cấu của ngôi nhà để chúng có thể trở nên hoàn thiện hơn.
Thiết kế nhà 1 trệt 3 lầu có gác lửng tiện nghi | Mẫu nhà đẹp 2024
Hồ sơ hôm nay chúng tôi mang đến cho quý độc giả và quý khách hàng sẽ là các phối cảnh mặt tiền ngôi nhà, kết cấu nội thất từ bản vẽ và các góc chụp nội thất của ngôi nhà sau khi hoàn công để mọi người có thể hiểu rõ hơn về một kết cấu thông dụng này từ thiết kế ngôi nhà 1 trệt 3 lầu tiện nghi.
Thông tin về mẫu nhà ống 1 trệt 3 lầu
- Dự án thiết kế : mẫu nhà ống 1 trệt 3 lầu măt tiền 5m
- Chủ đầu tư: Mai Xuân Hương sinh 1977
- Phong cách xây dựng : “Dựa trên giá trị thẩm mỹ và công năng của ngôi nhà 1 trệt 3 lầu chúng tôi rất mong kết cấu được thêm vào là 1 gác lửng để tạo điểm nhấn.Với các chức năng được triển khai một cách thuận tiện nhất và kết cấu từ gác lửng sẽ là điểm nhấn mang chức năng từ không gian phòng khách hoàn thiện.” yêu cầu từ chủ đầu tư.
- Địa chỉ : Quận 11 – thành phố Hồ Chí Minh
- Thời gian thi công: ~ 3 tháng.
A. Phối cảnh nhà 1 trệt 3 lầu có mặt tiền 5m :
Hiểu rõ kiến trúc và kết cấu luôn là một phần quan trọng để thiết kế nên một ngôi nhà, mà dựa theo việc quan sát, đo đạt nêu ra được các ưu và nhược điểm của công trình để tiện cho quy trình thi công và thể hiện được điều mà người làm kiến trúc có thể truyền đạt vào công trình một cách phù hợp. Mà từ các phối cảnh của ngôi nhà bạn sẽ hình dụng được một cách chân thực nhất.

Thực sự ngôi nhà từ vẻ ngoài mặt tiền đã diễn đạt được phong cách mà kiến trúc sư đang muốn hướng đến cho gia đình từ lối xây dựng hiện đại. Là các chi tiết như được sắp xếp theo một thể thống nhất, chúng vừa giúp trang trí cho vẻ ngoài của ngôi nhà từ các ô hình chữ nhật đồng bộ làm đánh bật không gian tầng 1 và 2 một cách trọn vẹn nhất mà cũng sử dụng để ngăn cách tạo nên sự riêng tư cho các thành viên khi sinh hoạt bên trong.
Tuy vậy ở các chức năng từ kết cấu gác lửng vẫn được kèm theo với hệ thống ban công nhằm đổi mới cho mẫu nhà ống dường như đã quen thuộc với rất nhiều người nhưng nay lại được hiện hữu theo một công thức riêng biệt từ kiến trúc sư và đội ngũ từ Kiến Trúc Mới. Một trong những giải pháp thược được rất nhiều chủ đầu tư lựa chọn cho ngôi nhà của mình.

Từ góc nhìn tiếp theo, chúng ta có thể thấy không gian hiện lên theo nhiều vật dụng, vật liệu kết hợp cho các mục đích trang trí như đèn chiếu sáng, cây cảnh, kết cấu từ vách che, kết cấu tường và quan trọng hơn cả là sự phối hợp nhịp nhàng giữa các màu sắc với nhau để chúng trở nên hoàn thiện hơn. Đáp ứng cho cuộc sống hiện đại ngày nay mà các gia đình hiện đại vẫn luôn cần áp dụng cho chính công trình của mình.
Thực sự thì với gam màu trắng được cho là gam chủ đạo như hiện diện ở hầu hết mọi vị trí, mà các màu đen, gỗ hay gạch dán tưởng đã làm trọn vẹn thêm cho công trình. Tuy diện tích từ chiều ngang quá lớn để việc thiết kế trở nên đơn giản hơn nhưng với con số 5m từ hương mặt tiền có thể là một con số thực sự phù hợp để kiến trúc sư diễn đạt ý tưởng của mình cho chủ đầu tư nhắm rõ về định hướng của ngôi nhà. Để chúng có thể năng cao giá trị ngôi nhà lên giữa các dãy nhà liền kề.
B. Nội thất từ bản vẽ của ngôi nhà dạng ống 1 trệt 3 lầu có gác lửng :

Kết cấu từ tầng trệt : Sử dụng phần sân trước với 1 gara để các phương tiện giao thông, từ cửa ra vào là 1 phòng khách nhỏ 1 sảnh thang với chức năng tiếp theo là nhà bếp, sân sau và 1 nhà vệ sinh.

Kết cấu từ gác lửng : Theo như yêu cầu từ gia chủ thì kết cấu này sẽ sử dụng với phòng khách để chức năng từ tầng trệt được cởi nới hơn đến phần diện tích. Mà thông qua bản vẽ thì chúng đã được diễn đạt theo một cách đầy đủ nhất.

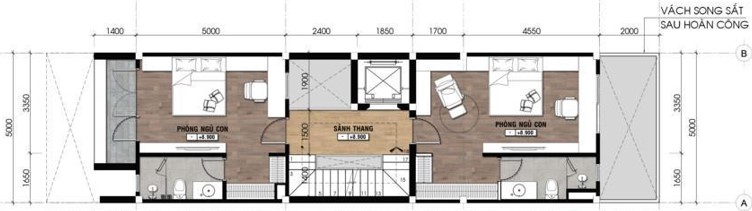
Mặt bằng tầng 1 : Chia ra thành 3 gian chính với 1 từ sản thang rộng rãi, gian bên trái là phòng làm việc và bên phải là 1 phòng khách với các chức năng đầy đủ nhất.

Mặt bằng tầng 2 : Có thể thấy chúng khía giống từ phần diện tích từ kết cấu tầng bên dưới. Những thay đổi từ kết cấu từ phong làm việc khi chúng đưa vào 1 phòng ngủ để nhân con số cho chức năng này lên thành 3.

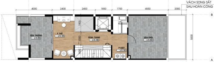
Mặt bằng tầng 3 : Với các chức năng kèm theo là sân phơi, sân thượng, phòng thờ, sảnh thang, phòng giặt sấy để chúng có thể đảm bảo được các yêu cầu từ nhịp sống hiện đại ngày nay.
Thực sự, thì khi nhìn vào bản vẽ này, các chức năng được kiến trúc sư phác họa hoàn toàn là ý tưởng và tư liệu từ chủ đầu tư cung cấp. Để chúng được hoàn thiện hơn thì phần lớn họ cần có thời gian trao đổi, trau dồi những thiếu sót và đưa ra một phương án tối ưu nhất dành cho công trình.
C.Nội thất nhà ống 1 trệt 3 lầu có kết cấu từ gác lửng :
Thiết kế nội thất ngày nay, thường bám sát đến sự thuận tiện cho các chức năng sinh hoạt mà chúng cũng được hiện thực hóa bằng các thiết kế dần được thay đổi để nhà ống trở nên hoàn thiện hơn rất nhiều so với thời gian hình thành. Mà ngay phía dưới, mọi người có thể thấy được những gì mà chúng tôi đang muốn nhắc đến.






Để có thể xây dựng lên một ngôi nhà, chắc rằng cần đến rất nhiều chi phí, công sức và cả chất xám của người làm kiến trúc để mang đến những thành quả mà bạn được thấy. Chúc cho công trình của bạn sẽ thực sự đáp ứng được mong muốn cũng như sở thích của gia đình. Xin chào và hẹn gặp lại mọi người trong các bài viết tiếp theo của chúng tôi !
Xem thêm :



























