“Đàn ông xây nhà, đàn bà xây ổ ấm” câu nói để đời của ông cha ta từ xưa đến nay vẫn luôn được con cháu đời sau suy ngẫm? Vậy, như nào được xem là một tổ ấm thực sự? Điều quan trọng đầu tiên để làm nên một gia đình là gì? Đó phải chăng chính là ngôi nhà mà “giông bão dừng sau cánh cửa”. Chúng ta có rất nhiều sự lựa chọn cho ngôi nhà của mình, song quý gia chủ có thể tham khảo mẫu nhà 3 tầng 200m2 của chúng tôi làm tổ ấm cho cả đại gia đình.

Phối cảnh đẹp như mơ của mẫu nhà 3 tầng 200m2
Ngắm nhìn mẫu thiết kế nhà 3 tầng 200m2 vừa hiện đại vừa sang trọng lại vừa không kém phần tinh tế tự nhiên với những thiết kế kiến trúc dạng hình khối khỏe khoắn, năng động là kết quả của sự mài giũa từng góc cạnh của người thợ nề chịu khó. Chất liệu để làm nên ngoại thất rất hài hòa từ những ban công bằng kính kết hợp với những lan can bằng hợp kim cao cấp hình trụ khối chữ nhật làm điểm nhấn cho ngôi nhà thêm muôn phần sang trọng, đẳng cấp. Đây có thể xem là một kiểu thiết kế “phá cách” của giới chuyên môn.

Ngoài ra mẫu thiết kế nhà 3 tầng 200m2 vừa hiện đại sang trọng này qua bàn tay khéo léo, tỉ mỉ của các đội ngũ kiến trúc sư và những người thợ xây dựng lành nghề đã biến hóa những mảng tường khô ráp, đơn điệu thành một tác phẩm nghệ thuật độc đáo với những đường nét mềm mại, dịu dàng như chính gia chủ của ngôi nhà vậy. Hơn hế nữa khi kết hợp mới màu sơn trầm còn làm toát lên sự chắc chắn, bền bỉ của ngôi nhà. Vẻ đẹp của mẫu nhà này chính là sự tổng hòa trong tính cách của người chồng cương quyết, mạnh mẽ và của người vợ nhân ái, hiền hòa. Quả là sự giửi gắm, tâm huyết của gia chủ đã dành trọn cho tư gia của mình và thổi vào đó chính là con người của của gia chủ.

Phần mái đua ra nối tiếp nhau cũng rất vuông vức, cân đối theo một logic hình học để nâng đỡ mãi tránh làm các viên ngói bị xô lệch. Nếu để ý kĩ tạo hình của mái quý độc giả sẽ nhận ran gay sự ính oán khoảng chìa ra của mái nhà rất phù hợp có tác dụng che mưa không bị hắt và đảm bảo nắng chói chang cũng không thể chiếu được vào căn nhà.
Với mẫu thiết kế nhà 3 tầng 200m2 này được thiết kế rất kì công, cầu toàn đã làm toát lên được vẻ phóng khoáng hoàng hoa mà vẫn không kém phần trang trọng lịch sự. Đây là mẫu nhà biệt thự 3 tầng theo lối kiến trúc Châu Âu mang phong cách cổ điển xen lẫn hiện đại. Màu sơn trắng kem tao nhã mang lại cảm thái thư thái an yên trong chính không gian sống của mình là điều không thể tuyệt vời hơn được nữa. Bên cạnh đó hệ thống cây xanh, cỏ hoa, cây cảnh được chú ý nhiều trong việc hỗ trợ làm nổi bật vẻ đẹp xanh mát và tươi vui của ngôi nhà. Đó chính là mong muốn được hòa hợp cùng thiên nhiên vạn vật và điều hòa không khí trong lành.

Còn mẫu nhà 3 tầng 200m2 chính là sản phẩm trí tuệ của lối kiến trúc hoàng gia với màu sơn màu trắng chủ đạo kết hợp cùng ánh đèn vàng trang trí khiến tư gia của bạn luôn hiện lên thật lung linh ấm áp. Ngày nay bên cạnh việc trang trí thì màu sơn, màu sắc thiết kế của các vật dụng đi kèm rất được coi trọng. Chúng phải luôn đảm bảo: bền, đẹp, an toàn với sức khỏe cộng đồng đồng thời chịu lực và nhiệt tốt.

Ngoài ra những thiết kế đi kèm như lan can ban công tân cổ điển mềm mại uyển chuyển kết hợp cùng cửa sổ nhôm xingfa cao cấp hình vuông mang lại sự chắc chắn, mới vẻ cho công trình. Những lam gỗ nhỏ được kết hợp với màu nâu cà phê của phần cánh cửa ở tầng 2 cơ hồ như một chiếc quạt thổi gió ddiujmats ngày nắng nóng. Những ô cửa kính trắng sáng đi kèm với khung cửa màu nâu quả thực rất phù hợp và nổi bật bởi nó chính là sự đồng điệu với màu ngói ở trên cao.
Đâu được xem là một bản vẽ hoàn hảo cho mẫu nhà 3 tầng 200m2
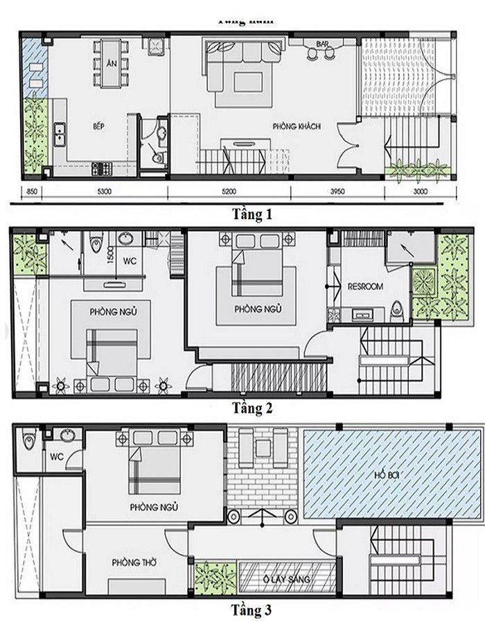
Bản vẽ là một phần rất quan trọng trong tất cả các công trình trước khi thi công. Qua bản vẽ giúp cho những người thợ và chủ nhà dễ dàng tiếp nhận được công trình mình đang thực hiện và hình dung ra được nó như thế nào. Sau đây chúng tôi xin gửi đến quý nhà đầu tư bản vẽ hoàn hào nhất cho mẫu nhà 3 tầng 200m2 hiện nay.

Ngay dưới tầng 1 được đặt phòng khách đối diện cửa ra vào. Sảnh chính này rộng rãi được thiết kế song song với cửa kính để người ngồi đây tiện lợi nhìn ra quên ngoài quan sát mọi vật. Còn khu bên trong dành cho phòng bếp và nhà ăn, xong quanh có câu cối mát mẻ, tự nhiên. Ngoài ra gia chủ còn rất tế nhị đặt một nhà vệ sinh phụ ở một góc nhỏ cho khách đến thăm nhà tiện sử dụng. Lên đến tầng 2 được thiết kế với 2 phòng ngủ tiện ích có công trình vệ sinh khép kín bên trong. Cả hai phòng đều rộng rãi và được đặt ở những vị trí thoáng đãng mát mẻ nhất.
Ngoài ra ở đây còn được sắp xếp một phòng làm việc, học tập và giải trí cho vợ chồng con cái sinh hoạt, nghỉ ngơi vô cùng tiện lợi. Lên đến tầng 3 như chúng ta đều thấy điểm nhấn thực sự của ngôi nhà chính là bể bơi rộng rãi được đặt trên tầng cao nhất, bởi lẽ ở vị trí này có thể thuận tiện mà quan sát mọi thứ xung quanh bên dưới. Bên cạch bể bơi diện tích cong lại của tầng 3 để thiết kế một phòng thờ và một phòng ngủ.
Điều dễ dàng nhận thấy qua bản vẽ này chính là mong muốn của gia chủ được hoà hợp cùng thiên nhiên trong lành. Vậy nên họ đã rất chua trọng trồng nhiều cây xanh, cây cảnh quanh khu vực sinh sống. Đồng thời để cuộc sống của các thành viên thêm phong phú và tiện nghi bên công nh bể bơi luôn trang bị đầy đủ nghế đa năng, quán nước nhỏ, … có thể nói không cần đến biển chỉ cần lên tầng 3 những đứa trẻ nhà bạn đã vô cùng thích thú rồi.
Nội thất đồng bộ trong mẫu nhà 3 tầng 200m2 đẹp
Tiêu chí để đánh giá một không gian đẹp đâu chỉ là sự đánh giá thoáng qua vẻ bề ngoài của ngôi nhà mà còn là việc bố trí sắp xếp nội thất bên trong. Nói đến đây hẳn chúng ta sẽ nghĩ ngay đến phòng khách. Bởi lẽ đây là nơi mà gia chủ luôn dày tâm sức để trang hoàng và sắp xếp nhiều nhất. Phòng khách này có thiết kế hiện đại bởi những gam màu sáng nổi bật. Chiếc ghế sofa trẻ trung chắc chắn là món đồ không thể thiểu cho căn phòng này. Những chiếc gối ôm nhiều màu sắc tựa như những viên socola khổng lồ hẳn là điều mà con cái nhà bạn sẽ rất thích thú.

Điểm nổi bật là trần nhà được ốp bằng gạch hình khối lớn tráng men đen cao cấp để tạo nên độ tráng và rất sang trọng. Chưa kể đến những chiếc đèn trang trí lạ mắt cùng góp phần làm cả không gian phòng khách thêm muôn phần nổi bật. Nhờ có không gian rộng mà phòng khách được thiết kế thêm những cách bằng CNC hiện đại làm tăng thêm tính bền vững và giá trị thẩm mĩ cao cho toàn bộ hệ thống tầng 1.
Phòng bếp và bàn ăn cũng được thiết kế đồng bộ cùng phòng khách với tông màu hiện đại. Những chiếc ghế chân dài, dáng vẻ chắc chắn và dưới ánh đèn lung linh nhiều màu sắc đảm bảo sẽ làm cho không gian nhà bếp của nhà bạn thêm đông vui để mỗi bữa ăn như những bữa tiệc sang trọng và gắn kết các thành viên trong gia đình.

Còn đây là phòng ngủ của bố mẹ với diện tích lớn có tầm nhìn hướng ra cây cối xanh tươi bên ngoài để tạo cảm giác lãng mạn và thư thái. Vẫn là luôn ưu tiên màu sơn phòng nền nã để tăng thêm sự thư thái trong tâm hồn.

Cùng với đó là phòng ngủ đầy vẻ ngộ nghĩnh đáng yêu của những đứa trẻ. Chắc chắn rằng không một đứa trẻ nào có thể từ chối một căn phòng cổ tích như thế này. Những miếng dán tường theo sở thích của trẻ. Chiếc giường nhỏ xinh từ nhựa cứng an toàn và tuyệt đối bền chắc cho đến những tấm thảm trải sàn đều là những sản phẩm tuyệt vời nhất mà những bậc cha mẹ dành bcho con yêu của mình.

Thế kỉ XXI ghi nhận những công trình mang đậm dấu ấn cá nhân, dấu ấn của những con người tạo nên sản phẩm. Quý bạn hãy là người đầu tiên ghi dấu ấn cuộc đời mình qua công trình nhà ở 3 tầng nói chúng. Bạn chỉ cần lên ý tưởng còn mọi thứ về sau xaydungso sẽ giúp bạn hoàn thành.


































