Đối với những gia đình có diện tích đất nhỏ, hẹp nhưng nhà lại đông người, nhu cầu về sử dụng công năng lớn. Vậy phải làm sao để đáp ứng được những yêu cầu này của gia chủ, chúng tôi xin đề xuất mẫu nhà có gác lửng. Mẫu nhà này sẽ giải quyết được hai yêu cầu trên của quý khách. Ở bài viết này chúng tôi sẽ cung cấp thông tin chi tiết cho quý khách hàng về mẫu nhà 4 tầng có gác lửng để các bạn có thể tham khảo.

Phối cảnh mẫu nhà 4 tầng có gác lửng
Mẫu nhà 4 tầng đẹp có gác lửng hiện nay rất được ưa chuộng vì nó có những ưu điểm vượt trội như: đa dạng hoá công năng, tiết kiệm chi phí xây dựng, tạo cảm giác rộng rãi và thoáng mát hơn, … Đây là mẫu nhà có thiết kế khá đặc biệt và góc view khá đẹp khi nhìn từ phòng khách ra. Chính vì lý do đó mà mẫu nhà 4 tầng có gác lửng này luôn được sự quan tâm rất lớn từ phía khách hàng. Từ lối thiết kế hiện đại cho đến công năng tiện ích, tất cả đã chiếm lĩnh sự yêu thích, niềm đam mê của nhiều gia chủ.

Hiện nay có rất nhiều phong cách thiết kế nhà ở nhưng phổ biến và được ưa chuộng tại Việt Nam hiện nay đó là: hiện đại, cổ điển, bán cổ điển, tân cổ điển, … Việc xác định được phong cách thiết kế rất quan trọng bởi nó quyết định đến ngôi nhà của bạn.
Đối với căn nhà có diện tích nhỏ, hẹp thì việc thiết kế thêm tầng lửng là một trong những cách để tăng diện tích sử dụng theo chiều cao. Tuy nhiên không phải cứ những ngôi nhà có diện tích nhỏ hẹp mới cần thiết kế thêm tầng lửng mà đối với những ngôi nhà rộng muốn có một không gian thoáng đãng và đẹp thì cũng có thể thiết kế thêm tầng lửng.
Với những ngôi nhà 4 tầng có gác lửng thì thường tầng 1 sẽ được thiết kế gồm chỗ để xe, phòng khách, phòng bếp hoặc 1 phòng vệ sinh. Để có thể tận dụng được những ưu điểm tối đa của tầng lửng thì các bạn nên thiết kế mẫu nhà ống bởi nhìn từ mặt tiền của ngôi nhà nó vừa sang trong vừa mang tính thẩm mỹ cao và chiều cao của ngôi nhà sẽ làm điểm nhấn.

Về mặt tiền của căn nhà nên sơn những tông màu trắng sáng như màu trắng, kem, … kết hợp cùng ốp các loại đá để làm điểm nhấn cho căn nhà. Hệ thống cửa nếu chọn cửa gỗ thì nên chọn cửa gỗ kính bởi nó sẽ giúp cho ánh nắng chiếu được vào ngôi nhà, không quên lắp thêm rèm cửa để tránh nắng những lúc nhiệt độ cao.
Tầng 2 ,3 thiết kế đơn giản nhưng vẫn tinh tế, ban công nên xây rộng để chủ nhà có thể trồng hoa, cây cảnh, … giúp tăng tính thẩm mỹ cho mặt tiền của ngôi nhà. Đối với những gia chủ thích phong cách hiện đại có thể trang trí thêm các thanh lam chắn nắng. Điều này vừa tạo hiệu ứng đẹp cho căn phòng vừa chắn nắng hắt vào phòng.
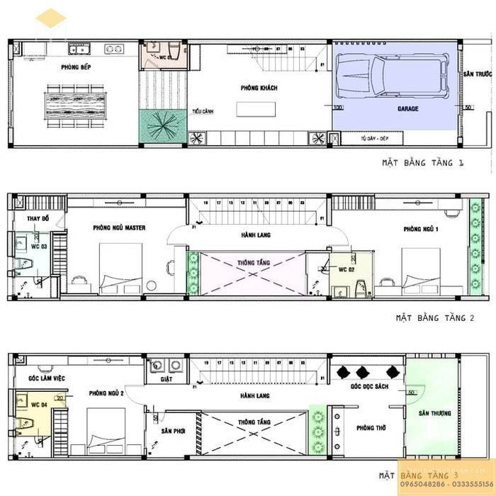
Bản vẽ mặt bằng công năng của mẫu nhà 4 tầng có gác lửng:
Bản vẽ mặt bằng mẫu nhà 4 tầng có gác lửng này cũng được chúng tôi đặc biệt chú ý, phải thiết kế làm sao hài hòa tạo điểm nhấn riêng cho mỗi ngôi nhà. Tầng 1: Sẽ tuỳ thuộc vào yêu cầu và mong muốn của quý khách hàng để thiết kế không gian sao cho phù hợp. Nhưng thường thì tầng 1 của mẫu nhà 4 tầng có gác lửng sẽ được thiết kế bao gồm sân, phòng khách, nhà bếp và một phòng vệ sinh. Với cách thiết kế này vừa thuận tiện trong sinh hoạt chung của gia đình vừa tạo tính thẩm mỹ cao.

Tầng lửng: Sẽ là khoảng không gian giúp cho phòng khách ở tầng 1 có độ hút mắt về chiều cao. Thường thì tầng này có gia đình sẽ bố trí là phòng ăn hoặc phòng sinh hoạt chung, cũng có thể được thiết kế thành phòng ngủ cho khách và 1 phòng vệ sinh khép kín. Do mẫu nhà này hơi chật hẹp nên thiết kế thêm khu thông tầng ở cuối nhà để tạo sự thông thoáng cho không gian sống.

Tầng 2: Nếu nhà đông người thì có thể chia làm 2 hoặc 3 phòng ngủ. Còn nếu ít người có thể chia thành 2 phòng ngủ và phòng đọc sách hoặc phòng làm việc. Phòng ngủ sẽ bố trí vệ sinh khép kín nếu gia đình có điều kiện hoặc không thì bố trí 1 phòng vệ sinh ở cuối tầng để tiết kiệm chi phí. Ban công thì được bố trí tuỳ theo yêu cầu của chủ nhà có thể ở phía mặt tiền và hai bên để hút gió tạo cảm giác thư thái cho gia đình chủ nhà. Nếu thiết kế phòng đọc sách thì nên bố trí phía trong khu thông tầng để đảm bảo có đủ ánh sáng.

Tầng 3: Thường thì nơi cao nhất của ngôi nhà sẽ là phòng thờ- nơi thắp hương thờ cúng tổ tiên, phòng giặt giũ và phơi đồ. Đi kèm thêm 1 hoặc 2 phòng ngủ. Tuy nhiên có một số gia đình sẽ để phòng thờ ở tầng 1 để tiện cho việc đi lại. Cái này sẽ tuỳ thuộc vào yêu cầu của chủ nhà để các kiến trúc sư có thể thiết kế theo.
Nhìn chung thì với cách thiết kế như thế này đã đảm bảo được đủ tiêu chí thông thoáng, công năng được sử dụng một cách tiện nghi, khoa học và vẫn mang lại tính thẩm mỹ cho cả căn nhà.
Nội thất mẫu nhà 4 tầng có gác lửng
Phòng khách được là không gian trang trọng và lịch sự của căn nhà. Bởi đây sẽ là nơi chủ nhà tiếp đãi khách và cũng là nơi sinh hoạt chung của các thành viên trong gia đình. Nơi mọi người quây quần bên nhau sau những giờ học, làm việc mệt mỏi. Phòng khách là trung tâm của căn nhà, để đánh giá được mức độ giàu có và chịu chơi của chủ nhà thì chỉ cần nhìn vào phòng khách là biết. Vì đây là không gian được trang trí những đồ nội thất đẹp nhất, trang trọng nhất và có tính thẩm mỹ cao nhất.

Đối với những gia đình có phòng khách diện tích nhỏ thì nên yêu cầu các kiến trúc sư thiết kế theo không gian mở. Bởi thiết kế theo phong cách này sẽ khiến cho không gian trở nên rộng rãi, thoáng mát hơn rất nhiều. Tại phòng khách nên thiết kế cửa sổ rộng để ánh sáng chiếu vào khiến cho căn phòng trở nên rộng rãi hơn.
Với phòng khách nhỏ thì không nên trưng bày đồ nội thất có kích cỡ lớn mà nên sắp xếp những đồ có kích cỡ vừa phải với những tone màu trang nhã, lịch sự để căn phòng vừa trở nên rộng rãi hơn vừa thể hiện được sự trang trọng, đầm ấm.
Do phòng khách được thiết kế cạnh cửa sổ lớn hoặc ban công rộng nên ánh sáng mặt trời sẽ chiếu trực tiếp vào nhà. Vì vậy nên lắp thêm rèm cửa mỏng, màu sáng và hoạ tiết nhẹ nhàng vừa che được ánh nắng những vẫn tạo độ sáng cho phòng khách.
Nếu chủ nhà thích có thể trưng bày thêm cây xanh trong phòng khách nhưng chỉ nên trưng những cây nhỏ xinh chứ không chọn những cây quá lớn. Điều này có cảm giác con người hoà mình vào thiên nhiên đem lại cảm giác thư thái cho các thành viên trong gia đình.
Về phòng ngủ thì có thể trang trí và sắp xếp tuỳ theo sở thích, phong cách sinh hoạt theo từng gia đình. Một điều cần lưu ý là nên sắp xếp theo phong thuỷ của từng thành viên trong gia đình bởi việc này đem lại may mắn, vận khí và những nguồn năng lượng tích cực cho tất cả mọi người trong nhà.

Ban công có thể trồng hoa, cây leo vừa tạo điểm nhấn cho căn nhà cũng như tạo được cảm giác thoải mái cho gia đình chủ nhà. Có thể lắp thêm các thanh lam chắn nắng ngoài ban công vừa tạo được điểm nhấn cho mặt tiền của ngôi nhà vừa có thể chắn nắng và tạo hiệu ứng đẹp.

Với mẫu thiết kế nhà 4 tầng có gác lửng như thế này rất phù hợp với những gia đình có diện tích khu đất nhỏ, hẹp. Ngoài mẫu thiết kế nhà này các bạn có thể tìm hiểu thêm các mẫu thiết kế nhà khác nhau trên sàn Xây dựng số Việt Nam. Đây là sàn xây dựng uy tín, được rất nhiều quý khách hàng lựa chọn để tìm hiểu các thông tin về xây dựng. Tại sàn Xây dựng số cung cấp tất cả các kiến thức cho các bạn về mẫu thiết kế nhà, chi phí xây dựng, nhà thầu xây dựng uy tín, …
Trên đây là những thông tin về mẫu nhà 4 tầng có gác lửng mà chúng tôi muốn gửi đến quý bạn đọc. Nếu các bạn cũng muốn sở hữu một căn nhà 4 tầng có gác lửng đẹp thì hãy tìm hiểu bài viết này của chúng tôi để có những ý tưởng tuyệt vời cho căn nhà của mình. Bài viết này của chúng tôi chỉ mang tính chất tham khảo nên nếu có gì sai sót kính mong các bạn có thể bỏ qua hoặc để lại bình luận ngay dưới bài viết. Chúng tôi sẽ giải đáp những thắc mắc của các bạn. Xin chân thành cảm ơn!


































