Với diện tích khu đất của gia đình chí có 4x10m khá là nhỏ, các bạn đang băn khoăn không biết sẽ xây dựng căn nhà như thế nào để đem lại tối đa công năng sử dụng cùng không gian sống thoáng mát. Hãy theo dõi bài viết mẫu nhà 4 tầng 4x10m của chúng tôi để giải đáp những băn khoăn, lo lắng của các bạn.
Khám phá những thiết kế mẫu nhà 4 tầng 4x10m hiện nay
Bạn đang sở hữu một ô đất không phải là to, chỉ với khoảng 40m2 được đặt ngay ở thành phố đông đúc nhiều người qua lại, bạn muốn tận dụng lợi thế này để xây dựng một ngôi nhà đẹp và phong cách nhất. Không khó đối với những kiến trúc để mang lại những bản vẽ hoàn hảo cho quý khách hàng.

Với những căn nhà được xây trên diện tích khu đất nhỏ hẹp thì chắc chắn sẽ được xây theo lối nhà ống hay còn gọi là nhà phố. Chỉ có kiến trúc nhà phố mơi đảm bảo được yêu cầu của các bạn và phô được vẻ đẹp của căn nhà. Vì vậy những gợi ý hình ảnh 3D dưới đây chắc chắn sẽ khiến bạn hài long.

Để hoàn thành tốt phần phối cảnh cần xác định được phong cách thiết kế và phân loại mặt tiền của ngôi nhà. Hiện nay những phong cách thiết kế được mọi người ưa chuộng là cổ điển, hiện đại, tân cổ điển, kiến trúc Pháp, … còn mặt tiền sẽ là nhà ống 1 mặt tiền, 2 mặt tiền, 3 mặt tiền, …

Trong bài viết này, chúng ta sẽ cùng thử thiết kế kiến trúc ngoại thất cho mẫu nhà 4 tầng 4x10m theo phong cách hiện đại và 1 mặt tiền để mọi người cùng tham khảo:

Những ngôi nhà 4 tầng với diện tích nhỏ nhắn được bố trí các mảng tường giật cấp sáng tạo so le ở mặt tiền tầng 1 và ban công các tầng 2, tầng 3 và tầng 4. Các không gian được phân chia và trang trí các chi tiết một cách chặt chẽ tạo nên sự chan hoà giữa hình khối và tiểu cảnh.

Để tạo điểm nhấn cho ngôi nhà mặt tiền tầng 1 được ốp đá màu nâu pha trắng cao cấp, đi kèm thêm mặt tiền tầng 2 được ốp gạch giả gỗ tạo nên một vẻ đẹp hài hoà và sống động. Với nền trắng chủ đạo được tô điểm bởi màu nâu của đá và của gỗ khiến ngôi nhà từ xa đã tạo điểm nhấn trong con mắt người nhìn.

Những đường gạch chỉ nhỏ chạy ngang màu ghi trên bức tường vôi trắng càng khiến ngôi nhà mang vẻ đẹp ấm áp và bình dị. Toàn bộ hệ thống cửa được làm bằng kính mờ trừ cửa chính của ngôi nhà. Tại sao lại thiết kế kính mờ khung màu đen vì kính mờ vừa đón ánh sáng vào nhà vừa tạo không gian riêng tư cho cả gia đình.

Lan can ở ban công có thể là lan can inox hoặc bằng chất liệu kính sang trọng treo những giỏ hoa nhỏ đung đưa trong gió lại toả mùi hương giúp tinh thần của mọi người trở nên thư thái, dễ chịu. Tận dụng chiều cao của ngôi nhà thiết kế hệ thống mái bằng với những khoảng hở được phủ kính ở phía trên. Vừa giúp ngôi nhà thông thoáng đa chiều vừa tận dụng để phơi đồ, trồng cây và ngắm sao vào buổi tối.

Đối diện với hệ thống cửa chính tầng 1 là một khoảng sân nhỏ được lát gạch màu đỏ hoặc màu xanh than tuỳ vào sở thích của gia chủ. Tuy nhiên nên chọn những loại gạch chống trơn trượt để không gây nguy hiểm khi trời mưa.
Bản vẽ công năng cho mẫu nhà 4 tầng 4x10m
Công năng mặt bằng tầng một là không gian sinh hoạt chung của cả gia đình: gồm gara để xe có thể chứa được 1 chiếc ô tô và vài chiếc xe máy của cả gia đình. Sau gara sẽ là phòng khách rồi tới phòng bếp vừa nấu ăn vừa ăn uống. Phía cuối tầng 1 sẽ là 1 nhà vệ sinh và khoảng không để đón gió và ánh sáng vào không gian bếp.

Nhiều bạn thắc mắc tại sao không thiết kế nhà vệ sinh ở gầm cầu thang để tiếp kiệm diện tích cho tầng trệt nhưng theo phong thuỷ thì không nên thiết kế như vậy. Cầu thang sẽ là nơi ngăn cách giữa phòng khách và nhà bếp.

Lan can cầu thang có thể được làm bằng gỗ, kính, inox, … Tuy nhiên để căn nhà thêm sang trọng thì gỗ được sử dụng nhiều nhẩt với các bậc cầu thang với mặt bậc là gỗ còn mặt sau là đá màu trắng tạo nên một tổng thể vô cùng cân xứng và đẹp mắt.

Tầng 2 được thiết kế gồm 2 phòng ngủ lớn hoặc 3 phòng ngủ nhỏ và 1 nhà vệ sinh chung với đầy đủ tiện nghi.
Phòng ngủ tầng hai sẽ dành cho trẻ nhỏ và người lớn tuổi để thuận tiện trong việc đi lại. Vì nhà nhỏ nên không thể thiết kế phòng ngủ cho người lớn tuổi ở tầng 1 được. Phòng vệ sinh chung được bố trí ở giữa 2 căn phòng để tiện cho việc sử dụng. Tất cả các phòng ngủ đều được thiết kế cửa kính và hướng đón được ánh sáng tự nhiên theo lối ban công và khoảng thông tầng.

Tầng 3 cũng thiết kế 1 phòng ngủ lớn cho vợ chồng gia chủ để vừa nghỉ ngơi và làm việc. Thêm 1 phòng ngủ nhỏ và 1 nhà vệ sinh chung để tiết kiệm diện tích. Các không gian vẫn được bố trí để đảm bảo căn phòng luôn tràn ngập ánh sáng và thông thoáng.

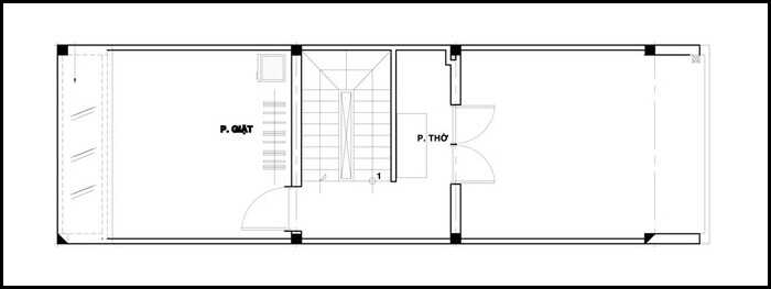
Tầng 4 bố trị một không gian trang trọng để thờ cúng tổ tiên, phòng giặt đồ còn phơi quần áo sẽ được phơi ở sân thượng. Sân thượng vừa phơi quần áo ở 1 góc nhỏ, bao quanh là các chậu cây và ở giữa là một bộ bàn trà để cả gia đình ngắm sao và hóng gió vào buổi tối. Quả là một không gian thơ mộng, trữ tình.
Cách thiết kế nội thất cho mẫu nhà 4 tầng 4x10m
Vì diện tích một tầng chỉ có 40m2 khá là nhỏ dẫn đến các không gian đều bị nhỏ theo. Những không gian như phòng khách, phòng bếp là nơi sắp xếp rất nhiều đồ nội thất nên cần phải suy nghĩ làm sao để bố trí đồ vật được hợp lý mà căn phòng không bị chật chội. Phần trần và gạch ốp lát nên sử dụng những màu trắng sáng để tổng thể căn nhà luôn sáng sủa và rộng rãi. Việc thiết kế không mở thêm những chiếc rèm được lắp cao để khiến tường của ngôi nhà trở nên cao hơn. Những thanh lam gỗ ngăn cách các không gian với nhau vừa rộng rãi và thoáng mát.

Phòng khách được bố trí một bộ sofa nhỏ bằng vải màu ghi hoặc màu kem. Nếu như không sử dụng sofa thì bộ bàn trà màu nâu hay trắng sẽ khiến không gian không bị chật chội và bí bách. Dưới bàn trà hay sofa trải một chiếc thảm khác màu với màu gạch để tạo điểm nhấn cho mặt sàn.
Những thiết bị điện tử như ti vi, đồng hồ đều được treo tường để tiết kiệm diện tích. Đèn chùm với hoạ tiết đơn giản không rườm rà. Bố trí sử dụng nhiều đèn để căn phòng được sáng thêm một bình hoa để căn phòng luôn thơm ngát. Ngoài ra có thể treo thêm những bức tranh nghệ thuật để tạo điểm nhấn cho không gian phòng khách. Một bức tường được thiết kế thụt vào bên trong 10cm được xây những viên đá màu sắc trắng góp phần tạo nên không gian phòng khách vừa rộng rãi, thoáng mát lại vừa thơ mộng và nên thơ.

Nhà bếp mà vừa nhiều đồ lại chật chội sẽ không tạo được cảm hứng cho người nấu ăn. Một căn bếp xinh đỏ và gọn gàng mới sáng tạo được những món ăn ngon. Vì vậy việc bố trí nội thất nhà bếp vô cùng quan trọng.
Những bộ bàn ghế ăn nên sử dụng ghế gập để có thể gấp gọn tránh gây chật chội khi ra vào và nấu ăn. Những đồ vật có thể thiết kế âm tường như tủ lạnh, máy rửa bát, lò nướng đều thiết kế âm để tiết kiệm diện tích cho căn bếp. Gia vị và đồ dùng nên sắp xếp gọn gàng và sạch sẽ. Khi nấu ăn phải mở hết cửa và bật máy khử mùi để nhà bếp không bị ám mùi. Một lọ hoa để căn phòng luôn tràn ngập hương thơm.

Phòng ngủ được thiết kế tuỳ vào sở thích và lứa tuổi. Nếu như phòng ngủ của người lớn tuổi được thiết kế tạo sự ấm cúng và giản gị thì phòng ngủ của trẻ em cần nét thơ mộng và phá cách. Còn phòng ngủ của vợ chồng thì được bố trí nội thất theo kiến trúc hiện đại và sang trọng. Mỗi một căn phòng mang một vẻ đẹp riêng nhưng luôn làm hài lòng tất cả mọi người.
Toàn bộ không gian cho mẫu nhà 4 tầng 4x10m đã được chúng tôi phân tích vô cùng chi tiết và rõ ràng để gửi tới quý bạn đọc. Qua bài viết này của chúng tôi chắc hản các bạn sẽ có cái nhìn chuẩn mực, thấu đáo về mẫu thiết kế này. Ngoài ra, chúng tôi còn rất nhiều mẫu thiết kế khác, bạn đọc có thể tham khảo qua sàn Xây dựng số Việt Nam để chọn được mẫu thiết kế phù hợp. Chúc các bạn thành công!
Xem thêm tin:

































