Hiện nay mẫu nhà 4 tầng 4x17m đang rất được ưa chuộng tại nước ta. Vậy lí do gì khiến cho mẫu nhà này được nhiều gia chủ yêu thích lựa chọn đến như vậy. Nếu bạn đang thắc mắc thì hãy đọc bài viết này của tôi để biết được tại sao mẫu nhà này lại được ưa chuộng đến như vậy.
Tổng quan những phối cảnh 3D cho mẫu nhà 4 tầng 4x17m
Càng ngày có càng nhiều mẫu nhà đẹp ra mắt chủ đầu tư, khách hàng, mỗi bản thiết kế là tâm huyết lớn lao của đội ngũ kiến trúc sư trên khắp cả nước. Tại sao khi cuộc sống của con người ngày càng phát triển, họ lại ưu tiên đầu tư cho gia đình nhiều hơn, phải chăng gia đình là nguồn cội của sự sống, nó giúp chúng ta có những phút giây thư giãn nhất khi trở về nhà.

Ngôi nhà được xây dựng gồm 4 tầng có kích thước là 4x17m nên diện tích xây dựng một sàn sẽ là 68m2. Tổng diện tích của cả căn nhà là 272m2 được xây dựng với những cột bê tông vô cùng chắc chắn với các nguyên vật liệu tốt phù hợp với tiêu chuẩn kĩ thuật.

Ngôi nhà được thiết kế vô cùng đơn giản nhưng vô cùng hiện đại và thanh lịch. Phần sơn của ngôi nhà với hai gam màu tương phản nhưng lại vô cùng bắt mắt. Với tổng thể ngôi nhà được sơn màu trắng pha kem thêm những mảng tường màu ghi nhẹ nhàng tạo nên một kiến trúc ngoại thất hài hoà và cân xứng. Tại mặt tiền tầng 1 được ốp đá cao cấp màu nâu sữa tạo nên sự độc đáo cho hệ thống mặt tiền.

Phần cổng được các kĩ sư thiết kế theo phong cách riêng mang nét đẹp hiện đại pha lẫn với cổ xưa rất độc đáo. Xuyên suốt ngôi nhà là hệ thống cột chắc chắn và hết sức kiên cố. Những chiếc đèn được bố trí đầy đủ tại các tầng ở mặt tiền để đảm bảo buổi tối không gian ngôi nhà vẫn đầy đủ ánh sáng, lung linh và huyền ảo.

Toàn bộ hệ thống cửa sổ, cửa chính và cửa ra vào được làm bằng cửa gỗ khung kính vừa sang trọng lại đảm bảo căn nhà đẹp 4 tầng hơn khi đón ánh nắng mặt trời trực tiếp và gió mát của thiên nhiên. Lan can ban công được thiết kế đơn giản chỉ điểm vài hoạ tiết nhỏ để nó không bị cứng nhắc. Một vài chậu hoa được đặt ngay ngắn ở ban công của các tầng để góp phần tô điểm thêm cho vẻ đẹp của ngôi nhà.

Tại phần sân vườn có 1 bộ ghế đá xung quanh là các cậu cây cảnh và 1 hồ nước nhỏ thả cá. Có thể trồng sen ở trong hồ vừa tạo một không gian sống xanh cho căn nhà vừa khiến người ngoài phải ngạc nhiên về phần tiểu cảnh đẹp xuất xắc này.

Tại các tầng những thanh lam chắn bằng sắt hộp được hàn thẳng đắng với màu đen huyền bí vừa tạo hiệu ứng đẹp khi trời nắng vừa chắn nóng cho không gian các tầng. Mái được thiết kế bằng được sơn chống thấm tạo dốc về các ống nước mái. Trên mái sẽ đặt téc nước để nước phân phối cho các tầng.
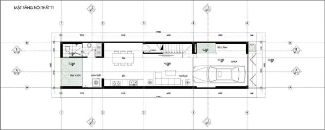
Bản vẽ mặt bằng công năng cho mẫu nhà 4 tầng 4x17m

Tầng 1: Sau khoảng sân là chỗ để xe, có thể để được 1 chiếc ô tô và xe máy cho gia đình với diện tích khoảng 17, 18m2. Tiếp đến phòng khách và khu vực bếp ăn và cuối cùng là nhà vệ sinh. Vì được bố trí thnag máy nên thang bộ được thiết kế ở 1 góc của tầng 1. Việc thiết kế cầu thang 1 vế nép theo chiều dọc của căn nhà dành cho những ngôi nhà có mặt tiền hẹp để tạo một không gian tổng thể không bị đứt quãng.

Lan can được làm bằng kính, dây văng cùng hệ thống mặt bậc gỗ kết hợp với đá trắng tạo nên vẻ đẹp nổi bật cho nội thất của ngôi nhà. Ngoài ra còn khiến không gian trở nên rộng rãi hơn. Thang máy khi lắp đặt nên sử dụng những loại thang chất lượng để sử dụng được lâu dài và bền vững với thời gian. Thang máy chất lượng khu sử dụng sẽ không bị rung lắc tạo cảm giác “say” cho người sử dụng.
Không gian phòng khách và nhà bếp + nhà ăn được thiết kế một vách ngăn bằng gỗ và khu vực đối diện với cầu thang được thiết kế làm giếng trời để lấy ánh sáng và đón gió. Nhà vệ sinh được đặt ở cuối của không gian tầng.
Sau không gian nhà bếp là một lối đi nhỏ được trải sỏi trắng hoặc những viên đá đổi bắt mắt. Ngoài ra những mảng tường được vẽ tranh 3D phủ chống thấm thêm một vài cây hoa hồng leo tạo nên một bữa cơm gia đình sinh động khi từ bàn ăn nhìn ra không gian xinh đẹp này.

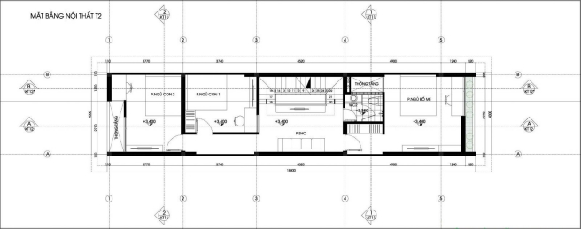
Tầng 2 được bố trí không gian sinh hoạt chung cho cả gia đình với 3 phòng ngủ và 1 nhà vệ sinh chung được trang bị đầy đủ tiện nghi để tiết kiệm diện tích. Vì nhà có thang máy nên việc người lớn tuổi ở tầng 2 sẽ không gây vất vả gì hết. Các không gian phòng đều được bố trí cửa kính lớn thêm 1 bộ rèm cửa màu trung tính để mọi người có một giấc ngủ ngon.

Tầng 3 gồm 2 phòng ngủ và 1 phòng làm việc thêm một phòng vệ sinh. Phòng vệ sinh được đặt ở giữa hai phòng ngủ thuận tiện cho việc đi lại và 1 khoảng hút gió để nhà vệ sinh không bị mùi.

Tầng 4 thiết kế không gian phòng thờ ngay chính giữa. Tiếp theo là 1 phòng cất trữ đồ đạc và cuối cùng là sân thượng vừa giặt giũ, vừa phơi quần áo và thư giãn.
Kiến trúc nội thất cho mẫu nhà 4 tầng 4x17m
Không gian đầu tiên là một nơi thiêng liêng và vô cùng đặc biệt của mỗi gia đình đó chính là phòng thờ cúng gia tiên. Con cháu có thờ cúng đầy đủ thì hậu vận về sau mới tốt đẹp. Phòng thờ là nơi thiêng liêng, trang trọng để con cháu thể hiện lòng thành kính với tổ tiên. Do đó việc thiết kế nội thất phòng thờ cần phải tỉ mỉ, cẩn thận và hợp phong thuỷ.

Bàn thờ được làm bằng gỗ với những hoạ tiết được chạm chổ vô cùng tỉ mỉ. Những đồ được đặt lên bàn thờ như bát hương, mâm bồng, chén, loh hoa đều mang những gam màu của gỗ, màu trắng của chất liệu sứ tạo nên một vẻ đẹp tôn nghiêm cho không gian thiêng liêng này. Hai bên bàn thờ có thể đặt những lọ lục bình bằng sứ với những hoa văn truyền thống hoặc bằng gỗ. Bên trên là một hàng câu đối được sơn son thiết vàng thể hiện lòng thành kính với những người đã khuất.

Tiếp theo là phòng khách để gia đình quây quần bên những bộ phim, những chương trình truyền hình giải trí, nơi để tiếp đón những vị khách của gia đình. Phòng khách với lối kiến trúc tân cổ điển màu trắng sáng chủ đạo. Những đồ trang trí như gương, các bức tranh về thiên nhiên để khi nhìn vào gương căn phòng như được nhân đôi diện tích tạo nên một không gian vô cùng rộng rãi và thoáng đãng.
Ghế sofa và kệ ti vi được xếp theo chiều sâu của căn nhà để tạo một lối đi rộng rãi, liền mạch với những không gian khác. Không nên sắp xếp quá nhiều đồ đạc và rườm rà trong hoạ tiết mà chỉ nên sử dụng những đồ nội thấ đơn giản, kiểu dáng vuông vắn tạo nên vẻ đẹp thanh lịch và sang trong cho ngôi nhà. Những tấm thảm trải sàn, gối tựa, đèn chùm ttrang trí, chậu hoa nhỏ, … tạo nên phong cách đặc trưng cho không gian này.

Nhà bếp nấu nướng kết hợp làm nhà ăn, nơi giữ lửa của gia đình. Nơi cả gia đình thể hiện tình cảm với nhau, đem lại những bữa ăn đầy dinh dưỡng cho cả gia đình. Với chất liệu gỗ cao cấp màu nâu ấm cúng càng khiến căn bếp nhà bạn trở nên hấp dẫn hơn.
Tủ bếp chữ L treo ngay ngắn ở góc giữa của hai mảng tường che đi sự hạn về về chiều cao của bức tường. Bộ bàn ăn đơn giản nhưng vô cùng sang trọng thêm 1 tấm khăn trải bàn và 1 bình hoa khiến căn bếp vừa sang trọng lại tinh tế. Tủ lạnh và đồ dùng bếp đều sử dụng màu đen tạo sự huyền bí pha trộn giữa những màu sắc với nhau.

Phòng ngủ được thiết kế tuỳ vào sở thích của mỗi thành viên trong gia đình nhưung đảm bảo được công nghi và tiện nghi sử dụng. Để tạo điểm nhấn cho không gian nhà bếp là một bức tranh thiên nhiên hoặc những hình dán 3d phù hợp với lứa tuổi của những bạn nhỏ. Ga trải giường cùng chăn ga, gối với những màu ghi, xám, hồng sẽ sạch sẽ hơn màu trắng. Tủ quần áo và bàn làm việc hoặc bàn trang điểm được thiết kế ở trong góc để giường thẳng với cửa sổ.
Trên đây là toàn bộ thiết kế dành cho mẫu nhà 4 tầng 4x17m. Các bạn có thể tham khảo thêm các mẫu thiết kế khác tại sàn Xây dựng số Việt Nam. Xin chân thành cảm ơn bạn đã quan tâm tới bài viết của chúng tôi!
Xem thêm:

































