Mẫu nhà cấp 4 khá quen thuộc với mỗi người dân Việt Nam từ xưa đến nay. Tuy nhiên do thị trường kiến trúc, xây dựng ngày càng phát triển, chính vì vậy mà việc cập nhật những mẫu nhà cấp 4 mới nhất thì không phải ai trong chúng ta cũng có thể nắm bắt được. Bạn đang quan tâm đến mẫu nhà cấp 4 hãy tìm hiểu bài viết của chúng tôi với những mẫu nhà cấp 4 10x20m đẹp nhất hiện năm 2021.
Tổng quan về những ưu điểm của mẫu nhà cấp 4 10x20m
Ngôi nhà có diện tích 10x20m là diện tích tương đối đẹp không quá hẹp nhưng cũng không phải là quá rộng bạn có thể xây dựng tại khu vực nông thôn hoặc là khu thành phố đều rất phù hợp. Về kinh phí xây dựng nhà cấp 4 xếp vào hạng mục những mẫu nhà tiết kiệm kinh phí hơn nhiều so với những ngôi nhà cao tầng. Với mức chi phí phù hợp nên mẫu nhà này phù hợp với điều kiện kinh tế của nhiều hộ gia đình tại Việt Nam, thậm chí là những gia đình có thu nhập trung bình cũng có thể sớm sở hữu mẫu nhà cấp 4 này.

Với ngôi nhà cấp 4 có diện tích 10x40m không chỉ tiết kiệm chi phí mà thời gian thi công cũng rất nhanh chóng. Bởi lẽ đa số những mẫu nhà cấp 4 hiện nay đều thiết kế theo phong cách hiện đại yêu cầu về kiến trúc xây dựng đơn giản, kỹ thuật không quá phức tạp nên thời gian hoàn thành một căn nhà cấp 4 nếu tập chung công nhân xây dựng chỉ trong thời gian ngắn là đã hoàn thành.
Khi chọn mẫu nhà cấp 4 bạn có thể tùy chọn theo ý thích của mình. Theo như diện tích 10x20m thì bạn có thể lựa chọn rất nhiều phong cách xây dựng khác nhau, bạn là người xây dựng ý tưởng và kiến trúc sư người có kinh nghiệm trong xây dựng sẽ giúp bạn hoàn thiện bản vẽ và sớm sở hữu một ngôi nhà theo đúng ước nguyện của bạn. Về mẫu nhà cấp 4 bạn có thể lựa chọn các mẫu nhà khác nhau như: Nhà cấp 4 mái thái, mái lệch, mái bằng, nhà cấp 4 theo phong cách Châu Âu... đều vô cùng đa phù hợp với sở thích của người Việt. Đây chính là ưu điểm lớn của mẫu nhà cấp 4 có diện tích 10x20m so với các mẫu nhà khác hiện nay.
Về nguyên vật liệu xây dựng cho ngôi nhà cấp 4 diện tích 10x20m cũng khá đơn giản. Bởi lẽ mẫu nhà này cũng thiên về mặt an toàn chứ không quá đầu tư tỉ mỉ về những đường nét kĩ thuật điêu luyện giống như những ngôi nhà biệt thự mang phong cách cổ điển hoặc là tân cổ điển.
Ưu điểm lớn nhất của mẫu nhà này mang lại đó chính là đáp ứng đầy đủ về nhu cầu thẩm mĩ cũng như là nhu cầu về mặt công năng sử dụng của ngôi nhà. Ngôi nhà cấp 4 thường mang đến một không gian thoải mái, thoáng đãng. Chính vì vậy mà trong những năm gần đây mẫu nhà này nhận được rất nhiều sự lựa chọn của các chủ đầu tư từ thành thị đến khu vực nông thôn.
Những mẫu nhà cấp 4 10x20m đẹp nhất năm 2020
Mẫu thiết đầu tiên chúng tôi giới thiệu đến quý khách là mẫu nhà cấp 4 diện tích 10x20m có gác lửng. Chúng ta thấy tổng quan của ngôi nhà rất thoáng đãng, rộng rãi. Mẫu nhà này được thiết kế khá đặc biệt với 2 lối cửa ra vào thuận tiện trong sinh hoạt. Hệ mái ngói màu đen sang trọng.

Điều mà chúng ta thấy thích ở mẫu nhà này đó là có hệ thống cửa ở xung quanh ngôi nhà. Có lẽ tất cả các phòng chức năng từ phòng khách, phòng bếp, phòng ngủ đều xuất hiện các ô cửa sổ không chỉ với mục đích thẩm mĩ mà còn giúp cho việc đưa nguồn ánh sáng tự nhiên, gió trời thoáng mát vào căn phòng. Nên mẫu nhà này cũng được rất nhiều chủ đầu tư yêu thích.
Chúng ta thấy có 2 lối cửa vào 2 đầu. Một lối cửa chính là đi thẳng vào phòng khách còn lối cửa phụ là lối ra của phòng bếp. Ngoài ra ở căn nhà cấp 4 này còn được thiết kế 3 phòng ngủ và 1 gác lửng làm phòng thờ không liên quan đến không gian sinh hoạt thể hiện sự tôn kính của con cháu với ông bà tổ tiên.

Mẫu nhà cấp 4 tiếp theo chắc chắn sẽ chinh phục được rất nhiều chủ đầu tư bởi vẻ đẹp hiện đại mà nó mang lại. Phong cách nhà mái thái trong những năm gần đây tại thị trường kiến trúc Việt Nam đã có một vị thế khá vững chãi bởi nó được rất nhiều gia đình lựa chọn.
Rõ ràng chúng ta thấy ngôi nhà được hiện lên với vẻ đẹp ngay từ vẻ ngoài của ngoại thất. Mẫu nhà này cũng được thiết kế với 2 lối cửa ra vào cùng 2 trụ cột hình vuông chắc chắn. Phía chân tường để bảo đảm cho màu sơn đươc bền màu đã được thiết kế với màu xám của những viên gạch nhỏ, xung quanh có những bồn hoa để chúng ta có thể dành chút thời gian để chăm sóc.
Mẫu nhà hiện đại này còn hiện ra với vẻ đẹp của hệ mái thái hình chữ A xếp chồng lên nhau mang đến một cảm giác mới lạ, chắc chắn và hơn hết là khiến cho bên trong căn nhà luôn được hưởng một cảm giác ấm áp vào đông và mát mẻ vào mùa hè. Ngôi nhà cấp 4 này còn ghi điểm ở những bộ cửa chính, cửa sổ đồng điệu về màu sắc và chất liệu gỗ kết hợp với cửa kính.

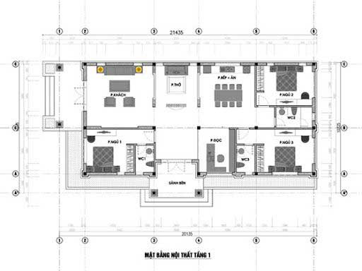
Để hiểu rõ hơn về mẫu nhà cấp 4 có phối cảnh trên chúng ta cùng tìm hiểu về nội thất bên trong của căn nhà diện tích 10x20m có thể bố trí công năng sử dụng như thế nào?. Theo dõi vào bản thiết kế chúng ta thấy từ sảnh chính vào đầu tiên sẽ là phòng khách. Bởi lẽ gần như tất cả các mẫu nhà theo phong cách nào thì phòng khách luôn được thiết kế ở ngay lối vào sảnh để dễ dàng cho việc tiếp đón các vị khách đến nhà.
Phía bên tay phải cạnh với phòng khách được thiết kế với một phòng ngủ, có nhà vệ sinh khép kín để thuận tiện cho sinh hoạt hàng ngày. Đi qua phòng khách là không gian phòng thờ được thiết kế nằm trang trọng chính giữa căn nhà, đối diện với phòng thờ là sảnh phụ của ngôi nhà, nhìn ra ngoài rất thông thoáng.
Đi tiếp về phía bên trong của ngôi nhà bên phía tay trái là phòng bếp và phòng ăn liền kế và một phòng ngủ. Bên phía tay phải là 2 phòng ngủ, nếu gia đình bạn ít thành viên bạn có thể dùng không gian đó làm phòng đọc hoặc là phòng trà để trong những lúc thời gian rảnh rỗi bạn có thể thư thái, quây quần với con cái ở căn phòng này.

Bên cạnh đó nếu thích sự mới lạ, khác biệt với những công trình nhà cấp 4 trước đó thì bạn có thể tìm hiểu thêm về mẫu nhà cấp 4 10x20m mái lệch mà chúng tôi giới thiệu trên đây. Ở khu vực thành phố mẫu nhà mái lệch có lẽ được xuất hiện nhiều. Còn đối với khu vực nông thôn nhà mái lệch vẫn là một phong cách khá mới lạ.
Như vậy khi sở hữu một ngôi nhà mái lệch chẳng phải bạn đã tạo được điểm nhấn, dấu ấn cá nhân của mình bằng một ngôi nhà cấp 4 chi phí không quá cao mà lại mang một vẻ đẹp rất độc đáo. Chỉ cần chiêm ngưỡng mẫu nhà chúng ta đã thấy ngôi nhà đủ sức cuốn hút người nhìn ngay từ vẻ đẹp bề ngoài với phần trước hiên nhà và cửa sổ phòng ngủ được thiết kế giàn hoa ấn tượng. Một không gian sống đẹp, gần gũi với thiên nhiên thì không có lí do gì chúng ta lại bỏ qua một mẫu nhà đầy sự sáng tạo này.

Tiếp đến là một mẫu nhà cấp 4 có diện tích 10x20m được thiết kế theo phong cách Châu Âu. Sự mới lạ, độc đáo của một ngôi nhà theo phong cách phương Tây chắc chắn sẽ mang đến sự hài lòng cho các chủ đầu tư. Ngôi nhà này cũng hướng đến một không gian sống gần gũi với thiên nhiên khi xung quanh của ngôi nhà là những lối nhỏ vào nhà trải đá, xung quanh là những ô cỏ xanh.
Nổi bật giữa một không gian xanh nhẹ nhàng là một phong cách Châu Âu rất thời thượng. Phía chân tường và bậc nhà được ốp bằng gạch màu xám mang nổi bật giữa tổng thể màu trắng của ngôi nhà. Nhưng có lẽ điểm nổi bật nhất của mẫu nhà cấp 4 phong cách Châu Âu này chính là bởi hệ mái trùm bao tỏa khá rộng với màu xám sang trọng. nổi bật. Chắc chắn sẽ mang đến cảm giác cho các thành viên khi sở hữu ngôi nhà này có một sự thoải mái nhất về tinh thần, khỏe khoắn hơn về sức khỏe khi ngôi nhà mang đến sự mát mẻ vào mùa hè và kín đáo ấm cúng vào mùa đông.
Trên đây là những chia sẻ mà chúng tôi muốn gửi gắm đến các chủ đầu tư về mẫu nhà cấp 4 diện tích 10x20m. Hi vọng sẽ giúp quý khách có thể lựa chọn cho mình một mẫu thiết kế đẹp nhất, phù hợp nhất với gia đình mình.


































