Không cầu loè loẹt cầu kì, không quá màu mè kiểu cách, càng không tốn kém chi phí xây dựng chỉ có thể là mẫu nhà cấp 4 đẹp 9x15m. Quả thực không quá khó để đạt được mục tiêu cuộc đời đề ra. Nhất là các đôi bạn trẻ còn đắn đo gì mà không sở hữu ngay ngôi mơ ước trong tầm tay. Những mẫu nhà cấp cấp 4 thời thượng nhất, tiện nghi nhất đã được thể hiện hết trong bài biết dưới đây. Kính mời quý độc giả cùng đón nhận.
Phối cảnh bản vẽ tỉ mỉ chi tiết nhất cho mẫu nhà cấp 3 9x15 hiện nay
Nói đến nhà cấp 4 là ta nghĩ ngay đến kiểu nhà dù diện tích nhỏ hay lớn cũng đều có những cách thiết kế nội thất hoàn hảo nhất đáp ứng đầy đủ mọi yêu cầu sử dụng của gia chủ. Với mẫu nhà cấp 4 9x15 diện tích vừa phải. Lời khuyên của các chuyên gia thiết kế là nên xây dựng và bố trí ngôi nhà theo hướng đơn giản tiện nghi với hai phòng ngủ. Gia chủ nên xây nhà theo kiểu hình hộp vừa gọn diện tích vừa sử dụng được hết không gian. Mời các bạn cùng nhìn vào bản mô phỏng phối cảnh toàn bộ ngôi nhà cấp 4 9x15.

Từ cửa chính nhìn vào là nơi đặt phòng khách, diện tích của phòng này sẽ rộng hơn các phòng khác cũng bởi không gian này được sử dụng nhiều nhất không chỉ cho các thành viên trong gia đình mà còn dành cho cả những vị khách của họ. Phòng khách đặt ở gần cửa chính để thu hút nhiều nhất ánh sáng tự nhiên giúp cho ngôi nhà lúc nào cũng tươi sáng, ấm áo và thoáng mát. Đằng sau phòng khách được bố trí làm phòng bếp với tính năng tiện lợi gọn gàng nhà bếp được lắp một cửa sổ thoát không khí ra bên ngoài để cho không gian không bị ám mùi thức ăn. Đối diện với phòng bếp bên kia chính là phòng ăn, chủ nhà đã khéo tách hai phòng này ra để vừa giúp cho việc ăn uống được thoải mái vừa có thể tận dụng phòng ăn làm nơi học tập làm việc của mọi người.
Cuối của dãy này là vị trú của phòng ngủ. Căn phòng này được đặt gọn gàng ngay ngắn ở cuối nhà ngay cạnh cửa hậu đi ra vườn rất thích hợp để chủ nhà mỗi buổi sáng dậy mở cửa ra hoà mình vào không gian xanh tươi của cỏ cây buổi sớm. Khu bên này đối diện với phòng khách được bố trí một gian thờ trang nghiêm và diện tích thoải mái. Đằng sau là phòng ngủ thứ hai của gia đình có cửa sổ lớn thích hợp làm phòng ngủ của những người có tuổi ưa thoáng đãng. Ở giữa phòng này và phòng ăn được bố trí một phòng tắm và một phòng vệ sinh dùng chung cho cả gia đình. Khu cuối cùng của dãy này là phòng giặt đồ. Cũng là nơi lấy nguồn nước để tưới tiêu ngoài vườn.

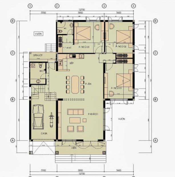
Ngoài ra quý độc giả có thể tham khảo thêm bản vẽ với kích thước chi tiết của mẫu nhà cấp 4 9x15. Đây là kiểu nhà cấp 4 có hai phòng ngủ và một khu gara để xe của gia đình.
Những mẫu thiết kế mẫu nhà cấp 4 9x15 gây ấn tượng mạnh nhất
Dưới đây chúng tôi xin đưa ra những mẫu nhà cấp 4 9x15 đầy ấn tượng và vẻ cuốn hút cho các quý độc giả cùng chiêm ngưỡng. Đây là kiểu nhà cấp 4 này mang phong vị cổ điển với gam màu sơn trầm, kiểu trang trí hình bát quái âm dương để mang lại bình an may mắn đồng thời khắc phục những điều rủi ro. Ngoài ra còn lắp đặt thêm cửa gỗ để tăng thêm vẻ sang trọng cho ngôi nhà

Một mẫu thiết kế nhà cấp 4 mái bằng độc đáo kết hợp với khuôn viên nhà vườn

Điểm nhấn của ngôi nhà là khối đá vàng được ốp xung quanh cửa chính mang lại cho ngôi nhà vẻ kiên cố vững chắc.

Hẳn ai cũng sẽ có thiện cảm rất nhiều dành cho ngôi nhà cấp 4 này. Kiểu mái thái ngói nâu sang trọng kết hợp với những bồn hoa nhỏ lưng chừng ngôi nhà tạo nên sắc thái bình yên trong trẻo. Cửa sổ mang phong dáng của kiểu lâu đài xa hoa lộng lẫy. Ấn tượng nhất chính là bậc thềm hình bán nguyệt lạ mắt. với kiểu thiết kế nhà cấp 4 như thế này chắc hẳn gia chủ nào cũng mong muốn sở hữu được.
Những thiết kế vàng nâng đẳng cấp phòng khách nhà cấp 4 bạn đã biết
Trong mỗi ngôi nhà phòng khách thường là nơi chiếm diện tích rộng hơn cả. Bởi lẽ đây là nơi tổ chức, sinh hoạt chung của tất cả các thành viên trong gia đình cũng như những vị khách ghé thăm nhà. Gian phòng này hay được gia chủ lựa chọn nằm ở vị trí trung tâm của ngôi nhà và thường đặt liền ngay cử ra vào. Còn theo yếu tố phong thuỷ phòng khách phải đặt gần cửa chính nhất vì nó đảm nhận vai trò thu hút vượng khí chính của cả gia đình vì vậy việc bố trí, sắp đặt phòng khách có vai trò rất quan trọng, gia chủ tuyệt đối không thể lơ là. Do hướng cửa và hướng nhà mỗi gia đình không giống nhau nên nên gia chủ cần xem xét kĩ lưỡng hướng của nhà mình để vị trí đẹp nhất, thoáng nhất cho phòng khách.

Quý bạn có thể thiết kế phòng khách nhà mình ở hướng Thiên Y để có được sức khoẻ, thọ trường. Hay đặt theo hướng Diên Niên để bồi đắp tình cảm và các mối quan hệ trong gia đình xã hội. Cũng có thể theo hướng Phục Vị để hoạn lộ quan trường của các thành viên được may mắn hanh thông. Cuối cùng là một hướng tốt nữa là Sinh Khí phòng khách bố trí ở hướng này sẽ giúp gia chủ nhanh chóng phát tài. Tiếp theo việc lựa chọn ánh sáng cho phongd khách cũng rất quan trọng. Do nằm ở vị trí đắc địa nhất ngôi nhà nên phòng khách lúc nào cũng phải tràn ngập ánh sáng, cả ánh sáng tự nhiên lẫn ánh sáng đèn điện.
Theo quan niệm xưa truyền lại căn phòng này có lượng sáng tốt sẽ đi sự an lành thịnh vượng cho khắp ngôi nhà. Nhất là đối với nhà cấp 4 diện tích phải hạn chế càng cần giữ cho phòng khách ánh sáng tốt nhất, hài hoà nhất để mở rộng thêm tối đa không gian nơi này. Tiếp theo để tăng thêm tính thẩm mĩ cho “ bộ mặt” của ngôi nhà quý gia chủ lựa chọn màu sắc cho nội thất và cách bài trí sắp xếp đồ dùng trong phòng khách sao cho hợp lí nhất mà vẫn đảm bảo hợp phong thuỷ, hợp tài mệnh của mình. Thông thường màu sắc của phòng khách ảnh hưởng nhiêu bởi tính cách của chủ nhà. Nếu bạn là người trầm tính ưa yên tĩnh thì hay chọn những gam màu trầm cổ điển sang trọng, còn chủ nhà là người nhí nhảnh tươi vui lại hay chọn gam màu sáng hiện đại trẻ trung.
Tuy nhiên dù chọn màu sắc ra sao thì nền nhà cũng phải đảm bảo được bằng phẳng êm ả, cao hơn nền sân. Bạn hãy chú ý đến chọn gạch lát nền đảm bảo chống trơn trượt và chống thấm tốt, nhất là vào mùa hạ mưa nhiều hay mùa xuân ẩm ướt điều này rất quan trọng và cần thiết. Ngoài ra một lưu ý nữa là màu sơn trần nhà nên ưu tiên chọn những gam mà sáng, nhã nhặn tinh tế. Bởi theo quan niệm trần nhà ở trên cao cũng giống như bầu trời, ai cũng muốn ngắm một bầu giời cao xanh dịu nhẹ. Trần nhà bạn cũng vậy. Nhẹ nhàng êm đềm sẽ mang đến nhiều niềm vui mới.

Tiếp theo là những tiện nghi được bày trí trong phòng khách. Cái này tuỳ thuộc vào kinh tế của mỗi gia đình song quý gia chủ nên quan tâm tới độ bền, đẹp và tiện ích của những vật dụng này. Bởi phòng khách là nơi có nhiều người qua lại nhất, cũng là chỗ để gia đình bày biện nhiều nhất đồ dùng. Với không gian như nhà cấp 4 chủ nhà cần ưu tiên chọn những thiết kế đơn giản hiện đại, gọn gàng để không gian phòng khách được mở rộng và năng động hơn. Trong phòng khách cũng không nên bày trí quá nhiều tránh sự cồng kềnh đồ sộ dẫn đến diệm tích bị thu hẹp và vướng bận.
Đối với trang trí trong phòng khách cấp 4 nên có một cây xanh nhỏ cũng là cây phong thủ thu hút tài lộc như cây kim tiền, kim ngân, cây phát tài, ... Nếu gia chủ thích treo tranh ảnh thì nên lựa chọn những bức tranh nền nã tinh tế như phong cảnh làng quê, hay những bức tranh biểu tượng cho sự đi lên phát tài phát lộc của gia đình như “tùng nghênh khách”, “ thuận buồn xuôi gió” , tránh những hoạ tiết hung dữ sắc bén. Đó là một số những chia sẻ quan trọng mà gia chut cần chú ý để đặt và trang trí phòng khách của mình sao cho đẹo nhất và tiện ích nhất. Ngoài ra dù là phòng khách hay bất cứ phòng nào trong ngôi nhà quý gia chủ hãy luôn để không gian được sáng sủa, sạch sẽ và thoáng đãng.
Trên đây là những chia sẻ thực tế nhất của chúng tôi về mẫu nhà cấp 4 9x15. Tuy đơn giản, gọn nhẹ nhưng như quý độc giả đã thấy đó là công trình nhà ở tinh tế, thẩm mĩ và được xây dựng nhiều nhất. Hãy là người lựa chọn thông thái cho mình và gia đình một mái ấm bền vững.

































