Bạn đang tìm kiếm những thiết kế mới cho tổ ấm của mình? Bạn mong muốn ngôi nhà hạnh phúc sớm được hoàn thành mà chi phí lại rất phải chăng? Hãy đến với chúng tôi, đến với những ngôi nhà cấp 4 và tham khảo những mẫu nhà cấp 4 8x20 hiện đại, kinh tế nhất hiện nay. Xin mời quý độc giả cùng đi tìm hiểu chi tiết mẫu nhà tại tại bài viết dưới đây.
Sắp xếp bố cục bên trong nhà cấp 4 thẩm mĩ và tiện ích nhất
Ngôi nhà của bạn dù diện tích rộng hay hẹp nếu biết cách bố trí và tổ chức hợp lí, khoa học thì sẽ tận dụng được tối đa nhất công năng sử dụng, tránh được sự lãng phí diện tích. Cũng bởi rất khó để thay đổi vị trí các phòng nên ngay từ khi bắt tay vào xây nhà quý gia chủ hãy phân chia mặt bằng và đưa ra các dự đình cần thiết để trong suốt quá trình xây dựng dần hoàn thiện hơn. Sau đây chúng tôi xin đưa ra những cách bày trí tiện nghi nhất cho nhà cấp 4 mà bạn đọc có thể tham khảo để áp dụng cho ngôi nhà của mình. Trước tiên chúng ta phải xác định được diện tích sử dụng thực tế của ngôi nhà, đây là điều quan trọng nhất để việc bố trí các phòng được hợp lí.

Nếu nhà bạn có diện tích rộng thì thiết kế được làm nhiều phòng, các phòng có thể rộng rãi hơn và sự phân chia tách biệt hẳn. Còn đối với ngôi nhà có diện tích nhỏ, thì số lượng phòng phải hạn chế đi, diện tích cách phòng thu lại. Vì thế cho nên chủ nhà cần tính toán thật hợp lí diện tích thực của ngôi nhà để phân bố cụ thể từng phòng một. Tiếp theo trước khi xây nhà gia chủ cần xem xét thật lĩ lưỡng hướng xây nhà và ngày nhập trạch sao cho phù hợp nhất với tuổi và mệnh của chủ nhà để mang lại tài lộc, may mắn tránh gặp rủi ro vận hạn. Đây là yếu tố phong thuỷ hết sức quan trọng, rất cần thiết và tuyệt đối không thể xem nhẹ được.
Tiếp theo việc bố trí không gian trong nhà cũng cần có con mắt phong thuỷ để mọi việc sau này diễn ra được suôn sẻ nhất. Ví dụ màu sắc trang trí từ màu sơn, màu gạch nền đến các đồ dùng nội thất nên sử dụng hợp với tuổi của gia chủ. Hướng cửa cũng rất quan trong. Cửa chính không được đối diện cửa nhà vệ sinh. phòng bếp tránh tránh giáp nhà vệ sinh. Phòng ngủ không nên đặt gương to vì như thế sẽ làm bạn mệt mỏi và yếu đuối. Nhất là gian thờ, nơi tôn nghiêm nhất trong gia đình phải đặt ở vị trí trang trọng nhất. Bên cạnh đó quý gia chủ cần xác định được mục đích sử dụng của moiix thành viên để cân nhắc bố trí phòng hợp lí. Điều này vừa thể hiện sự tôn trọng lẫn nhau trong gia đình, vừa đáp ứng tốt nhất nhu cầu của mỗi người.
Giả sử gia đình bạn có ba thế hệ thì nên đặt từ 3 phòng ngủ, một phòng thờ, nhà bếp và phòng khách có thể nhỏ hơn một chút. Nếu gia đình có hai thế hệ thì chỉ cần từ hai phòng phủ và có thể thêm khu vực sân chơi. Nói chung điều này rất cần thiết đòi hỏi gia chủ phải nắm bắt cẩn thận. Tiếp đến là việc bố trí các căn phòng sao cho phù hợp nhất. Trong trường hợp này chủ nhà cần phải tính toán cẩn thận xem mỗi phòng cần bao nhiêu m2, cùng là phòng ngủ nhưng các phòng chia diện tích không giống nhau. Và bố trí làm sao để khi lên nội thất được nổi bật và trang hoàng nhất và lắp đặt được dễ dàng.
Quý bạn cũng cần lưu ý rằng phòng khách nên ưu tiên đặt ở vị trí trung tâm của ngôi nhà, đặt ngay cạnh cửa ra vào. Thiết kế phòng khách và bếp ăn với diện tích rộng hơn các phòng khác để nơi sinh hoạt chung được thoải mái tiện nghi. Thêm vào đó thứ tự các phòng, phân chia các phòng từ phòng khách đến khu vệ sinh phải đảm bảo việc sử dụng tiện ích nhất. Nhất là đối với gia đình nào có cha mẹ già và con nhỏ.
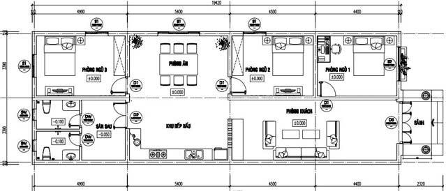
Hình ảnh phối cảnh bản vẽ cụ thể cho kiểu nhà cấp 4 8x20
Trước khi bắt tay vào xây dựng tổ ấm hạnh phúc, trước tiên chủ nhà phải lên một bản vẽ chi tiết cho ngôi nhà của mình. Dưới đây là phối cảnh bản vẽ cụ thể của mẫu nhà cấp 4 8x20.

Với diện tích sử dụng này chúng tôi có thể thiết kế cho bạn nội thất với ba phòng ngủ, một phòng khách cạnh cửa chính ra vào bên cạnh là gian thờ cúng tổ tiên, bếp ăn và phòng ăn ở giữa và một sân chơi nhỏ cho các thành viên. Theo bản vẽ này sẽ thiết kế cho gia đình bạn được rất nhiều phòng đảm bảo cho từ 5 người sinh sống. Điểm đặc biệt của kiểu thiết kế này là tận dụng được tối đa diện tích sử dụng trong toàn bộ căn nhà.

Ở một hình ảnh khác mô phỏng cụ thể nhà cấp 4 8x20, quý độc giả thấy được cách bày trí khoa học, tiện nghi với hai phòng ngủ, một phòng khách liền kề khu bếp ăn và một phòng làm việc nhỏ xinh.
Những mẫu thiết kế nhà cấp 4 8x20 đẹp, hiện đại nhất dành cho gia đình bạn
Nhà cấp 4 là từ xưa đến nay vẫn được xem là công trình nhà ở bền vững nhất với dân tộc Việt Nam ta biết bao thế hệ. Nhà cấp 4 cũng không ngừng được cải đổi cho phù hợp với thời đại và kiến trúc cũng đa dạng hơn, đáp ứng mọi nhu cầu thẩm mĩ của người sử dụng. Sau đây chúng tôi xin gửi tối quý độc giả một số mẫu nhà cấp 4 8x20 sang trọng, hiện đại và độc đáo. Thậy kì vĩ phải không, một ngôi nhà hiên ngang giữa không gian trời xanh mây trắng.

Mái nhà thái kiên cố với những viên ngói đỏ cam xếp đều thẳng tắp cùng màu với cánh cửa nhôm kính làm tăng thêm độ sang trọng và sáng sủa cho ngôi nhà. Ngoài ra chủ nhà còn khéo chọn màu sơn lạ mắt cùng các đường viền trắng tạo nên một thiết kế hoàn toàn bắt mắt trẻ trung. Mới nhìn vào kiến trúc này bất cứ ai cũng cảm thấy thoải mái ở trong lòng, đây chính là vẻ đẹp của nghệ thuật chân chính, là sự cuốn hút k thể chối từ. Nếu bạn để ý sẽ thấy một ống khói nhỏ trên đỉnh mái giống như kiến trúc nhà cấp 4 kiểu phương Tây vừa gần giũi lại vừa hiện đại. Không có một nhược điểm nào cho ngôi nhà cấp 4 8x12 này cả. Như bạn đã nhìn thấy một ngôi nhà cấp 4 sừng sững trên khuôn viên rộng lớn của gia đình.

Với kiểu thiết kế mái ngói phân tầng cùng các cột chống sét làm cho ngôi nhà càng cao ráo và bề thế. Đối với kiểu mái này chi phí cũng cao hơn so với những kiểu mái khác nhưng bù lại vẻ đẹp và sự bền chắc của nó mang lại tuyệt đối làm hài lòng mọi chủ nhà. Với diện tích đất sử dụng lớn như này, ở trung tâm có thêm ngôi nhà khang trang quả thực là mong ước có biết bao con người. Không gian thoáng đãng, cây cối xanh tươi càng góp phần giúp cho ngôi nhà thân yêu của bạn thật đáng sống và đáng trân trọng. Điểm đặc biệt của ngôi nhà này là những phiến đá hoa cương được ốp vòng quanh chân nhà càng tăng thêm sự sang trọng vốn có.
Tiếp theo là hình ảnh ngôi nhà có tường sơn trắng với mái ngói đỏ tươi. Đây là kiểu mái thái phổ biến trong kiến trúc của ta không chỉ cho nhà cấp 4 mà còn cho các kiểu nhà cao tầng, nhà biệt thự khác.

Nhìn tổng quan bên ngoài ngôi nhà vững chãi và kiên cố kết hợp với những cánh cửa nhôm xingfa cao cấp càng khiến ngôi nhà trở nên khoẻ khoắn. Hai cột trụ được đặt ở thề nhà bậc cửa không hề thô kệch mà ngược lại tạo thêm sự trẻ trung cho ngoại thất. Đã vậy gia chủ còn khéo léo lựa chọn màu gạch lát cho nền sân trầm hơn màu nhà khiến ngôi nhà cứ vậy mà trở thành trung tâm của cả khuôn viên. Tiếp nữa là hình ảnh ngôi nhà cấp 4 mái thái màu nâu lạ mắt

Với thiết kế dọc tiết kiệm diện tích đất sử dụng nhưng không làm mất đi dáng vẻ sang trọng của ngôi nhà được đánh giá là một thiết kế rất thông minh cho nhà cấp 4 tring thời đại “đất trật người đông” như thế này. Mặt tiền của ngôi nhà được thiết kế với mái vòm cổ kính cùng hai cây trụ kiên cố mang dáng vẻ những toàn lâu đài của Ý. Nhưng điểm nhấn của ngôi nhà này nằm ở kiểu mái thái dốc hình chữ A rất bắt mắt và độc đáo. Toàn cảnh ngôi nhà này là thiết kế mới nhất, hiện đại nhất của kiểu nhà cấp 4 hiện nay.
Như vậy với mong muốn làm hài lòng quý độc giả chúng tôi đã nghiên cứu, tìm hiểu và mang đến cho các bạn những mẫu nhà cấp 4 hiện đại, sang trọng nhất nhưng vẫn mang cảm hứng quê nhà Việt Nam. Tuef nững chia sẻ trên hi vọng quý bạn đọc sẽ có thêm những thông tin hữu ích về nhà cấp 4 trong thời đại mới.


































