Mẫu nhà cấp 4 7x20 được xem là mẫu nhà có không gian rộng rãi, đáp ứng đầy đủ nhu cầu của gia chủ hiện đại. Đây là một diện tích nhà được đánh giá khá lớn đòi hỏi gia chủ, kiến trúc sư phải kết hợp “ăn ý” để có sắp xếp không gian hợp lý với chi phí tiết kiệm. Bài viết dưới đây đưa ra phương án thiết kế để gia chủ tham khảo để lựa chọn bản thiết kế ưng ý nhất cho mẫu nhà tương lai của mình.
Mẫu nhà cấp 4 7x20 mái Thái cực ấn tượng
Mái Thái ngày nay trở nên phổ biến trong thiết kế nhà tại Việt Nam từ mẫu nhà cấp 4, nhà 2 tầng, 3 tầng,…. Đặc điểm kiến mái Thái trở nên phổ biến và được lựa chọn nhiều từ gia chủ bởi kiến trúc mái với độ dốc lớn nên khi trời mưa thì nước mưa sẽ theo độ dốc mà không gây ứ đọng trên mái. Để lâu dần nước mưa sẽ ngấm dần xuống trần, gây ẩm mốc. Thậm chí khi mưa lớn có thể xảy ra tình trạng dột nước bên trong nhà, gây hư hại, ảnh hưởng đến sức khoẻ của chính gia chủ đang sinh sống.
Xuất phát từ đất nước Thái Lan có nền nhiệt cũng như ánh nắng gắt vào thời điểm ban ngày, nên mái Thái sử dụng như một phần chống nắng hiệu quả, mang đến nền nhiệt độ ổn định, khá mát mẻ. Nhờ vào độ dốc lớn này giúp cho việc lưu thông không khí trong nhà tốt, theo quan niệm dân gian Việt Nam, phần mái này giúp gia chủ có vượng khí tốt.
Khi áp dụng kiến trúc mái này cho mẫu nhà cấp 4 7x20 sẽ có phối cảnh mặt tiền như sau:

Mái Thái được kết hợp với kiến trúc tân cổ điển cho mẫu nhà cấp 4 7x20 vừa sang trọng, cổ điển lại làm nổi bật kiến trúc đồ sộ của tổng thể kiến trúc.
Nhìn vào phần mặt tiền của ngôi nhà này gây ấn tượng mạnh trước hết hệ thống bậc tam cấp của ngôi nhà với hai bên thành được ốp đá trắng vô cùng tinh tế, sang trọng. Phần bậc thang được ốp bề mặt đá đen nổi ở giữa hai viền trắng. Qua phần bậc tam cấp là hệ thống cột trụ kết hợp mái vòm cực kỳ tinh xảo, quyến rũ người nhìn. Phần chân cột sử dụng khối hộp vuông ốp đá nhấn mạnh vào vẻ đẹp mạnh mẽ, phần thân lại cột trụ tròn nữ tính. Tiếp đến là phần cửa kính khung gỗ có vòm bên trên. Từ bên ngoài nhìn qua khung cửa kính ấy ta thấy được ánh sáng đèn vàng bên trong hắt ra lấp lánh, sang trọng. Phần cửa sổ của ngôi nhà được làm vòm bên trên với viền khung nổi bật.
Bạn có để ý rằng mẫu nhà cấp 4 7x20 này cao hơn so với mẫu nhà tương tự hay không? Chính xác là cao hơn bởi kiến trúc sư lựa chọn tôn móng cao hơn. Bên ngoài được ốp đá xung quanh để bảo vệ phần chân nhà trước tác động của thời tiết. Cây xanh được bố trí xung quanh ngôi nhà để tạo không gian xanh mát cho toàn bộ ngôi nhà.

Mẫu nhà cấp 4 7x20 mái Thái sử dụng kiến trúc chữ L cực kỳ phổ biến tại khu vực nông thôn Việt Nam hiện nay hoặc sử dụng cho ngôi nhà xây dựng theo hướng biệt thự hiện nay.
Tiếp tục sử dụng kiến trúc tân cổ điển cho ngôi nhà với đặc điểm nổi bật như hệ thống cột trụ kết hợp với mái vòm đặc trưng. Phần cột trụ của ngôi nhà này sử dụng nguyên khối vuông vức từ chân lên đến phần thân. Phần chân được ốp đá granit hoa cương tiêu biểu cho sự sang trọng, quý phái. Phân thân sử dụng được sọc theo chiều dài của thân nhẹ nhàng nhưng đầy sự cuốn hút. Mái vòm với điểm nhấn chính giữa khi sử dụng ốp đá nhám. Đặc biệt ở khu vực sảnh chỉnh dẫn vào bên trong ngôi nhà có sử dụng đèn pha lê bên trên tạo được vẻ cổ điển với ánh sáng lấp lánh. Ngoài phần cửa chính mẫu nhà cấp 4 7x20 này còn sử dụng hệ thống cửa phụ với hai cánh bên phải. Cửa phụ này phù hợp để gia chủ để phương tiện cá nhân như xe máy vào bên trong nhà nhờ bậc trượt.

Phía bên trong mẫu nhà cấp 4 7x20 mái Thái sẽ có bố trí như sau. Với mặt tiền lên đến 7m, kiến trúc sư tiến hành chia đôi mặt tiền, bố trí không gian phòng song song thuận tiện việc di dây, hệ thống điện nước, điều hoà không khí cũng như thuận tiện di chuyển.
Bắt đầu từ phía trước của ngôi nhà với một bên là sân trước và một bên là tiểu cảnh cây xanh với diện tích nhỏ để xe máy của gia đình. Từ phần sân trước là hệ thống cửa bốn cánh rồi đến không gian phòng khách tương đối lớn để gia chủ tiếp đón vị khách đến chơi trong một không gian thoáng rộng. Tiếp nối là khu vực bếp cùng với bàn ăn. Từ bếp có lối ra sân sau và 2 nhà vệ sinh được đặt cuối nhà.
Phần còn lại của ngôi nhà sẽ bắt đầu không gian ngủ với 2 phòng song song với phòng khách. Tiếp đến là phòng sinh hoạt chung của cả gia đình, hoặc gia chủ có thể sử dụng thành phòng làm việc, phòng đọc sách,… tuỳ vào nhu cầu cũng như sở thích của gia chủ. Cuối cùng là phòng ngủ thứ 3 của mẫu nhà cấp 4 7x20.

Phương án bố trí mặt bằng mẫu nhà cấp 4 7x20 thứ hai như sau: Kiến truc sư để lại một diện tích nhỏ phía trước nhà. Tiếp đến là cửa 1 cánh nhỏ gọn tiến vào không gian phòng khách. Tại mẫu nhà này phòng khách nối thông với khu vực bàn ăn cùng khu vực bếp. Đặt cuối nhà cùng với cửa thông ra khu vực phơi đồ của cả gia đình.
Tương tự phương án bên trên, mặt tiền chia đôi, một bên như bên trên và bên con lại sẽ 3 phòng ngủ nối liền với nhau, trong đó có 1 phòng ngủ chứa nhà vệ sinh bên trong để đảm bảo sự riêng tư cho thành viên sử dụng. 1 nhà vệ sinh đặt giữa phòng ngủ 1 và phòng ngủ 2 để thuận tiện cho gia chủ sử dụng.
Với việc bố trí đến 3 phòng ngủ ở 2 phương án trên như vậy sẽ phù hợp với nhu cầu sinh hoạt của gia đình từ 4 đến 6 người hiện nay.
Mẫu nhà cấp 4 7x20 có gara oto tiện nghi

Mẫu nhà cấp 4 7x20 có gara đầu tiền được giới thiệu đến gia chủ tương lại là mẫu gara nằm ngoài khu vực sinh hoạt. Gara nằm ngoài tức là sẽ không được che kín bởi 4 mặt tường giống với hình mẫu bên trên. Với thiết kế này gara oto sẽ không gây bí bách, không gây ám mùi vào khu vực sinh hoạt của cả gia đình.
Mẫu nhà này sử dụng kiến trúc hiện đại kết hợp với phần mái chữ A giúp cho tổng thể thiết kế trông nhỏ gọn và phù hợp xây dựng tại khực thành phố hiện nay. Điểm nhấn ở mặt tiền là phần cửa 2 cánh trắng với hai bên là cửa kính để lấy sáng vào ban ngày. Trước mặt tiền là cây xanh chạy dọc theo tạo không gian xanh mát, thiên nhiên gần gũi.

Tương tự với mẫu nhà cấp 4 7x20 có gara ở ngoài thì mẫu nhà này mang đến sự sang trọng cổ điển khi lựa chọn phong cách kiến trúc cổ điển kết hợp mái Thái giật cấp ấn tượng.
Mẫu nhà này được bao bọc bên ngoài bởi hệ thống cổng rào vô cùng chắc chắn. Nét hiện đại được thể hiện rõ khi tường rào hay cổng là thanh sắt sọc, không sử dụng bất cứ hoạ tiết nào. Tiếp đến là phần cửa khung nhôm kính chắc chắn.
Nét cổ điển vẫn thể hiện qua hệ thống cột trụ trước hiên nhà, phần mái vòm đi liên với cột trụ, hình bán nguyệt ở cửa chính và kiến trúc giả tầng áp mai điển hình.

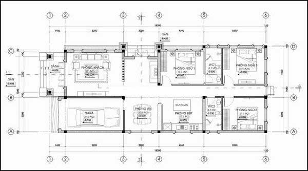
Đừng bỏ qua mẫu nhà cấp 4 7x20 có gara bên trong nhà. Với phần gara này được bố trí trong nhà, song song với phòng khách. Để phân cách hai không gian này với nhau kiến trúc sư thường sử dụng tủ gỗ trang trí với khoảng rỗng để vừa thông thoáng khi lại vừa làm nơi đặt đồ trang trí.
Lối vào gara oto thường làm bậc thềm thoải như hình mẫu để tiện việc tiến lùi xe vào trong nhà. Gia chủ có thể ốp đá hoặc để nguyên lớp xi.

Mặt bằng thiết kế cho mẫu nhà cấp 4 7x20 này như sau:
Mặt tiền tiếp tục chia thành 2 bên bằng nhau. Một bên là sảnh chỉnh dẫn là phòng khách. Tiếp nối là không gian đặt bàn thờ có cửa sổ bên cạnh. Tiếp đến là 2 phòng ngủ trong đó có 1 phòng ngủ có nhà vệ sinh bên trong thuận tiện.
Bên còn lại của mẫu nhà gara oto. Tiếp đến theo thứ tự là phòng ăn, phòng bếp, nhà vệ sinh và phòng ngủ thứ hai.
Với cách bố trí này, mẫu nhà hoàn toàn đáp ứng được nhu cầu sinh hoạt của gia đình từ 4 đến 6 thành viên sinh sống dưới một mái nhà.
Trên đây phương án thiết kế để gia chủ tương lai tham khảo cho ngôi nhà tương lai của mình.


































