Mẫu nhà cấp 4 xưa nay đã trở thành một mẫu nhà quen thuộc đối với người dân Việt Nam. Cho đến ngày nay mẫu nhà cấp 4 đã thay đổi hoàn toàn về diện mạo để đáp ứng nhu cầu ngày càng cao về thẩm mĩ của người dân. Bạn đang muốn tìm hiểu một mẫu nhà cấp 4 cho lô đất xây dựng 6x15m của gia đình mình. Bài viết của chúng tôi sẽ giúp bạn có được những mẫu nhà cấp 4 6x15 đẹp gọn gàng thanh thoát nhất năm 2021.
Vì sao mẫu nhà cấp 4 lại được ưa chuộng đến vậy?
Mẫu nhà cấp 4 từ xưa cho đến ngày nay mặc dù kinh tế phát triển, nhiều gia đình cũng có đủ khả năng để xây dựng một ngôi nhà cao tầng nhưng vẫn lựa chọn mẫu nhà cấp 4, tuy nhiên nhà cấp 4 hiện nay thì đã được đổi mới không gian sống từ hình thức bề ngoài lẫn lối thiết kế ở bên trong. Chúng ta cùng đi tìm hiểu rõ những lí do mà mẫu nhà này đến ngày nay vẫn rất được ưa chuộng.

Nhà cấp 4 có độ bền rất cao. Với phần tường bao che hoặc tường ngăn được làm bằng gạch chắc chắn. Và phần mái của ngôi nhà thường lựa chọn ngói, tấm lợp tôn, bằng vật liệu xi măng tổng hợp... Lựa chọn mẫu nhà cấp 4 còn bởi chi phí xây dựng thấp, thời gian thi công nhanh chóng ...
Nhà cấp 4 còn được coi là mẫu nhà có đặc điểm rất phù hợp với khia hậu nhiệt đới gió mùa của Việt Nam. Đặc biệt, phong cách đặc trưng của nhà cấp 4 còn thích hợp với thị hiếu thẩm mĩ của người Việt. Không quá chú trọng vào những đường nét hoa văn sắc sảo mà yêu thích sự nhẹ nhàng, thanh thoát, hiện đại
Mẫu nhà cấp 4 còn phù hợp với nhiều kích thước, diện tích của lô đất dù hẹp hay rộng. Cụ thể một ngôi nhà có diện tích cũng tương đối hẹp là 6x15 bạn cũng có thể hoàn toàn sở hữu một ngôi nhà cấp 4 rất đẹp, đáp ứng đầy đủ công năng sử dụng. Thường thì những mẫu nhà 4 cấp rộng thì được thiết kế 4 – 5 phòng ngủ, hẹp hơn thì có thể là 2 – 3 phòng ngủ.

Các mẫu nhà cấp 4 rất đa dạng về phong cách. Chúng ta có thể bắt gặp các mẫu thiết kế phổ biến hiện nay như: mái bằng, mái thái, mái lệch, nhà vườn cấp 4, nhà cấp 4 hiện đại có gác lửng... Các phong cách thiết kế này kết hợp với màu mái ngói đa dạng về màu sắc mang đến những hiệu ứng thẩm mỹ rất cao, mang đến sự tinh tế, tính thời đại và cả tính chuyên sâu trong thiết kế.
Một trong những yếu tố đóng vai trò quyết định đối với kinh phí đầu tư đó là tiến độ thời gian thi công hoàn thiện. Nếu ngôi nhà cầu kỳ đòi hỏi thi công kỹ thuật tinh sảo, điêu luyện thì thời gian thi công hoàn thiện càng lâu, phát sinh nhiều yếu tố ngoài mong muốn còn với một mẫu nhà cấp 4 với hình khối đơn giản, hiện đại sẽ giúp chủ đầu tư có thể hoàn thiện công trình trong thời gian ngắn hơn từ đó tiết kiệm chi phí xây dựng cho ngôi nhà cấp 4 rất đáng kể.
Ngoài ra mẫu nhà cấp 4 còn đáp ứng cả yếu tố phong thủy được coi là rất quan trọng với người Việt. Dân gian ta có câu rằng “nhà cao cửa rộng” để nhắc đến không gian kiến trúc nhà cấp 4 sẽ đảm bảo mặt tiền luôn thoáng mát dễ chịu. Hệ thống cửa chính lớn, hệ thống cửa sổ rộng ở các phòng chức năng, kết hợp với thiết kế sân vườn mang giúp không gian đón nhận được nhiều ánh sáng tự nhiên vượng khí cực tốt cho ngôi nhà cấp 4. Chính lý do này mà nhiều chủ đầu tư đã lựa chọn xây dựng nhà cấp 4 có để gia đình cùng sinh sống.
Điều mà rất nhiều chủ đầu tư thích ở mẫu nhà cấp 4 đó là việc sắp xếp bố trí nội thất rất đơn giản, dễ dàng. Mẫu nhà này được được thiết kế trên một mặt sàn mọi công năng được bố trí và sắp xếp trên không gian chung của ngôi nhà không phải khó khăn trong việc di chuyển nội thất. Điều này giúp các kiến trúc sư khi bố trí công năng cho ngôi nhà được thuận tiện, dễ dàng. Đặc biệt thích hợp với những gia đình sống chung nhiều thế hệ và là giải pháp quan trọng để gắn kết tình cảm gia đình giữa các thành viên với nhau đây chính là yếu tố quan trọng cần thiết của mỗi gia đình hiện nay.
Những mẫu nhà cấp 4 6x15 hot nhất hiện nay
Mẫu thiết kế đầu tiên của mẫu nhà cấp 4 có diện tích 6x15 được thiết kế theo phong cách nhà cấp 4 mái thái, kiểu dáng chữ L. Bởi ngôi nhà chỉ có bề ngang là 6m nên buộc phải thiết kế theo kiểu dáng chữ L hoặc chữ I. Khám phá không gian bên ngoài và vẻ đẹp bên trong của mẫu nhà này chúng ta thấy hiện lên đó là vẻ đẹp cao ráo, thoáng đãng với hệ mái hình chóp. Như vậy sự thoáng đãng này đã đáp ứng được yêu cầu về mặt phong thủy cho ngôi nhà. Khi phong thủy tốt chắc chắn sẽ mang đến được luồng khí tốt, mang đến tài lộc và vận may đến cho gia chủ.

Điều mà chúng ta dễ nhận thấy ở ngôi nhà này là hướng đến một không gian mở. Ngoài việc lựa chọn hình thức nhà cao ráo thì màu sơn cũng góp phần mang đến sự thông thoáng nhất định, theo đó chúng ta có thể thấy màu sơn chủ đạo cho ngôi nhà này chính là một màu sơn trắng sáng và để hội tụ đầy đủ yếu tố thoáng mát cho ngôi nhà thì ở mẫu nhà này chúng ta thấy xung quanh ngôi nhà được bố trí rất nhiều cửa sổ. Góp phần cho việc đưa ánh sáng tự nhiên tràn ngập khắp căn nhà. Đây là điều cần thiết và bắt buộc phải có trong không gian sống không quá rộng của ngôi nhà chỉ có bề ngang là 6m.
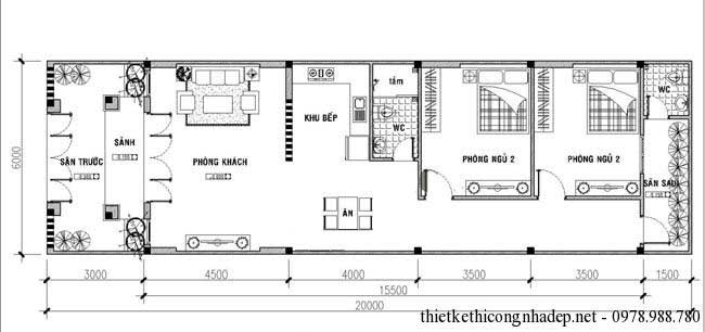
Để các chủ đầu tư có thể rõ ràng hơn với chức năng của một ngôi nhà cấp 4 diện tích 6x15. Tuy nhiên bản vẽ trên đây là ngôi nhà cấp 4 kiểu dáng chữ I làm hết diện tích 15m của chiều dài. Với 6m bề ngang và 15m của chiều dài thì mẫu nhà cấp 4 này được phát huy tối đa công năng sử dụng gồm có:

Một khoảng sân trước sảnh tại đây xung quanh bạn có thể trồng những bồn hoa, cây cảnh và chăm sóc chúng vào những lúc rảnh rỗi. Đi qua phần sân trước chúng ta thấy rõ đó là phần sảnh chính của ngôi nhà mà bắt buộc chúng ta qua không gian này thì mới đến được phòng khách. Rõ ràng trên bản vẽ chúng ta thấy phòng khách của ngôi nhà tuy chỉ có bề ngang là 6m nhưng lại vô cùng rộng rãi vì phòng khách được thiết kế lối thông với phòng thờ. Phía tay phải bạn có thể thiết kế một bàn trà nhỏ xinh với tấm thảm trải nhà bắt mắt, đối diện với phòng khách bạn có thể đặt một ban thờ gọn gàng, là nơi thờ cúng ông bà tổ tiên của chúng ta mà không bị ảnh hưởng bởi bất cứ sinh hoạt nào của gia đình.
Với một vách ngăn gỗ thoáng qua phòng khách là không gian của phòng bếp cũng được nối liền với phòng ăn. Tại khu vực phòng bếp được thiết kế luôn khu vực nhà tắm nhà vệ sinh, đối diện với phòng bếp là phòng ăn với bộ bàn ăn 4 ghế ngồi gọn gàng, ngăn nắp. Đi qua tất cả không gian sinh hoạt chung chúng ta sẽ đến với không gian của sự riêng tư của các thành viên trong gia đình. Tại đây được thiết kế với 2 phòng ngủ cạnh nhau, để bố mẹ cũng tiện trong việc chăm sóc, quan tâm con cái. Còn một không gian nhỏ cuối cùng là phần sân sau bạn có thể dùng nơi đây để phơi đồ thuận tiện.

Mẫu nhà trên đây chúng ta thấy được thiết kế bắt mắt ngay từ khu vực tường rào và cổng cao kín đáo. Hàng rào được lựa chọn phong cách hiện đại với chất liệu là sắt nhưng được phủ lớp ngoài bởi sơn tĩnh điện cao cấp nên độ bền màu rất cao có khả năng chịu được mưa nắng từ thiên nhiên. Phần hàng rào được chọn lựa màu đồng sang trọng, phía cổng sắt được chọn với màu xám trẻ trung hiện đại cùng với mái che chúng ta càng thấy sự sắc nét bởi mặt tiền của ngôi nhà này.
Đã ghi điểm từ không gian mặt tiền, ngôi nhà cũng xuất sắc khi lựa chọn phong cách mái thái, phía trước ngôi nhà là hệ mái chữ A xếp chồng lên nhau. Kiểu dáng chữ L sẽ mang đến cho ngôi nhà gồm có 1 phòng khách đầu tiên, 1 phòng bếp lối thông với phòng ăn, 3 phòng ngủ để gia đình bạn 4 – 5 thành viên vẫn có thể sinh hoạt thoải mái.
Trên đây là những chia sẻ của chúng tôi về mẫu nhà cấp 6x15 nhỏ gọn gàng thanh thoát đẹp nhất năm 2021. Chắc chắn sẽ mang đến sự hài lòng cho nhiều chủ đầu tư đang có nhu cầu tìm kiếm mẫu nhà cấp 4 6x15m sang trọng, hiện đại này.

































