Bên cạnh xu hướng xây dựng nhà phố, nhà ống ở thành thị, dân cư đông đúc thì mẫu nhà cấp 4 diện tích 4×15 đẹp được sự quan tâm của nhiều gia đình trẻ đặc biệt là các khu vực nông thôn hay nhà phố có rất ít diện tích xây dựng. Nhà cấp 4 được lựa chọn vì nhiều ưu điểm vượt trội mà các kiểu nhà khác không có được, nghĩa là việc thi công không quá công phu, giá thành tương đối thấp, có thể thay đổi tùy theo nhiều kiểu dáng, phong cách khác nhau. Các mẫu nhà này thường tọa lạc trên những khu đất nhỏ hoàn toàn phù hợp với những ai thích không gian vừa và kinh phí ít. Ngoài ra, mẫu mã và kiểu dáng kiến trúc của kiểu nhà này luôn đa dạng, hiện đại và tiện ích do đó bạn thoải mái lựa chọn mẫu nhà ưng ý nhất. Trong bài viết dưới đây, Xây Dựng Số sẽ cung cấp thêm một số mẫu nhà cấp 4 diện tích 4x15 đẹp để các bạn có cái nhìn tổng quan và chính xác nhất.
Mẫu nhà cấp 4 diện tích 4×15 mái thái
Ngôi nhà được thiết kế với mặt tiền kiến trúc mượt mà với hệ thống cột trụ chính của công trình kiến trúc. Sở dĩ như vậy vì trước chính điện không cần đánh dấu. Sân trước và cầu thang được thiết kế cao làm nền giúp tăng không gian sống.

Nó giúp tiết kiệm diện tích của ngôi nhà, nhưng vẫn đầy đủ các tính năng cần thiết. Phòng khách ở sảnh chính. Cầu thang được bố trí công phu giúp ngôi nhà không bị che khuất bởi khu vực sinh hoạt. Tiếp đến là phòng bếp với bàn ăn nhỏ. Cuối nhà có nhà vệ sinh và phòng phơi đồ của gia đình.

Tầng lửng của ngôi nhà gồm hai phòng ngủ có không gian giống hệt nhau và đối xứng nhau qua cầu thang. Giữa 2 phòng ngủ có 1 phòng vệ sinh chung giúp sinh hoạt thuận tiện hơn.
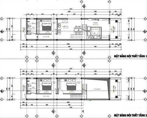
Nhà cấp 4 diện tích 4x15 mái bằng
Những ngôi nhà mái bằng hiện đại luôn được ưa chuộng, đặc biệt là ở thành thị. Phối cảnh của ngôi nhà được phối 2 tông màu - đỏ và xám. Sự kết hợp này sẽ khiến toàn bộ ngôi nhà của bạn trở nên nổi bật.

Cũng như những mẫu nhà cấp 4 thông thường khác, bước vào từ cửa trước đây sẽ trở thành không gian sinh hoạt đầu tiên. Để phân bổ bố cục phòng khách một cách hiệu quả, kệ tivi được đặt quay lưng với cầu thang. Đó là giải pháp tận dụng diện tích đồng thời mang đến sự gọn gàng khi giấu cầu thang dẫn lên gác lửng. Nếu bạn lựa chọn kích thước bàn ghế sofa phòng khách một cách hợp lý và tránh những kích thước lớn thì không gian sẽ càng chật hẹp hơn. Từ phòng khách trong mẫu thiết kế nhà đẹp là khu bếp nấu với bàn ăn, có khu vực nấu nướng hình chữ L phía sau cầu thang. Thiết kế này vừa kín đáo vừa được thiết kế phù hợp với phong thủy nhà. Sân phơi đồ và nhà vệ sinh được đặt ở vị trí cuối cùng để giúp cho hoạt động diễn ra thuận lợi.

Về cơ bản, phần gác lửng được chia thành 2 khu vực chính. Bên ngoài được thiết kế có phòng thờ, bàn làm việc và nhà vệ sinh. Bên trong là phòng 1 phòng ngủ với không gian rất thoải mái. Nhà vệ sinh được bố trí ở giữa, mục đích chính là tránh đặt trong phòng ngủ và nó sẽ nằm ngay phía trên khu vực bếp bên dưới. Theo phong thủy điều này hoàn toàn không tốt
Mẫu nhà cấp diện tích 4x15 mái tôn
Diện tích xây dựng 4x15m, chi phí xây dựng chưa bao gồm tiền sảnh dự kiến khoảng 450 triệu đồng. Có thể nói đây sẽ là một sự lựa chọn tốt dành cho bạn. Nhà cấp 4 có gác lửng sử dụng các gam màu hài hòa, từ mái tôn xanh cho đến sơn tường trắng tinh tế, trang nhã khiến ai nhìn cũng mê mẩn.

Ở tầng trệt của ngôi nhà có phòng khách, bếp, 1 phòng ngủ và nhà vệ sinh. Cầu thang được đặt phía sau phòng khách để tiết kiệm diện tích và tạo sự tinh tế. Cuối nhà có cửa phụ dẫn ra khu phơi đồ phía sau nhà.

Tầng lửng được thiết kế thêm 2 phòng ngủ và 1 phòng vệ sinh ở cuối. Thiết kế này giúp tối ưu hóa diện tích mà vẫn đảm bảo sự tiện nghi.
Mẫu nhà cấp 4 diện tích 4x15 có mặt tiền đẹp.
Mẫu nhà cấp 4 có gác lửng 4 × 15 này có mặt tiền rộng nên hướng sảnh chính rất đặc biệt, cạnh nhà có sân đủ để làm gara. Tông màu nâu kem của gỗ và mái ngói xanh lam tạo nên vẻ đẹp lộng lẫy. Tận dụng lợi thế ngoại thất rộng, ngôi nhà được thiết kế nhiều sách. Những ô cửa sổ này lấy ánh nắng dịu mát và thổi gió vào nhà để làm sáng và mát căn phòng.

Khi bước vào sảnh là phòng khách của ngôi nhà, rẽ sang phải sẽ thấy khu ăn uống. Cầu thang dẫn lên tầng lửng ở giữa hai không gian chung này để thuận tiện hơn trong việc di chuyển. Sau đó là nhà vệ sinh chung và phòng ngủ rộng rãi.

Phòng thờ nằm trên tầng lửng cùng với không gian học tập. Các phòng ngủ cũng trên tầng lửng có diện tích khá rộng. Có thêm một phòng vệ sinh đối diện cầu thang giữa phòng thờ và phòng ngủ.

Mẫu nhà cấp 4 diện tích 4×15 theo phong cách xưa

Đây là mẫu nhà cấp 4 đẹp 4x15 với thiết kế kết hợp giữa phong cách xưa cũ đơn giản với hiện đại ngày nay. Mẫu nhà này cho phép bạn lợp ngói hoặc lợp ngói tùy theo sở thích cũng như chi phí hợp lý. Bạn thậm chí có thể làm cho ngôi nhà của bạn trông đầy màu sắc hơn và bớt đơn điệu hơn bằng cách tạo thêm điểm nhấn cho ngôi nhà của bạn bằng cách thực hiện một thay đổi nhỏ cho thiết kế mặt tiền ngôi nhà của bạn.
Mẫu nhà cấp 4 diện tích 4×15 có 2 phòng ngủ
Mẫu nhà cấp 4 4 × 15 đẹp này thể hiện rõ nét đặc trưng của phong cách nhà vườn Châu Âu. Thiết kế hình khối không cầu kỳ nhưng nhìn rất tinh tế và ấn tượng. Mặt dựng giả đá giả gỗ với kết cấu mái hình chữ A, độ dốc rộng. Tạo hiệu ứng thẩm mỹ cao cho mẫu nhà cấp 4.

Thiết kế ban công gác lửng đơn giản với những thanh sắt tròn. Tuy nhiên, nó được xây dựng để tạo ra một không gian lãng mạn và thoáng mát. Màu của lan được chọn là "Tone Sur Tone" cùng với màu bên ngoài. Thiết kế mái thái bố trí sóng lớn kết hợp với màu sơn của tường và cảnh quan thiên nhiên xung quanh. Mang đến cho bạn một không gian sống thoáng mát, yên bình và hoàn hảo.
Nhà cấp 4 diện tích 4×15 có 3 phòng ngủ

Mẫu nhà đơn giản nhưng rất ấn tượng và xuất sắc. Điểm nổi bật của mẫu nhà cấp 4 là sự hài hòa hài hòa giữa màu sắc và chi tiết. Tường và cột của gian giữa được ốp bằng gạch nghệ thuật. Mang đến một công trình chắc chắn và cứng cáp.
Thiết kế mái độc đáo với màu xanh lam và mái dốc lớn. Giúp ngôi nhà cấp 4 được cân đối, thông thoáng và rộng rãi hơn.
Kiến trúc nhà cấp 4 hiện đại được lắp đặt cửa nhôm xingfa màu vân gỗ kết hợp với cửa lùa hai bên tường. Tăng thêm vẻ đẹp cho công trình của bạn và giúp không gian nội thất của bạn đón nắng và gió dễ dàng.
Mẫu nhà cấp 4 diện tích 4×15 với thiết kế độc đáo

Đây là kiểu nhà với sự kết hợp độc đáo giữa tone màu vàng nhạt kết hợp với tone màu mái hồng làm cho ngôi nhà trở nên thú vị hơn. Mẫu nhà này khiến bao trái tim thổn thức bởi thiết kế độc đáo và nhiều màu sắc. Không quá nhiều diện tích, nhưng thiết kế của ngôi nhà này khiến chúng tôi cảm thấy mình cần một không gian rất lớn để xây dựng. Đặc biệt, đây là một trong những mẫu nhà 2 mặt tiền đẹp. Nếu bạn có thể linh hoạt trồng một vài loại cây để trang trí nhà thì đây chắc chắn sẽ là một ngôi nhà tốt cho bạn.
Trên đây là mẫu nhà 4 × 15 đẹp do Xây Dựng Số tổng hợp. Bạn có thể xem thêm những mẫu thiết kế ấn tượng trên website của chúng tôi. Nếu bạn cần tư vấn chi tiết hơn về thiết kế nhà hãy liên hệ trực tiếp với chúng tôi để được giải đáp những thắc mắc của bạn.






























