Trong suốt thời gian qua, chúng tôi đã phục vụ hàng nghìn khách hàng trên mọi miền đất nước. Ngày hôm nay chúng tôi xin được giới thiệu đến các bạn một thiết kế nhà cấp 4 có 3 phòng ngủ diện tích 8.5×12.5m tại Hưng Yên để mọi người có thể tham khảo.
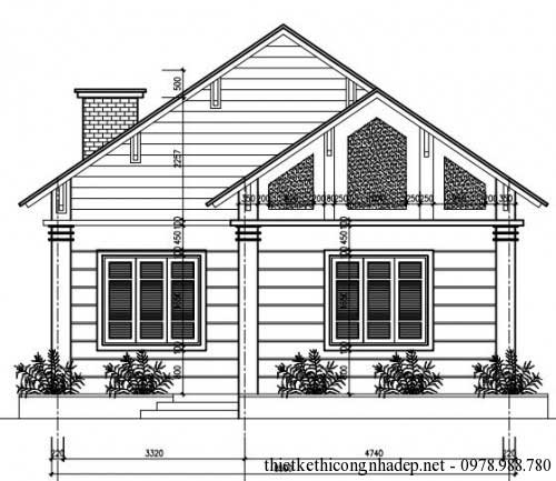
Chủ đầu tư xây dựng căn nhà là anh Hoàng, anh đã trực tiếp với chúng tôi để xây dựng bản thiết kế ngôi nhà. Với diện tích xây dựng là 8.5×12.5 mét, thiết kế nhà cấp 4 này có hướng ra đường là hướng nam tuy nhiên gia chủ có tuổi thuộc Tây tứ trạch nên không thể làm cửa chính ra hướng Nam được, cửa chính được thiết kế vào hướng Đoài (hướng Tây). Điều đó để thấy việc đi xem tuổi để làm hướng nhà là vô cùng quan trọng. Các bạn nên chuẩn bị thật kỹ để tránh kỵ một vài vấn đề theo khoa học và theo tâm linh.

Do đặc thù địa thế ngôi nhà nên chúng tôi đã phải rất khéo léo trong bản thiết kế này. Phần hướng Đông của căn nhà là phần đất xây dựng từ đường họ nên khu vực vệ sinh và nhà bếp được đặt hết tại hướng Tây cách xa nhà thờ họ. Phần sân vườn cũng là hướng tây của lô đất, từ phòng bếp và phòng ăn ra sân vườn được thiết kế thêm 1 cửa phụ để việc đi lại thuận tiện hơn. Trước cửa chính sẽ được trồng giàn hoa hay cây leo để tránh phần nào cái nóng của buổi chiều soi vào cửa chính phòng khách.

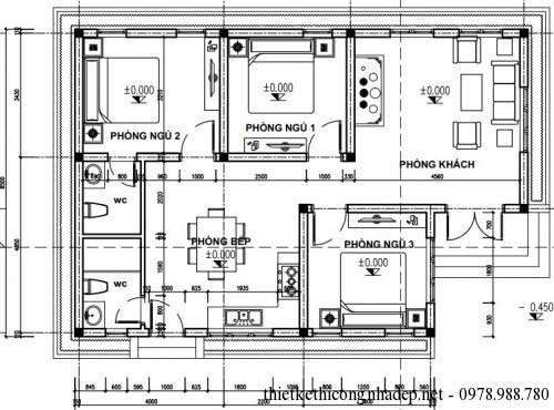
Chúng tôi đã khéo léo thiết kế mẫu nhà đẹp này được bố trí với 3 phòng ngủ, 1 phòng khách, 1 phòng bếp, 2 phòng vệ sinh. Phòng ngủ của ông bà là phòng ngủ số 1 và số 3 còn 1 phòng ngủ dành cho con cái khi đi xa về. Phòng vệ sinh số 2 được làm sát góc ngay cửa phụ ra sân vườn, như vậy thì phòng vệ sinh sẽ kín đáo hơn. Thông thường thì các cụ ở quê không thích nhà vệ sinh trong nhà nên đây cũng là một giải pháp hay.

Mặt tiền hướng Nam
Thiết kế nhà cấp 4 tại Hưng Yên không quá cầu kỳ, chúng tôi đã cố gắng tối giản những chi tiết để đem lại sự thanh thoát cho ngôi nhà. Xung quanh ngôi nhà được gia chủ sắp xếp khá khoa học. Sự kết hợp khéo léo giữa tông ngôi nhà và hệ thống sân vườn tạo nên điểm nhấn riêng. Những hàng cây cảnh xanh ngắt đứng uy nghi bên cạnh ngôi nhà đã cho thấy con mắt thẩm mỹ khá cao của gia chủ.

Mặt tiền nhìn từ hướng tây
Vào thời điểm đầu tháng 11 chúng tôi đã nhận được sự phản hồi của gia chủ về mẫu nhà mới hoàn thiện xong. Mẫu thiết kế nhà cấp 4 tại Hưng Yên này được thi công với thời gian khá lâu do một vài yếu tố nên chúng tôi đã có được hình ảnh của công trình để gửi tới các bạn có thể tham khảo.

Mặt bằng nhà cấp 4
Trong phần thi công thì có sửa đổi một chút về màu sắc của bản vẽ nhưng về cơ bản tông màu của phối cảnh cũng không thay đổi quá nhiều, sơn được sử dụng loại tốt nên nước sơn rất đậm và rõ nét, có thể coi là đẹp hơn phối cảnh. Các bạn có thể tham khảo hình ảnh của mẫu nhà này dưới đây nhé.

Ảnh sau khi hoàn thiện nhà
Khi chúng tôi đến thăm ngôi nhà khi đã hoàn thiện xong, thật sự rất bất ngờ với sự bố trí không gian của gia chủ. Anh Hoàng chủ nhà đã rất vui mừng, phấn khởi vì từ khi xây dựng đến lúc hoàn thành anh đã nhận được rất nhiều lời khen từ bà con lối xóm đến đồng nghiệp của mình. Với kinh phí không quá cao, chỉ vào khoảng 600 triệu anh đã xây dựng được ngôi nhà khá ưng ý cho gia đình nhỏ của mình. Niềm vui của anh Hoàng cũng như niềm vui của hàng nghìn khách hàng khác của chúng tôi. Đó là niềm tự hào để công ty chúng tôi cố gắng hơn nữa.

Ảnh sau khi hoàn thiện nhà
Là đơn vị chuyên thiết kế và thi công nhà ở, thiết kế và thi công nội thất, chúng tôi có những mẫu thiết kế nhà cấp 4 đẹp và độc. Nếu các bạn có nhu cầu tư vấn thiết kế và báo giá thi công nhà ở, báo giá thi công biệt thự và nội thất thì liên hệ chúng tôi ngay nhé!
Nguồn tin: https://thietkethicongnhadep.net/
Tin hot liên quan:
- Thiết kế nội thất nhà cấp 4 mái thái đẹp 11.5x21m
- Mẫu nhà cấp 4 có gác lửng 3 phòng ngủ diện tích 70m2
- Mẫu nhà cấp 4 đẹp 6x23m kinh phí đầu tư 550 triệu


































