Ngày nay, nhu cầu thiết kế và xây dựng nhà 2 tầng ngày càng nhiều hơn. Vì vậy để tiện cho quý khách hàng tham khảo mặt bằng công năng sắp xếp công ty xây dựng kiến trúc WEDO trân trọng giới thiệu đến quý bạn đọc những bản vẽ nhà 2 tầng khoa học để các bạn có thể tham khảo cho ngôi nhà của mình.
Bản vẽ nhà 2 tầng diện tích 100m2
Công trình đầu tiên mà chúng tôi muốn giới thiệu đến các bạn đọc chính là nhà 2 tầng 100m2. Với thiết kế không quá cầu kỳ, rộng rãi, thoáng mát, đây sẽ là mẫu nhà lý tưởng cho mọi người.

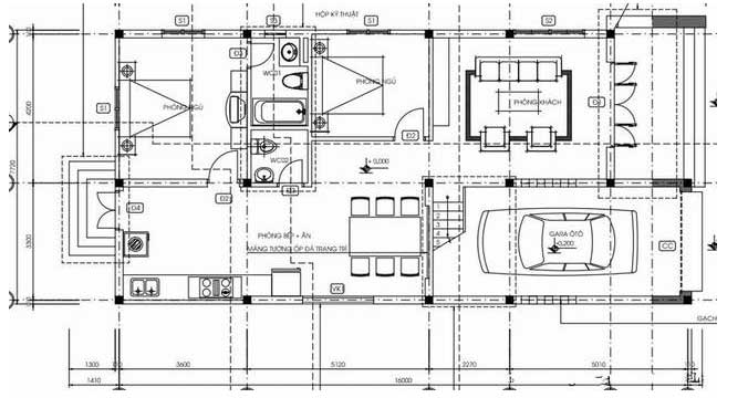
Bản vẽ mặt bằng tầng 1
Chúng tôi đã thiết kế tầng 1 khá phù hợp với địa thế đất đai. Tầng 1 bản vẽ nhà 2 tầng được thiết kế 1 gara ô tô khá to, 1 phòng khách, 1 phòng bếp và 2 phòng ngủ. Như vậy không gian tầng 1 rất rộng, quy tụ tất cả các không gian cần có của một ngôi nhà. Khi có việc cần sinh hoạt chung khá tiện vì các phòng gần nhau và phòng khách rất rộng. Một phòng ngủ được thiết kế có nhà vệ sinh khép kín, một nhà vệ sinh chung được thiết kế đối diện phòng ăn để phục vụ nhu cầu sinh hoạt chung của gia đình.

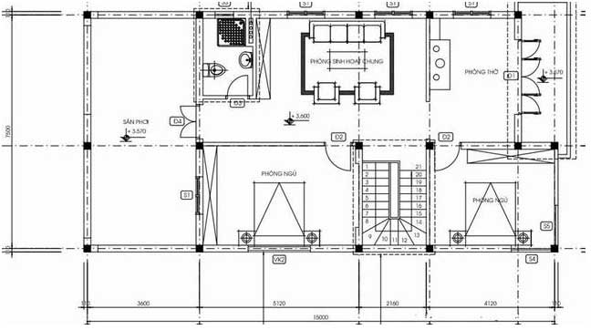
Bản vẽ mặt bằng tầng 2
Do gia đình này khá đông các thành viên nên việc thiết kế và bày trí không gian phòng là vô cùng quan trọng. Làm sao để rộng rãi và diện tích phù hợp cũng là 1 bài toán khó. Tầng 2 mẫu nhà 2 tầng 100m2 được thiết kế 2 phòng ngủ, 1 phòng thờ, 1 phòng sinh hoạt chung và một nhà vệ sinh rộng phục vụ nhu cầu tắm giặt của các thành viên trong gia đình ở tầng 2.
Sinh ra để phục vụ gia đình nhiều thành viên hoặc nhiều thế hệ sinh sống trong một gia đình. Bản vẽ mặt bằng công năng nhà 2 tầng 100m2 này khá thích hợp và là sự lựa chọn hoàn hảo cho chủ nhà.
Bản vẽ nhà 2 tầng diện tích 90m2

Bản vẽ mặt bằng tầng 1
Chúng tôi nhận định đây là một bản vẽ này khá logic và khoa học khi bố trí các phòng ở tầng 1 sao cho phù hợp. Không gian tầng 1 đáp ứng nhu cầu sinh hoạt chung của 1 gia đình bao gồm: 1 phòng khách, 1 phòng bếp, 1 nhà vệ sinh chung và một phòng ngủ tiện nghi dành cho người lớn. Sự sắp xếp phù hợp giúp cho không gian thêm rộng và các thành viên thoải mái khi sinh hoạt trong ngôi nhà của mình.

Bản vẽ mặt bằng tầng 2
Theo yêu cầu của chủ nhà, toàn bộ không gian tầng 2 thiết kế dành riêng cho 2 đứa con của họ. Muốn không gian sử dụng của các con thêm tự do và thoải mái, toàn bộ tầng 2 nhà 2 tầng 90m2 được thiết kế không gian sinh hoạt cho con trai và con gái. Được thiết kế khép kín, mỗi phòng đều có nhà vệ sinh riêng.
Phòng thờ ở bên cạnh và phòng sinh hoạt chung được sắp xếp khoa học. Mẫu nhà 2 tầng 90m2 này được khá nhiều gia đình 4 thành viên lựa chọn cho ngôi nhà của mình. Cũng bởi sự đơn giản trong thiết kế và khéo léo trong cách bố trí phòng của mình.
Bản vẽ nhà 2 tầng diện tích 80m2

Bản vẽ mặt bằng tầng 1
Nếu ai mong muốn có một mẫu nhà được thiết kế theo hướng hiện đại thì đây là bản thiết kế khá phù hợp các bạn có thể tham khảo. Nhà ống 2 tầng với 80m2 bố trí công năng dành cho gia đình bao gồm bố mẹ và 2 con. Không gian tầng 1 vẫn là sự sắp xếp quen thuộc của một ngôi nhà thông thường nhưng chúng tôi đã thiết kế hiện đại hơn.
Đầu tiên là gara oto của gia đình, đi sâu vào trong lần lượt được thiết kế là phòng khách, phòng bếp và phòng ngủ bố mẹ. Các không gian được sắp xếp theo sự ưu tiên kín đáo. Vì vậy nhà vệ sinh sẽ được kết hợp bên trong phòng ngủ luôn.

Bản vẽ mặt bằng tầng 2
Chúng tôi đã thiết kế phòng thờ bản vẽ nhà 2 tầng 80m2 được đặt tại tầng 2 nơi trang nghiêm nhất của ngôi nhà. Với thiết kế cửa hướng ra ban công, tận dụng sự thông thoáng vốn có tạo nên chiều sâu và sự thoải mái cho ngôi nhà. Bên cạnh là phòng ngủ của con, thiết kế liền kề phòng wc chung và phòng giặt.
Ở giữa khoảng thông tầng là không gian chung đọc sách cho cả gia đình. Đối diện phòng sách là 1 phòng ngủ có thiết kế khép kín hiện đại, sau này nếu có thêm thành viên hoặc dùng để cho khách ngủ lại qua đêm cũng là một phương án tốt cho ngôi nhà này.
Bản vẽ nhà 2 tầng 5x18m2

Bản vẽ mặt bằng tầng 1
Chúng tôi thiết kế mẫu nhà này dành riêng cho mặt phố với diện tích hẹp nhưng lại có 3 thế hệ cùng sinh sống nên trong quá trình thiết kế phải thật khéo léo. Phía trước là khu vực để xe cho gia đình, ngay sau đó là không gian phòng khách hiện đại, bếp ăn và góc trong cùng là phòng ngủ của ông bà.
Để có thể tận dụng không gian phòng tối đa, chúng tôi đã thiết kế nhà vệ sinh ra ngoài để các thành viên trong gia đình cùng sử dụng chung, đồng thời để không ảnh hướng đến không gian sống của người già. Đây cũng là một phương án khá hay và là mẫu nhà phù hợp cho những hộ gia đình có nhiều thế hệ.

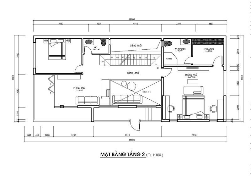
Bản vẽ mặt bằng tầng 2
Hệ thống phòng ngủ được chúng tôi sắp xếp khá khoa học. Phòng ngủ chính tầng 2 bản vẽ nhà 2 tầng 5x18m được thiết kế khép kín với phòng thay đồ và nhà vệ sinh hiện đại. Đối diện là phòng ngủ của con, nhà vệ sinh được thiết kế bên ngoài ngay cạnh cầu thang và đối diện với phòng khách. Như vậy sẽ thuận tiện cho việc đi lại và sinh hoạt chung cho cả gia đình.
Bản vẽ nhà 2 tầng 5x15m2

Bản vẽ mặt bằng tầng 1
Vẫn với không gian thiết kế quen thuộc: phòng bếp, phòng khách và phòng ngủ, tuy nhiên vị trí được sắp xếp gọn gàng dọc theo lối sảnh vào nhà do diện tích đất hạn chế nên việc xếp dọc là phương án hợp lý.
Nhìn chung chúng ta có thể thấy mẫu nhà ống 2 tầng hiện đại này khá đẹp mắt khi thiết kế hệ thống sân vườn trồng tiểu cảnh ở sân trước rất khoa học và tạo nên điểm nhấn để thu hút. Không quá chật nhưng đủ để các thành viên thoải mái sinh hoạt và có không gian riêng.

Bản vẽ mặt bằng tầng 2
Ở tầng 2 chúng tôi thiết kế bao gồm 1 nhà vệ sinh và 2 phòng ngủ khá rộng và có thiết kế hiện đại. Do chỉ cần 2 phòng ngủ nên không gian của 2 phòng rất rộng, hành lang đi lại cũng rộng rãi, tạo không gian cho sinh hoạt chung cho cả gia đình.
Bản vẽ nhà 2 tầng 4x18m

Bản vẽ mặt bằng tầng 1
Có thể thấy mẫu nhà đẹp này tuy có diện tích mặt tiền không lớn, tuy nhiên thiết kế không gian lại khá khoa học. Chúng tôi đã khéo léo để phòng ngủ chính thiết kế phía trong gần ngay sân sau, giúp cho gia chủ có những phút giây thư thái và chan hòa với thiên nhiên. Phòng khách và bếp được tiếp nối lần lượt, ngoài ra việc đan xen một kho nhỏ được thiết kế ngay cạnh cầu thang để tận dụng chứa đồ không sử dụng cũng là một phương án hay.

Bản vẽ mặt bằng tầng 2
Do diện tích không nhiều nên không gian tầng 2 chúng tôi đã thiết kế riêng phòng ngủ và nhà vệ sinh. Như vậy căn phòng được rộng và thoáng hơn rất nhiều. Ngoài ra phòng thờ có hướng ra ban công trước, tiếp đến là phòng ngủ, phòng sinh hoạt chung và phòng ngủ.
Bản vẽ nhà 2 tầng 4x16m

Bản vẽ mặt bằng tầng 1 + 2
Có thể thấy diện tích ngôi nhà này khá nhỏ, chỉ dành cho gia đình có ít các thành viên, chỉ khoảng từ 3 đến 4 người sinh sống trong một gia đình. Tầng 1 chúng tôi thiết kế không gian chung như bếp, khách, nhà vệ sinh. Tầng 2 là không gian sinh hoạt, phòng ngủ của bố mẹ và con cái. Nhìn chung mẫu nhà này chỉ thiết kế đơn giản như vậy. Điều quan trọng là sự hài hòa giữa tất cả các phòng của gia đình.
Lưu ý khi bạn muốn tìm kiếmm một bản vẽ nhà 2 tầng
Qua rất nhiều năm nghiên cứu, tìm hiểu cũng như thiết kế chúng tôi đã có rất nhiều những bài học cho mình và cho khách hàng. Sau đây là những lưu ý để các bạn có thể tham khảo để có trong tay một bản thiết kế phù hợp nhất.
Điều đầu tiên đó là bạn nên có sự cân nhắc cũng như tính toán kỹ càng trước khi lựa chọn bản vẽ thiết kế nhà. Đây là khâu quan trọng nhất quyết định sự thành công khi xây dựng. Phải tùy theo diện tích xây dựng, số thành viên trong gia đình, nhu cầu sinh hoạt mà lựa chọn những mẫu bản vẽ thiết kế khoa học, giúp đáp ứng và tối ưu không gian sử dụng cho ngôi nhà.
Phải tự đưa ra cho mình những con số phù hợp về phòng ngủ cũng như nhà vệ sinh. Tuyệt đối không nên lựa chọn những bản vẽ có số lượng phòng chức năng quá nhiều hoặc quá ít so với nhu cầu sử dụng, sẽ gây ra tình trạng bất cập về sau, thừa phòng hoặc thiếu không gian không cần thiết.
Điều quan trọng nhất đó là các bạn nên nhờ sự trợ giúp cũng như tư vấn của kiến trúc sư để có thể lựa chọn những mẫu bản vẽ nhà 2 tầng hợp lý không chỉ về việc sắp xếp chức năng không gian mà còn cả về chi phí đầu tư nội thất.
Để có thể sở hữu những mẫu nhà 2 tầng đẹp với bản vẽ nhà 2 tầng khoa học, hãy nhấc máy lên và gọi ngay cho chúng tôi. Phương châm làm việc “khách hàng là ông chủ duy nhất” WEDO luôn sẵn lòng làm hài lòng quý khách hàng với chất lượng dịch vụ tốt nhất.
Nguồn tin: https://wedo.vn/


































