Trong những năm gần đây, nhu cầu về những bản thiết vẽ nhà chữ L 2 tầng ngày càng tăng cao. Cũng bởi sự sang trọng, thu hút riêng của nó mà nhiều người mê đắm mẫu nhà này đến vậy. Trong bài viết này chúng tôi xin được giới thiệu đến các bạn một bản vẽ nhà chữ l 2 tầng đẹp 100m2 được kiến trúc sư WEDO thiết kế tại Thạch Thất – Hà Nội đang nhận được sự quan tâm và chú ý của nhiều chủ đầu tư, công trình xây dựng.
*Yêu cầu tư vấn, thiết kế của khách hàng:
- Gia đình của chủ đầu tư là anh Thành hiện đang sinh sống tại Thạch Thất – Hà Nội, anh chủ gia đình sinh năm 1971, cả gia đình có 4 thành viên gồm 2 vợ chồng, 2 con. Tổng diện tích sở hữu là 200m2, hướng chính hướng Đông Nam. Ngôi nhà có vị trí khá thuận lợi khi chỉ cách mặt đường lớn 8m.
- Với mong muốn xây dựng một ngôi nhà to, khang trang và ấn tượng. Sau khi được tư vấn và tìm hiểu gia đình đã rất thích mẫu nhà biệt thự chữ L 2 tầng hợp phong thủy.
- Khi được hỏi về mong muốn một ngôi nhà trong tương lai. Anh đã mạch lạc đưa ra những mong muốn thiết kế cũng khá phù hợp. Từ ngoài nhìn vào tầng 1 sẽ có 1 sảnh khá to, bên trong phòng khách liên thông với bếp. 1 phòng ngủ to rộng ngay cạnh cho vợ chồng anh để tiện sinh hoạt và 1 nhà vệ sinh cuối nhà nhưng phải có sân phơi thông ra sân phía sau để tạo độ thoáng.
- Thiết kế tầng 2 sẽ bao gồm 2 phòng ngủ cho 2 con không cần quá rộng nhưng phải thoáng và mát mẻ, một phòng thờ hướng chính ra mặt tiền ngôi nhà cho thông thoáng. Xây nhà 2 tầng tôi mong muốn thiết kế hiện đại, kiểu mái thái, ngói sóng to màu nâu.
- Đó là toàn bộ những hình dung về một ngôi nhà trong tương lai của anh chủ nhà. Chúng tôi đã tiếp nhận mong muốn và sẽ thiết kế sao cho phù hợp với gia đình anh.
Phương án thiết kế bản vẽ nhà chữ l 2 tầng 100m2
Khi nhận được thư gửi khá chi tiết của anh Thành qua mail của công ty, chúng tôi đã nhanh chóng điện liên lạc để 2 bên chốt lại 1 số thông tin quan trọng sau đó sẽ có một buổi hẹn để chúng tôi tư vấn cho gia đình anh.
Công ty chúng tôi đã cử 1 kiến trúc sư, 1 cán bộ kỹ thuật đi khảo sát thực tế và tư vấn cho khách hàng. Buổi hẹn sẽ khảo sát địa hình và cảnh quan để sau đó lên ý tưởng bản vẽ cho ngôi nhà 2 tầng này. Ngôi nhà vợ chồng anh Thành đang ở là 1 ngôi nhà cấp 4 được xây dựng khá lâu và đang có những dấu hiệu xuống cấp do chưa từng được tu sửa. Vì vậy, gia đình anh cũng mong có thể gấp rút thi công trong thời gian sớm nhất.

Chúng tôi đã nhanh chóng phác thảo bản vẽ nhà 2 tầng chữ L dựa vào vị thế đất sẵn có. Khu đất gia đình đang ở có kết cấu khá rắn và chắc. Hướng chính của ngôi nhà là hướng Đông nam, mảnh đất khá vuông vì thế mong muốn xây nhà theo hướng chữ l của anh Thành cũng là hiển nhiên. Như vậy nhìn ngôi nhà sẽ cân đối hơn và hợp lý hơn so với những mẫu nhà khác.
Chỉ trong vòng 5 ngày sau kiến trúc sư đã hoàn thiện hồ sơ thiết kế gồm có thiết kế kiến trúc, kết cấu, thiết kế điện nước… chủ đầu tư hoàn toàn đồng ý và rất hứng thú chờ đón ngày khởi công công trình của gia đình. Sự hoàn thiện nhanh chóng về mặt thiết kế của chúng tôi đã khiến gia đình khá hài lòng về những khâu chuẩn bị ban đầu.

Với mong muốn ngay từ đầu phải thật nổi bật, hoành tráng thì thiết kế nhà 2 tầng chữ l này là khá hợp lý với hệ thống cảnh quan sân vườn được quy hoạch vô cùng khoa học và đẹp mắt. Chúng tôi thiết kế hình những hình khối đơn giản vuông vức để tạo sự vững chắc và khỏe khoắn cho mẫu thiết kế nhà.
Chúng tôi đáp ứng mong muốn của chủ đầu tư khi lựa chọn mái thái màu nâu với độ dốc lớn cho ngôi nhà. Mái thái không cần phải bàn nhiều vì nó thật sự rất đẹp và hiện đại phù hợp với xu thế hiện nay. Thiết kế nhà chữ l cũng có ưu điểm riêng của nó, khi vào mùa mưa sẽ giúp cho ngôi nhà thoát nước nhanh, ngoài ra sẽ thoáng mát vào mùa hè. Hệ mái thái thay vì lợp vì kèo dán ngói, chúng tôi lên phương án đổ bê tông sau đó mới dán ngói.
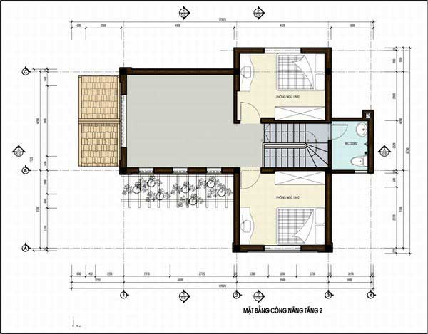
Chi tiết mặt bằng công năng của bản vẽ nhà 2 tầng chữ l đẹp
Ngôi nhà hướng đến sự đơn giản nên chúng tôi không quá cầu kỳ những chi tiết nhỏ nhưng vẫn giữ được sự hài hòa và tiện nghi cho ngôi nhà. Sảnh chính được thiết kế 2 trụ cột tròn đơn giản giúp cân đối hình khối mặt tiền cũng như tăng tính thẩm mỹ cho ngôi nhà.
Ngay từ ban đầu chọn màu sắc của mái thái là màu nâu nên chúng tôi đã cho đồng bộ với phong cách của cả ngôi nhà.Gam màu này khá trầm cho mẫu thiết kế nhà 2 tầng này. Tông màu trắng, nâu sáng của sơn tường kết hợp với tông màu nâu của cửa gỗ làm cho ngôi nhà thêm hài hòa và nhẹ nhàng.
Bên trong của ngôi nhà bậc tam cấp được thiết kế cao và đẹp mắt càng hợp lý và hiện đại khi ốp đá granite. Khi để chân tường của bản vẽ nhà chữ l 2 tầng được ốp đá màu đen nâu tạo cho khối thêm vững chắc và bề thế hơn.
Một điểm nhấn mà ai cũng nhận thấy ngay bên ngoài ngôi nhà đó là hệ thống tường rào. Chúng tôi đã cho thiết kế xây gạch chỉ, đổ làm bê tông và sơn màu trắng sáng, giúp cho ngôi nhà trông cao ráo và hiện đại hơn. Ngoài ra cổng chính được thiết kế chắc chắn với trụ cột bê tông to ốp đã nổi bật, mái bê tông đổ ngang cổng chính giúp cân bằng và bảo vệ hệ thống cổng chính.

Trước khi đi vào tầng 1 trong nhà chúng tôi đã khéo léo thiết kế một hồ nước tiểu cảnh ở sân trước trông rất nghệ thuật mà lại toát lên vẻ sang trọng cho cả ngôi nhà. Ở tầng 1, phòng khách được thiết kế rất rộng vừa tạo độ sâu kết hợp làm nên một không gian thoáng đãng cho ngôi nhà. Theo mặt phong thủy thì phòng khách rộng cũng giúp lưu thông không khí tốt hơn và cho gia chủ gặp nhiều may mắn.
Nằm ngay cạnh phòng khách đó là phòng bếp cũng thiết kế khá rộng, riêng bàn ăn đã chiếm 16m để thể hiện bề thế gia chủ. Không gian bếp sử dụng hệ tủ bếp chữ i cao sát trần giúp mở rộng không gian chứa đồ. Đồng thời khu vực tam giác chức năng: lưu trữ thức ăn – bồn rửa – chế biến được chú ý để thuận tiện cho việc nấu nướng cho gia đình.
Chúng tôi thiết kế luôn 1 phòng ngủ tại tầng 1 đối diện ngay cạnh cầu thang là phòng ngủ chính của bố mẹ được thiết kế rộng 15m2 vẫn với gam màu chủ đạo yêu thích của 2 vợ chồng. Do ngôi nhà khá rộng nên từ phòng bếp có lối ra sân sau, được thiết kế sân phơi, cùng nhà vệ sinh chung, phục vụ nhu cầu chung cho các thành viên tại tầng 1.

Thiết kế tầng 2 cũng không thay đổi gì nhiều so với dự kiến ban đầu. Với 2 phòng ngủ đối diện nhau để tiện cùng chung 1 nhà vệ sinh 2 chị em cùng sử dụng. Không gian phòng thờ được thiết kế hướng ra mặt cổng chính, nhằm lấy sự thông thoáng và thoáng mát cho không gian linh thiêng này.
Đúng như mong muốn của chủ nhà cũng như bên thiết kế, ngôi nhà xây lên rất khang trang, sạch đẹp, kết cấu và kiến trúc hiện đại. Anh Thành liên lạc lại với chúng tôi trong niềm vui hân hoan, phấn khởi của cả gia đình được dọn về một ngôi nhà mới Cuộc sống của 4 thành viên trong gia đình khá thoải mái và hạnh phúc. Dân gian ta có câu: an cư mới lập nghiệp WEDO thấu hiểu điều này, do đó chúng tôi luôn nỗ lực để làm hết trách nhiệm của mình.
Phương châm làm việc “khách hàng là ông chủ duy nhất”, chắc chắn sẽ có những bản thiết kế nhà đẹp khiến các bạn hài lòng. Để được tư vấn về mẫu bản vẽ nhà chữ l 2 tầng, quý khách hàng vui lòng liên hệ trực tiếp với chúng tôi qua hotline: 024 38 16 8888
Nguồn tin: https://wedo.vn/
Có thể bạn muốn xem thêm:


































