Nền kinh tế tại Việt Nam đang tăng cao mỗi năm, từ đó nhu cầu sinh sống của mọi người cũng tăng theo. Nhà đẹp tiện nghi đang là niềm mơ ước mà nhiều gia đình mong muốn sở hữu để có nơi che mưa, che nắng. Với mong muốn giúp mọi gia đình Việt có ý tưởng thiết kế – xây dựng tổ ấm lý tưởng, chúng tôi xin chia sẻ đến mẫu nhà phố 2 tầng 8x10 ở nông thôn với không gian sinh sống tiện nghi một cách tối ưu. Kiến trúc nhà ở nông thôn này ngoài đáp ứng mọi nhu cầu sinh sống và tiện nghi, nó còn có chi phí thi công không quá tốn kém, phù hợp nền kinh tế nhiều gia chủ.
Thông tin phương án thiết kế nhà phố 2 tầng:
- Tổng diện tích xây dựng: 8 x 10 = 80m2.
- Kiến trúc: Nhà phố hiện đại ở nông thôn.
- Thời gian hoàn thiện dự án: Khoảng 3 tháng.
Mẫu nhà phố 2 tầng 8x10m2 có 3 phòng ngủ tiện nghi
Nhà phố này được chủ đầu tư tại Hồ Chí Minh xây dựng khá đẹp mắt, lựa chọn phong cách hiện đại làm điểm nhấn cho ngôi nhà. Tuy diện tích xây dựng chỉ có 80m2, nhưng đội ngũ KTS đã tận dung không gian sử dụng một cách tốt nhất, giúp mọi thành viên yêu quý trong nhà có cảm giác thoải mái khi an cư lập nghiệp. Là người khá chú trọng đến tính thẩm mỹ và sự thoải mái khi sinh sống, nên vị chủ đầu tư đã nhờ các kiến trúc sư công ty lên phương án thiết kế nhà phố 2 tầng ở tại nông thôn đẹp như phối cảnh sau đây.
Không riêng gì chủ đầu tư nhà phố 2 tầng nông thôn, mà đến nhiều gia chủ đang có dự định xây dựng tổ ấm cũng khá quan tâm và đánh giá cao phong cách thiết kế này. Từ bên ngoài mặt tiền cho đến không gian nội thất bên trong bố trí khá hợp lý và khoa học. Nhà phố đẹp này tuy lựa chọn phong cách hiện đại làm điểm nhấn, nhưng nó vẫn giữ được nét đẹp giản dị và mộc mạc từ các kiến trúc truyền thống Việt Nam.

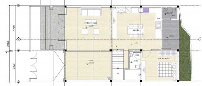
Bản vẽ tầng 1: Sân để xe hơi – phòng khách – không gian bếp liền kề bàn ăn – 1 phòng ngủ – 2 phòng vệ sinh. Khi nhìn trực tiếp mặt tiền mẫu nhà đẹp này, website tin chắc sẽ khiến cho những vị khách đi qua đường ấn tượng đó nha. Không quá cầu kỳ, không quá sang trọng nhưng vẫn khiến nhiều người phải hết lời khen ngợi. Tổng quan mặt tiền phía trước sử dụng tone màu trắng sáng sủa phối hợp nhẹ nhàng cùng màu xám ghi của mái, xung quanh được trang trí cây xanh tiểu cảnh sinh động. Các khối hình tường sử dụng gạch lát nền màu trắng vân đá vàng nhạt toát lên nét thanh toán và giá trị cho mặt tiền.

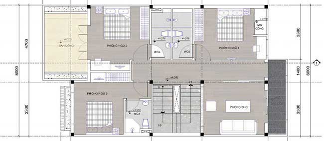
Bản vẽ tầng 2: 3 Phòng ngủ đều có 3 phòng vệ sinh riêng – phòng sinh hoạt chung – ban công đón gió. Đối với các hộ gia đình có nguồn thu nhập ổn định, thì kiến trúc nhà phố 2 tầng ở nông thôn này là sự lựa chọn đáng quan tâm đến. Nếu bạn chưa có kinh nghiệm trong việc xây nhà, hoặc không biết lựa chọn ý tưởng thiết kế phù hợp với kinh phí hiện tại hãy nhờ đến công ty xây dựng đưa ra giải pháp thi công hợp lý nhất. Nhờ đến đơn vị thiết kế – thi công có nhiều năm kinh nghiệm sẽ giúp bạn giảm thiểu được những rủi ro và phát sinh chi phí không mong muốn. Đồng thời hợp tác công ty xây dựng có nhiều năm trong nghề sẽ biết được chi phí xây dựng trọn gói, thương lượng giá tốt với bên cung cấp vật liệu xây dựng.
Phương án thiết kế kiểu nhà phố 2 tầng hiện đại này nhận được sự hài lòng của chủ nhà, vậy còn bạn thì sao? Bạn có yêu thích phong cách nhà phố đẹp tinh tế, nhẹ nhàng mà tiện nghi này không? Hãy cùng chúng tôi lên ý tưởng thiết kế cho ngôi nhà trong tương lai ngay bây giờ nhé.
Nguồn tin: https://wedo.vn/
Xem thêm:
=> Mẫu nhà phố 1 trệt 1 lửng 1 lầu
=> Thiết kế nhà phố 2 tầng hiện đại chỉ 700 Triệu



































