Thiết kế biệt thự hình chữ L đang là kiến trúc thịnh hành, được nhiều chủ đầu tư từ khu vực thành thị phát triển cho đến vùng quê nông thôn lựa chọn nhiều. Với công năng kết cấu thiết kế vô cùng tối ưu, tận dung không gian sinh sống được tốt nhất và dễ dàng sắp xếp căn phòng là những ưu điểm khiến biệt thự hình chữ L được ưa chuộng đến vậy. Ngoài ra bản vẽ thiết kế hình chữ L còn đáp ứng vấn đề phong thủy cho nhiều gia chủ, đem lại tài vận may mắn. Phương án thiết kế biệt thự 2 tầng này lựa chọn phong cách Hiện Đại, được chủ nhà xây dựng trong khu vực đông dân cư sinh sống tại Bình Dương. Biệt thự 2 tầng hiện đại thiết kế khá sang trọng, đáp ứng đầy đủ những tiêu chí, làm hài lòng chủ đầu tư. Vậy còn bạn thì sao? Có hài lòng với phong cách thiết kế biệt thự hình chữ L đẹp tiện nghi này không? Nếu có hãy cùng chúng tôi xem ngay phương án thiết kế biệt thự nắm bắt xu hướng mới nhất 2021 tại đây ngay bây giờ nhé.
Thông tin phương án thiết kế nhà 2 tầng:
- Tổng diện tích: 180m2.
- Địa điểm xây dựng: Tại Bình Dương.
- Thời gian hoàn thiện dự án: Khoảng 4 tháng.
- Kiến trúc: Biệt thự 2 tầng hình chữ l đẹp kết hợp mái thái.
Chi phối cảnh bản vẽ mẫu biệt thự 2 tầng hình chữ L có 3 phòng ngủ
Hiện đại, tiện nghi, sang trọng, bề thế và thể hiện cá tính của chủ nhà là những gì mẫu biệt thự 2 tầng này đều đáp ứng được. Khi nền kinh tế của Việt Nam đang bắt đầu tăng trưởng mạnh mẽ, nhu cầu sở hữu không gian sinh sống sang trọng và tiện nghi cũng được các chủ đầu tư đề cao. Vì vậy trong những năm gần đây, chủ đề biệt thự có rất nhiều kiểu dáng mới mẻ như: Biệt thự hiện đại, biệt thự cổ điển, biệt thự truyền thống, biệt thự hình chữ L, biệt thự mái thái, biệt thự có sân vườn,… và nhiều kiến trúc nhà biệt thự sang trọng khác, giúp cho những ai có nhu cầu xây dựng tổ ấm riêng tư có nhiều sự lựa chọn hơn. Biệt thự tại đây được các kiến trúc sư có nhiều năm kinh nghiệm dày dặn thiết kế cho chủ đầu tư tại Bình Dương, được chủ nhà cũng như mọi người đánh giá cao về tính thẩm mỹ cũng như sự tiện nghi.

Mặt tiền biệt thự 2 tầng hình chữ L trang trí theo kiểu nhẹ nhàng, không gian mở khá thông thoáng, đáp ứng nhu cầu cho gia đình có từ 5 – 6 thành viên. Các kiến trúc sư phối hợp tone màu trắng sáng cùng các chi tiết trang trí màu trung tính khá hợp lý, tạo điểm nhấn đặc biệt cho mặt tiền phía trước. Bao quanh nhà 2 tầng sang trọng này là hàng rào cao bằng sắt thép kiên cố, hàng rào thiết kế kiểu dáng đẹp mắt khiến mặt tiền phía trước thêm phần bề thế. Sân trước rộng rãi có thể chứa được 2 chiếc xe hơi, liền kề đó là khuôn viên sân vườn trồng cây tiểu cảnh sinh động. Cây xanh sân trước nhà biệt thự hình chữ L ngoài góp phần tăng tính thẩm mỹ, nó còn đưa nguồn không khí thoáng mát cho gia đình.
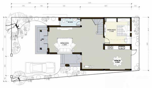
Vì kết cấu ngôi nhà này hình chữ L, nên kts dễ dàng bố trí các căn phòng một cách tối ưu diện tích và đem lại không gian sống một cách khoa học. Nội thất các căn phòng bên trong nhà đẹp này bố trí hợp lý, lựa chọn nội thất có kiểu dáng và màu sắc hài hòa với không gian từng căn phòng.

Công năng tầng 1 gồm: Sân vườn tiểu cảnh đẹp mắt, sân để xe hơi riêng rộng rãi, phòng khách trang trí sang trọng, phòng ngủ cho bố mẹ yên tĩnh, phòng bếp + ăn liền kề nhau, phòng vệ sinh chung sạch sẽ, cầu thang đi lên tầng.

Công năng tầng 2 gồm: 2 Phòng ngủ cho con thiết kế khép kín, 2 phòng vệ sinh có đầy đủ thiết bị, phòng sinh hoạt chung cho gia đình, phòng thờ nằm khu vực riêng yên tĩnh, ban công đón gió thoáng mát.
Nguồn tin: https://wedo.vn/
Xem thêm tin:
=> Mẫu nhà biệt thự 2 tầng 100m2

































