Thi công trọn gói đang dần trở thành lựa chọn hàng đầu cho gia chủ đang có ý định xây dựng nhà ở hiện nay. Trong bài viết này giới thiệu mẫu nhà phố 8x16 thi công trọn gói với chi phí đầu tư hợp lý cho gia đình tại phố hiện nay, đảm bảo công năng sử dụng và đạt chuẩn thẩm mỹ top thiết kế xu hướng hiện nay.
Phối cảnh mặt bằng mẫu nhà phố 8x16 tiện nghi
Khi lựa chọn một công ty xây dựng để tiến hành xây dựng nhà ở, công ty đó cung cấp cho gia chủ tất cả dịch vụ liên quan đến xây dựng hiện nay và một trong số đó là thi công trọn gói bao gồm từ thiết kế đến thi công công trình, tất cả đều gói gọn theo một quy trình khép kín. Và xây dựng mẫu nhà phố 8x16 cũng không có gì thay đổi, dưới đây sẽ là bản vẽ mặt bằng cho mẫu nhà phố 8x16 với quy mô xây dựng 3 tầng khá phổ biến hiện nay.

Với mặt bằng tầng bao gồm: 1 gara oto, 1 phòng khách, 1 bếp + ăn, và một nhà vệ sinh.
Trước khi vào đến khu vực sinh hoạt của gia đình là khu vực sân trước được bố trí với tiểu cây xanh xung quanh để có mặt tiền ấn tượng với màu xanh đến từ thiên nhiên. Bước vào không gian nhà bắt gặp ngay phòng khách với 4m chiều ngang được bố trí khá rộng rãi so mặt bằng chung xây dựng nhà phố hiện nay. Được thiết kế song song với phòng khách và là 4m chiều ngang còn lại chính là khu vực gara oto của gia chủ. Giữa hai khu vực này được bố trí vách ngăn hoặc xây tường và thiết kế lối đi dẫn vào khu vực phòng khách. Sau vị trí phòng khách sẽ là khu không gian của bếp và bàn ăn của gia đình. Giữa hai khu vực sử dụng một vách ngăn mỏng để không làm ảnh hưởng đến việc di chuyển hay lưu thông không khí và ánh sáng. Với thiết kế của mẫu nhà phố 8x16m này toàn bộ diện tích phía sau tạo nên không gian bếp + ăn vô cùng rồng rãi cho gia chủ sử dụng. Cuối nhà sẽ đặt nhà vệ sinh và khu vực thông tầng. Khu vực cầu thang được bố trí giữa gara và bếp.
Giúp cho gia chủ hình dung rõ hơn mặt bằng tầng 1 trong hồ sơ thiết kế có phối cảnh 3D như sau:

Phối cảnh phòng khách lựa chọn sơn trắng hiện đại và tiện cho việc phối nội thất trong gia đình. Sofa với thiết kế đơn giản, một màu phù hợp với tổng thể thiết kế của căn nhà theo phong cách hiện đại, sang trọng.

Đối diện sođa chính là tủ kệ ốp gỗ cực sang, tại đây gia chủ bày lên không gian những đồ trang trí hay những chai rượu mà gia chủ đang sở hữu. Sử dụng tivi gắn tường với lớp gỗ ốp phía sau nổi bật. Điểm nhấn là tránh kính gắn tường kết hợp đèn chiếu sáng, thảm đen sang trọng, hiện đại và đèn pha le với thiết kế lạ mắt.

Chú ý vào phần kệ tủ ở phòng khách, đây chính là vách ngăn giữa gara oto và phòng khách. Thay vì sử dụng tường thô cứng hay vách ngăn đơn điệu thị sử dụng chiếc tủ gỗ như mẫu nhà phố 8x16 này sẽ mang đến sự khác biệt trong kiến trúc. Đồng thời với vách ngăn này cũng sẽ mang đến không gian mở, thông thoáng. Giữa gara oto và khu vực phòng khách có bậc phân chia hai không gian, khu vực phòng khách được làm cao hơn để bụi từ oto hay xe máy không ảnh hưởng đến không gian này.

Giữa không gian phòng khách và khu vực bàn ăn là không gian giếng trời giúp cho ngôi nhà có được ánh sáng tự nhiên cũng như luôn thông thoáng không khi. Để khu vực này không trống và có thể điểm nhấn kiến trúc sư bố trí một tiểu cảnh nhỏ với phần được ốp đá, sàn nhà ốp gỗ để tạo nên không gian tự nhiên.

Trong khu vực bếp + ăn của gia đình được bố trí một quầy bar ốp đá, gỗ sang trọng. Bên trên sử dụng 3 chiếc đèn khuyết hiện đại. Sau đó mới đến khu vực bàn ăn với thiết kế đơn giản: chiếc bàn mặt kính dài với 8 chiếc ghế được chia đều hai bên sử dụng chất liệu bằng gỗ và thép trắng hiện đại, gọn ngàng không chiếm quá nhiều diện tích trong căn nhà. Bên trên trần được ốp gỗ kết hợp với đèn tròn thành trùm mang đến bầu không khí ấm áp quây quần của gia đình. Bức tranh phong cảnh với phần tường xám là điểm nhấn cho tổng thể thiết kế.

Căn bếp của mẫu nhà phố 8x16 này sử dụng tủ kệ bằng gỗ kết hợp với mặt bàn đá trắng mang đến không gian vô cùng sang trọng, hiện đại. Gia chủ bố trí bàn đảo bếp kết hợp ghế xoay tiện lợi.

Khu vực tầng 2 với 3 phòng ngủ, 1 nhà vệ sin, 1 phòng sinh hoạt chung cùng với ban công vô cùng rộng thoáng.

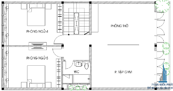
Khu vực tầng 3 với 2 phòng ngủ, 1 thờ, 1 phòng tập gym và 1 nhà vệ sinh cùng ban công phía trước sẽ là chỉnh thể thống nhất cho toàn bộ căn nhà. Tại vị trí phòng tập gym tùy theo nhu cầu của từng gia đình mà bố trí thành phòng ngủ hoặc một khu vực ban công rộng lớn.
Phối cảnh mặt tiền đẹp cho mẫu nhà phố 8x16 đáp ứng chuẩn xu hướng thiết kế

Hoàn chỉnh một mẫu nhà phố 8x16 thì không thể thiếu một mặt tiền ấn tượng. Lựa chọn phong cách hiện đại cho căn nhà, gia chủ ứng dụng kiến trúc nổi bật hình khối để làm nên một mặt tiền ấn tượng với khối hình vuông vực. Mặt tiền mẫu nhà phố 8x16 này chia làm hai diện tích, mỗi bên là 4m ứng với đó là không gian bên trong nhà, chiếu lên mặt tiền phía trên các tầng sử dụng mẫu kiến trúc tương tự.
Bắt đầu mặt tiền tầng 1 với cửa chính bằng gỗ tự nhiên cực kỳ sang trọng, bên trên sử dụng hệ cửa kính để lấy ánh sáng vào căn nhà. Với cách sử dụng cánh cửa gỗ như vậy gia chủ muốn giữ riêng tư cho không gian bên trong. Phần còn lại là gara oto với hệ thống cửa cuốn sang trọng, bên trên bố trí cửa kính tương tự để lấy ánh sáng vào bên trong, Tầng 2 và 3 của căn nhà này sử dụng kiến trúc khá giôn gs nhau với lớp cửa kính và sơn giả gỗ bề mặt, ban công khá rộng có thể đặt được bàn uống nước. Khu vực tầng thượng để thiết kế tum với cây xanh bao quanh nhà.

Nhẹ nhàng hơn, không đồ sộ như mẫu thiết kế nhà phố 8x16 với quy mô xây dưng 3 tầng 1 tum như bên trên mẫu nhà tiếp theo cũng cùng với diện tích ấy nhưng mang dáng vẻ nhỏ bé, gọn ngàng hơn rất nhiều.
Không gian tầng 1 của ngôi nhà được che bởi hệ phần cổng cao, kín bên ngoài để có không gian riêng tư bên trong. Lên mặt tiền tầng 2 gia chủ sử dụng gần như toàn bộ kính từ cửa đến ban công, bên trong sử dụng lớp rèm với cùng mục đích mang đến sự riêng tư cho người sử dụng. Nhấn ở mặt tiền tầng 2 mẫu nhà phố 8x16 này chính là chậu cây được ốp vào khu vực cửa sổ ngôi nhà với sơn giả gỗ sang trọng. Lên đến tầng 3 không sử dụng cửa chính diện, ban công kính cùng với chậu cây cớ lớn. Thêm nữa, kiến trúc sư sử dụng cây dạng bám cho không gian nhà từ phần tường ở khu vực sân trước đển mặt tiền tầng 2 và 3 mang đến không gian xanh cực kỳ ấn tượng.

Chỉ 4 thành viên sinh sống dưới một mái nhà thì mẫu nhà phố 8x16 với quy mô xây dựng 2 tầng, đơn giản nhẹ nhàng như thế này cũng là phối cảnh mặt tiền nằm trong xu hướng thiết kế hiện đại ngày nay.
Mặt tiền của ngôi nhà cũng được chia thành hai diện tích bằng nhau đối chiếu vào bên trong cũng là hai khu vực không gian khác nhau. Khu vực tầng 1 đã được che kín bởi hệ thống cổng rào với thiết kế phần cổng được sơn giả gỗ cùng phần khung sơn đen. Phần rào kết hợp mảng tường gạch xi ốp đá nhám với tường rào sắt để lộ ra hàng cây xanh phía trong sân nhà.
Khu vực tầng 2 với phần ban công cực kỳ rộng rãi, nối liền hai mặt tiền lại với nhau. Một bên là cửa kính bốn cánh với lam che nắng bên ngoài và một bên là cửa chính nhỏ gọn kết hợp ô cửa sổ vuông với thiết kế bồn cây xanh, bên trên là lam che nắng được thiết kế lạ mắt giống như giàn hoa nhỏ trước hiên nhà.

Trong mẫu nhà phố 8x16 hãy thử tham khảo thiết kế nhà đôi như bên trên chắc chắn sẽ khiến bạn thích thú với thiết kế vừa lạ vừa quen này. Sử dụng thiết kế đối xứng hai bên, gia chủ sở hữu một mẫu thiết kế vô cùng ấn tượng, nhìn từ bên ngoài ngỡ tưởng rằng là hai ngôi nhà khác nhau nhưng thực chất bên trong chỉ là một ngôi nhà với một gia đình đang sinh sống.

Với diện tích 8x16 gia chủ hoàn toàn sở hữu mẫu nhà phố theo phong cách tân cổ điển cực kỳ sang trọng, ấn tượng. Mặt tiền tiếp tục được chia làm hai không gian khác nhau. Tầng 1 là hệ thổng cổng rào sắt hoa văn tỉ mỉ kết hợp cùng cột trụ vững chắc, bên ngoài trồng hàng hoa nhỏ xinh. Tầng 2 và 3 có kiến trúc khá giống nhau với một bên là khối cột trụ được nối kéo dài hai tầng, kết hợp hệ thống cửa gỗ kính sang trọng, mái vòm cho tầng hai, hệ thống ban công cũng là kết hợp giữa sắt và trụ cột chắc chắn. Bên kia diện tích tầng 2 là cửa sổ vòm với chậu hoa được bao bên ngoài bởi hệ khung sắt với nét cổ điển. Lên đến tầng 3 là ban công với giàn hoa bên trên cực kỳ thu hút.

Tân cổ điển nhưng được gia chủ đầu tư kỹ càng với nét hoa văn họa tiết trang trí ở khu vực mặt tiền mẫu nhà phố 8x16 chắc chắn khiến bất cứ ai cũng thấy ấn tượng.
Hệ thống cột với những nét họa tiết được gia công thủ công mang đậm nét đẹp cổ điển bên trong. Từng khung cửa trong ngôi nhà sử dụng chất liệu gỗ tự nhiên cùng với thiết kế viền ngoài sơn trắng không thể lệch được ngôi nhà châu Âu thế kỷ 17. Lại thêm phần mái ngói đỏ mang đến tổng thể sang trọng, cổ điển bậc nhất cho mẫu nhà phố 8x16.


































