Đi dọc theo chiều dài từ Bắc vào Nam có lẽ hình ảnh những ngôi nhà cấp 4 lợp mái tôn dễ bắt gặp nhất. Cũng bởi chi phí khá rẻ, không cao và diện tích cũng không cần quá lớn bạn đã có thể sở hữu ngôi nhà này. Trong bài viết này chúng ta cũng tìm hiểu những ưu điểm của thiết kế nhà cấp 4 lợp mái tôn chống nóng này nhé!
Ưu điểm trong thiết kế nhà cấp 4 lợp mái tôn chống nóng
Có lẽ đây là mẫu bản vẽ nhà cấp 4 lợp mái tôn mà nhiều người muốn tìm nhất, mẫu nhà đẹp này được thiết kế lợp mái tôn chống nóng với diện tích 4.4 x 7 mét. Mẫu nhà 1 tầng khá bé chỉ phù hợp gia đình có 1 hoặc 2 con mà thôi. Thực ra với mẫu nhà như thế này thì chúng tôi khuyên các bạn không nên thuê thiết kế làm gì vì mẫu nhà này cũng không đòi hỏi đến làm kết cấu móng nhà, mẫu nhà này có thể thiết kế với điều kiện các bạn muốn làm móng nhà và xây dựng trước 1 tầng để sau này có thể lên thêm vài tầng nữa.

Hình ảnh chỉ mang tính chất minh họa
Chính vì vậy nếu bạn chỉ xây dựng để ở thì chỉ cần một người thợ đủ kinh nghiệm trong nghề sẽ làm được cho các bạn 1 căn nhà ưng ý và có tuổi thọ đến vài chục năm. Hiện nay với những người thu nhập thấp hay xây nhà để cho thuê hoặc xây nhà trọ… thì giải pháp nhà mái tôn cũng là một giải pháp khá tối ưu cho gia chủ.
Và cũng tùy thuộc vào mỗi vùng miền thì chi phí xây dựng nhà sẽ khác nhau hay giá thành còn tùy thuộc vào vật liệu tôn sử dụng. Bởi mẫu nhà này khá quen thuộc với các vùng nông thôn ở nước ta, chi phí xây dựng sẽ phù thuộc vào từng thời điểm, sẽ biến động không nhiều bởi bản chất xây nhà kết cấu này đã khá rẻ, phù hợp với những ai có ít kinh phí xây dựng.
Thiết kế nhà cấp 4 lợp mái tôn chống nóng sao cho phù hợp
Chắc hẳn với mẫu nhà cấp 4 này thì yêu cầu về mái khá quan trọng. Tùy vào điều kiện của mỗi gia đình mà thiết kế mái ngói khác nhau. Có ngói chống nóng và ngói không chống nóng, mỗi loại lại chia ra thành các loại khác nhau với các giá thành khác nhau. Vì vậy, phụ thuộc vào kinh phí xây dựng của mỗi gia đình mà sẽ chọn cho ngôi nhà của mình 1 loại mái ngói ưng ý nhất.
Có nhiều loại mái tôn nhập khẩu có giá thành cao hơn nhà mái thái nên các bạn có thể lưu ý. Rất tiếc là mẫu nhà cấp 4 này mái tôn không được lợp theo kiểu mái thái nếu không thì mẫu nhà này cũng hiện đại không thua kém gì các mẫu nhà cấp 4 khác. Các bạn có thể tham khảo chi tiết hơn bằng hình ảnh dưới đây nhé.
Dưới đây chúng tôi giới thiệu một mẫu nhà cấp 4 mái tôn này được thiết kế từ khá lâu rồi nên kiến trúc vẫn còn khá cổ, không hiện đại với nhiều phào chỉ. Hiện tại các kiểu nhà cấp 4 lợp mái tôn như vậy không còn được ứng dụng nhiều nữa, nếu các bạn vẫn thích thì hãy nghiên cứu kĩ nhé.

Mặt tiền

Mặt bằng

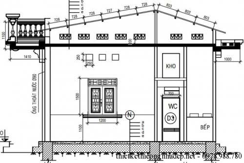
Mặt cắt A-A của nhà mái tôn

Mái tôn lợp chống nóng
Nhìn chung, xây dựng thiết kế cho ngôi nhà của mình luôn rất quan trọng. Nhưng đối với nhà cấp 4 lợp mái tôn chống nóng này thì gia chủ không cần thuê thiết kế cho đỡ tốn kém, chỉ cần thông tin qua mạng, sau đó thuê 1 ông thợ lành nghề trong lĩnh vực là hoàn toàn có thể tự thiết kế được nhà cấp 4 lợp mái tôn chống nóng cho gia đình. Nếu cần sự hỗ trợ, tham khảo thêm hãy liên hệ với chúng tôi, vì tư vấn là miễn phí. Hy vọng bài viết này có ích đối với những ai đang có nhu cầu xây nhà theo kiểu truyền thống này.
Nguồn tin: https://thietkethicongnhadep.net/
Tin hot liên quan:


































