Hình ảnh 3D mẫu biệt thự 9x12m làm say lòng các chủ đầu tư
Biệt thự hiện đại theo phong cách mái thái đang rất được ưa chuộng, đặc biệt là ở những khu vực nông thôn phát triển, cả căn biệt thự toát lên vẻ đẹp khỏe khoắn, trẻ trung và vô cùng lôi cuốn. Mỗi đường nét thiết kế của căn biệt thự mái thái này đều được tạo nên hòa quyện với nhau nhằm tạo lên nét đẹp phóng khoáng rất riêng, rất đặc sắc. Mặc dù các kiểu dáng, hình khối và công năng sử dụng vẫn đảm bảo như các phong cách khác. Tuy nhiên ở mỗi phong cách có những ưu nhược điểm riêng, xét về thực tế tại căn biệt thự này các mảng khối được cách tân với những đường nét mạch lạc hơn, khoẻ khoắn có sức lôi cuốn cao. Tạo được dáng vẻ trẻ trung, hiện đại của căn biệt thự 9x12m này.
Khi cuộc sống của con người đang ngày càng phát triển, những ngôi nhà hiện đại với phong cách mới lạ, gần gũi với thiên nhiên luôn được chúng tôi chú ý đến cũng bởi khách hàng luôn yêu cầu yếu tố xanh mượt cho không gian của gia đình mình. Mẫu nhà trên cũng vậy, bao quanh ngôi nhà là một khu vườn xanh mát, thật tuyệt vời để mỗi ngày ở nhà luôn được đắm mình vào thiên nhiên và sở hữu một ngôi nhà độc đáo và mới lạ đến như thế.

Đa số các họa tiết được trang trí là những hình khối được cách tân mềm mại, uyển chuyển theo hướng hiện đại nhưng lại không hề mất đi vẻ đẹp cổ điển vốn có đó là những gì mà căn biệt thự 9x12m mang lại cho chúng ta. Mỗi đường nét được thể hiện trên căn biệt thự này đều mang những giá trị nổi bật đặc trưng riêng, màu sắc, hình khối kết hợp với nhau một cách nhuần nhuyễn hợp lý tạo nên một biệt thự hiện đại đẳng cấp, sang trọng vô cùng.

Biệt thự hiện đại mái thái nông thông 9x12 thường ưu tiên tuyệt đối đến không gian sử dụng, dây chuyền công năng được đề cao, mang tính hợp lý nhất định.
Thiết kế nội thất kết hợp với một không gian ngoại thất hoàn hảo, tất cả được thể hiện ở mẫu biệt thự 2 tầng mái thái nông thôn trên đây của chúng tôi. Màu sắc nhã nhặn, tinh tế, nổi bật dưới màu mái ngói đỏ tươi ghi dấu ấn cho người nhìn từ xa.
Không gian nội thất và ngoại thất của căn biệt thự này được kết nối với nhau bằng những ô cửa lớn từ cửa chính đến cửa sổ đều được thiết kế rộng rãi,vách kính lớn ở chính các ô cửa và lan can kính cường lực mang đến một không gian thoáng đãng… Hình thức bên ngoài biệt thự không tạo nên nét đẹp bằng sự cầu kì, điêu luyện mà mang đến vẻ đẹp với những chi tiết trang trí đơn giản, cô đọng.

Chúng ta cùng điểm mặt từng phong cách thiết kế biệt thự 9x12m. Đến đây ta không thể bỏ qua được một mẫu thiết kế mang đặc trưng của nét đẹp cổ điển phương Tây. Chắc chắn dù ở thành phố hay ở nông thôn thì việc xuất hiện căn biệt thự này chắc chắn sẽ có khả năng làm lu mờ đi các công trình xây dựng xung quanh bởi sự nổi bật của hệ mái tròn mang đúng nét đẹp chỉ có ở phong cách cổ điển, bề ngoài của ngoại thất còn tạo nên sự đặc biệt ở một bộ cổng sắt quyền quý, những đường nét hoa văn, tỉ mỉ sắc sảo. Đó là những gì đã làm nên sự khác biệt, ấn tượng từ căn biệt thự cổ điển Pháp này.

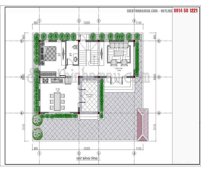
Mặt bằng tổng thể nội thất biệt thự 9x12m đẹp nhất hiện nay
Quan sát những mặt bằng tổng thể nội thất biệt thự 9x12m trên đây của chúng tôi bạn cũng cần tham khảo những nguyên tắc cụ thể khi bố trí một mặt bằng tổng thể nội thất cho căn biệt thự có kết hợp sân vườn. Thứ nhất là cần bố trí cân bằng đối xứng. Đây là cách bố trí được sử dụng phổ biến trong các căn biệt thự với nhiều yếu tố tô điểm cho quang cảnh của sân vườn như cây cảnh, tượng đá, thảm cỏ,… xung quanh căn biệt thự cần được bày trí một cách cân đối, tạo nên một thể đối xứng hài hòa, hợp lý.

Thứ 2 là bố trí cân bằng bất đối xứng. Với lối bố trí cân bằng này thì chúng ta sẽ khó mà có thể xác định được trục đối xứng vì hai bên cảnh vật của ngôi biệt thự có cấu tạo giống nhau, điều này sẽ tạo ra ra được nhiều không gian thích hợp để các kiến trúc sư có thể dành cho bày trí tiểu cảnh, khu trồng cây hay có thể một gây ấn tượng cho khu vườn căn biệt thự bằng việc bạn xây chòi để thư giãn tinh thần trong những ngày đẹp trời.

Thứ 3 là bố trí cân bằng đối tâm, có nghĩa là trong mặt bằng bạn có thể lấy tâm từ một yếu tố nào đó nổi bật trong căn biệt thự rồi sắp xếp xung sao cho kết hợp hài hòa tạo nên một bức tranh căn biệt thự mang đến thẩm mỹ cao.
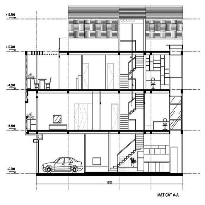
Phối cảnh bản vẽ chi tiết cho căn biệt thự 9x12m
Trên đây là bản vẽ cho căn biệt theo phong cách biệt thự mái bằng 3 tầng 1 tum 9x12m. Từ bản thiết kế này về cơ bản đã giải quyết được một phần khó khăn trong việc lên ý tưởng cho một căn biệt thự của các chủ đầu tư. Bởi lẽ với những người có kinh nghiệm trong xây dựng thì vấn đề này thật đơn giản nhưng ngoài lĩnh vực xây dựng để biết thiết kê một căn biệt thự thì quả là một việc rất khó khăn.
Chính vì vậy mà khi đã tìm hiểu và ưng ý được một bản vẽ thiết kế nào bạn chỉ cần dựa vào đó và lên ý tưởng, mọi công đoạn hoàn thiện sau đã có những kiến trúc sư giúp bạn hoàn thiện căn biệt thự theo đúng như tỉ lệ, kích thước, công năng theo như mong muốn chính xác của mình.

Những kiến trúc sư là người có chuyên môn, kinh nghiệm nên bạn muốn có bản vẽ hoàn chỉnh và chi tiết, cụ thể đúng như ý nguyện của mình thì buộc các chủ đầu tư vẫn sẽ phải nhờ đến các kiến trúc sư trao đổi ý tưởng với họ và đi và thống nhất một mẫu thiết kế cho căn biệt thự của gia đình mình sao cho phù hợp với diện tích mảnh đất, sở thích của các thành viên đáp ứng nhu cầu sử dụng.

Hơn nữa khi nhờ đến các kiến trúc sư làm bản thiết kế bạn sẽ nhờ luôn họ là người giám sát công trình xây dựng của căn biệt thự, họ là người trực tiếp vẽ lên bản thiết kế nên khi xảy ra sự cố gì? Nhà thầu làm sai bản thiết kế họ cũng là người phát hiện ra đầu tiên, từ đó đưa ra phương án xử lý kịp thời công công trình thi công sẽ không bị chậm tiến độ.
Lựa chọn xây dựng số sàn giao dịch thương mại điện tử bạn được những gì?

Bởi lẽ sàn giao dịch của chúng tôi là sàn mang thương hiệu lớn, có tầm ảnh hưởng ở khắp các tỉnh thành. Những nhà thầu tại Xây Dựng Số thì 100% là có thương hiệu, được kiểm định chất lượng trước khi sàn giới thiệu đến các chủ đầu tư. Họ đã có một bộ hồ sơ năng lực đạt chuẩn, họ chứng minh bằng chính những công trình xây dựng biệt thự với bộ mẫu mã cập nhật những thiết kế mới nhất đi trước xu thế của thời đại. Những công trình họ mang đến đầy tính nghệ thuật cao, nhận được sự hài lòng tuyệt đối từ phía các chủ đầu tư. Hơn nữa chi phí xây dựng được tiết kiệm một cách tối ưu nhất.
Trên đây là những chia sẻ của chúng tôi về những mẫu nhà biệt thự 9x12m. Hi vọng sẽ giúp ích cho các chủ đầu tư có được sự chuẩn bị tốt nhất cho xây dựng căn biệt thự của gia đình mình trong tương lai. Mọi băn khoăn, thắc mắc của các bạn sẽ được đội ngũ tư vấn nhiệt tình của Xây Dựng Số giải quyết một cách nhanh nhất.





































