Hiện nay, mẫu nhà phố 3 tầng đang được nhiều gia chủ quan tâm. Đây cũng không phải kiểu nhà ở quá xa lạ tại các thành phố lớn như Hà Nội, Tp.Hồ Chí Minh. Nếu như bạn đang sở hữu một mảnh đất có diện tích khoảng 60m2 với mặt tiền 4m thì việc thiết kế 3 tầng chính là sự lựa chọn hoàn hảo để đảm được không gian sống thoải mái cho các thành viên trong gia đình. Hãy cùng Xây Dựng Số khám phá mẫu nhà phố 3 tầng 4x15m dưới đây để hoàn thiện cho ý tưởng thiết kế mới cho gia đình nhé.
1. Mẫu bản vẽ thiết kế nhà phố 3 tầng 4x15m đẹp

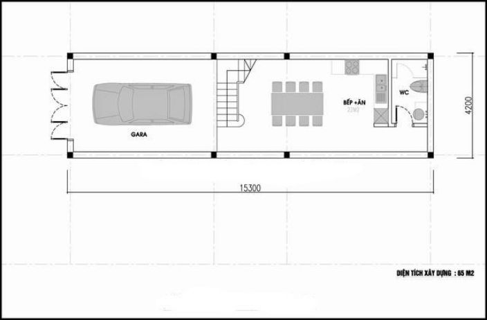
Mẫu nhà phố 3 tầng có diện tích ngang 4x15m trên đây được thiết kế theo phong cách hiện đại nhằm mang đến vẻ đẹp sang trọng. Tầng trệt sử dụng gam màu nâu xám là điểm nhấn cho toàn bộ ngôi nhà. Không quá đồ sộ, nguy nga song mẫu nhà phố này chắc chắn sẽ mang đến không gian sống tuyệt vời. Tầng 1 gồm sân trước có diện tích khá rộng rãi dùng để xe thuận lợi. Không gian sinh hoạt chung của gia đình như phòng khách, bếp và phòng ăn được kết nối mở và thông thoáng với nhau. Cầu thang được thiết kế làm vách ngăn giữa bếp với phòng khách, tạo sự riêng tư cần thiết.

Tầng 2 được thiết kế tận dụng một phòng để tạo ra không gian sinh hoạt chung của gia đình. Phòng ngủ tiện nghi cộng với nhà vệ sinh khép kín bên trong mang lại sự riêng tư nhất định. Thiết kế thông tầng tạo điều kiện cho việc lấy gió, ánh sáng tự nhiên được tốt hơn.

Tầng 3, các kiến trúc sơ đã bố trí không gian thờ cúng của gia đình với 2 phòng ngủ. NHà vệ sinh vẫn được bố trí cạnh cầu thang để tiện cho việc sinh hoạt. Hai phòng ngủ được thiết kế cách xa nhau để đảm bảo sự riêng tư tuyệt đối. Trong khi đó, không gian phòng thờ đặt giữa phòng ngủ 3 và cầu thang đã mang lại không gian ấm cúng.
2. Tư vấn cách tính dự toán kinh phí xây nhà phố 3 tầng diện tích 4x15m
Để giúp mọi người thuận tiện trong việc tham khảo chí phí cũng như có thể dự trù được giá xây dựng công trình có diện tích tương đương. Xây Dựng Số xin đứa ra dự toán chi phí xây nhà phố diện tích 4x15m với tổng diển tích sàn là 228m2
- Chi phí xây dựng nhà phố 3 phần thô: 228 x 4.000.000 = 912.000.000vnđ (tính theo đơn giá 4.000.000/m2)
- Chi phí xây dựng hoàn thiện trọn gọn: 228 x 5.000.000 = 1.140.000.000vnđ (tính theo đơn giá 5.000.000vnđ/m2)
3. Tham khảo thiết kế nội thất nhà phố 3 tầng

Phong cách thiết kế nội thất hiện đại là lựa chọn tối ưu của nhà phố mặt tiền 4m, giúp không gian đầy đủ tiện nghi toát lên vẻ thanh lịch mà không cần quá cầu kỳ. Không gian phòng khách được thiết kế hiện đại bằng cách sử dụng tông màu trắng nhẹ nhàng, kết hợp với hệ đèn chùm lộng lẫy tôn lên sự sang trọng, đẳng cấp. Và cũng bởi màu sắc nền nã mà các chi tiết nội thất như ghế sofa, kệ tivi sẽ trở nên nổi bật hơn. Trần nhà thạch cao giúp không gian phòng khách có cảm giác rộng rãi hơn và bố trí các bóng đèn âm trần chiếu sáng cho phòng khách lung linh hơn.

Phòng bếp đơn giản nhưng đẹp với màu xanh cùng tủ bếp chữ L được bố trí sát tường và trần tăng khả năng lưu trữ. Bộ bàn ghế bằng gỗ mộc mạc với những đường cong uyển chuyển với kiểu sáng thanh mảnh đầy tinh tế. Hệ cửa kính giúp đón ánh sáng tự nhiên nhằm tạo sự thoải mái cho những bữa cơm gia đình.

Phòng ngủ lớn được thiết kế rộng rãi tạo sự thoải mái cho nhu cầu sinh hoạt. Với tông màu xám được lựa chọn, phòng ngủ này đã tôn lên sự lịch lãm và quý phái. Bức tường với những đường chỉ đen chạy ngang dọc là điểm nhấn đặc biệt cho phòng ngủ master này.
Phòng ngủ cho con được thiết kế với màu sắc tươi sáng cùng trang trí đẹp mắt, giúp trẻ thích thú với không gian này. Góc học tập được bố trí gọn gàng, gần cửa sổ giúp trẻ có không gian thoáng mát và sáng sủa.

Cuối cùng là phòng thờ, các kiến trúc sư đã lựa chọn thiết kế bàn thờ hiện đại nhưng vẫn đảm bảo xu hướng tông giáo và tâm linh với những họa tiết, màu sắc truyền thông. Mẫu bàn thờ được thiết kế dạng tủ thờ 2 tầng bằng chất liệu gỗ tự nhiên tuy đơn giản nhưng vô cùng tinh tế.
4. Những mẫu nhà phố 3 tầng 4x15m đẹp cuốn hút

Thông thường, nhà có tum vẫn luôn là sự lựa chọn của nhiều gia chủ bởi công năng tuyệt vời. Ở đây, mẫu nhà không 3 tầng không những có tum mà còn được thiết kế thêm gác lửng ở giữa tầng 1 và 2 góp phần làm tăng thêm nhiều diện tích và công năng cho ngôi nhà. Mặt tiền ngôi nhà được thiết kế đơn giản nhưng vẫn sang trọng. Bằng cách tạo hình chỉnh chu, các khối kiến trúc gắn kết chặt chẽ với nhau. Đặc biệt, còn có thêm những chi tiết nhấn nhá trong kiến trúc, ra vào ban công hợp lý mang lại góc nhìn đa dạng.

Mẫu thiết kế nhà phố 3 tầng có tầng tum theo hướng không gian mở được thể hiện bằng sự kết hợp với hệ thống giếng trời cùng các ô cửa sổ lấy ánh sáng và gió thông minh, khoa học. Với tông màu trắng chủ đạo mang lại sự nhẹ nhàng. Toàn bộ hệ cửa và ban công đều được làm bằng kính tạo góp phần tăng thêm nét hiện đại cho ngôi nhà. Tiểu cảnh được bố trí ở tầng tum với hệ thống cây xanh mang lại không gian thoáng mát.

Mặt tiền ngôi nhà này được thiết kế với khoảng sân trước thoáng và rộng, thiết kế ốp gạch màu tối cùng với khoảng không giúp không gian mặt tiền đã thoáng lại càng thoáng hơn. Từ mặt tiền tầng 1, tầng 1 và tầng 3 được thiết kế với khối đua bê tông và khối dầm sàn đua rộng hơn so với mặt tiền. Bên cạnh đó, những mảng tường được ốp lam nhựa 3D gam màu nâu đậm, kết hợp với hệ vách kính nhôm, ban công thiết kế da dạng từ lan can sắt cho đến lan can kính vừa tăng hiệu ứng thẩm mỹ vừa giúp chắn nắng và gió.

Mẫu nhà phố 3 tầng 4x15m với phần mặt tiền được thiết kế ốp lam giả gỗ bản to, màu vân gỗ, thiết kế ốp toàn bộ mặt tiền tầng 1 và khoảng tường tầng 2 tạo nên sự độc đáo và phá cách cho ngôi nhà. Khối ban công được thiết kế đơn giản với chất liệu kính cường lực. Tuy không rộng nhưng với kính cường lực đã tạo nên hiệu ứng không gian rộng hơn, tươi mới hơn cho mẫu nhà phố hiện đại.
Ngoài ra, hệ thống cửa nhôm Xingfa vân gỗ được lắp trước mặt tiền còn giúp ngôi nhà lấy sáng, đón thoáng và tăng hiệu ứng thẩm mỹ cho không gian hiệu quả. Về phần ngoại thất, mẫu nhà phố được thiết kế đơn giản với tông màu trung tính trắng kết hợp với màu be, màu vân gỗ nhẹ nhàng, đây là sự phối màu hài hòa và ăn khớp.

Mặt tiền mẫu nhà phố 3 tầng này được thiết kế theo phong cách hiện đại kết hợp với những đường vòm công cong uyển chuyển, mềm mại. Cùng với đó, việc bố trí và sắp xếp các mảng tường gạch bông chắn nắng trực tiếp vào nhà mà vẫn để không khí thoáng mát đã góp phần khiến ngôi nhà cuốn hút hơn với người nhìn. Việc khéo léo tạo điểm nhấn cho mặt bằng ngôi nhà bằng các khối màu đỏ đậm cũng tăng thêm sự trẻ trung và phong cách sống hiện đại của chủ nhà.

Đặc điểm của mẫu nhà phố 3 tầng trên là sự tối giản các kiến trúc, chi tiết rườm rà. Ở đây, các kiến trúc sư đã sử dụng các hình khối vuông vức nhằm tạo cảm giác ngôi nhà trở nên khỏe khoắn, năng động hơn. Các tông màu trung tính như trắng và kem được sử dụng nhiều xen kẽ với tông màu đậm như đen và nâu. Để giảm không khí ngột ngạt, bí bách, kiến trúc sư đã bố trí những tiểu cảnh nhỏ ở ban công.
Phần mặt tiền cửa ra vào và vách trang trí bên hông ban công được ốp đá tự nhiên, mang lại sự hiện đại và mới mẻ cho ngôi nhà. Việc sử dụng lam trang trí ở phần mái còn góp phần tạo chiều sâu và sự thoáng khí tối đa cho không gian. Ban công và cửa sử dụng chất liệu kính giúp tiết kiệm không gian. Đồng thời, còn mang lại nguồn ánh sáng tự nhiên, làm ngôi nhà gẫn gũi, hiện đại hơn.
Tra cứu thông tin nhà thầu, đơn vị thiết kế nhà phố 3 tầng ở đâu?

Đây không chỉ là câu hỏi của những gia chủ cần thông tin về đơn vị thiết kế, xây dựng mà Xây Dựng Số còn chắc chắn rằng bạn cũng chưa biết trang web nào cung cấp nhưng thông tin về mẫu nhà phố 3 tầng đẹp cuốn hút đùng không? Vậy hãy để chúng tối giúp bạn trả lời câu hỏi này. Trang web xaydungso.vn chính là nơi các gia chủ cần mỗi khu muốn tìm nhà thầu, công ty xây dựng. Chúng tôi tự hào với hàng ngàn các công ty xây dựng, chủ thầu với hồ sơ năng lực minh bạch và uy tín. Không chỉ vậy, các đơn vị này còn được đánh giá liên tục bởi các chuyên gia của chúng tôi cũng như chủ đầu tư.
Trên đây là các thông tin và mẫu nhà phố 3 tầng 5x14 cho các bạn đọc tham khảo và làm mẫu cho gia đình mình. Hi vọng bài viết này sẽ giúp bạn có được những ý tưởng và tìm được đơn vị thiết kế phù hợp với yêu cầu của mình. Chúc các bạn thành công!
Xem thêm
Mẫu nhà phố 3 tầng mặt tiền 4m


































