Diện tích 60m2 được xem là phần diện tích thích hợp dành cho cặp vợ chồng mới cưới hiện nay bởi phù hợp với nguồn ngân sách, lại phù hợp với nhu cầu sử dụng. Cùng xem mặt bằng thiết kế và phối cảnh mặt tiền của mẫu nhà cấp 4 60m2 này như thế nào ngay trong bài viết dưới đây.
Bản thiết kế đầy đủ công năng sử dụng cho cặp vợ chồng trẻ, chi phí lại tiết kiệm
Bản thiết kế dành cho mẫu nhà cấp 4 60m2 được kiến trúc sư bố trí khoa học, hợp lý, thuận tiện trong quá trình sử dụng, mà chi phí cho tổng thể thiết kế chỉ từ 300 triệu đồng.

Mặt bằng bố trí nội thất dành cho mẫu nhà cấp 4 60m2 được giới thiệu đầu tiên trong bài viết này có phương án bố trí như sau: Kiến trúc sư dành ra một diện tích nhỏ phía trước nhà để làm sân trước cho gia chủ thuận tiện để xe máy, các phương tiện di chuyển của gia đình. Ở không gian này sẽ thường bố trí thêm phần tiểu cảnh cây xanh trong nhà để tạo không gian xanh mát, lọc bớt bụi bẩn.
Kiến trúc sư sử dụng bậc tam cấp nhỏ dành cho cửa hai cánh trước khi bước vào không gian phòng khách bên trong. Không gian phòng khách trong mẫu nhà cấp 4 60m2 này sẽ được nối thông với khu vực bếp cùng với bàn ăn. Việc nối thông này giúp cho diện tích này được rộng rãi hơn, nhấn mạnh vào chiều sâu của ngôi nhà, giúp cho gia chủ tiếp đón vị khách đến chơi nhà trong một không gian khá rộng rãi so với diện tích tổng chỉ 60m2.

Bên trên đây là bản vẽ 3D để gia chủ có thể hình dung rõ hơn về việc bố trí không gian, cách sắp xếp nội thất cho phòng khách và không gian bếp. Nhìn vào mặt nội thất của căn nhà này thấy gia chủ lựa chọn thiết kế đơn giản cho không gian nhưng vẫn đảm bảo đầy đủ tiện nghi. Phòng khách là bộ bàn ghế sofa, kệ dưới tivi, tivi gắn tường. Điểm nhấn thảm lông màu trắng bên dưới bộ sofa, bức tranh trắng đến đầy nghệ thuật trừu tượng, 2 chiếc đèn trong không gian. Với căn nhà cấp 4 có diện tích hạn chế như thế này thì gia chủ thường đặt không gian ban thờ ở vị trí phòng khách, hướng ra cửa để phù hợp với quan niệm tâm linh của người Việt từ xưa đến này. Với phần không gian này kiến trúc sư vẫn sử dụng gạch giả gỗ để ốp lát mang đến không gian với sự trang trọng nhất định dành cho tổ tiên của mình, bên dưới là tượng phật và một chậu hoa nhỏ.
Không gian bếp gia chủ sử dụng tủ âm tường để tạo nên cảm giác về căn bếp gọn gàng, tối đa diện tích sử dụng ngôi nhà.
Tiếp nối không gian là không gian nhà vệ sinh và phòng ngủ nhỏ. Song song với hai không gian này kiến trúc sư bố trí tiểu cảnh cây xanh trong nhà, tạo nên khu vườn mini tại gia. Không dừng lại ở đó, không gian này kết hợp với sân phơi đồ để thuận tiện cho mục đích sử dụng.
Cuối nhà sẽ là phòng ngủ với diện tích lớn, phù hợp cho cặp vợ chồng trẻ hiện nay.

Mặt bằng thiết kế dành cho mẫu nhà cấp 4 60m2 thứ hai có gara oto dành cho gia chủ tham khảo như sau. Kiến trúc sư không sử dụng sân trước nữa mà thay vào đó biến thành một góc của gara oto đặt phía bên phải của ngôi nhà. Phần gara oto sẽ thiết kế dạng mở để không gây ám mùi phương tiện vào trong nhà. Phía trước khi bước vào phòng khách là sảnh chính với diện tích nhỏ vừa để tiếp đón vị khách đến chơi nhà. Cửa chính sử dụng cửa 1 cánh nhỏ xinh, phù hợp với diện tích 3m mặt tiền. Bên trong nhà chia làm hai phần song song với nhau. Một bên là phòng khách, phòng bếp, khu vực bàn ăn và nhà vệ sinh. Phần còn lại là 2 phòng ngủ có diện tích tương đương nhau.
Mẫu nhà này được rất nhiều cặp vợ chồng trẻ chú ý bởi tính gara ô tô giúp cho gia chủ không phải tìm kiếm bãi đỗ xe cách xe nhà.

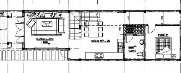
Ngoài ra mặt bằng thiết kế dành cho mẫu nhà cấp 4 60m2 này có gác lửng. Mẫu thiết kế này khá mới mẻ, giúp gia chủ sở hữu nâng cao đươc diện tích sử dụng, chi phí xây dựng rất phù hợp bởi phần gác được tính bằng 50% diện tích sàn.
Mặt bằng thiết kế mẫu nhà cấp 4 60m2 có gác lửng như sau: Cổng rào phía trước nhà, một khoảng sân nhỏ rồi mới đến cửa chính 4 cánh dẫn vào khu vực phòng khách bên trong. Khu vực phòng khách nối thông với phòng bếp + ăn. Ngăn cách hai không gian này là cầu thang lên gác lửng. Tiếp đến là nhà vệ sinh và một phòng ngủ đằng sau. Với không gian gác lửng được bố trí một phòng ngủ với không gian khá thoáng rộng bên dưới, đáp ứng yêu cầu về diện tích của gia chủ.

Một trong phối cảnh 3D cho bản thiết kế bên trên để gia chủ dễ dàng hình dung cách lựa chọn cũng như bố trí nội thất bên bên trong nhà. Ở không gian này kiến trúc sư đẩy không gian thờ lên khu vực gác lửng phía bên trên. Khu vực cầu thang nối lên gác lửng lựa chọn đa dạng như đổ bê tông cốt thép như bên trên, hoặc sử dụng cầu thang sắt, thép inox,… tuỳ theo sở thích nhu cầu của gia chủ.
Trên đây là 3 mẫu bản vẽ dành cho mẫu nhà cấp 4 60m2 có chi phí chỉ từ 300 triệu đồng dành cho gia chủ tham khảo.
Phối cảnh mặt tiền siêu đẹp, siêu hot dành riêng cho mẫu nhà cấp 4 60m2
Mẫu nhà cấp 4 60m2 với phong cách hiện đại, trẻ trung cùng với mái bằng

Mẫu nhà cấp 4 60m2 này được rất nhiều cặp vợ chồng trẻ quan tâm, lựa chọn cho ngôi nhà tương lai của mình. Phong cách kiến trúc hiện đại, trẻ trung, tiện nghi phù hợp với mọi lứa tuổi, cá tính, đáp ứng về không gian diện tích bên trong nhà. Nối bật kiến trúc này chính là hình khối vuông vức tối đa diện tích 60m2 bên trong, Phần khung được làm nhô ra đằng trước tạo thành tiền sảnh hợp lý. Trần khu vực tiền sảnh này được sơn giả gỗ kết hợp với ánh sáng vàng từ đền led mang đến sự sang trọng cho tổng thể không gian. Phần cửa chính dần vào phòng khách với cửa 4 cánh phần kính khung nhôm sơn đen nổi bật trên nền tường trắng ấn tượng. Phía bên trong nhà phần rèm cửa trắng giúp hạn chế ánh sáng vào trong nhà, tạo được không gian riêng tư.
Mẫu nhà cấp 4 60m2 sử dụng mái Thái sang trọng, quyền lực

Mái Thái không còn xa lạ bởi đây là nét trức mái được ưa chuộng bậc nhất hiện nay bởi ưu điểm tuyệt vời giúp bảo vệ ngôi nhà trước biến đổi của thời tiết. Phần mái Thái có độ dốc lớn sử dụng cho mẫu nhà cấp 4 60m2 mang đến cảm giác về tổng thế khá to lớn, đồ sộ. Đặc biệt trong thiết kế này lại sử dụng phần mái giật cấp càng giúp kiến trúc này trở nên to lớn hơn so với diện tích thực chỉ vọn vẻn 60m2.
Kiến trúc sư sử dụng kiến trúc mái vòm cho mái trước, nét chỉ phảo nhẹ ở mái thứ hai tiêu biểu cho nét kiến trúc cổ điển sang trọng. Phần cửa sử dụng vật liệu gỗ, kính kết hợp ánh sáng vàng từ bên trong ngôi nhà càng nhấn mạnh vào tổng thể của ngôi nhà mang đậm nét châu Âu cổ kính. Bậc thềm tam cấp được ốp đá granit đen vừa nổi bật lại vừa phù hợp với tổng thể không gian cổ điển, sự cuốn hút kỳ bí.
Mẫu nhà cấp 4 60m2 với thiết kế chữ L nâng cao diện tích sử dụng cho gia chủ sở hữu

Với diện tích 60m2 thì kiến trúc L được xem là phương án thiết ưu tiên hàng đầu để tối đa được diện tích sử dụng.
Trong căn nhà đẹp phía trên đây ngôi nhà sử dụng kiến trúc tân cổ điển với sự hiện diện nổi bật của hệ thống cột trụ vững chắc ở tiền sảnh, phần mái vồm ốp đá vàng sang trọng. Cộng thêm kiến trúc mái Thái mang đến tổng thể kiến trúc hợp lý, phù hợp.
Chân nhà kiến trúc sư sử dụng ốp đá vừa tạo điểm nhấn, tạo được phần chân có cảm giác cao hơn so với công trình tương tự, vừa tránh được tình trạng xuất hiện rêu ảnh hưởng đến thẩm mỹ, chất lượng tuổi thọ của công trình.

Ngoài kiến trúc điển hình mẫu nhà cấp 4 60m2 nói trên thì không thể không kể đến mẫu nhà cấp 4 60m2 có gác lửng.
Mẫu thiết kế hot nhất dành cho gia chủ tham khảo lựa chọn phần mái Thái giật cấp. Với phần mái Thái này giúp cho không gian tránh nóng vô cùng hiệu quả vào mùa hè, tạo không gian thông thoáng cho gia chủ sử dụng. Trong không gian nhỏ bé 60m2 ấy, kiến trúc sư vẫn có thể bố trí không gian thư giãn kế bên nhà ở bên phía trái. Không gian này được sơn giả gỗ để mang đến sự gần gũi với thiên nhiên. Bộ bàn ghế gỗ nhỏ phù hợp với việc nghỉ ngơi, thư giãn cùng với ấm trà ấm nóng được xem là phương án giải toả stress vô cùng hiệu quả tại gia cho gia chủ sở hữu.
Gia chủ tham khảo mẫu nhà phía trên để lựa chọn mẫu nhà cấp 4 60m2 tương lai của mình đúng theo mong muốn. Hy vọng mẫu nhà tương lai của bạn sẽ trở thành hình mẫu, xu hướng thiết kế được nhiều gia chủ mong muốn sở hữu nhất.


































