Với diện tích 150m2 đây là không gian tuyệt vời để có một ngôi nhà cấp 4 sang trọng. Không khác gì vẻ đẹp của ngôi nhà cao tầng. Mẫu nhà cấp 4 theo hình thức mái thái, phong cách nhà vườn, phong cách Châu Âu... đang rất được ưa chuộng. Hiểu được điều này bài viết của chúng tôi hôm nay giới thiệu đến các chủ đầu tư những mẫu nhà cấp 4 đẹp 150m2 lý tưởng nhất hiện nay.
Mặt bằng không gian và cách trang trí phòng chức năng cho mẫu nhà cấp 4 150m2
Không gian đầu tiên của bất cứ mẫu nhà cấp 4 nào đều là sự hiện diện của phòng khách. Nơi được coi là không gian quan trọng, là nơi mà tất cả các thành viên trong gia đình sinh hoạt nhiều nhất. Để phòng khách của gia đình bạn ấn tượng chúng tôi gợi ý đến các chủ đầu tư cách trang trí như là sử dụng giấy dán tường bằng một gam màu trung trính sang trọng. Tạo điểm nhấn cho căn phòng khách bằng một cây đèn chùm 12 tai trắng sáng.

Hệ thống trần thạch cao nổi có phối đèn âm nhỏ xung quanh trần nhà vào buổi tuổi căn phòng khách sẽ trở nên lung linh sắc màu. Trong năm 2021 hiện nay thì giá làm trần thạch cao đang giao động khoảng 130.000 VNĐ/m2. Phía sàn nhà bạn nên lựa chọn loại gạch đá hoa có diện tích 60x60cm và tại phòng khách có thể lựa chọn thêm thảm nhung trải sàn nếu bạn chọn bộ bàn ghế salon cho phòng khách.
Qua không gian của phòng khách thì trong thiết kế nhà cấp 4 hiện nay cũng không thể thiếu sự xuất hiện của không gian của phòng bếp. Nơi mà sum tụ quây quần hàn huyên của các gia đình trong mỗi bữa ăn. Tại phòng bếp nên thiết kế có cửa sổ giúp thông thoáng, mùi thức ăn không xông vào phòng khách. Phòng bếp nên thiết kế bồn rửa ở xa với bếp lửa bởi nước và lửa gần nhau xung khắc không tốt cho phong thủy.
Mô hình phòng bếp và bàn ăn liên thông rất được ưa chuộng hiện nay cũng được áp dụng cho cả mẫu nhà cấp 4. Không gian phòng bếp rộng khoảng 25m2 ở giữa có bàn bar ngăn đôi, nội thất phòng bếp gồm có như: giá treo, kệ, tủ, bàn ăn, bar mini đẹp... và một số vật dụng trang trí cho phòng bếp như: Cây xanh, bình hoa, bình rượu....

Một phòng chức năng cũng vô cùng quan trọng tiếp theo đó là phòng ngủ. Ngôi nhà cấp 4 có diện tích là 150m2 bạn có thể thiết kế từ 3 đến 4 phòng ngủ tiện lợi. Nội thất trong phòng ngủ để mang đến giấc ngủ ngon nhất thì vật liệu nên chọn là gỗ tự nhiên. Sử dụng chăn ga gối đệm Hàn Quốc. Có thể lựa chọn lối thiết kế phòng ngủ tích hợp tiểu cảnh xanh mini trong phòng cho thân thiện với thiên nhiên.
Phòng ngủ nhà cấp 4 thường được lựa chọn cách trang trí theo nội thất hiện đại. với gam màu sáng và xanh kem bắt mắt. Phòng ngủ đẹp cho không gian nhà cấp 4 có diện tích 150m2 là khoảng 13.5m2, không gian được thiết kế với bố cục đơn giản nhưng hài hòa, cân đối. Bên trong phòng ngủ nhà cấp 4 thiết kế nhấn nhá với tranh ảnh trang trí tinh tế, có thể thiết kế thêm cả bộ bàn ghế thưởng trà và đọc báo, xem truyền hình. Cùng các phụ kiện đính kèm như bàn phấn, đèn ngủ.
Tông màu trang trí nội thất phòng ngủ nhà cấp 4 diện tích 150m2 lựa chọn màu sơn trắng sáng mở rộng diện tích không gian. Trần thạch cao trang trí với đèn Led âm trần. Ngoài ra để phòng ngủ thêm ấm cúng, bắt mắt còn có sự kết hợp với các tranh ảnh, tủ quần áo gỗ, đèn ngủ...
Khám phá những phối cảnh mẫu nhà cấp 4 150m2 đẹp nhất hiện nay
Mẫu nhà cấp 4 đang là sự quan tâm rất lớn của rất nhiều chủ đầu tư ở cả khu vực thành phố và khu vực nông thôn. Đặc biệt ở nông thôn những vùng có thu nhập ở mức trung bình thì việc lựa chọn một ngôi nhà cấp 4 là rất hợp lý. Với ưu điểm là tiết kiệm chi phí xây dựng, thời gian thi công nhanh chóng, đáp ứng đầy đủ công năng sử dụng, phù hợp với phong cách nhu cầu thẩm mĩ của người Việt... Để quý khách có trong tay những mẫu nhà cấp 4 đang hót nhất hiện nay thì cùng chúng tôi khám phá phối cảnh của những mẫu nhà cấp 4 này nhé.

Mẫu nhà cấp 4 diện tích 150m2 đã và đang làm siêu lòng không ít những chủ đầu tư yêu thích một phong cách nhà cấp 4 mái thái. Với vẻ đẹp xuất sắc từ vẻ đẹp bên ngoài đến nội thất ở bên trong. Trước hết ngôi nhà này ghi dấu ấn bởi một vẻ ngoài thân thiện, gần gũi với thiên nhiên. Xung quang bốn bề của ngôi nhà được chăm chút bằng vườn cây, khóm hoa đẹp mắt. Khoảng sân trước nhà rộng rãi giúp bạn có thể làm nơi đậu ô tô rất tiện lợi.
Ngôi nhà được thiết kế với 2 lối cửa ra vào. Hệ cửa chính là bước tới phòng khách, lối cửa phụ là từ phòng bếp đi ra. Tất cả từ cửa chính, cửa phụ, cửa sổ đều lựa chọn khung gỗ, kính cường lực hiện đại. Ngôi nhà mang đến vẻ đẹp ấn tượng cho ngôi nhà có lẽ là hệ mái thái màu xanh than nổi bật giữa nền màu trắng sáng của ngôi nhà. Đặc biệt ở lối cửa ra số 2 có sự xuất hiện lạ mắt của giàn hoa lan trước cửa của phòng bếp.

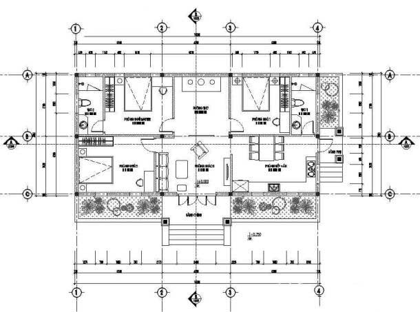
Để hiểu rõ hơn về mẫu nhà cấp 4 mái thái diện tích 150m2 chúng ta cùng đi tìm hiểu về một bản vẽ chi tiết của mẫu nhà đẹp đang rất được ưa chuộng này. Rõ ràng chúng ta thấy mẫu nhà này từ sảnh chính vào đầu tiên là phòng khách, hai bên của sảnh là 2 bồn cây cảnh đẹp mắt. Phòng khách được thiết kế thông với phòng thờ mà không cần đến bức tường chắn, gian thờ được thiết kế riêng biệt không ảnh hưởng đến không gian sinh hoạt của gia đình.
Phía bên tay phải của phòng khách là phòng bếp cộng với phòng ăn. Từ bếp chúng ta sẽ đi ra phía sảnh phụ và từ phòng ngủ số 1 ra hành lang là chúng ta cũng dễ dàng đi đến sảnh phụ của ngôi nhà. Phía tay trái của phòng khách được thiết kế với 2 phòng ngủ.

Mẫu nhà cấp 4 diện tích 150m2 tiếp theo được thiết kế theo kiểu dáng chữ L phổ biến. Không gian mặt tiền thoáng đãng. Ngôi nhà được nổi bật với sự phối cảnh nhiều màu sắc nhưng rất hợp lý, hài hòa. Khác với những mẫu nhà cấp 4 khác ở mẫu nhà này phần mái chữ A nổi bật khiến ai cũng có thể nhận ra với 3 tầng mái xếp chồng lên nhau.
Bước lên sảnh nhà chúng ta thấy có sự xuất hiện của 3 trụ cột hình tròn chắc chắn. Hệ thống cửa của toàn bộ ngôi nhà được lựa chọn với vật liệu bằng gỗ kết hợp với những ô kính nhỏ. Bên cạnh màu trắng làm chủ đạo thì để không tạo ra sự đơn điệu, tẻ nhạt mẫu nhà 150m2 này có thêm sự phối thêm màu của những gam màu khác màu vàng nhạt phía chân tường, màu xám nhẹ trung tính, màu đỏ của gỗ tự nhiên... Tất cả tạo nên một tổng thể hài hòa, bắt mắt.
Phía bên trong ngôi nhà được thiết kế với các phòng chức năng đáp ứng đầy đủ nhu cầu của người Việt với một phòng khách là nơi sinh hoạt chung, tiếp khách của gia đình bạn, một phòng bếp cùng với bàn ăn 6 ghế tiện nghi cho gia đình và công việc bếp núc của các bà các mẹ... Và không gian riêng tư là phòng ngủ cho ngôi nhà cấp 4 150m2 trên đây được thiết kế với 3 phòng ngủ. Trong đó có 1 phòng ngủ dành cho bố mẹ và 2 phòng còn lại là dành cho các con.

Mẫu thiết kế nhà cấp 4 hiện nay đang rất được ưa chuộng tại vùng nông thôn Việt Nam đó là mẫu nhà cấp 4 chữ U tiện ích. Từ cửa lớn vào là phòng khách với bộ bàn ghế gỗ cùng màu với bộ cửa chính của ngôi nhà. Để tạo sự thông thoáng cho 2 phòng ngủ thì kiến trúc sư đã thiết kế 2 bộ cửa sổ nhìn ra ngoài bằng cửa khung nhôm kính sơn tĩnh điện bền màu. Đương nhiên có những lúc chúng ta cần đón nguồn ánh sáng từ thiên nhiên, nhưng cũng có những lúc nghỉ ngơi cần không gian tĩnh mịch thì bận cần trang trí thêm rèm cửa vừa sang trọng vừa kín đáo.
Ngoài một phòng khách, 3 phòng ngủ thì ngôi nhà này còn được thiết kế với phòng bếp nhỏ gọn. Vì không gian hẹp nên phòng bếp được thiết kế tiết kiệm không gian một cách tối ưu nhất. Theo đó tại phòng bếp này chúng tôi thiết kế với một tủ bếp chữ I gọn gàng, bộ bàn ăn 4 ghế ngồi đều có chất liệu bằng gỗ. Vì không gian hẹp nên chúng ta lưu ý cần luôn đảm bảo sự gọn gàng, ngăn nắp cho toàn bộ căn nhà.
Trên đây là những chia sẻ của chúng tôi về mẫu nhà cấp 4 150m2 đẹp lý tưởng nhất hiện nay. Hi vọng sẽ giúp các chủ đầu tư có được sự lựa chọn phù hợp nhất cho gia đình của mình trong tương lai.


































