- Bạn đang có dự định xây dựng nhà cấp 4 đẹp với không gian sinh sống tiện nghi?
- Mẫu nhà cấp 4 có 3 phòng ngủ 1 phòng thờ, đáp ứng đầy đủ nhu cầu sinh sống cho gia đình?
- Phong cách thiết kế theo lối sống đơn giản, mang đậm nét truyền thống kiến trúc Việt Nam?
Thì đây là một trong những thiết kế nhà cấp 4 có 3 phòng ngủ đẹp với chi phí đầu tư giá rẻ được nhiều người quan tâm ngay sau đây là điều mà bạn đang tìm kiếm. Xem cùng tôi tham khảo qua nhé!
*Thông tin chi tiết:
- Tổng diện tích: 8.5 x 16 = 136m2.
- Kiến trúc: Nhà cấp 4 phong cách truyền thống.
- Đáp ứng đầy đủ nhu cầu thiết yếu cho đại gia đình từ 4 – 5 thành viên.
- Công năng thiết kế: 3 phòng ngủ, phòng khách, phòng bếp ăn, phòng thờ, phòng vệ sinh, phòng kho.
Mặt tiền mẫu nhà cấp 4 có 3 phòng ngủ 1 phòng thờ đáp ứng nhu cầu sinh sống
Mặt tiền phía trước nhà cấp 4 được kiến trúc sư có nhiều năm kinh nghiệm thiết kế theo kiểu dáng đơn giản, giúp gia chủ tiết kiệm tối đa chi phí. Với diện tổng diện tích 136m2, gia chủ ngôi nhà này mong muốn có một khoảng sân rộng rãi để phương tiện đi lại của các thành viên. Vì tài chính chủ nhà không cho phép, nên mẫu nhà cấp 4 giá rẻ này hạn chế tối đa họa tiết trang trí.

Phối cảnh mẫu thiết kế nhà 1 tầng 3 phòng ngủ và 1 phòng thờ
Đối với khí hậu đang bắt đầu nóng dần tại Việt Nam, gia chủ đã lựa chọn mái ngói cho ngôi nhà trong tương lai của mình. Giảm nhiệt độ nóng vào mùa hè, chống dột nước vào những ngày mưa, có tuổi thọ nhiều năm, đem lại cảm giác dễ chịu và thoáng mát vào nhiều mùa là những lợi thế của mái ngói.
Đặc biệt đối với những gia chủ nào có thú vui yêu thích cây cảnh, có thể áp dụng mô hình sân vườn cây xanh cho mặt tiền phía trước ngôi nhà. Ngoài việc trang trí nhà thêm phần đẹp mắt, cây xanh còn đem lại bầu không khí trong lành cho gia đình khi sinh sống và định cư.
Nhà đẹp 2021 mang phong cách truyền thống chọn màu trắng đen làm chủ đạo, một tông màu đem lại cảm giác dễ chịu gia chủ cũng như các vị khách quý lần đầu đến chơi. Qua đó đây cũng là tông màu phù hợp với vận mệnh và tuổi của gia chủ. Nhằm tăng ánh sáng tự nhiên vào ban ngày, hầu như các căn phòng bên trong nhà đều bố trí cánh cửa đúc cốt thép cao cấp và kiên cố.

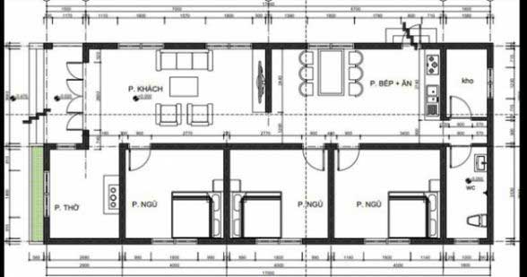
Bản vẽ mặt bằng nhà cấp 4 có 3 phòng đẹp - Phương án 1
Không gian bên trong thiết kế liên kết nhau, giúp cho các thành viên trong gia đình có thể thuận tiện và dễ dàng đi lại các khu vực. Nhìn tổng quan ngôi nhà trang trí theo kiến trúc đơn giản, nhưng bên trong không gian nhà cấp 4 đơn giản này là cả một quá trình thiết kế khá tỉ mỉ của KTS. Tổng diện tích 136m2, là miếng đất khá thoải mái trong việc xây dựng một ngôi nhà cấp 4 đẹp với tài chính hạn hẹp cho nhiều gia đình.

Bản vẽ mặt bằng nhà cấp 4 có 3 phòng đẹp - Phương án 2
Kiến trúc nhà cấp 4 truyền thống này đã được yêu thích từ nhiều năm về trước, nhưng tính đến thời điểm hiện tại phong cách này vẫn chưa hết Hot đâu nhé. Không gian thiết kế mở thoáng đãng, chi phí xây dựng không quá nhiều, đáp ứng nhu cầu thoải mái cho nhiều gia đình, mang nét đẹp truyền thống từ thời xa xưa là những điều khiến nhà 1 tầng này không bao giờ lỗi thời.
Bản vẽ mẫu nhà cấp 4 có 3 phòng ngủ 1 phòng thờ được rất nhiều người yêu thích bởi chi phí xây dựng không quá tốn kém. Qua đó nhà đẹp 1 tầng này còn được nhiều kiến trúc sư nhận định là ngôi nhà được tận dụng tối đa diện tích, nới rộng không gian sinh hoạt cho cả gia đình. Bạn đã có ý tưởng thiết kế tuyệt vời nào chưa? Nếu đây là kiến trúc bạn đang tìm kiếm bấy lâu nay, hãy cùng website lên kế hoạch cho việc xây dựng mái ấm gia đình được tốt nhất ngay bây giờ nhé.
Nguồn Tin: Wedo.vn
Mời quý độc giả xem tiếp!
=> Bản vẽ nhà cấp 4 3 phòng ngủ
=> Mẫu nhà cấp 4 có gác lửng 60m2
=> Mẫu nhà cấp 4 mái thái đẹp 5x20m


































