Hiện nay những mẫu thiết kế nhà ống kết hợp mái thái đang rất thịnh hành tại các khu vực thành thị, không những vậy chủ đề này cũng khá được quan tâm tại các vùng nông thôn miền quê. Mẫu nhà ống 2 tầng mái thái đẹp này có mức chi phí xây dựng không quá tốn kém và không mất quá nhiều thời gian hoàn thiện. Một trong những ngôi nhà đẹp được yêu thích và thông dụng nhất nhiều năm trở lại đây, năm 2021 kiến trúc nhà ống mái thái này càng được nhiều gia đình đón nhận. Cách đây không lâu, được vị chủ đầu tư tại Hải Phòng mong muốn thiết kế một ngôi nhà 2 tầng mái thái phong cách hiện đại. Qua cuộc nói chuyện và trao đổi đội ngũ kiến trúc sư đã nắm bắt được những yêu cầu và sở thích của chủ nhà, nên đã đưa ra phương án thiết kế nhà ống kiểu phố 2 tầng đẹp ấn tượng như sau.
* Thông tin công trình:
- Vị trí thi công: Hải Phòng.
- Kiến trúc: Nhà ống 2 tầng mái thái.
- Tổng diện tích: Ngang 5 + dài 18 (90m2).
- Thời gian hoàn thiện công trình: Khoảng 3 tháng.
Phối cảnh mẫu nhà ống 2 tầng mái thái đẹp diện tích 90m2
Nhà nhỏ đẹp này thi công trên tổng diện tích 90m2 (5 x 18), khoảng đất trống khá thích hợp để xây dựng các kiến trúc nhà ống tại khu vực đông dân cư liền kề nhau. Không phải hiển nhiên mà được yêu thích đến vậy, thích hợp trong nhiều khu đất như ở các khu vực đông dân cư tại thành thị là ưu điểm không thể bỏ qua của ngôi nhà đẹp tại đây. Như nhiều người cũng biết, những khu vực đông dân cư tại thành thị thường có giá bán đất nền không hề giá rẻ, do đó những ngôi nhà ống có bề ngang mặt tiền từ 4m – 5m luôn là sự lựa chọn tốt.

Mặt tiền nhà ống 2 tầng mái thái 4 phòng ngủ
Một điều mà ai cũng chú ý đến khi thi công nhà ống mặt tiền 5m này đó là chi phí xây dựng phải chẳng, phù hợp kinh tế nhiều gia đình Việt Nam hiện nay. Tuy nhiên, tùy thuộc vào nhu cầu cũng như sự đòi hỏi của mỗi gia chủ để lựa chọn những vật liệu / nội thất có chất tượng khác nhau, từ đó chi phí phát sinh cũng theo đó mà khác đi.
Nhìn tổng quan ngôi nhà từ màu sắc cho đến những chi tiết trang trí đều được kiến trúc sư tính toán rất kỹ lưỡng, tạo nên cái nhìn mặt tiền phía trước ấn tượng hơn trông thấy. Màu sơn sử dụng loại cao cấp nên lớp bọc rất tốt, chống bám bụi bẩn lâu ngày, khả năng giữ độ sáng tốt và tuổi thọ lâu năm. Không riêng gì những chi tiết nhỏ phía trước, chủ đầu tư tại Hài Phòng lựa chọn phong cách mái thái làm điểm nhấn vô cùng ấn tượng. Mái thái khá phù hợp cho những kiến trúc nhà 2 tầng trở lên, mang đến cái nhìn chỉn chủ, độc đáo và hài hòa hơn.
Bản vẽ thiết kế nhà ống 2 tầng kiểu mái thái đẹp mặt tiền 5m

Bản vẽ mặt bằng tầng 1
Ngoài cái nhìn tổng thể mặt tiền nhà ống 2 tầng, bố cục công năng bên trong ngôi nhà hiện đại cũng được đội ngũ kiến trúc sư sắp xếp khá tỉ mỉ. Sân xe hơi riêng có thể chứa được 2 chiếc xe gắn máy thoải mái, kế đó là nơi trồng các loại cây cảnh tùy theo sở thích của chủ nhà. 4 Phòng ngủ thiết kế khép kín cho các thành viên trong gia đình, nhằm đem đến sự yên tĩnh cho giấc ngủ ngon. Phòng khách rộng rãi làm tường vách ngăn, tạo cho cuộc nói chuyện với các thành viên được gần gũi và không bị ảnh hưởng đến. Khu vực phòng bếp, nơi sản xuất những món ngon cho mỗi bữa ăn nằm liền kề với bàn ăn, đem đến sự thuận tiện cho các chị em khi vào bếp trổ tài. 2 Phòng vệ sinh rộng thoáng bố trí đầy đủ các đồ dùng nội thất để phục vụ cho việc xả stress sau cuối ngày cực nhọc.

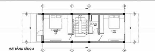
Bản vẽ mặt bằng tầng 2
Chi tiết mặt bằng tầng 2 của căn nhà ống bố trí 1 nh2 vệ sinh chung tích hợp đầy đủ tiện ích như không gian của tầng 1. Trong bản vẽ này nếu bạn quan sát kĩ thì ở tầng này có thêm 1 phòng thờ có kích thước nhỏ, thiết kế không gian nhỏ để phù hợp với kiểu nhà ống hẹp này, phong cách bố trí này đáp ứng đối gia đình không đặt trọng tâm nhiều vào không gian riêng để thờ cúng.
Nhìn chung tổng thể mẫu thiết kế nhà ống 2 tầng mái thái đẹp này vì diện tích không lớn nên cách bố trí không gian cũng được tối ưu hóa, đáp ứng nhu cầu sinh sống, đầy đủ tiện nghi phù hợp với điều kiện sinh sống hiện nay. Hy vọng với chủ đề này bạn sẽ có thêm ý tưởng mới cho mẫu thiết kế mới tron tương lai.
Nguồn tin: Wedo.vn
Mời mọi người cùng xem thêm!
=> Mẫu nhà ống 2 tầng 3 phòng ngủ
=> Mẫu nhà phố 2 tầng kết hợp kinh doanh
=> Mẫu nhà ống 1 trệt 1 lầu đẹp diện tích 4×20


































