Hiện nay, nhiều chủ nhà có cơ hội sở hữu quỹ đất với diện tích ngang hạn chế nhưng lợi thế về độ sâu trải dài. Do đó, để tạo ra một ngôi nhà đảm bảo cả sự thông thoáng, rộng rãi và đáp ứng nhu cầu của người dùng là điều mà nhiều người quan tâm tìm kiếm. Do đó, chúng tôi xin giới thiệu đến khách hàng thiết kế nhà phố 3 tầng 4 phòng ngủ hiện đại với diện tích 5x15 m2.
Hình ảnh trước mặt tiền mẫu nhà phố 3 tầng 4 phòng ngủ 5x15 m2
Cổng và hàng rào là hai chi tiết bắt mắt nhất trong bối cảnh chung của ngôi nhà phố hiện đại này. Bởi vì đây là quan điểm đầu tiên mà mọi người chú ý, với thiết kế kích thước khiêm tốn, đây sẽ là bước khởi đầu những bước đi và cũng là điểm đến của gia chủ sau thời gian vất vả và mệt mỏi ở ngoài.

Căn nhà phố 3 tầng hiện đại diện tích 5×15 m2
Hướng đến xây dựng một không gian hiện đại và thân thiện, mẫu nhà phố 3 tầng được thiết kế đầy trang nhã. Không quá cầu kỳ, mọi chi tiết lẫn màu sắc đều thể hiện được sự nhẹ nhàng, thanh thoát.
Điểm nhấn của tổng thể công trình chính là phần ốp tường được thiết kế giả gỗ ở phần sân thượng, chính yếu tố này góp phần tạo sự sang trọng, ấm áp cho tổng thể ngôi nhà. Thêm vào đó, vật liệu kính được sử dụng để làm lan can, cộng với việc bố trí cửa sổ rộng mở càng làm tăng thêm sự thông thoáng, mát lành, tối ưu diện tích đón nắng gió tự nhiên.

Góc nghiên này sẽ bao quát được tổng thể kiến trúc trông rất ấn tượng.
Thiết kế này cũng không thể vắng mặt các mảng xanh, chậu cây được bố trí hợp lý mang đến sắc tươi tràn ngập căn nhà. Phần mái Thái được sử dụng để tăng thêm tính thẩm mỹ, kết hợp với phần mái nhô ra, che chắn cho toàn bộ ngôi nhà.
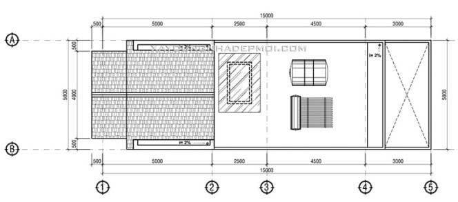
Bản vẽ mặt bằng căn nhà phố 3 tầng có 4 phòng ngủ
Với lợi thế chiều sâu, phần thiết kế tầng trệt của mẫu nhà đẹp này sẽ được bố trí một cách hợp lý, sắp xếp các không gian liên tiếp nhau, tạo sự thuận tiện tối đa nhưng vẫn đảm bảo được tính thẩm mỹ.
Một phần diện tích sẽ dùng để xây dựng không gian thông thoáng với các khoảng sân trước và sân sau. Tại đây, gia chủ hoàn toàn có thể chưng bày tiểu cảnh, xây dựng một khu vườn nhỏ hoặc thoải mái trải nghiệm không gian mát lành từ nắng gió tự nhiên bên ngoài thổi vào.
#Mặt bằng tầng trệt:

Được ví là bộ mặt của toàn bộ ngôi nhà, do vậy phòng khách được hầu hết các gia chủ quan tâm thiết kế, vừa thể hiện được sự tiện nghi, hiện đại vừa mở ra một thế giới thân mật gần gũi.
Một bộ sofa đơn giản sẽ được đặt tại tâm điểm, theo đó là các chi tiết trang trí đính kèm không quá cầu kỳ nhưng thể hiện được sự sang trọng và tinh thế. Tiếp đó sẽ là không gian bếp, nằm ngay phía sau cầu thang. Tại đây, phần nội thất cũng được bố trí một cách hợp lý nhằm tạo sự thuận tiện. Đây là không gian sinh hoạt chung, nơi mọi người cùng thưởng thức những bữa ăn ngon nên phần trang trí sẽ hướng đến sự ấm áp, gần gũi và nhẹ nhàng bình yên nhất. Phòng ngủ đầu tiên sẽ được đặt ở cuối căn nhà. Một phòng vệ sinh sẽ được đặt cạnh đó nhằm đáp ứng tối đa nhu cầu của gia chủ.
#Mặt bằng lầu 1:

Hai phòng ngủ tiếp theo sẽ được đặt ở không gian này. Đảm bảo sẽ mang đến sự riêng tư, thoải mái nhất cho người sử dụng với phòng vệ sinh khép kín. Một khu vực sân phơi sẽ được bố trí tại đây với diện tích vừa đủ. Vì nằm ở ngay lầu 1 nên rất thuận tiện cho việc sử dụng tối đa công năng của nó.
#Sân thượng:

Phòng ngủ còn lại sẽ được đặt tại không gian này, cùng với phòng thờ và khoảng sân thượng rộng rãi. Được trang bị phòng vệ sinh riêng, phòng ngủ 4 sẽ là nơi gia chủ thoải mái tận hưởng những giấc ngủ bình yên và thư giãn tuyệt đối. Nằm đối xứng cầu thang với phòng ngủ là phòng thờ. Đây cũng là không gian tách biệt, yêu cầu sự yên tĩnh. Phòng thờ sẽ được thiết kế nhằm thể hiện sự khang trang.
Ưu ái xây dựng một khoảng sân thượng khá rộng. Nơi đây sẽ là điểm đến ưa thích của gia chủ khi sử dụng để chưng bày tiểu cảnh hay trồng những loại cây cỏ, hoa lá yêu thích. Vì là không gian mở thông thoáng nên các thành viên cũng có thể thỏa sức hít thở bầu không khí trong lành tại đây, hướng đôi mắt để thưởng lãm quang cảnh xung quanh mình.
#Phần mái:

Được đổ trên nền bê tông vững chắc, phần mái được xem như bộ phận để che chắn toàn bộ ngôi nhà đi qua mưa gió. Tại đây, sẽ được kết hợp giữa phần mái thái và mái bằng vừa góp phần nâng cao tính thẩm mỹ vừa tạo không gian mát mẻ trong những ngày hè nắng nóng. Vì lợi thế diện tích nên gia chủ có thể tận dụng không gian này để đặt một bể đựng nước. Song song với đó, một giếng trời cũng sẽ được thiết kế tại khu vự sân sau tại đây. Nhằm mang lại ánh sáng tự nhiên cho căn nhà, tạo sự thông thoáng, dễ chịu.
Nguồn tin: xaydungnhadepmoi.com
Mời bạn xem tiếp!
=> Mẫu nhà phố 3 tầng mái thái đẹp mặt tiền 4,5 mét
=> Mẫu nhà phố 3 tầng mặt tiền 5m đáp ứng đầy đủ công năng
=> Mẫu nhà phố 3 tầng 2 mặt tiền đẹp mang phong cách Hiện Đại


































