Mỗi ngôi nhà có một phong cách khác nhau, tùy thuộc vào sở thích và phong cách của chủ sở hữu. Có những người yêu thích vẻ đẹp truyền thống, những người khác muốn sở hữu một ngôi nhà giao thoa giữa cổ điển và hiện đại, hoặc mọi người đang tìm kiếm một không gian khác với lối suy nghĩ hoàn toàn mới, một ngôi nhà hiện đại theo tiêu chí của xã hội ngày nay. Giới thiệu về mẫu nhà phố 1 trệt 1 lầu 1 tum, chúng tôi hy vọng sẽ mở ra một thế giới mới, giúp cư dân ổn định để trải nghiệm cuộc sống lý tưởng, tối ưu.
Hình ảnh phối cảnh mặt tiền mẫu nhà phố 1 trệt 1 lầu 1 tum đẹp
Tận dụng tối đa thiết kế của các mảng khối, tạo ra các không gian vuông, sắc nét. Mô hình nhà 1 trệt 1 lầu 1 tum xuất hiện nổi bật trong không gian. Không cần các chi tiết quá phức tạp, các vật liệu được sử dụng rất đơn giản để tạo ra các đường nét hài hòa. Pha trộn các tông màu nền nhẹ nhàng và một số gạch ốp tường rực rỡ ở trung tâm.

Việc sử dụng các vật liệu đa dạng từ gạch, thủy tinh, đá, thép không gỉ ... làm tăng thêm sự độc đáo và nổi bật của bất kỳ thiết kế nào. Ngoài ra, những chậu cây trang trí, màu xanh của hoa và lá góp phần tô điểm cho không gian, mang lại cảm giác hài hòa, đơn giản, và tràn đầy sức sống, mạnh mẽ và trẻ trung cùng một lúc. Sử dụng tổ chức mặt bằng tự do không đối xứng, mẫu nhà phố hiện đại càng trở nên hấp dẫn và ấn tượng hơn. Các không gian mở tạo cảm giác nhẹ nhàng, thu hút ánh nhìn của mọi người.
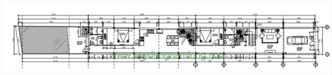
Bản vẽ thiết kế mặt bằng nhà 1 trệt 1 lầu 1 tum phong cách hiện đại

Các không gian được bố trí trải dài theo bản mẫu theo đó mang lại cảm giác giao thông thuận lợi, sự liên kết giữa các thành viên trong gia đình. Bắt đầu chuyến hành trình tham quan ngôi nhà, sau phía cổng chính sẽ là phần garage dùng để xe, nơi được ưu tiên xây dựng một không gian thông thoáng, vừa đủ, tạo sự dễ dàng trong di chuyển, dừng đỗ, đồng thời vẫn giữ được một diện tích thuận lợi cho việc đi lại, ra vào cho các thành. Tiếp nối sẽ là không gian phòng khách, nổi bật với nội thất hiện đại, thiết kế tối tân, phòng khách mang đến sự khoan khoán, dễ chịu, là nơi tiếp đón những vị khách quý, bạn bè thân thiết của gia đình. Tạo điểm nhấn cũng như gây dựng một không gian bắt mắt, tạo thú vui tao nhã cho gia chủ, đó là khu vực tiểu cảnh khô trải dài dưới chân cầu thang, chẳng những mang lại nét độc đáo cho bản mẫu thiết kế mà còn góp phần lấp đi phòng về sinh nhỏ gọn được bố trí ngay sát bên cạnh.
Tại mặt bằng mẫu nhà đẹp 2021 sẽ được bố trí hai phòng ngủ xen kẽ với hệ thống nhà vườn, phòng bếp và phòng ăn tạo cảm giác thuận tiện và không gian riêng tư cho mỗi người. Không gian phòng bếp và phòng ăn sẽ liền kề và thông thoáng với nhau, tại đây ngoài việc thưởng thức những món ăn ngon, gia đình còn có thể thoải mái thư giãn và thưởng lãm hệ thống nhà vườn được đặt sát ngay bên cạnh, mang lại cảm giác hòa hợp, nhẹ nhàng, cho bữa ăn thêm phần đầm ấm. Phía cuối sẽ là khu vực dành riêng cho phòng giặt và sân phơi đem đến sự tiện lợi tối ưu trong công việc thường nhật.

Bao gồm: 2 phòng ngủ, 1 phòng vệ sinh chung và phòng sinh hoạt gia đình. Nhằm phục vụ tối đa cuộc sống của người dân, vừa mang lại không gian sinh hoạt chung, nơi các thành viên sum vầy, quân quần bên nhau vừa xây dựng thế giới riêng để các thành viên thoải mái nghỉ ngơi, ngon giấc. Bản mẫu thiết kế 02 phòng ngủ nằm tách biệt, lọt thỏm giữa không gian sẽ là phòng sinh hoạt chung, phần cầu thang kết nối tầng trệt và một nhà vệ sinh chung cho cả gia đình.
Đối với phòng ngủ hai, nơi có ưu điểm sở hữu tầm nhìn đẹp, hướng ban công và không gian thông thoáng bên ngoài. Tại đây, gia chủ có thể thoải mái hòa mình vào thiên nhiên tươi mát, đón những luồng gió thoang thoảng từ bên ngoài thổi vào hoặc vươn mình đón lấy ánh nắng mỗi sớm mai. Phòng sinh hoạt chung sau đó cũng được thiết kế diện tích vừa phải, đủ để làm nơi cho cả gia đình vui chơi, giải trí. Phòng vệ sinh chung được bố trí hợp lý, thuận tiện cho mọi người sử dụng. Phòng ngủ thứ 03 cũng sẽ là không gian riêng tư tách biệt, mang lại sự yên tĩnh, thoải mái cho người dùng.
Tùy vào mỗi công năng mà không gian căn phòng sẽ thiết kế và bố trí vật dụng, nội thất hợp lý. Nếu không gian chung tạo cảm giác ấm áp thì các phòng ốc riêng sẽ thể hiện được cá tính và phong cách của người sử dụng, giới trẻ thì yêu thích sự năng động, mới mẻ, người lớn lại đam mê cổ điển, dịu dàng. Các mảng màu đan xen, các đường nét hòa quyện vào nhau, tạo nên tổng thể ngôi nhà bắt mắt, là điểm đến lý tưởng nơi mà cả gia đình có thể yên tâm sinh sống tận hưởng mái ấm yên bình, ngọt ngào và hạnh phúc.
Nguồn tin: xaydungnhadepmoi.com
Mời quý độc giả xem tiếp!
=> Mẫu nhà phố 1 trệt 1 lửng 1 lầu
=> Mẫu nhà phố 1 trệt 1 lầu 1 sân thượng


































