Mẫu nhà cấp 4 mái tôn giá rẻ là chủ đề đang được rất nhiều người quan tâm. Việc lựa chọn xây dựng một căn nhà cấp 4 lợp tôn với chi phí 200 triệu đồng đã được nhiều hộ gia đình chú ý. Đó là lý do tại sao các bản vẽ thiết kế nhà cấp 4 mái tôn đang được lựa chọn rất nhiều trong những năm vừa qua, xây dựng mái tôn với chi phí rẻ nhưng vẫn đáp ứng đầy đủ nhu cầu sử dụng cũng như tính thẩm mỹ cho toàn công trình.
Ưu điểm nổi bật của căn mẫu nhà cấp 4 đẹp:
- Nhiều kiểu dáng khác nhau.
- Thời gian thi công nhanh.
- Chi phí xây dựng thấp.
Chúng tôi có sưu tầm ra 3 mẫu bản vẽ nhà cấp 4 mái tôn giá rẻ đang được nhiều hộ gia đình ưa chuộng. Tùy theo diện tích có sẵn để lựa chọn một mẫu thiết kế phù hợp, tuy là vật liệu xây dựng giá rẻ nhưng vẫn đáp ứng được tính thẩm mỹ và mang phong cách hiện đại không thua kém gì những căn nhà dạng mái ngói khác.
Mẫu nhà cấp 4 mái tôn 90m2

Phối cảnh mẫu thiết kế nhà cấp 4 mái tôn diện tích 90m2
Căn nhà đẹp với diện tích 90m2 nên việc lựa chọn xây nhà cấp 4 mái tôn nhầm tiết kiệm chi phí cũng như tạo nên không gian sống rộng rãi và đáp ứng được nhu cầu sử dụng. Mẫu thiết kế này được chia ra thành 2 phần, 1 bên được thiết kế phòng ngủ, bên còn lại không gian sinh hoạt chung của gia đình. Trong mô hình 3D này bạn dễ dàng nhìn thấy được căn nhà được thiết kế khá đơn giản, dạng mái tôn giật cấp với điểm nổi bật này luôn tạo cho căn nhà trở nên hiện đại hơn rất nhiều.

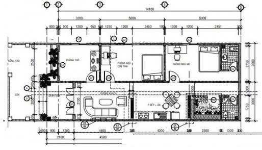
Mặt bằng công năng sử dụng căn nhà cấp 4 mái tôn 90m2
Cách bố trí công năng sử dụng cũng rất hợp lý với 2 phòng ngủ, nhà bếp + ăn, nhà vệ sinh chung. Với diện tích 90m nên không gian sinh hoạt cũng như cách bố trí chức năng rất thoải mái. Một trong những thiết kế đẹp mắt đang được rất nhiều gia chủ lựa chọn xây dựng, vừa tiết kiệm được chi phí đầu tư vừa sở hữu một không gian sống lý tưởng.
Mẫu nhà cấp 4 mái tôn 4.5x15m

Mẫu nhà cấp 4 mái tôn diện tích 4.5x15m
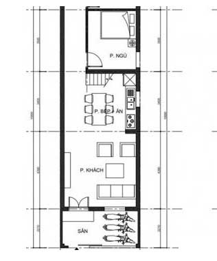
Bản vẽ mẫu nhà cấp 4 mái tôn trên diện tích 4.5x15m được thiết kế đơn giản, căn nhà được đóng trần thạch cao tạo nên không gian thoáng mát rất phù hợp với dạng nhà nhà cấp 4 mái tôn. Kiểu nhà phù hợp với kinh tế lẫn nhu cầu sử dụng của hộ gia đình ở nông thôn. Mô hình mái tôn được thiết kế với 1 phòng ngủ trong cùng, phòng khách và nhà bếp được thiết kế không gian mở, bên trong là một sân sắt nhỏ được thiết kế dành riêng cho khu vực phơi quần áo.

Chi tiết bản vẽ mặt bằng nhà cấp 4 mái tôn 4.5x15m
Sơ lượt về bản vẽ trên đây bạn sẽ thấy cách sắp xếp không gian chức năng của căn nhà rất hợp lý, vì diện tích không quá lớn nên nhà được bố trí dạng dọc để tăng sử dụng không gian, ngôi nhà này được trang trí với một gác mái, được sử dụng làm phòng thờ và phòng ngủ nhỏ cho trẻ em. Mẫu thiết kế chi phí xây dựng tầm 200 triệu rất phù hợp với gia đình có 1-2 con nhỏ.
Mẫu nhà cấp 4 mái tôn có gác lửng 7x20m2

Phối cảnh mặt tiền nhà cấp 4 có gác lửng 7x20m2
Mặt tiền của căn nhà cấp 4 có gác lửng trên diện tích 7x20m2 được thiết kế với mái tôn màu đỏ và riềm mái bê tông. Phần sân nhà được sử dụng làm nền đá hoa tôn để tạo cho công trình trở nên nổi bật hơn. Nhìn chung căn nhà có một nét đẹp hiện đại, đây là kiểu nhà theo chúng tôi đánh giá rất phù hợp không chỉ ở nông thôn mà cả ở thành thị.

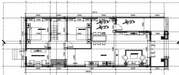
Mặt bằng công năng tầng trệt
Tầng trệt được bố trí phòng khách, bếp được bố trí bên ngoài và 2 phòng ngủ nằm bên trong, ở giữa hai phòng ngủ là cầu thang lên gác lửng, cuối hành lang là phòng khách thiết kế nhỏ nhưng vẫn đáp ứng tiêu chuẩn.

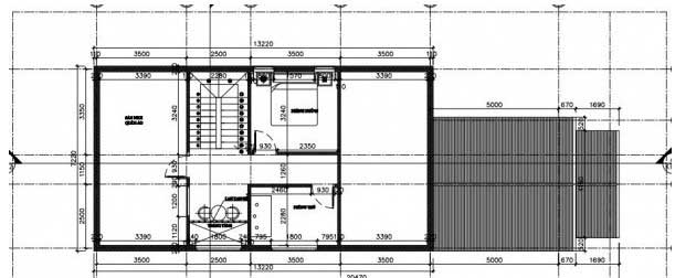
Mặt bằng công năng tầng lửng
Tầng lửng được bố trí với 1 phòng ngủ và 1 phòng thờ nhỏ nằm ngay bên ngoài một phần của khoảng thông tầng. Cách bố trí từng chức năng phù hợp với nhu cầu sử dụng của gia chủ.
Những mẫu nhà cấp 4 mái tôn đẹp giá rẻ chi phí xây dựng thấp mà chúng tôi vừa mới giới thiệu, kiểu nhà đơn giản và pha trộn phong cách hiện đại giúp gia chủ có thêm thật nhiều y tưởng về mẫu thiết kế nhà cấp 4 mái tôn hơn. Do đó, những bản vẽ này thường được xây dựng trên diện tích đất nhỏ ở vùng nông thôn, nhưng đổi lại nó rất phù hợp với nhu cầu sử dụng cũng như điều kiện kinh tế của nhiều hộ gia đình.


































